
张利
********
********
北京市北京市海淀区
张利(1970-),现任清华大学建筑学院教授、博士生导师、副院长,《世界建筑》主编,简盟工作室主持,中国建筑学会常务理事、清华大学建筑设计研究院副总建筑师,。其主要学术关注为建筑空间与人体的互动关系,致力于东方空间哲学的当代诠释,倡导“软可持续性”与主动式健康空间。
谷家营小镇广场及艺术中心,北京/建筑
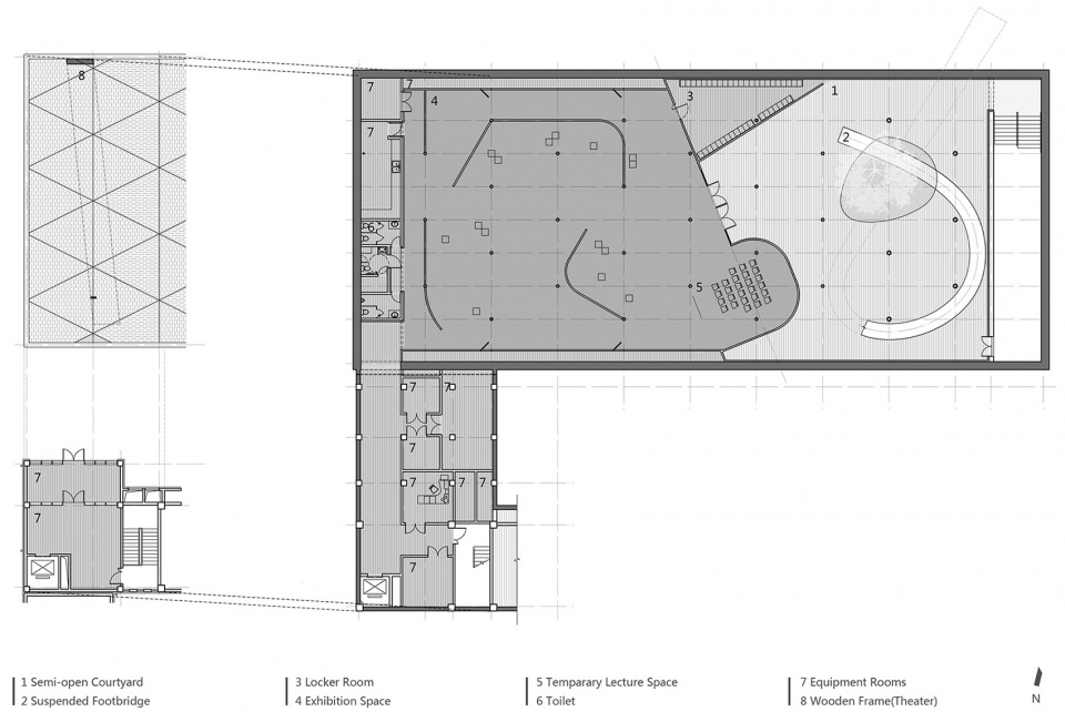
建筑位于谷家营园艺小镇中心,主要表现为一个角部向上卷起的由竖放的瓦片形成的广场。卷起的部分揭示出地下的艺术空间。
Sitting in the center of the Gujiaying horticulture village, the building features a piazza made of traditional tiles bending upwards, revealing the subterranean art space below.
▼广场及艺术中心全景,overview of the piazza and the art space

广场的南界有一个大门框装置限定,既是对史传在二十世纪初期前存在于此的戏台的致敬,也是对北侧天田山和永宁阁的框景。
A frame at the southern end of the piazza pays tribute to a legendary stage that had existed here by the turn of the 20th century, while windowing the Yongning Pavilion and the Tiantian Hill to the north.
▼概念分析图,the concept

▼轴测图,the axon

▼广场南界的大门框装置,是对北侧天田山和永宁阁的框景,the frame at the southern end of the piazza, windowing the Yongning Pavilion and the Tiantian Hill to the north

▼从门框处看广场,viewing the piazza from the frame


▼由竖放的瓦片形成的广场,角部向上卷起,the piazza made of traditional tiles bending upwards


▼广场局部,partial view of the piazza

一条悬挂的步桥从广场卷起的西北角蜿蜒而下,引向地下的半室外院落和室内展览空间。在整个地下空间使用了一种特殊设计的柱子,每棵柱子从中间向上下两头收分,上半部分面材为亚克力,内部集成照明,下半部分面材为铝。
A suspended footbridge winds its way down beneath the raised north-west corner of the piazza, leading to the semi-open sunken courtyard, before entering the indoor exhibition space. The subterranean space features an array of special columns that have cooperated lighting in the upper part, and decorated with stainless steel on the lower part, each column is tapered towards both ends.
▼悬挂的步桥从广场卷起的西北角蜿蜒而下,引向地下的半室外院落和室内展览空间,a suspended footbridge winds its way down beneath the raised north-west corner of the piazza, leading to the semi-open sunken courtyard

▼地下的半室外院落,the semi-open sunken courtyard


▼地下的室内展览空间,采用木条组成的天花板,柱子从中间向上下两头收分,the underground indoor exhibition space with the ceiling made of the wood strips and columns tapered towards both ends

▼地下空间夜景,柱子的上半部分面材为亚克力,内部集成照明,下半部分面材为铝,night view of the subterranean space with the columns that have cooperated lighting in the upper part, and decorated with stainless steel on the lower part


▼广场夜景,night view of the piazza


▼艺术空间夜景鸟瞰图,bird-eye’s view of the art space at night

▼艺术空间外观夜景,night view of the art space


▼艺术空间外观夜景局部,partial exterior view of the art space at night

▼总平面图,site plan

▼平面图,plan

▼剖面图,section

项目名称:广场及艺术中心,园艺小镇
设计方:清华大学简盟工作室
项目设计 & 完成年份:2017-2019
主创及设计团队:张利、白雪、王灏、张铭琦、王雨锋、杨慧明、黄明月
项目地址:北京/延庆/谷家营
建筑面积:1280平方米
摄影版权:布雷
合作方:张昕工作室
客户:世园局发展有限公司
Project name: Piazza & Art Space, Horticulture Village
Design: Atelier Teamminus
Design year & Completion Year: 2017-2019
Leader designer & Team: Zhang Li, Bai Xue, Wang Hao, Zhang Mingqi, Wang Yufeng, Yang Huiming, Huang Mingyue
Project location: Gujiaying, Yanqing, Beijing
Gross Built Area (square meters): 1280㎡
Photo credits: Bu Lei
Partners: X Studio School of Architecture Tsinghua University.
Clients: Bureau of Beijing International Horticultural Exhibition Coordination development co. LTD
