
华黎
********
********
北京市北京市海淀区
个人简介: 1994年毕业于清华大学建筑系,获建筑学学士学位 1997年获清华大学建筑学硕士学位 1999年毕业于美国耶鲁大学建筑学院,获建筑学硕士学位,之后曾工作于纽约Westfourth Architecture 和 Herbert Beckhard - Frank Richlan建筑设计事务所。 2003年回到北京开始独立建筑实践,合作创立UAS普筑设计事务所,期间同时在中央美院和清华大学建筑学院担任建筑设计课程评委。 2009年创立TAO迹. 建筑事务所。 专业成就: 华黎主持设计过的重要项目包括:常梦关爱中心,东北师范大学体育中心,云南高黎贡手工造纸博物馆,四川德阳孝泉民族小学灾后重建等,他的设计作品及访谈获得了时代建筑、世界建筑、建筑学报、domus,AREA,A+U,Abitare, Space, Casabella等国内外建筑媒体的报道。TAO (TRACE ARCHITECTURE OFFICE) 迹. 建筑事务所由建筑师华黎创立于北京,是一家从事建筑、城市、景观及家具设计的设计事务所。TAO 关注建筑中空间和建构的本质意义,以及建筑生产过程对于社会与生态的影响。TAO对建筑在全球化的消费主义语境下沦为时尚符号或形式教条持批判性的态度,对场所意义营造、场地及气候回应、材料与建造方式、资源合理利用等命题的探讨,构成了TAO项目工作的核心内容。
高黎贡手工造纸博物馆,腾冲/建筑
高黎贡手工造纸博物馆,云南腾冲 / TAO 迹 . 建筑事务所——建筑师对于如何在当下中国的乡土环境中运用当地资源和适宜手段来诠释建筑的地域性与现代性的思考。
Gaoligong Handmade Paper Museum, Tengchong/TAO, Yunnan Architecture firm - architects' thinking on how to use local resources and appropriate means to interpret the regionality and modernity of architecture in the current local environment of China.

博物馆建造在云南腾冲高黎贡山下新庄村边的田野中,建筑的目的是为了向来访者展示新庄古老的手工造纸工艺,及相关于手工纸的文化产品,建筑内部也设有办公空间、茶室和客房等。设计将建筑做成由几个小体量组成的一个建筑聚落,如同一个微缩的村庄。而整个村庄连同博物馆又形成一个更大的博物馆——每一户人家都可以向来访者展示造纸的工艺。访问者对建筑的游览将是在内部展览和外部优美的田园景观之间不断转换的一种体验,以此来提示建筑、造纸和环境的不可分。展览部分由六个形状各异的展厅围绕中心庭院组成一条连续的参观路线,中间则是一个可向庭院完全开敞的茶室。二层是办公空间,通过一个室外楼梯联系到三层客房和一个可以观山的屋顶平台。
The museum is built in the field near Xinzhuang Village, under Gaoligong Mountain, Tengchong, Yunnan. The purpose of the building is to show visitors the ancient handmade paper making technology of Xinzhuang and cultural products related to handmade paper. The building also has office space, tea room and guest room. The design makes the building into a building settlement composed of several small volumes, like a miniature village. The whole village, together with the museum, has formed a larger museum - every family can show visitors the craft of paper making. The visitors' visit to the building will be an experience of continuous transformation between the internal exhibition and the beautiful rural landscape outside, so as to remind the indivisibility of architecture, papermaking and the environment. The exhibition part consists of six exhibition halls with different shapes and forms a continuous tour route around the central courtyard, and in the middle is a tea room that can be completely opened to the courtyard. The second floor is the office space, which is connected to the guest rooms on the third floor and a roof platform that can view the mountains through an outdoor staircase.

01
设计师介绍
Designer introduction
设计师——华黎
TAO创始人及主持建筑师。1994年毕业于清华大学建筑系。建筑学学士学位,1997年获得清华大学建筑学硕士学位。1999年毕业于美国耶鲁大学建筑学院,获建筑学硕士学位,之后曾工作于纽约Westfourth Architecture和Herbert Beckhard-Frank Richlan建筑设计事务所。
Designer - Hua Li
Founder and presiding architect of TAO. Graduated from the Department of Architecture of Tsinghua University in 1994. He received a bachelor's degree in architecture and a master's degree in architecture from Tsinghua University in 1997. He graduated from the School of Architecture of Yale University in the United States in 1999 with a master's degree in architecture, and later worked at Westforth Architecture and Herbert Beckhard-Franck Richlan Architecture Design Office in New York.
2003年回到北京开始独立建筑实践,合作创立UAS普筑设计事务所,期间同时在中央美院和清华大学建筑学院担任建筑设计课程评委。2009年创立TAO迹·建筑事务所。
In 2003, he returned to Beijing to start independent architectural practice and co-founded UAS Puzhu Design Firm. During that time, he also served as the judge of architectural design courses in the Central Academy of Fine Arts and the School of Architecture of Tsinghua University. In 2009, TAO Trace · Architecture Firm was founded.
华黎主持设计过的重要项目包括:常梦关爱中心,东北示范大学体育中心,云南高黎贡手工造纸博物馆,四川德阳孝泉民族小学灾后重建等。
Huali presided over and designed important projects, including the Changmeng Care Center, the Sports Center of Northeast Demonstration University, the Gaoligong Handmade Paper Museum in Yunnan, and the post-disaster reconstruction of Xiaoquan National Primary School in Deyang, Sichuan.

02
项目介绍
Project introduction
(一)项目背景
这是一个有益于当地传统资源保护以及促进社区发展的建筑项目。项目坐落在腾冲附近高黎贡山下的一个村庄边上,该自然村有手工造纸的悠久历史传统,其生产的纸原料为当地的构树皮,纸质淳厚、富有韧性和质感,当地称为新庄古纸,然而这种纸在现实中的应用仅限于茶叶包装和冥纸。这个村落发展项目的目的就是通过引入外部投资与本地村民合作,对手工造纸的工艺进行改进以提升纸的质量,同时设计研发纸的系列产品,扩大手工纸的用途和影响,并借此延续这一传统技艺和文化。而建设博物馆则是一个窗口,起到展示造纸的历史文化、工艺及产品,以及接待访客、文化交流等作用。
(1) Project background
This is a construction project beneficial to the protection of local traditional resources and the promotion of community development. The project is located at the edge of a village at the foot of Gaoligong Mountain near Tengchong. The natural village has a long history of manual paper making. The paper produced by the natural village is local papyrus papyrus bark. The paper is thick, tough and textured. It is locally called Xinzhuang ancient paper. However, the application of this paper in reality is only limited to tea packaging and dark paper. The purpose of this village development project is to introduce external investment and cooperate with local villagers to improve the craft of handmade paper to improve the quality of paper, design and develop a series of paper products, expand the use and influence of handmade paper, and continue this traditional craft and culture. The construction of the museum is a window to display the history, culture, technology and products of papermaking, as well as to receive visitors and cultural exchanges.

(二)基地信息
南北长15m,东西长20m并有近1m的高差,坐落于龙上寨村口。周边地势东北高西南低,北侧是进村道路,东侧是村子,西侧是开阔的田野,南侧则是一片树林,高黎贡山延绵于场地的北东两个方向。
(2) Base information
It is 15m long from the north to the south, 20m long from the east to the west and has a height difference of nearly 1m. It is located at the entrance of Longshangzhai Village. The surrounding terrain is high in the northeast and low in the southwest. The north side is the village road, the east side is the village, the west side is the open field, and the south side is a forest. Gaoligong Mountain stretches in the northeast and east directions of the site.

03
方案亮点
Program highlights
学以致用
通过案例分析,采用Q&A的方式,针对案例进行提问,以达到高效积累建筑处理手法的目的。提问的对象将针对于快题的场地分析与设计、设计概念来源、体块组织逻辑、总平面设计、平面设计、空间设计、剖面设计、立面设计等。
learn in order to practise
Through case analysis, Q&A method is adopted to ask questions about the case, so as to achieve the purpose of efficiently accumulating architectural treatment techniques. The object of the questions will be the site analysis and design, the source of design concepts, the logic of block organization, the general layout design, graphic design, space design, section design, facade design, etc.

问题-1
在这样一个既是自然场地又是乡村的环境中,建筑应以何种方式植入?
——场地分析与设计、设计灵感来源
Question-1
In such an environment that is both a natural site and a rural area, how should buildings be planted?
——Site analysis and design, source of design inspiration

问题-2
手工造纸作为被保护的传统资源在今天的核心价值是什么?
建筑作为展示这种资源的场所如何应对这种价值——建筑师对于如何在当下中国的乡土环境中运用当地资源和适宜手段来诠释建筑的地域性与现代性的思考
——场地分析与设计、设计灵感来源
Question-2
What is the core value of handmade paper as a protected traditional resource today?
How to deal with the value of architecture as a place to display such resources -- architects' thinking on how to use local resources and appropriate means to interpret the regionality and modernity of architecture in the current local environment of China
——Site analysis and design, source of design inspiration

问题-3
建筑是如何锚固于场地之上?如何与环境结合?
——总平面设计、形体组织、空间设计
Question-3
How is the building anchored on the site? How to integrate with the environment?
——General layout design, shape organization, space design

问题-4
基地东西向近一米的高差是何如解决的?
——剖面设计
Question-4
How to solve the height difference of nearly one meter from the east to the west of the base?
——Section design

问题-5
建筑采用了什么样的平面布局与流线组织的方式?
展览建筑常用平面组合类型有哪些?它们的优缺点是什么
——平面设计
Question-5
What kind of plane layout and streamline organization is adopted for the building?
What are the common plane combination types of exhibition buildings? What are their advantages and disadvantages
——Graphic design

问题-6
建筑在空间处理上有什么亮点?
——空间设计
Question-6
What are the highlights of architecture in space processing?
——Space design

问题-7
建筑的立面肌理有什么值得学习的地方?建筑该如何组织立面开窗?
——立面设计
Question-7
What is there to learn from the facade texture of the building? How should the building organize facade window opening?
——Facade design

问题-8
该案例还有无其他亮点值得我们学习?
——作为兴趣点,选择性的记录
Question-8
Are there any other highlights of this case worth learning?
——As a point of interest, selective recording

回答
Answers
问题-1
在这样一个既是自然场地又是乡村的环境中,建筑应以何种方式植入?
1.运用当地的材料、技术和工艺,由当地工匠来建设。
2.化整为零的设计手法
3.大小不同,高低错落的体量组成一个建筑聚落,使建筑的尺度变小,能更好的融入环境
Question-1
In such an environment that is both a natural site and a rural area, how should buildings be planted?
1. Use local materials, technologies and processes to build by local craftsmen.
2. Design method of breaking into parts
3. Different sizes and scattered volumes form a building settlement, which makes the scale of the building smaller and can better integrate into the environment

问题-2
1.手工造纸作为被保护的传统资源在今天的核心价值是什么?
2.建筑作为展示这种资源的场所如何应对这种价值?
1.1手工纸的生态价值,其绿色无污染与环境友善的制造方式,体现了对自然的尊重。
1.2手工纸的文化价值,纸本身真实地体现勒原材料地一些特征及制造过程的痕迹(甚至是缺陷)这种真实性体现出一种回归事物本身的态度。
2.1在材料的选用尽可能采用低能耗、可降解的自然材料,避免使用混凝土这一种给环境造成更多负担的材料。
2.2在建构形式上尽可能反应材料、结构等元素内在的真实逻辑与性质,以及建造过程的痕迹与特征。
Question-2
1. What is the core value of handmade paper as a protected traditional resource today?
2. How should architecture respond to this value as a place to display such resources?
1.1 The ecological value of handmade paper, its green, pollution-free and environment-friendly manufacturing method, reflects the respect for nature.
1.2 The cultural value of handmade paper. The paper itself truly reflects some characteristics of raw materials and traces (even defects) of the manufacturing process. This authenticity reflects an attitude of returning to things themselves.
2.1 In the selection of materials, natural materials with low energy consumption and degradability shall be used as far as possible to avoid the use of concrete, which causes more burden to the environment.
2.2 In the form of construction, reflect the real logic and nature of materials, structures and other elements as well as the traces and characteristics of the construction process.

问题-3
建筑是如何锚固于场地之上?如何与环境结合?
1.应对基地西侧的田野和山景形成U形体量,但这样做面临一个问题,体量太大,与周围格格不入。
2.化整为零,与周围肌理融合——这样使建筑尺度变小,更好的融入环境。
3.画龙点睛——在U形院落中,增加了一个体块,丰富建筑的层次。
4.形体优化,丰富形体层次。
5.体块之间采用连廊连接,且共同处于一个基座之上——强化了各部分体块的连接。
6.提取当地采用的双坡屋顶形式,并进行屋顶的重构
7.体块面对景观层层跌落,进一步强化与景观的呼应。建筑做成几个大小不同、高低错落的体量来组成一个建筑聚落,如同一个微缩的村庄。
Question-3
How is the building anchored on the site? How to integrate with the environment?
1. The field and mountain scenery on the west side of the base should be U-shaped, but there is a problem in doing so. The volume is too large and incompatible with the surrounding area.
2. Break the whole into parts and integrate with the surrounding texture - this will make the building scale smaller and better integrate into the environment.
3. Make the finishing point - in the U-shaped courtyard, an individual block is added to enrich the level of the building.
4. Shape optimization to enrich the shape level.
5. The blocks are connected by corridor, and they are on the same base, which strengthens the connection of each part of the blocks.
6. Extract the local double-slope roof form and reconstruct the roof
7. The block falls in the face of the landscape layer by layer, further strengthening the echo with the landscape. The buildings are made into several volumes with different sizes and staggered heights to form a building settlement, like a miniature village.

问题-4
基地东西向近一米的高差是何如解决的?
建筑依坡地而建,层层跌落,在体块与体块的连接处,用几步台阶缓缓的处理了近一米的高差。同时这些台阶也巧妙的成为了展厅与展厅之间的空间限定。
Question-4
How to solve the height difference of nearly one meter from the east to the west of the base?
The building is built on the slope and falls down layer by layer. At the junction of the block and the block, several steps are used to slowly deal with the height difference of nearly one meter. At the same time, these steps ingeniously limit the space between the exhibition hall and the exhibition hall.

问题-5
1.该建筑采用了什么样的平面布局与流线组织的方式?
2.展览建筑常用平面组合类型有哪些?
(1)平面布局方式采用的U字形半围合的方式;
(2)流线组织方式采用了博物馆常用的顺时针串联的形式;
(1)组团式
优点:对用地形态要求相对宽松;可一次规划,分期实施,新建展厅便于改进,随展览市场的发展而发展;展厅规模多样,便于满足不同需求。
缺点:馆区管理难度比较高;馆区交通不易组织;整体风格容易不统一
(2)鱼骨状集中式
优点:各类人流线、车流线,货运流线清晰明确,互不干扰;可随会展市场的变化,分期实施;展厅的一端为人流进口,另一端为货运进口,清晰明确。
缺点:对建设用地形态有要求。
(3)半鱼骨状集中式
优点:功能集中,便于使用,便于管理,各类流线清晰明确,互不干扰;可随会展市场的变化,分期实施。
缺点:增加了垂直交通,流线相对复杂
(4)围合状集中式
优点:各类人流线、车流线、货运流线清晰明确,互不干扰;可随会展市场的变化,分期实施,从开敞到半围合,最后是围合;展厅的一端为人流进口,另一端为货运入口,清晰明确。
缺点:占地较大,流线较长。
(5)半围合状集中式
优点:各类人流线、车流线、货运流线清晰明确,互不干扰;可随会展市场的变化,分期实施,从开敞到半围合,最后是围合;展厅的一端为人流进口,另一端为货运入口,清晰明确。
缺点:占地较大,流线较长。
Question-5
1. What kind of plane layout and streamline organization is adopted in the building?
2. What are the common plane combination types of exhibition buildings?
(1) The plane layout adopts U-shaped semi-enclosed mode;
(2) The streamline organization adopts the form of clockwise series commonly used in museums;
(1) Group style
Advantages: relatively loose requirements for land use form; It can be planned at one time and implemented by stages. The new exhibition hall is convenient for improvement and develops with the development of the exhibition market; The exhibition hall has a variety of sizes to meet different needs.
Disadvantages: the difficulty of library area management is relatively high; The traffic in the museum area is not easy to organize; The overall style is easy to be inconsistent
(2) Fishbone centralized
Advantages: all kinds of people flow lines, vehicle flow lines, and freight flow lines are clear and clear, and do not interfere with each other; It can be implemented by stages according to the changes of the exhibition market; One end of the exhibition hall is a pedestrian entrance, and the other end is a freight entrance, which is clear and clear.
Disadvantages: There are requirements for the form of construction land.
(3) Semi-fish bone centralized
Advantages: centralized functions, easy to use, easy to manage, various flow lines are clear and clear, and do not interfere with each other; It can be implemented by stages according to the changes of the exhibition market.
Disadvantages: vertical traffic is added, and the flow line is relatively complex
(4) Enclosed centralized
Advantages: all kinds of people flow lines, vehicle flow lines and freight flow lines are clear and clear, without interference with each other; It can be implemented by stages according to the changes of the exhibition market, from open to semi-closed, and finally closed; One end of the exhibition hall is a pedestrian entrance, and the other end is a freight entrance, which is clear and clear.
Disadvantages: large area and long streamline.
(5) Semi-enclosed centralized
Advantages: all kinds of people flow lines, vehicle flow lines and freight flow lines are clear and clear, without interference with each other; It can be implemented by stages according to the changes of the exhibition market, from open to semi-closed, and finally closed; One end of the exhibition hall is a pedestrian entrance, and the other end is a freight entrance, which is clear and clear.
Disadvantages: large area and long streamline.

问题-6
建筑平面是如何进行功能分区的?
服务空间位于后侧条带状体量中,被服务空间位于前侧点状体量中,主辅空间分区明确。
Question-6
How is the building plan divided into functional zones?
The service space is located in the rear strip volume, the serviced space is located in the front point volume, and the main and auxiliary space are clearly divided.

问题-7
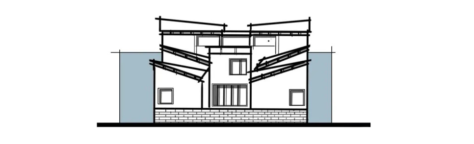
建筑的立面肌理有什么值得学习的地方?建筑该如何组织立面开窗?
展览空间采用了高侧窗设计,使射入的光线更为柔和,更利于观看展品。休闲空间则采用了大面积玻璃落地窗设计。对着景观面开大面积玻璃窗,更利于观景。
开窗形式随着使用功能的变化而变化。开窗的比例与尺度追求和谐与统一。
(1)面向景观面开大面积玻璃窗
(2)展览空间顶部开高侧窗
Question-7
What is there to learn from the facade texture of the building? How should the building organize facade window opening?
The exhibition space is designed with high side windows, which makes the incoming light softer and easier to watch the exhibits. The leisure space is designed with large-area glass floor-to-ceiling windows. Open a large area of glass windows facing the landscape, which is more convenient for viewing.
The form of window opening changes with the use function. The proportion and scale of window opening pursue harmony and unity.
(1) Open large area glass windows facing the landscape
(2) High side window at the top of exhibition space

04
案例总结
Case summary
要点
1.学会问为什么,站在建筑师的角度思考问题。这个场地如果给你,你该如何去设计?学会分析建筑的总平布局,空间形态,造型手法,平面布局等等,主动思考为什么案例会呈现这样的状态。
2.学会精炼每个案例的关键词,用最少的字概括你感兴趣的地方,比如总图、空间、造型、平面、结构等等,便于后期记忆。
3.学会用图示的语言总结案例精彩之处
main points
1. Learn to ask why and think from the perspective of architects. If this site is for you, how do you design it? Learn to analyze the general layout, spatial form, modeling techniques, plane layout, etc. of the building, and take the initiative to think about why the case is in such a state.
2. Learn to refine the key words of each case and summarize the places you are interested in with the least words, such as the general plan, space, shape, plane, structure, etc., for the convenience of later memory.
3. Learn to summarize the highlights of the case in graphical language





项目名称:高黎贡手工造纸博物馆
项目地点:云南腾冲界头乡新庄村(怒江大峡谷的高黎贡山国家级自然保护区)
竣工时间:2008年馆藏精品手工抄纸
项目设计:华黎/TAO迹·建筑事务所
项目功能:博物馆、书店、茶室、办公、客房等
基地面积:315㎡
建筑面积:361㎡
建筑性质:由民间投资的农村公共博物馆
结构形式:木结构、榫卯连接
设计时间:2008-2009年
施工时间:2010年
Project name: Gaoligong Handmade Paper Museum
Project location: Xinzhuang Village, Jietou Township, Tengchong, Yunnan (Gaoligong Mountain National Nature Reserve in the Nujiang Grand Canyon)
Completion time: in 2008, the collection of high-quality handmade paper
Project design: Huali/TAO · Architecture Firm
Project functions: museum, bookstore, teahouse, office, guest room, etc
Base area: 315 ㎡
Building area: 361 ㎡
Nature of building: rural public museum invested by the people
Structural form: wooden structure, mortise and tenon connection
Design time: 2008-2009
Construction time: 2010
