
华黎
********
********
北京市北京市海淀区
个人简介: 1994年毕业于清华大学建筑系,获建筑学学士学位 1997年获清华大学建筑学硕士学位 1999年毕业于美国耶鲁大学建筑学院,获建筑学硕士学位,之后曾工作于纽约Westfourth Architecture 和 Herbert Beckhard - Frank Richlan建筑设计事务所。 2003年回到北京开始独立建筑实践,合作创立UAS普筑设计事务所,期间同时在中央美院和清华大学建筑学院担任建筑设计课程评委。 2009年创立TAO迹. 建筑事务所。 专业成就: 华黎主持设计过的重要项目包括:常梦关爱中心,东北师范大学体育中心,云南高黎贡手工造纸博物馆,四川德阳孝泉民族小学灾后重建等,他的设计作品及访谈获得了时代建筑、世界建筑、建筑学报、domus,AREA,A+U,Abitare, Space, Casabella等国内外建筑媒体的报道。TAO (TRACE ARCHITECTURE OFFICE) 迹. 建筑事务所由建筑师华黎创立于北京,是一家从事建筑、城市、景观及家具设计的设计事务所。TAO 关注建筑中空间和建构的本质意义,以及建筑生产过程对于社会与生态的影响。TAO对建筑在全球化的消费主义语境下沦为时尚符号或形式教条持批判性的态度,对场所意义营造、场地及气候回应、材料与建造方式、资源合理利用等命题的探讨,构成了TAO项目工作的核心内容。
三里屯将将甜品店,北京/建筑&室内
场地位于三里屯北京机电大院内。北京机电大院西侧与三里屯 SOHO 为邻,西北与三里屯 VILLAGE 相邻,属于高消费社区。功能设定为法式甜品店,夜晚兼具酒吧的功能。
The site is located in Beijing Mechanotronics Compound which is inside Sanlitun district. Sanlitun district is one of the upscale neighborhood in Beijing. Sanlitun SOHO is at the west side of the site and Sanlitun Village is at Northwest. TIENSTIENS is a French dessert shop and the roof of it and surrounding buildings are used as a bar during night.
▼ 建筑外观,external view of the building

▼ 屋顶平台,roof terrace

▼ 建筑区位,location

场地面积 59.5 m²,内有两棵胸径为 45cm 的加拿大杨树,并且其中一 棵在 2.5m 高处一次分叉,斜向从场地内伸出到场地外。场地周围也分布着多棵加杨,它们与建筑成相邻或穿插的紧密关系。在场地之外,甲方租用场地北部香港餐厅的屋顶平台作为室外堂食空间使用,面积 189.5 m²,6 棵加杨穿透香港餐厅屋面存在于其上。
The site is only 59.5 sq.m. One of the special features of the site is there are two poplars inside of it. They both have strong trunks of which the diameter are around 45 cm. One of those two trees has a big branch separate from the main trunk at the level of 2.5m. In the meantime, more than ten other poplars are scatter around. The client also rent the roof top of the HK restaurant beside the site as a outdoor terrace which is 189 sq.m. and has 6 poplars stick out from the roof.
▼ 改造前后对比,comparison before and after renovation


▼ 草图和模型展示建筑和树木的关系,sketch and model showing the relationship between the architecture and the trees


甜品店的功能设定一层为甜品展台和厨房,一层以上为用餐区,屋顶用作室外平台供用餐和休憩。设计提出的第一个问题是如何引导顾客在一层购买甜品之后走向二层的就餐空间,再进而走向树冠隐蔽的屋顶平台?作为解决的方案,设计将二层楼板由一个整体分离为三个高度不同的平台,它们漂浮在空中,分离的缝隙让顾客在进门之后即可体会到上层空间的延续和旋转。同时,分散的体量利于建筑与在场地中伸展的树枝构成一种有机的关系。将小尺度空间进一步划分为更小的单元,这样的做法使建筑中的人与人、人与树之间形成更加亲密的关系。
As a dessert shop, the first level has the functions of showing, selling and kitchen. Upper floors are dining area. Roof top is outdoor space which could also be used as dinging space or rest terrace. The main question of this design is how to lead customers to experience the space. As a solution, the design separate the second floor into three different height. By using light steel structure and big area of translucent glass, these small platforms seem floating in the air and make it very easy for customers to feel the spirally space sequence. By this way, the design provide various kinds of contact among people, also, people and trees.
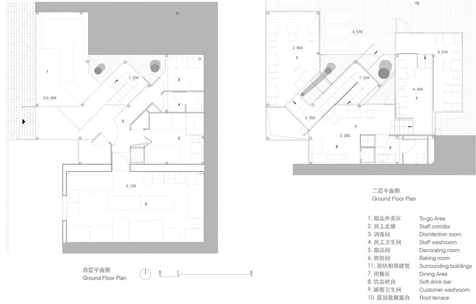
▼ 平面图,plans

▼ 入口的甜品外卖区,地面为区别于白色的灰色,to-go area at the entrance with grey flooring

▼ 设计将二层楼板由一个整体分离为三个高度不同的平台,它们漂浮在空中,分离的缝隙让顾客在进门之后即可体会到上层空间的延续和旋转。The design separate the second floor into three different height. By using light steel structure and big area of translucent glass, these small platforms seem floating in the air and make it very easy for customers to feel the spirally space sequence.

▼ 建筑因两颗大树而分裂为多个不同高度的平台。大小高低各异的空间让人与树木产生不同角度的亲密接触,螺旋向上的楼梯一直穿梭在绿叶枝桠之间。The building splits into platforms on different heights because of those two big trees. Spaces of different scale provide people with various kinds of contact with the trees. Stair goes up spirally until being leaves and branches.



▼ 室内用餐区,玻璃墙面形成充满通透感的空间,interior dining area, glass walls creating a transparent space


▼ 屋顶平面图,roof plan

▼ 从室内用餐区看室外平台,视野开阔,open view of the terrace from the indoor dining area

▼ 室外平台与室内通过玻璃墙分隔,铺地不同,glass walls and different floorings define the boundary of interior and outdoor terrace

▼ 室外平台高低不一,树木穿插于其中,out door terrace in various heights with tree branches stretching into different directions






▼ 剖面图,sections

▼ 剖透视图,perspective section

项目名称:TIENSTIENS甜品店
业主:TIENSTIENS将将甜品店
项目地点:北京,三里屯
项目功能:法式甜品,咖啡,酒吧,厨房
设计单位:迹·建筑事务所(TAO)
主持建筑师:华黎
设计团队:华黎、张锋、李若星、刘沛艺、吴昊
建筑面积:136平方米
结构形式:钢结构
材料:钢 玻璃
设计时间:2014
施工时间:2015
摄影:陈颢
Project title: TIENSTIENS
Client: TIENSTIENS limites
Location: Beijing, Sanlitun
Program: French dessert, coffee, bar, kitchen
Architect: HUA Li / TAO (Trace Architecture Office)
Design team: HUA Li, Zhang Feng, Li Ruoxing, Liu Peiyi, Wu Hao
Floor area: 136 sq. m.
Structural system: steel structure
Material: steel glass
Design: 2014
Construction: 2015
Photography:Chen Hao
