
华黎
********
********
北京市北京市海淀区
个人简介: 1994年毕业于清华大学建筑系,获建筑学学士学位 1997年获清华大学建筑学硕士学位 1999年毕业于美国耶鲁大学建筑学院,获建筑学硕士学位,之后曾工作于纽约Westfourth Architecture 和 Herbert Beckhard - Frank Richlan建筑设计事务所。 2003年回到北京开始独立建筑实践,合作创立UAS普筑设计事务所,期间同时在中央美院和清华大学建筑学院担任建筑设计课程评委。 2009年创立TAO迹. 建筑事务所。 专业成就: 华黎主持设计过的重要项目包括:常梦关爱中心,东北师范大学体育中心,云南高黎贡手工造纸博物馆,四川德阳孝泉民族小学灾后重建等,他的设计作品及访谈获得了时代建筑、世界建筑、建筑学报、domus,AREA,A+U,Abitare, Space, Casabella等国内外建筑媒体的报道。TAO (TRACE ARCHITECTURE OFFICE) 迹. 建筑事务所由建筑师华黎创立于北京,是一家从事建筑、城市、景观及家具设计的设计事务所。TAO 关注建筑中空间和建构的本质意义,以及建筑生产过程对于社会与生态的影响。TAO对建筑在全球化的消费主义语境下沦为时尚符号或形式教条持批判性的态度,对场所意义营造、场地及气候回应、材料与建造方式、资源合理利用等命题的探讨,构成了TAO项目工作的核心内容。
林建筑-与自然树木的共舞,北京/建筑
森林大厦位于大运河森林公园,旨在提供餐饮服务,并举办聚会、展览和商务会议。设计灵感来自树木的形状。第一个想法是在树下创造空间,然后一束束树将创造一个模式和遮蔽空间。人造森林与公园里的天然森林共舞。
Located in Grand Canal Forest Park, Forest Building is supposed to provide catering services and hold reunions, exhibitions and business meetings. The design is inspired by the form of trees. The first idea is to create space under trees, then bunches of trees will create a pattern and sheltered space. The manmade forest dances with the natural woods in the park.
该结构由一个基本单元的重复组成,一个树形柱,带有四个不同高度的悬臂梁。该计划基于锯齿形网格,能够适应现场和现有树木,并在不同的施工阶段实现灵活性。这座建筑坐落在一个浮动的混凝土平台上,保护木结构不受湿气影响。同时,机械装置在混凝土地板下方运行,这样天花板可以自由表达纯粹的结构和空间。
The structure is made from the repetition of a basic unit, a tree like column with four cantilevered beams that varies on height. The plan is based on a zigzagging grid that is capable of adapting to the site and existing trees and achieving flexibility during the different construction phases. The building is sitting on a floating concrete platform, protecting the timber structure from moisture. At the same time, the mechanical installation runs underneath the concrete floor so that the ceiling is free to express the pure structure and space.
这座建筑主要由木头和夯土建造。这些材料能够呼吸,调节室内和室外区域的相对湿度和温度,并将在未来生物降解。玻璃幕墙填充在木结构和外墙上的夯土墙之间,提供了同时置身于人造林和天然林的体验。
The architecture is mainly constructed from wood and rammed earth. These materials are able to breath, adjusting the relative humidity and temperature of indoor and outdoor areas, and will biodegrade in the future. Glass curtain walls are filled between timber structures and rammed earth walls on facades, providing the experience of being in the manmade and natural forest at the same time.
▼暮色下的林建筑,Forest Building in dusk

▼树林间的林建筑,Forest Building dancing with the forest

▼半室外空间,Semi-open space

▼’树’下空间,Canopied space

▼夹层空间,Mezzanine space

华黎:
2011 年, 一位认识多年的朋友找到我, 说想在运河边的树林里建一个房子, 那里环境很好, 但是功能不太确定, 也许可以是餐厅、咖啡馆、酒吧,也可以是展览、会议的地方, 朋友还憧憬了很多其它的也许。建筑对于人来说是场所。我的每一个项目的设计工作都始于对其场所意义的思考。通过对每个空间可能发生的事件中的行为、心理的琢磨、空间的形状、尺度、光线、视线、 氛围等特质会在模糊中逐渐显影。正如路易斯·康所言, 空间是心灵之所 (Room is a place for mind)。然而, 当一个建筑没有很明确的使用功能时, 这种思考会变得漫无目的。这也是我常常怀疑所谓空间的灵活性这一说法的原因。如果空间的特质与使用无法建立关系, 空间应该从何处出发呢? 恰好这个项目就是这样一个例子, 业主对功能的界定非常模糊, 而且以后也还会变, 运营和使用因受整个市场环境的影响而充满不确定性。在中国当前的实践中, 这种功能不确定的建筑可谓非常普遍, 经常出现不明确功能就开始设计或设计过程中甚至建成后功能被改变的情况。这当然很大程度是市场、资本、政策、 土地使用权属等外部条件的善变所致。
Huali:
In 2011, a friend who had known me for many years came to me and said that he wanted to build a house in the forest beside the canal. The environment there was very good, but the function was uncertain. Maybe it could be a restaurant, a cafe, a bar, or a place for exhibitions and meetings. My friend also dreamed of many other possibilities. Buildings are places for people. The design work of each of my projects starts from thinking about the significance of its place. Through the consideration of the behavior, psychology, shape, scale, light, sight, atmosphere and other characteristics of the possible events in each space, they will gradually appear in the blur. As Louis Kang said, Room is a place for mind. However, when a building has no clear use function, this kind of thinking will become aimless. This is why I often doubt the so-called flexibility of space. If there is no relationship between the characteristics and use of space, where should space start? This project is just such an example. The owner's definition of function is very vague and will change in the future. Operation and use are full of uncertainty due to the impact of the entire market environment. In the current practice of China, such buildings with uncertain functions are very common. It often occurs that the design starts or the function is changed during the design process or even after the completion of the building. Of course, this is largely due to the changes in external conditions such as market, capital, policy, land use rights and so on.
▼从通州运河鸟瞰, Bird’s eye view of over Tongzhou

▼华黎手稿,Concept Sketch by HUA Li

意大利的阿基佐姆小组 (Archizoom) 在 20 世纪 60 年代末敏锐地提出, 城市做为资本主导下的生产与消费体系之机制的产物, 大都市已不再是场所 (place), 而变成一种状况 (condition)。1 他们因而提出一种大胆的城市图解—— No-Stop City, 在这个提案里, 城市成为一种同质化的网格体系, 具有连续平面、可无限蔓延、及局部微气候等特征。 Archizoom 藉此宣称城市将成为一个被程序化的、各向同性、无边界的系统, 而所有类型的功能可以在这样一个同质化的领域中 (field) 随机实现。2 城市由此变成了一个无等级、无形的、装备精良的停车场。仔细观察 Archizoom 这个看似疯狂的带有乌托邦设想的平面, 虽然看似这种不确定主义完全消解了我们对建筑作为形式存在的传统认知,但不得不承认 Archizoom 对资本作用下城市空间的形成机制有着深刻的认识与批判性。想想当下的中国, 作为消费对象的建筑之状况与 Archizoom 观察之城市有着惊人的相似性。 建筑短寿、易变、投机、引起欲望又很快被厌倦。面对这种无处不在的状况, 建筑是否存在一种策略可以去应对这种使用的不确定性? 是否可以有一种均质、蔓延、无等级的 No-Stop Architecture 在容纳这些易变的需求同时营造建筑自身的特质?
In the late 1960s, Italy's Archizon Group keenly proposed that cities, as the product of the mechanism of the capital-led production and consumption system, are no longer places but conditions. Therefore, they put forward a bold urban diagram - No-Stop City. In this proposal, the city becomes a homogeneous grid system with features of continuous plane, infinite spread, and local microclimate. Archizon hereby declares that the city will become a programmed, isotropic and borderless system, and all types of functions can be randomly realized in such a homogeneous field. The city has thus become a non-hierarchical, intangible and well-equipped parking lot. Careful observation of the seemingly crazy plane with Utopian imagination of Archizonm, although it seems that this kind of uncertainty completely dispels our traditional cognition of the existence of architecture as a form, we have to admit that Archizonm has a deep understanding and criticism of the formation mechanism of urban space under the influence of capital. Think about China at present. The status of buildings as consumer objects is strikingly similar to the cities observed by Archizon. The building is short-lived, changeable, speculative, arousing desire and soon tired. In the face of this ubiquitous situation, is there a strategy for architecture to deal with this uncertainty of use? Can there be a homogeneous, spreading, non-hierarchical No-Stop Architecture that can accommodate these volatile needs while creating its own characteristics?
▼Archiczoom“不停”城市,Archizoom ‘no-stop’ city

这促使我思考这样一个问题, 是否存在可以脱离场所意义而存在的具有自主性的建筑形式, 也就是说建筑的特质是否可以独立于如何使用以回应当下实践中普遍存在的功能不确定性。这个问题在信奉形式具有自治性的形式主义者看来, 当然完全不是问题。然而问题的关键在于, 什么样的空间形式适合于这种功能不确定性呢? 当我们想象空间时, 显然无法脱离对顶、地、墙这些面的要素的依赖, 因为如果没有这些边界, 那么空间也就不存在。墙在所有要素中对功能的作用最为凸显,划分不同的功能空间、限定空间的尺度、控制建筑内部的空间组织, 这些均离不开墙。墙作为空间限定元素以及结构支撑体的双重作用到了现代建筑运动中被消解, 空间限定与结构的角色分离使墙得以以更自由的形态出现。功能的不确定似乎往往对应于墙体的消解, 空间变得模糊而流动。而对现代建筑空间的体验也需要人在运动中去感受, 相对于古典空间的完形和静态。如果建筑的功能完全不确定, 墙是否还有存在的必要? 密斯的均质空间从早期的巴塞罗纳馆到 晚期的柏林国家美术馆, 可以看到墙体的逐步消失使流动空间发展到最后归于完全开放无形的空间。而当建筑中的墙体消失时, 剩下的垂直构件就惟有柱子了, 由柱子和屋顶形成的开放空间来应对功能的变化。建筑成为一种结构, 而如密斯所言, 专注于清晰的结构并非局限, 反而有助于更多可能。
This prompted me to think about the question of whether there is an autonomous architectural form that can be separated from the meaning of the place, that is, whether the characteristics of the building can be independent of how to use it to respond to the general functional uncertainty in practice. This problem is certainly not a problem for formalists who believe in the autonomy of form. However, the key question is, what kind of space form is suitable for this functional uncertainty? When we imagine space, we obviously cannot get rid of the dependence on the elements of the top, the ground and the wall, because without these boundaries, space would not exist. Wall plays the most prominent role in the function of all elements. It is indispensable to divide different functional spaces, limit the scale of space, and control the spatial organization inside the building. The dual role of wall as a space limiting element and a structural support has been dissolved in the modern architectural movement. The separation of space limiting and the role of structure makes the wall appear in a more free form. The uncertainty of function often seems to correspond to the dissolution of the wall, and the space becomes fuzzy and flowing. The experience of modern architectural space also needs people to feel in motion, relative to the gestalt and static of classical space. If the function of the building is completely uncertain, is it necessary for the wall to exist? From the early Barcelona Museum to the late Berlin National Art Museum, the homogeneous space of Miz can be seen that the gradual disappearance of the wall makes the flowing space develop into a completely open and invisible space. When the wall in the building disappears, the only remaining vertical component is the column. The open space formed by the column and the roof responds to the functional changes. Architecture has become a kind of structure, and as Mies said, focusing on clear structure is not limited, but helps more possibilities.
当我观察项目所在基地时, 有一个有趣的发现, 项目位于运河边的公园里, 基地里有大片树林, 树具有天然的空间的遮蔽感, 坐在树下看风景是一种美妙的感受。而树林这种随处可见的形态实际上就像柱子和屋顶形成的一个匀质空间, 这是由均匀分布的树干和横向生长的树冠共同形成的, 而林下空间是一个连续的、无明确方向性的、水平方向可以无限延伸的空间, 自然成为一个可以停留、也可漫游的自由而惬意的场所。正如在树林中可以发生很多不同的活动, 散步、休憩、野炊等等。我开始想象建筑内部就如在林下空间里就餐、聊天、聚会的场景, 当光线从上面洒下来还可以创造很动人的气氛。
When I observed the base where the project is located, I had an interesting discovery. The project is located in the park beside the canal. There are large forests in the base. The trees have a natural sense of space. It is a wonderful feeling to sit under the trees and watch the scenery. The form of the forest that can be seen everywhere is actually like a homogeneous space formed by columns and roofs, which is formed by evenly distributed trunks and transversely growing tree crowns, while the space under the forest is a continuous, undirected, horizontally extending space, which naturally becomes a free and comfortable place to stay and roam. Just like many different activities can take place in the forest, such as walking, resting, picnics, etc. I began to imagine that the interior of the building was like the scene of dining, chatting and gathering in the space under the forest. When the light was sprinkled from above, it could also create a very moving atmosphere.
▼华黎手稿,Concept Sketch by HUA Li

受到树林形态和规律的启发, 一个如同林下空间可以无限蔓延的建筑空间的想法浮现出来: 建筑由一些树形结构来支撑, 树的枝干将相互连成一种结构形式并在其遮蔽之下形成空间。这样一个空间具备这样的要素:1. 柱子, 而非墙, 与屋顶成为形成整个建筑的基本要素; 2. 柱子呈现一种均匀网格单元的排布; 3. 边界是自由的。这些特征皆是来自于对树林的观察。树, 作为空间原型, 本身就隐含了“单元”的概念。一棵树作为基本单元, 可以被复制, 而成为林。这一状况就暗含了一种基于网格的均质空间的特性。树林不正是这样一种空间状态吗? 树林还具有这样的特征: 边界自由、可无限延伸, 因此建筑如果是这样的空间体系, 可以很好地适应场地, 例如自由地边界可以很好地结合地形、 避让要保留的树木。而可延伸则意味着平面的灵活性, 可以在任意处截断, 因此很适合分期建设, 而每一期建设的平面自身都具有完整性——因为边界是自由的。由此形成的平面正是一个没有等级的场域 (field), 而非一个形状。就如你不会太记得树林的形状, 只记得树林里的氛围。而基于树状结构单元的体系从建造上则可以采用预制装配式的建造方式, 以适应在公园里建造的条件, 缩短工期, 减少对环境的影响。
Inspired by the shape and law of the forest, the idea of an architectural space that can spread infinitely like the space under the forest emerged: the building is supported by some tree-shaped structures, and the branches and trunks of the trees will connect into a structural form and form space under its shelter. Such a space has such elements: 1 Columns, not walls, and roofs become the basic elements of the whole building; 2. The column presents a uniform grid element arrangement; 3. The boundary is free. These characteristics come from the observation of the forest. As a spatial prototype, tree itself implies the concept of "unit". As a basic unit, a tree can be copied and become a forest. This situation implies the characteristics of a grid-based homogeneous space. Isn't the forest such a space state? The forest also has the following characteristics: the boundary is free and can be extended indefinitely. Therefore, if the building is such a space system, it can well adapt to the site. For example, the free boundary can well combine the terrain and avoid the trees to be reserved. Extendability means the flexibility of the plane, which can be cut off at any place, so it is very suitable for construction by stages, and the plane of each phase has its own integrity - because the boundary is free. The resulting plane is a field without hierarchy, not a shape. Just like you can't remember the shape of the forest, only the atmosphere in the forest. The system based on the tree-like structure unit can be constructed in prefabricated way to adapt to the conditions of construction in the park, shorten the construction period and reduce the impact on the environment.
基于上述种种, 设计开始自然演进。首先发展的是以柱子为中心并伸出四条悬臂梁的树状结构单元, 然后是确定格网的尺度, 这与想营造的空间高度具有一定的比例关系。梁柱单元在格网基础上重复组合形成整体的空间结构。柱网非常规则, 就如停车场, 只是让梁的轴线加了些曲折以获得些变化; 柱子的高度有三种, 正如自然的树, 类型相同但每一棵又不尽相同, 这样整体的空间就产生了起伏, 而屋顶也成为一个生动的人造景观。自然真是给予我们的想象无尽的养分。应该说, 这样一种基于单元同构而又允许适当变化的生成方法很好地实现了控制与自由的关系, 即可标准化生产, 又能制造丰富性。这类似于伍重基于对植物的观察发展出加法建筑 (additive architecture) 的方法, 也类似阿尔托提出的灵活标准化 (flexible standardization)。
Based on the above, design began to evolve naturally. The first step is to develop a tree-like structure unit centered on a column and extending four cantilever beams, and then to determine the scale of the grid, which is proportional to the height of the space to be built. Beam-column elements are repeatedly combined on the basis of grid to form an overall spatial structure. The column grid is very regular, like the parking lot, which only makes the axis of the beam add some twists and turns to obtain some changes; There are three heights of columns, just like natural trees, which are of the same type but different from each other, so that the overall space will fluctuate and the roof will become a vivid artificial landscape. Nature really gives our imagination endless nutrients. It should be said that such a generation method based on unit isomorphism and allowing appropriate changes well realizes the relationship between control and freedom, which is standardized production and can also produce richness. This is similar to Wu Chong's method of developing additive architecture based on the observation of plants, and is also similar to the flexible standardization proposed by Alto.
▼华黎手稿,Concept Sketch by HUA Li

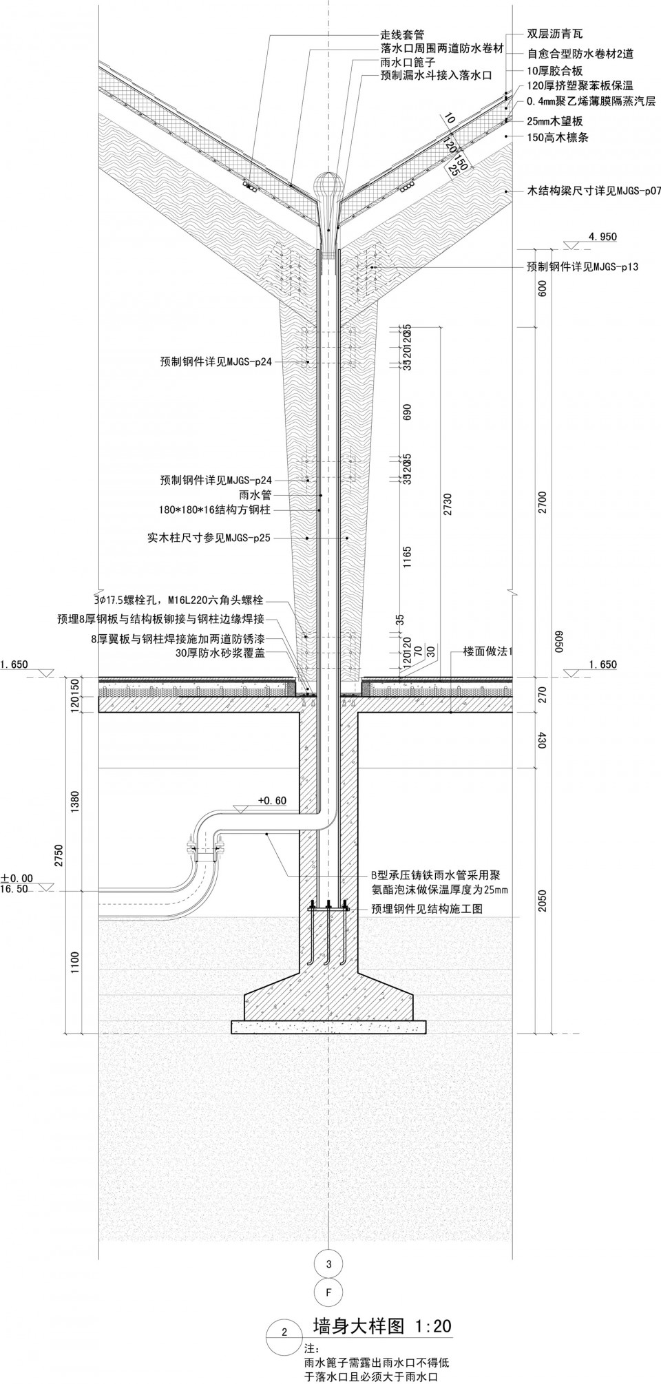
这样一个出发点, 让我们自然而然地选择了木结构——木材的轻质、加工安装快等特性, 以及材料营造的氛围都符合设计意图。我们让整个木结构的建筑座落在一个从地面上抬 起的混凝土平台上, 一方面有利于木结构防潮, 另一方面将机电设备系统及检修空间布置于平台之下, 使屋顶解放出来不用再做吊顶,还原为纯粹的结构和空间。结构单元形成漏斗状的屋面单元, 雨水汇聚后从隐藏在柱子中心的雨水管流到平台下面。建筑外部为了强调树形结构的形式, 有意识地将结构呈现在立面上。木材本身是隔热材料, 技术上恰好可以这样做。建筑的围护墙体则采用不同的材料以凸显结构。围护结构以玻璃幕墙为主, 以便外部的风景最大化地进入内部。实体部分则就地取材采用现场基础施 工挖出来的土做成夯土墙, 夯土可以自然呼吸, 有效调节室内的相对湿度。作为主体材料的木材和夯土, 一方面它们的自然质感呼应了场地中的泥土与树木, 另一方面, 由于木和土都是理想的保温隔热材料, 无需再单独做保温,结构和墙体都是单纯的实体构造而且内外一致, 因此建筑从外部和内部均使得结构和墙体的建构关系得以清晰呈现。室内的形式逻辑是夹层、房间等空间元素均采用其他材料 ( 钢板、夹纸玻璃等 ) 与木结构在视觉上脱离, 形成或悬浮或散落于木结构所营造的树林空间之中的意象。
With such a starting point, we naturally chose the wood structure - the light weight of wood, fast processing and installation, and the atmosphere created by the materials are in line with the design intent. We let the whole wooden structure building be located on a concrete platform lifted from the ground. On the one hand, it is conducive to the moisture-proof of the wooden structure. On the other hand, we will arrange the mechanical and electrical equipment system and maintenance space under the platform, so that the roof will be free from the need to be used as a ceiling, and return to the pure structure and space. The structural unit forms a funnel-shaped roof unit, and the rainwater converges and flows from the rainwater pipe hidden in the center of the column to the bottom of the platform. In order to emphasize the form of tree structure, the exterior of the building consciously presents the structure on the facade. Wood itself is a thermal insulation material, which can be done technically. The enclosure walls of the building use different materials to highlight the structure. The enclosure structure is mainly made of glass curtain walls to maximize the access of the external scenery to the interior. For the solid part, the soil excavated from the site foundation construction is used to form a rammed earth wall. The rammed earth can breathe naturally and effectively regulate the indoor relative humidity. As the main material, wood and rammed earth, on the one hand, their natural texture echoes the soil and trees in the site; on the other hand, since wood and earth are ideal thermal insulation materials, there is no need to separate thermal insulation, and the structure and wall are both simple solid structures and consistent inside and outside, so the construction relationship between the structure and the wall can be clearly presented from the outside and inside of the building. The formal logic of the interior is that the interlayer, room and other space elements are separated from the wood structure visually by other materials (steel plate, paper glass, etc.), forming or floating or scattered in the forest space created by the wood structure.
地面的碎拼石板意在加强空间的无方向性, 深灰色调则加强木结构从地面的上升感。屋面的木瓦外露表面完全不做防腐处理, 经过自然风化后色彩将变灰以期更融入环境。室内的照明主要由两种灯光构成, 悬吊于 3m 高度的灯罩满足地面照度的同时, 在夜晚的高空间中又形成了一个低空间尺度, 以保证人在坐下来时候的尺度亲密感。在柱子和梁交接处的洗顶灯则完成了对顶部结构空间的描绘, 使得在晚间屋顶的空间形式可以被感受到。
The broken stone slabs on the ground are intended to strengthen the directionality of the space, while the dark gray tone strengthens the rising sense of the wood structure from the ground. The exposed surface of the shingles on the roof is not subject to anti-corrosion treatment at all. After natural weathering, the color will turn gray in order to better integrate into the environment. The indoor lighting is mainly composed of two kinds of lights. While the lampshade suspended at a height of 3m meets the ground illumination, a low space scale is formed in the high space at night to ensure the scale intimacy when people sit down. The ceiling lamp at the junction of the column and the beam completes the description of the roof structure space, so that the space form of the roof can be felt at night.
▼华黎手稿,Concept Sketch by HUA Li

在完成的建筑中游走, 空间本身不具有明显的方向性。视线总因循于外面的风景, 正如在树林中漫步。家具与陈设布置的变化赋予空间完全不同的使用方式, 容纳不同的活 动——展览、酒会、婚礼等等。在这个建筑里, 场所的特质因此不依赖于某种特定的使用方式而更多依附于建筑本身——空间与结构的形式、材料、光线, 以及它们与场地共同作用所形成的氛围。
Walking in the completed building, the space itself does not have obvious directionality. The view always follows the scenery outside, just like walking in the woods. The changes in furniture and furnishings give the space a completely different way of use to accommodate different activities - exhibitions, cocktail parties, weddings, etc. In this building, the characteristics of the place do not depend on a specific way of use, but more on the building itself - the form of space and structure, materials, light, and the atmosphere formed by their interaction with the site.
林建筑项目位于北京通州运河森林公园,提供餐饮、聚会、展览、会议等服务。设计受树木形状启发,最初的想法是创造一个树下的空间,那么树的枝干将相互连成一种结构形式并在其遮蔽之下形成空间。这样在公园里,人工的森林将与自然的树木共舞。
Located in Grand Canal Forest Park, Forest Building is supposed to provide catering services and hold reunions, exhibitions and business meetings. The design is inspired by the form of trees. The first idea is to create space under trees, then bunches of trees will create a pattern and sheltered space. The manmade forest dances with the natural woods in the park.
以柱子为中心并伸出四条悬臂梁的树一般的基本单元, 在合理的高度变化控制下重复组合成结构。
The structure is created from repeating a modular unit, a trunk-like column with four cantilevered beams which vary in height.
▼结构单元模型 1:30,Structure unit model 1:30

▼柱结构模型 1:1,Column structure model 1:1

▼平面基于有些曲折的规律格网, 它的边界自由, 便于绕开场地现存树木并获得分期施工的灵活性。The plan is based on a grid system that is capable of extending freely on the site without disturbing the existing trees, hence achieving flexibility during multiple construction phases.

▼结构模型 1:50 Structure,model 1:50

▼梁柱轴测图,Beam and column axonometric drawing


▼整体模型 1:100 ( 不带屋顶 ),Site model 1:100 (Without roof)


▼首层平面,Ground floor plan

▼整体模型 1:100 ( 带屋顶 ),Site model 1:100 (with roof)


建筑座在“飘浮”于地面的混凝土平台上, 这样一方面有利于木结构防潮, 另一方面, 将机电设备服务层布置于平台之下,使屋顶下部解放出来,还原为纯粹的结构 和空间。
The building sits on a ‘floating’ concrete platform, which protects the timber structure from moisture, and at the same time hides the utilities underneath. So that the ceiling is free to express structure and space to the utmost.
▼剖面图 ,Section

建筑主体材料为木和夯土,它们的自然质感呼应了场地中的泥土与树木。 这些材料可以自然呼吸, 有效调节室内外的相对湿度温度, 将来也可自然降解回归自然。立面上木和夯土墙间以玻璃幕墙填充, 为室内使用者提供了同时身处人工与自然森林间的感受。
The architecture is mainly constructed from timber and rammed earth. These materials are able to breath, adjusting the relative humidity and temperature between the inside and the outside. They are also able to biodegrade in the future. Glass curtain walls fill up the area between timber structures and rammed earth walls on facades, providing the experience of being in the manmade and natural forest at the same time.
▼一期分解轴测图,Axon Diagram

▼1比100 整体模型,1:100 Physical Model

▼1比50 整体模型,1:50 Physical Model

▼漂浮于地面之上,Floating above the ground

▼半室外空间,Semi-open space

▼天井,Courtyard


▼树下空间,Space underneath trees

▼屋顶 ,Ceiling

▼咖啡厅夹层上的空间,Mezzanine space in cafe area

▼咖啡厅区,Cafe area

▼会议区休息厅,Lounge in meeting



▼黄昏下的夯土墙,Rammed earth wall in dusk light

▼夯土墙与屋顶节点细节,Details of rammed earth wall and ceiling

▼木瓦屋顶俯视,View of the wood shingle roof

▼夜色中的林建筑,Nightview of Forest Building


▼基础及柱单元施工,Construction of foundation and modular units

▼木结构工厂加工,Timber structure manufacturing in the factory

▼木梁柱加工,On-site manufacturing of wood columns

▼木梁柱细节,Wood column detail

▼金属件联接木结构梁柱,Wood girders joined by metal connection



▼夯土墙施工,Construction of the rammed earth wall

▼夯土原料,Raw materials of the rammed earth
1. 小碎石,Gravel 2. 基础施工挖出的土料,Earth of the site

3. 铁黄,Ferrite yellow 4. 与水泥拌合后的混合料,Mixture with cement

▼夯土墙颜色,rammed earth wall colour

▼主梁次梁上安装檩条后及覆盖屋面后的夹层,Construction of beams, joists, and ceiling

▼木结构及屋顶局部仰视,Wood ceiling detail

项目信息
项目名称:林建筑
业主:北京美景天成投资有限责任公司
项目地点:北京大运河森林公园
项目功能:接待,餐厅,会议,酒吧,办公
设计单位:迹·建筑事务所 (TAO)
主持建筑师:华黎
设计团队:华黎,赵刚,姜楠,赖尔逊,陈恺,Alienor Zaffalon,张芝明,Elisabet Aguilar Palau,张雅楠
建筑面积:4000 平方米 ( 一期:1830 平方米 )
结构形式:木结构
设计时间:2011-2013
施工时间:2012-2014
摄影: 金秋野,夏至,苏圣亮
Credits and Data
Project title: Forest Building
Client: Beijing Meijingtiancheng Investment Co., Ltd. Location: Grand Canal Forest Park, Beijing, China Program: reception, restaurant, conference, bar, office Architects: Trace Architecture Office (TAO)
Principal architect: HUA Li
Project team: HUA Li, Zhao Gang, Jiang Nan, Lai Erxun, Chen Kai, Alienor Zaffalon, Zhang Zhiming, Elisabet Aguilar Palau, Jodie Zhang
Floor area: 4000 sq. m. (phase 1: 1830 sq. m.)
Structural system: glued laminated timber structure Design: 2011-2013
Construction: 2012-2014
Photographs: Jin Qiuye, Xia Zhi, Su Shengliang
Drawings:TAO (Trace Architecture Office)
Chinese Texts:TAO (Trace Architecture Office)
English Texts:TAO (Trace Architecture Office)
