
左龙
********
********
广东省深圳市罗湖区
“‘梓’在古汉语中有匠人的意思,‘集’就是集合……我们一直很关注社区,里面也有一份乡梓之情的意思……工作室设在深圳,主要是因为空气比较好,当然行业的空气也很新鲜,不太受约定俗成的话语体系束缚。”我们希望将设计作为主推力量,积极参与社区营造、城乡更新与文化保护。
GEEMU积木酒店,阳朔 / 建筑
GEEMU积木酒店是倡导亲子互动、在地文化体验和多业态融合的小型精品度假社区,位于广西阳朔,由一座毛坯民居改造而成。项目探索了当下乡村最为普遍的快速自建房,如何被重新赋予建筑和社区意义。
GEEMU Resort is a boutique hotel that explores local culture through community building and a child-friendly design. It is located in the ethereal town of Yangshuo, China, on a former self-built structure. The project explores the strategies to transform an archetypal building into an architectural and community significance.
2016年初,阳朔高铁站通车,兴坪成为华南短途度假热门目的地,当地酒店产业如雨后春笋,杂芜的农家乐聚落迅速形成乡间新的日常。村民们拆掉老屋在宅基地上争相盖起高大的混凝土新房,满心欢喜地等候外地人租下来开设酒店——就像许多村庄一样,兴坪古宅依偎、遗世独立的日子已成过往。
With the opening of high-speed train station in early 2016, Xingping County suddenly rose to be a tourism destination in southern China. Hotels and guesthouses have been sprouting alongside the river, and local residents have since built many concrete houses in hopes of leasing them to visitors.
积木的前身就是该状态下的产物。我们初次到现场时,面对这处毫无故事、低效无趣的空间,也一时语塞。基地西南方向视野相对开阔,但北侧紧贴山体,甚至有些逼仄,建筑的集中大体量相比周围低矮散落的土砖民居也有些格格不入。
In the context of GEEMU’s conception, when we initially arrived at the site, we were at loss with the banality and low-efficiency of the given space. It was located perhaps too close to the hill and its volume was a bit imposing in contrast to the small rural houses that surrounded it.
改造充分接纳现实语境,并寻求一种新的介入与共存关系。现场条件不稳定,用地范围和权属关系一直变化,因此设计根据相对确定的要素从内向外做出回应,加上现状结构限制,建筑原有主体部分继续承载主要居住功能,新的功能需求则以小体量的方式在原有体量上外溢,对话周边民居的同时削减了原有体量。建筑主体立面为水刷石,小体块则沿用当地老房子纸筋灰剥落后的土砖色加以区分强化。
The strategy was to accept the existing conditions and establish co-existence with the new. Constrained by structure and changing conditions of property rights, the main part of the building is maintained as a living space, as originally envisioned, while new programs protrude out in smaller boxes, posing conversational gestures with its surrounding, and compromising its scale. The main facade is finished with granite-stucco coating, while the boxes are earth-colored to mark their difference.
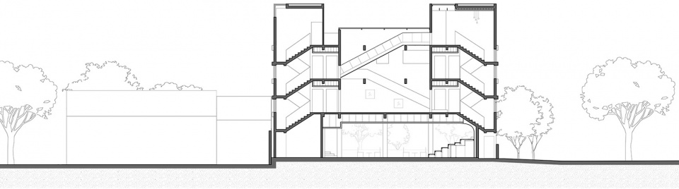
和很多其他面积冗余的自建房一样,原建筑仅首层为村民自住使用,但展现出的通透性令人印象深刻。这源于当地人对高品质居住空间的理解:充分的层高、宽敞的跨度、真材实料的混凝土框架,过大使用面积带来的低效含糊的功能划分也是奢侈感的体现。项目首层延续了室内外的模糊与通透,将前台、餐厅等服务性功能集中在西侧,最大化呈现完整开放的公共空间,设置了剧场、阅览等多种功能,并通过前厅移门和4X3米的大玻璃推拉门开合,为多种活动和未来运营提供了包容性。
The ground floor has an impressive permeability, due to its original height and large span, the concrete frames were all optimized tectonically. The new lobby area inherits and celebrates this ambiguity of indoor-outdoor, by integrating the reception, dinning and service areas to the west, maximizing the public space with theater, playground, reading room and more. Furthermore, the sliding doors and large 4x3m glass doors create versatile and generous stage for future events.
首层以上现有的承重砖墙可改动的余地不大,为了房间类型的丰富度,我们把中间一户均分并划到两侧,为儿童留出了半独立的卧室和玩耍空间,形成主次空间渗透的亲子居住体验。室内和环境丰富的相处关系,则通过墙体、玻璃、玻璃砖等材质组合来塑造。
There are few spaces in the structural system to maneuver above ground floor, however, the renovation divides the middle room as an addition to the side rooms, creating a child scaled bedroom and play area within a suite, which is connected to the atrium and free from regular circulation. Interiorized relationships with surroundings are molded by walls, glasses and brick glasses.
垂直方向增加中庭进行联系,也改变了平面的平铺直叙。原本黑暗的走廊变成空间的核心,在光线洒下来的那一刻所有人都很兴奋:一个竖向上毫无特质的建筑,终于展现了新的可能。借助两组长滑梯,中庭被组织成另一个动态活动中心,孩子和大人都可以快速穿梭在2-4层间,“楼梯间-走廊”构成的固定关系被打破。几个空间的划分动作同时吻合结构体系的加固原则,中间户的分割和中筒的置入,都是对结构整体性的强化。
The atrium, introduced as a vertical intervention to change horizontal organization of the plan transformed the previously dark hallways into a lit up space and full of possibilities. With two long slides, the atrium provides new dynamics and breaks the regular circulation and connect the floors as one space. The division of the middle room and installation of core-wall established the principles of structural reinforcement.
积木并非只是提供标准服务的“住”,而在一开始便被想象成一种介于酒店和幼儿园之间的独特场景。同样,积木不止于儿童,它希望用空间激发好奇心和社群交互,传递明晰的态度和细节,描绘属于成人和孩童各自的玩乐和审美趣味。
GEEMU doesn’t seek standardized residence and service, but a new comfort zone in between hotel and kindergarten. The space inspires curiosity and interaction through details. In contrast with the fragmented digital age, the building paints a distant yet consoling vision of innocence and intimacy.
项目名称:GEEMU积木酒店
项目地点:中国广西省桂林市阳朔兴坪镇
占地面积:1,000 m²
建筑面积:1,194 m²
设计时间:2017年11月-2018年11月
建成时间:2019年5月
建筑、室内及景观设计:梓集
设计团队:左龙、Alex Lara、李昌锭、陈露冰、赖钊琪、林仕成、程梅、唐一凡、姜云洁
结构与机电顾问:雷振海
施工方:王占军、李彦庚等
摄影师:张超、刘景媛、田阳
微信公众号:GEEMU2019
Name: GEEMU Resort
Location: Xingping County, Guilin, Guangxi Province, China
Status: Completed
Site Area: 1,000 sqm
Floor Area: 1,194 sqm
Year: May 2019
Design: fabersociety
Team: Long Zuo, Alex Lara, Changding Li, Lubin Chen, Zhaoqi Lai, Shicheng Lin, Mei Cheng, Yifan Tang, Yunjie Jiang
Photography: Chao Zhang, Jingyuan Liu, Yang Tian
Construction: Zhenhai Lei
WeChat: GEEMU2019



















