
华黎
********
********
北京市北京市海淀区
个人简介: 1994年毕业于清华大学建筑系,获建筑学学士学位 1997年获清华大学建筑学硕士学位 1999年毕业于美国耶鲁大学建筑学院,获建筑学硕士学位,之后曾工作于纽约Westfourth Architecture 和 Herbert Beckhard - Frank Richlan建筑设计事务所。 2003年回到北京开始独立建筑实践,合作创立UAS普筑设计事务所,期间同时在中央美院和清华大学建筑学院担任建筑设计课程评委。 2009年创立TAO迹. 建筑事务所。 专业成就: 华黎主持设计过的重要项目包括:常梦关爱中心,东北师范大学体育中心,云南高黎贡手工造纸博物馆,四川德阳孝泉民族小学灾后重建等,他的设计作品及访谈获得了时代建筑、世界建筑、建筑学报、domus,AREA,A+U,Abitare, Space, Casabella等国内外建筑媒体的报道。TAO (TRACE ARCHITECTURE OFFICE) 迹. 建筑事务所由建筑师华黎创立于北京,是一家从事建筑、城市、景观及家具设计的设计事务所。TAO 关注建筑中空间和建构的本质意义,以及建筑生产过程对于社会与生态的影响。TAO对建筑在全球化的消费主义语境下沦为时尚符号或形式教条持批判性的态度,对场所意义营造、场地及气候回应、材料与建造方式、资源合理利用等命题的探讨,构成了TAO项目工作的核心内容。
武夷山竹筏育制场设计,福建/建筑
来自建筑师:文章介绍了武夷山竹筏育制场项目的背景、地域特征、设计思想和建造过程,分析设计中对结构、采光、通风、尺度、材料、建造等问题的具体考虑,提出工业建筑可以回归到对建筑本体问题更单纯地探讨,作为对当代建筑过多被文学或哲学话语所裹挟的现象的一种反思。
form the architect : The essay describes the background, regional condition, design concept and construction process of Wuyishan Bamboo Raft Factory Project, and explains architect’s consideration on structure, natural light, ventilation, scale, material, and construction. It addresses the issue that industrial architecture could go back to fundamental discussion of ontological aspects in architecture, as a reflection of phenomena that contemporary architecture is often theorized by literary or philosophical discourse.
▼ 从南面茶山俯瞰,South view from the hill


这座建筑群位于乡村兴村的高原上,是竹筏的制造和储存设施,用于在武夷山附近的九弯河上航行旅游。每年冬季收获22000根竹茎,经过一段储存期后,每年用于制造1800个竹筏。在工厂建造之前,木筏生产分散在小型车间。将制造集中在一个工厂是对效率要求的回应。
Located atop a plateau in the rural Xingcun village, the building complex is a manufacturing and storage facility of bamboo rafts, used to sail the nearby Nine Bend River in Wuyi Mountain for tourism. Each winter 22,000 bamboo stems are harvested which, following a storage period, are used to manufacture 1,800 bamboo rafts annually. Before the construction of the factory, raft production was scattered in small workshops. The centralization of the manufacturing in a single factory responds to a demand of efficiency.
其建筑和布局反映了不同的规划、地形和气候要求。
Its architecture and layout reflect distinct programmatic, topographical, and climatic requirements.
▼ 从西南面茶山远看,Distance view from the southwest hill

一系列三座建筑构成了围绕庭院的工厂建筑群:一座竹子仓库、一座木筏制造车间、一座办公楼和宿舍楼。冬季,竹茎占据庭院进行干燥。周围建筑物根据盛行风向布置,以实现通风。它们的深度经过优化,以最大化庭院空间,并允许自然光更深入地进入室内。仓库建筑位于场地的西南侧,强调了整体设计的线性条件,因为这种布置有助于竹茎的通风和干燥。
A series of three buildings conform the factory complex around a courtyard: A bamboo storage warehouse, a raft manufacturing workshop, and an office and dormitory building. Bamboo stems occupy the courtyard for drying process during winter. The surrounding buildings are arranged according to prevailing wind directions to achieve ventilation. Their depth is optimized to maximize courtyard space and allow greater penetration of natural light into the interior. The warehouse building, placed along the southwest side of the site, emphasizes the linear condition of the overall design as this arrangement facilitates the ventilation and drying of the bamboo stems.
“L”形制造车间容纳六个防火区,用于弯曲竹子和组装木筏。车间内部为开放式布局,工作空间需14米跨度。自然光通过倾斜的天窗进行过滤,天窗朝向北方,以获得更柔和、均匀的光线。除了工作区,车间还设有休息空间、储藏室、卫生间、庭院和其他服务功能。
The “L” shaped manufacturing workshop accommodates six fire areas for the bending of the bamboo and the assembling of rafts. The interior of the workshop is an open layout of 14 meters span required for the working space. Natural light is filtered through oblique skylights, which are oriented northward in order to get softer and homogeneous light. Aside from the working areas, the workshop houses resting spaces, storage rooms, restrooms, courtyards, and other service functions.
▼ 从毛竹晾晒场看大车间和办公宿舍楼全景,General view of big workshop and office building from the courtyard

办公室和宿舍楼采用阳台布局,办公室位于一楼,宿舍和自助餐厅位于二楼。沿着阳台用竹子茎形成遮阳百叶窗,这也提供了良好的通风隔热。
The office and dormitory building adopts a veranda layout, with offices occupying the first floor, and dormitory and cafeteria occupying the second floor. Bamboo stalks are applied along the veranda to form shading louvers, which also provide well-ventilated insulation.
整个建筑群用混凝土、竹子、木材和其他当地材料建造。结构采用现浇混凝土,墙体采用空心混凝土砌块。由于厂房不需要保温,其外墙由水平铺设的空心砖制成,这也提供了充足的通风。
The entire complex is built in concrete, bamboo, wood, and other local materials. In-situ concrete is used for the structure, and hollow concrete blocks for the wall system. Since the factory building does not require heat preservation, its outer walls are made with horizontally-laid hollow bricks, which also provide adequate ventilation.
该项目的工业特性阻止了多余的设计;通过使用最基本的元素来构建,建筑自然地揭示了其结构和材料逻辑。该项目将美学简洁与经济手段相协调,通过这种手段,建筑可以展示其形式和功能的解决方案。
The industrial character of the project discourages superfluous design; by using the most basic elements for its construction, the architecture naturally reveals its structural and material logic. The project reconciles aesthetic simplicity with an economy of means, by which the architecture can demonstrate its resolution of form and function.
▼ 东北面夜景,Night view from the northeast field


背景 | background
武夷山作为世界自然和文化遗产,每年要接待大量游客,旅游业成为当地主要产业。九曲溪竹筏漂流是武夷山旅游中一个重要项目,游客乘坐竹筏沿九曲溪顺江而下,武夷山核心景区的风景可以尽收眼底。竹筏是一种南方常见的水上交通工具,历史悠久。武夷山的竹筏采用当地毛竹制作,一般一张筏由八根毛竹制成,长约八九米,宽约一米,漂流时将两张筏并成一张,上置竹椅,可乘六人,由两名排工撑船。由于江水湍急,竹筏会与江边的岩石发生许多磕碰,加上竹材本身易腐,因此竹筏寿命一般在半年左右。而竹筏漂流接待的游客数量巨大(每年120万人,最高日接待量7600人),竹筏损耗也巨大,因此每年都需要制作大量新竹筏。
As a world natural and cultural heritage, Wuyi Mountain receives a large number of tourists every year, and tourism has become a major local industry. Bamboo rafting in Jiuqu River is an important project in Wuyi Mountain tourism. Tourists can take bamboo rafts down the Jiuqu River and enjoy a panoramic view of the core scenic area of Wuyi Mountain. Bamboo raft is a common water vehicle in the south with a long history. The bamboo raft in Wuyi Mountain is made of local bamboo. Generally, one raft is made of eight bamboo, about 89 meters long and about 1 meter wide. When rafting, the two rafts are combined into one, with bamboo chairs on it. Six people can ride on it, and two platoon workers can pull the boat. Due to the rapidity of the river, the bamboo raft will collide with the rocks near the river, and the bamboo itself is perishable, so the life of the bamboo raft is generally about half a year. However, bamboo rafting receives a large number of tourists (1.2 million people a year, with a maximum daily reception of 7600 people), and the loss of bamboo rafts is also huge, so a large number of new bamboo rafts need to be made every year.
竹筏制作是一种传统工艺,每年11月份采集毛竹,削皮晾晒一个月左右之后可用于制作。制作分三道工序,头两道是烧弯,就是用火将竹子的头和尾烤软后弯制,分别形成筏头和筏尾。一般是先弯筏尾,然后交给下一人弯筏头,筏头弯曲大,弯制时间较长。弯制之后的第三道工序就是将毛竹绑扎在一起制成竹筏。过去当地的竹筏制作都是手工作坊模式,大多散布于九曲溪沿岸。竹筏是排工的个人财产,由排工自己去市场购买毛竹然后交由制作作坊来进行制作。近年来,由于传统作坊分散于九曲溪沿岸会产生一些垃圾倾倒河中不易管理以及烧制的烟雾污染等问题,武夷山旅游管理公司希望能建设一个让竹筏制作相对集中,以利于环境保护和生产管理的设施。项目选址在星村镇乡间的一块台地,为一废弃砖厂的旧址,距离漂流码头约三公里,竹筏在这里制作好后由卡车运输至码头下水。根据任务书,竹筏育制场主要由三栋建筑构成:毛竹仓库、制作车间、办公宿舍楼,并且要提供足够的竹子晾晒场地。按照计划,每年冬季有两万多根毛竹在此晾晒后放入仓库储存,之后于一年内在制作车间被加工成1800张竹筏。而办公宿舍楼则为工人和管理人员提供生活服务。
Bamboo raft production is a traditional process. Moso bamboo is collected in November every year, peeled and dried for about one month before it can be used for production. There are three processes for making bamboo. The first two processes are burning and bending, that is, baking the head and tail of bamboo with fire and bending them to form raft head and raft tail respectively. Generally, the raft tail is bent first, and then handed to the next person to bend the raft head. The bending of the raft head is large, and the bending time is long. The third process after bending is to bind bamboo together to make bamboo raft. In the past, local bamboo rafts were made by hand, mostly scattered along the banks of Jiuqu River. The bamboo raft is the personal property of the rower. The rower goes to the market to buy bamboo and then hand it over to the production workshop for production. In recent years, due to the fact that traditional workshops scattered along the banks of Jiuqu River will cause some problems such as difficult management of garbage dumping in the river and burning smoke pollution, Wuyishan Tourism Management Company hopes to build a facility that allows bamboo raft production to be relatively centralized, which is conducive to environmental protection and production management. The project is located on a terrace in the countryside of Xingcun Town, which is the old site of an abandoned brick factory, about three kilometers away from the rafting dock. The bamboo raft is made here and then transported by truck to the dock for launching. According to the assignment, the bamboo raft breeding yard is mainly composed of three buildings: bamboo warehouse, production workshop, office dormitory building, and sufficient bamboo drying space shall be provided. According to the plan, more than 20000 phyllostachys pubescens are stored in the warehouse after being dried in winter every year, and then processed into 1800 bamboo rafts in the production workshop within one year. The office dormitory building provides living services for workers and managers.
地域 | region
设计之初,我们对当地的建筑资源和建造方式做了调研。武夷山地区过去有很多体现地域传统的建造方式,例如当地乡间砖厂普遍运用的竹结构,用轻盈、简便的方式实现较大的跨度,体现了高超的传统建造智慧,令人印象深刻。其它如村落里的木结构、夯土墙等,亦充分体现就地取材的特征。但如今大多数建造都已采用工业化方式,包括乡村地区均以现浇混凝土建造体系为主。传统的竹、木、夯土等基于自然资源的建造因为不能满足现行规范也无法进入主流建造体系。建造之地域性的特点因为处在向工业化转变的时期而变得模糊不清,就像绑扎竹筏过去用绳索,现在使用铁丝,也是工业化的结果。当地甚至还有人一度提出用玻璃钢来仿毛竹制作竹筏的设想,理由是更耐久,只是因为当地毛竹资源非常丰富才作罢。由此可以更好地理解地域性建造实际就是地方资源条件变化导致传统不断演变的结果。只是武夷山地区的工业化程度不高(主要发展旅游业和农业,工业基础实际相对薄弱),建筑业仍辅以大量现场和手工建造方式。
At the beginning of the design, we investigated the local building resources and construction methods. In the past, there were many construction methods reflecting the regional tradition in Wuyishan area. For example, the bamboo structure commonly used in the local rural brick factory realized a large span in a light and simple way, reflecting the superb traditional construction wisdom, which was impressive. Other wood structures and rammed earth walls in the village also fully reflect the characteristics of local materials. But now most of the construction has been industrialized, including rural areas, which are mainly constructed by cast-in-situ concrete construction system. The traditional construction based on natural resources such as bamboo, wood and rammed earth cannot meet the current specifications and enter the mainstream construction system. The regional characteristics of the construction have become blurred due to the transition to industrialization, just as the binding of bamboo rafts used to use ropes, and now uses iron wire, which is also the result of industrialization. Some local people even put forward the idea of making bamboo rafts by imitating bamboo with fiberglass fiber reinforced plastics for the reason that they are more durable, only because the local bamboo resources are very rich. Therefore, we can better understand that regional construction is actually the result of the continuous evolution of tradition caused by changes in local resource conditions. However, the degree of industrialization in Wuyishan area is not high (mainly developing tourism and agriculture, and the industrial base is relatively weak), and the construction industry is still supported by a large number of on-site and manual construction methods.
基于项目所处的地域条件,以及项目预算较低(竹筏厂作为制造单位本身不能直接产生经济效益,因此业主想要严格控制造价),设计一开始就立足于充分运用当地资源来建造,结合对当地材料、施工条件的调查以及厂房防火的要求,考虑用钢筋混凝土现浇体系以及当地非常普及、可以就近生产、且价格便宜的混凝土空心砌块作为可能的主要材料来建造。
Based on the geographical conditions of the project and the low budget of the project (the bamboo raft factory as a manufacturing unit cannot directly produce economic benefits, so the owner wants to strictly control the cost), the design is based on making full use of local resources to build at the beginning, combining with the investigation of local materials, construction conditions and the requirements of plant fire prevention, considering the use of reinforced concrete cast-in-place system and the local popularity, which can be produced nearby And the cheap concrete hollow block is used as the possible main material for construction.
▼材料,materials ©TAO

场与厂 | Field and factory
一个有意思的事情是竹筏育制场的项目名字有时会误写为育制厂,厂和场一字之差,却恰好开启了对项目场所意义的思考。厂一般来说指一个生产性的功能空间或区域,而场意味着一个领域,暗含了其与环境、行为的关系,以及内部各要素之间的关系。“场”暗含的意义将思考引领至场地以及每栋房子的场所特质,例如地形、风、光、景观、氛围等等,以及它的建设与环境的关系。而“厂”指涉着工业建筑单纯的功能性会拒绝多余的东西,这样的建筑应该是直接了当不说废话的,厂的建筑应该具有一种朴素性格,它应该回到对采光、通风、尺度等非常本体的建筑问题的思考,而在建造层面也可以更清晰地表达结构与材料的性格。
One interesting thing is that the project name of the bamboo raft breeding plant is sometimes mistakenly written as the breeding plant. The difference between the plant and the plant just starts the thinking about the meaning of the project site. Generally speaking, the factory refers to a productive functional space or area, while the field refers to a field, implying its relationship with the environment and behavior, as well as the relationship between internal elements. The implied meaning of "field" will lead the thinking to the site and the site characteristics of each house, such as terrain, wind, light, landscape, atmosphere, and the relationship between its construction and the environment. The "factory" refers to the fact that the pure functionality of industrial buildings will reject superfluous things. Such buildings should be straightforward without nonsense. The building of the factory should have a simple character. It should return to the consideration of the architectural problems of lighting, ventilation, scale and other very ontological aspects, and the character of structure and materials can also be more clearly expressed at the construction level.

规划 | plan
建筑布局主要结合场地特征和当地气候来考虑,用地呈不规则的T字形,北部比较狭窄。由于三栋建筑都需要很好的通风,因此窄进深长条状的建筑是自然推导出的选择,建筑呈线性被布置于场地周边,以增大通风的界面,并在中间围合出空地作为毛竹晾晒场和周转区。仓库布置在场地南边的山脚下这一侧,保证整个场地在面向开阔田野的方向上空间不被阻断。制作车间布置于场地北端的东、北两侧,处于下风头,减少烟气影响。办公楼与仓库相对布置,让出正对厂区主入口的庭院,保证主导风向不被阻挡。围绕晾晒场形成车行环路,便于竹筏的运输。处于台地上的、建筑体量的高度也由南往北逐渐降低,与山势、田野、和周边的建筑相协调。
The architectural layout is mainly considered in combination with the site characteristics and local climate. The land is irregular T-shaped, and the north is relatively narrow. Since all three buildings need good ventilation, the narrow, deep and long strip buildings are naturally derived. The buildings are arranged linearly around the site to increase the ventilation interface, and the open space is enclosed in the middle as the bamboo drying field and turnover area. The warehouse is arranged at the foot of the mountain in the south of the site to ensure that the space of the whole site is not blocked in the direction facing the open field. The fabrication workshop is arranged on the east and north sides of the north end of the site, in the downwind to reduce the impact of smoke. The office building and warehouse are arranged opposite to each other, giving way to the courtyard facing the main entrance of the plant to ensure that the dominant wind direction is not blocked. Around the drying yard, a traffic loop is formed to facilitate the transportation of bamboo rafts. The height of the building volume on the terrace also gradually decreases from south to north, which is in harmony with the mountains, fields and surrounding buildings.


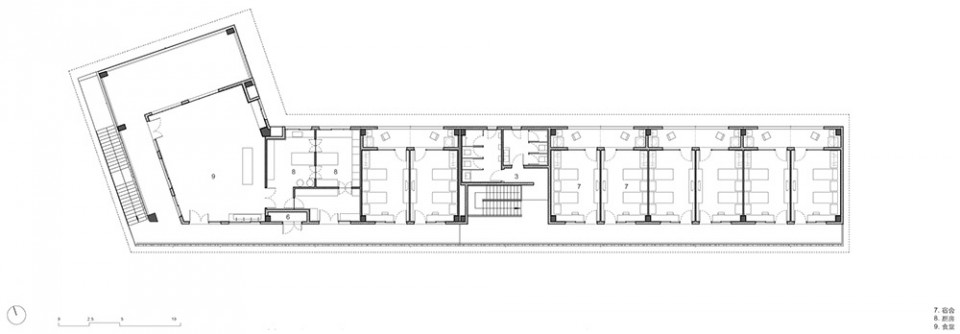
毛竹储存仓库 | Moso bamboo storage warehouse
仓库是最大的一栋建筑,它的体量是由要容纳22000根九米长的毛竹决定的。仓库高度由南向北逐渐由四层跌落到两层,与北侧一层的车间尺度相适应。仓库的实质是毛竹居住的房子(人只是去里面取用),通风是最重要的,要保持竹子的干燥防止发霉腐烂,所以毛竹的排列在平面上与主导风向一致,与建筑的方向形成一个角度,这样做同时减小了建筑的进深(如果毛竹垂直排列建筑进深将达到27米,对采光通风都是很不利的),有利于改善内部采光,且便于取用。毛竹的排列方式自然衍生出建筑立面的做法——对应毛竹存放单元序列用立砌的空心混凝土砌块墙形成了折线锯齿状的通风外墙(建筑没有保温要求),这样保证风进入每个单元沿着竹子缝隙穿过以实现最好的通风。沿每层楼板出挑的每层屋檐则防止雨水进入,同时在立面上形成连续的横向线条,以加强建筑的水平感,弱化其四层尺度的压迫感。建筑采用混凝土框架结构,主要柱网的尺寸是6.5米,适应于毛竹排列角度。
The warehouse is the largest building, and its volume is determined by the capacity of 22000 9-meter-long phyllostachys pubescens. The warehouse height gradually dropped from the fourth floor to the second floor from south to north, which is consistent with the workshop scale of the first floor in the north. The essence of the warehouse is the house where moso bamboos live (people just go inside to get it). Ventilation is the most important. It is necessary to keep the bamboo dry and prevent mildew and decay. So the arrangement of moso bamboos is consistent with the dominant wind direction on the plane and forms an angle with the direction of the building. This also reduces the depth of the building (if moso bamboos are vertically arranged, the depth of the building will reach 27 meters, which is very unfavorable for lighting and ventilation), which is conducive to improving the internal lighting, And it is easy to access. The arrangement of moso bamboos naturally derives from the practice of building facades - the vertical hollow concrete block wall corresponding to the sequence of moso bamboo storage units forms a zigzag ventilation external wall (the building has no thermal insulation requirements), which ensures that the wind enters each unit and passes through the bamboo gap to achieve the best ventilation. The eaves of each floor overhanging along each floor prevent rainwater from entering, and form continuous horizontal lines on the facade to strengthen the horizontal sense of the building and weaken the sense of oppression of the four-floor scale. The building adopts concrete frame structure, and the main column grid is 6.5 meters in size, which is suitable for the arrangement angle of bamboo.
▼仓库建筑平面图,storage building plan

▼仓库墙壁轴,storage building wall axo

制作车间 | Manufacturing workshop
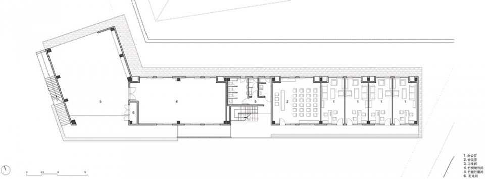
制作车间内的平面布置基于竹筏制作工艺的流程。如前述,每个制作单元有三名工人和三道工序组成:烧尾、烧头、绑扎。为了便于毛竹的传递,三道工序需要垂直于毛竹方向并列在一起,这样传递距离最短。毛竹在烧制中还需前后移动,所以要有一个进深足够大的工作空间。根据毛竹长度和移动距离,车间形成了一个进深方向上达14米的大跨度空间。在长向上则根据工作单元的数量灵活组合。大车间为东西向,容纳了四个工作单元,长度达到50米;小车间为南北向,容纳两个工作单元,长度27米。两栋车间呈L型布置,便于运输。
The plane layout in the production workshop is based on the process of bamboo raft production. As mentioned above, each production unit consists of three workers and three processes: tail burning, head burning and binding. In order to facilitate the transfer of phyllostachys pubescens, the three processes need to be parallel perpendicular to the direction of phyllostachys pubescens, so that the transfer distance is the shortest. The bamboo needs to move back and forth during firing, so there should be a deep enough working space. According to the length and moving distance of phyllostachys pubescens, the workshop has formed a large-span space with a depth of up to 14 meters. In the long direction, it can be flexibly combined according to the number of work units. The large car room is east-west oriented, accommodating four work units, with a length of 50 meters; The trolley room is south-north oriented and accommodates two working units with a length of 27 meters. The two workshops are arranged in L-shape for easy transportation.
由于建筑进深很大,处理光线分外重要,要尽量利用自然光,同时又要避免眩光。我们通过观察工人的工作方式,发现烧制时因为有明火,并不需要太多自然光,周边暗一点,反倒可以保证工人的专注度。而绑扎则不同,需要比较明亮的环境。建筑在剖面上的设计就是基于这个观察,在烧制区域,由平的屋面板形成净高3.6米的空间,只有少许自然光从侧面进入,相对较低和较暗的空间保证工人在烧制时对火点的专注。而毛竹准备区和绑扎区则采用侧高窗引入天光(其中大车间采用北向高窗;小车间的侧高窗为南北向,因此侧面玻璃处理成垂直以防止直射眩光),形成柔和的漫射光环境,建筑在剖面上因此形成了平屋面与斜屋面、低空间与高空间间隔布置的节奏,并直接体现到外部形态。起伏而有节奏的建筑屋顶造型在暗示内部使用的同时,也与周边山势产生了一个有趣的对话。在构造层面屋面结构全部处理成反梁,这是为了在室内形成由楼板形成的面来塑造更纯净的空间效果,减少了梁的视觉干扰,空间更多成为背景,可以让人在其中更专注。
Due to the great depth of the building, it is particularly important to deal with the light. We should try to use natural light while avoiding glare. By observing the working methods of the workers, we found that there was no need for too much natural light because of the open fire during the firing process. A little dark around can ensure the concentration of the workers. Binding is different, and requires a bright environment. The design of the building on the section is based on this observation. In the firing area, the flat roof panel forms a space with a clear height of 3.6 meters. Only a small amount of natural light enters from the side. The relatively low and dark space ensures the workers' attention to the fire point during firing. In the bamboo preparation area and binding area, side high windows are used to introduce skylight (the large workshop uses north high windows; the side high windows in the car room are north-south, so the side glass is processed to be vertical to prevent direct glare), forming a soft diffuse light environment. On the section, the building thus forms the rhythm of flat roof and sloping roof, low space and high space spacing, and directly reflects the external form. The undulating and rhythmic roof shape of the building not only implies the internal use, but also has an interesting dialogue with the surrounding mountains. At the structural level, the roof structure is all treated as inverted beams, which is to form a surface formed by the floor in the room to create a more pure space effect, reduce the visual interference of the beam, and make the space more the background, which can make people more focused.
▼车间B平面图和纵向截面透视图,workshop B plan and longitudinal sectional perspective

在平面上,则区分出服务和被服务空间,主工作空间是一个14米跨的无柱空间,成为被服务空间,它的一侧是进深约三米的休息区作为服务空间,两栋车间休息区的处理因朝向不同而有所不同,大车间朝东侧与相邻茶厂距离很近必须设防火墙,因此休息区形成间隔布置的内向庭院,提供内向景观以及采光通风。而小车间的休息区正好面向北边的田野,因此北侧全部透明,将外面的景色引入。主空间另一侧则是利用混凝土结构柱的1米进深形成的服务墙,即在结构柱之间通过混凝土砌块墙体的正反凸凹形成的凹龛座椅和设备空间,这样可以在墙的内外两侧给工人提供休息处,并隐藏了消火栓和水池等设备。墙与柱的齐平使柱隐没,空间里因此感觉不到柱的存在,使工作空间更完整。在服务墙与混凝土顶板之间形成的T字形玻璃窗因为外面的挑檐以及墙的厚度避免了光线的直射,T形窗的高处让光线通过混凝土底板反射的方式进入,而低处则允许工人向外面的场地暸望。
On the plane, the service space and the serviced space can be distinguished. The main working space is a 14-meter-span columnless space, which becomes the serviced space. On one side of it is the rest area with a depth of about three meters as the service space. The treatment of the rest area of the two workshops varies according to the orientation. The east side of the large workshop is very close to the adjacent tea factory, and a firewall must be set up, so the rest area forms an internal courtyard with interval layout, Provide inward landscape and lighting and ventilation. The rest area of the small workshop is just facing the field in the north, so the north side is completely transparent, introducing the outside scenery. On the other side of the main space is the service wall formed by using the 1 meter depth of the concrete structural column, that is, the concave seat and equipment space formed by the convex and concave sides of the concrete block wall between the structural columns, which can provide rest places for workers on both sides of the wall, and hide the fire hydrant, water tank and other equipment. The flush of the wall and the column makes the column invisible, so the column cannot be felt in the space, making the working space more complete. The T-shaped glass window formed between the service wall and the concrete roof avoids direct light because of the overhang and the thickness of the wall. The high part of the T-shaped window allows the light to enter through the reflection of the concrete floor, while the low part allows the workers to look out of the site.
▼烧制区和服务墙,Burning area and service wall

车间内因为有松木燃烧明火造成的大量烟气,通风很重要。设计在斜屋面高出部分的两侧采用立砌的空心砌块来实现进深风向上的自然通风,而且夏天可以带走积聚在上部的热气起到降温的作用。在服务墙的坐椅上方也采用同样办法来加强自然通风。在武夷山的气候条件下,车间无需保温才使得这种通风方式可行。而结构的直接外露也来源于此,这使建筑的结构与填充墙的逻辑关系在室内外均清晰地得以表达。管线大部分预埋于混凝土屋面板结构中,使结构更干净地被表达。建筑屋面采用了架空隔热屋面做法,应对当地的炎热气候。
Ventilation is very important because there is a large amount of smoke in the workshop caused by pine burning open fire. It is designed to use vertical hollow blocks on both sides of the higher part of the inclined roof to achieve natural ventilation in the deep wind direction, and can take away the heat accumulated in the upper part in summer to play a cooling role. The same method is also used above the seats on the service wall to strengthen natural ventilation. Under the climate conditions of Wuyi Mountain, the workshop does not need thermal insulation to make this ventilation feasible. The direct exposure of the structure also comes from this, which makes the logical relationship between the structure of the building and the infill wall clearly expressed indoors and outdoors. Most of the pipelines are embedded in the concrete roof slab structure, so that the structure can be expressed more cleanly. The building roof adopts the overhead thermal insulation roof method to cope with the local hot climate.
▼西面转角外观,View of the turning from the west

▼大车间西面外观,View of big workshop from the west

▼大车间西立面局部,Partial view of big workshop from the west 01

▼大车间室内,Interior view of big workshop 01

▼大车间室内,Interior view of big workshop 02

▼小车间室内朝南侧服务强看,Interior view of small workshop to the south

▼斜屋面下的高空间(大车间),View of space under oblique roof (big workshop)

▼大车间东南面外观,Southeast view of big workshop




办公宿舍楼 | Office dormitory building
办公宿舍楼布置在场地入口的北侧,一层为办公和竹椅制作空间,二层为工人宿舍和食堂。设计将走廊布置在南侧面向中间场地方便进出,房间布置在北侧,获得远处田野景观,同时有利于隔热。与仓库和车间不同,建筑有保温要求,为避免冷桥,在构造上不宜将结构直接外露,建筑外墙全部用混凝土砌块包裹,同时采用内保温的方式,门窗的混凝土过梁外露以反映砌体墙受力逻辑。在部分隔断墙以及宿舍的阳台外墙采用空心砌块立砌以通风并产生立面的变化。建筑平面以砌块尺寸为模数单元来保证砌体的精确交圈。二层南向外廊采用竹子形成竖向遮阳格栅,利于隔热通风,也保护宿舍的私密性。
The office dormitory building is arranged on the north side of the site entrance. The first floor is for office and bamboo chair production space, and the second floor is for workers' dormitory and canteen. In the design, the corridor is arranged on the south side facing the middle site for easy access, and the room is arranged on the north side to obtain the distant field landscape, which is also conducive to heat insulation. Unlike warehouses and workshops, buildings have thermal insulation requirements. In order to avoid cold bridges, the structure should not be exposed directly in the structure. The external walls of the building are all wrapped with concrete blocks, and the internal insulation method is adopted. The concrete lintels of doors and windows are exposed to reflect the stress logic of the masonry wall. Some partition walls and the balcony exterior walls of the dormitory are erected with hollow blocks to ventilate and change the elevation. The building plane takes the block size as the modular unit to ensure the accurate intersection of the masonry. The south-facing veranda on the second floor uses bamboo to form a vertical sunshade grid, which is conducive to heat insulation and ventilation, and also protects the privacy of the dormitory.
▼西面外观,View from the west

▼从东北面的道路上看,Northeast view from road

▼南面全景,General view from the south

▼南立面局部,Partial view of south facade

▼外廊,View of veranda

▼从外廊看竹格栅,Looking to bamboo facade from corridor

▼贮藏间,View of storage space






材料与建造 | Materials and construction
建筑所用材料均来自当地,建筑主体采用素混凝土结构和混凝土砌块外墙,屋面采用水泥瓦,竹、木作为遮阳、门窗、扶手等元素出现。所有材料都秉持相同的原则——以不作过多表面处理的方式出现,呈现材料自身的特点。混凝土上模板留下的木纹也成为一种细节。
The materials used in the building are all from the local area. The main body of the building is made of plain concrete structure and concrete block exterior wall. The roof is made of cement tile. Bamboo and wood are used as shading, doors and windows, handrails and other elements. All materials adhere to the same principle - they appear without too much surface treatment, showing their own characteristics. The wood grain left by the formwork on the concrete also becomes a detail.
▼木模板在混凝土柱上留下的痕迹,Close-up of a concrete column with casting traces

建造过程中混凝土浇筑也是一次挑战,过去当地施工方习惯于使用现场搅拌混凝土,这是第一次用商混,流动更快,再加上斜屋面施工,因此对于浇筑和振捣的控制都有一定的难度。大面积的屋面浇筑为了防止模板支护沉降变形,需要工序上先浇筑混凝土地面垫层再架设脚手架。而屋面的反梁做法也对钢筋绑扎、模板固定和浇筑的工序有特殊要求。尽管是工业化的建造方式,但在当地现实条件下对施工的控制仍然存在诸多困难,助手在近半年时间驻场工作才保证了建造完成度的控制。即便如此,最终还是有很多没做到位的地方,例如,本应按模数精确对位的砌块墙因为加工尺寸有误差,工人没有意识到用砂浆的宽度来消化误差,最终导致误差累计用砍砖来“填空”,导致部分砖缝的错位(因为成本原因无法返工),这些错误不得不保留,成为工业化建造方式中不那么精确的手工“注脚”。
Concrete pouring is also a challenge in the construction process. In the past, local construction companies used to use on-site mixing concrete. This is the first time that commercial mixing is used, and the flow is faster. In addition, the construction of sloping roof makes it difficult to control the pouring and vibration. In order to prevent the settlement and deformation of formwork support, large-area roof pouring requires pouring concrete ground cushion before erecting scaffold. However, the practice of reverse beam on the roof also has special requirements for the process of reinforcement binding, formwork fixation and pouring. Although it is an industrialized construction method, there are still many difficulties in the control of construction under the local practical conditions. The assistant worked in the field for nearly half a year to ensure the control of construction completion. Even so, in the end, there are still many places that are not in place. For example, because of the error in the processing size of the block wall that should be accurately aligned according to the module, the workers did not realize that the error was digested by the width of the mortar, which ultimately led to the error of "filling in the blank" by chopping bricks, resulting in the dislocation of partial brick joints (which could not be reworked due to cost reasons), and these errors had to be retained, It has become a less precise manual "footnote" in the industrial construction mode.
思考 | reflection
“铝片就是铝片”——Donald Judd[1]
“Sheet aluminum is sheet aluminum”—-Donald Judd[1]
回顾竹筏育制场的设计过程,发现似乎没有先入为主的形式偏好,建筑实际只是从对场所、功能的思考和回应一步步推演的结果。这大概是因为在所有建筑类型中,工业建筑往往因为功能性和经济性的诉求而回到更加关注建筑本体问题的一种状态,围绕建筑的功能需要展开对结构、采光、通风、尺度、材料、建造等基本问题的探讨,反而摆脱了形式意义问题的纠缠,不能说没有形式,形式只是自然呈现的结果。工业建筑的这样一种朴素状态,反倒不自觉地成为对消费时代里建筑作为图像和符号往往背负过多本不属于它的意义这一现象的抵制。这其中隐含的伦理既是:建筑只代表它自身,而非它者。就如艺术家Donald Judd所说:“存在的事物存在着,一切尽在其中。”[2]。Donald Judd的作品运用工业材料和极简的形式就是为了探索物体的自主性,抵抗意义的延伸和堆砌。
Reviewing the design process of the bamboo raft nursery, we find that there seems to be no preconceived form preference, and the architecture is actually only the result of step by step from the thinking and response to the place and function. This is probably because in all types of buildings, industrial buildings tend to return to a state that pays more attention to the issue of architectural ontology due to the demands of functionality and economy. The discussion of basic issues such as structure, lighting, ventilation, scale, materials, construction and so on around the functional needs of the building, instead of getting rid of the entanglement of the issue of formal meaning, it can not be said that there is no form, and form is only the result of natural presentation. Such a simple state of industrial architecture, on the contrary, has unconsciously become a resistance to the phenomenon that architecture, as an image and symbol, often carries too much meaning that does not belong to it in the consumer era. The implied ethics is that architecture only represents itself, not others. As the artist Donald Judd said, "There are things that exist, and everything is in them." [2]. Donald Judd's works use industrial materials and minimalist forms to explore the autonomy of objects and resist the extension and stacking of meaning.
当代建筑太经常地被建筑之外的话语(discourse)探讨所裹挟,文学的、哲学的、语言学的、社会学的、政治学的等等。甚至令人觉得建筑师或理论家如果不从这些领域去寻找建筑的思想源头就无法证明建筑的意义和其形而上的高度。然而用观念去阐释建筑也是危险的,因为它随时存在过度释义或强加意义给建筑的可能,在各种引申、关联、隐喻中建筑反而偏离了自身。对我来说,用文字语言来阐释建筑无非是梳理和还原建筑产生的思考轨迹,然而对于任何建筑来说,最好的解读还是建筑自身。
Contemporary architecture is often surrounded by the discussion of discourse beyond architecture, such as literary, philosophical, linguistic, sociological, political and so on. It even makes people think that architects or theorists cannot prove the significance of architecture and its metaphysical height without looking for the ideological source of architecture from these fields. However, it is also dangerous to interpret architecture with concepts, because it is possible to over-interpret or impose meaning on architecture at any time, and architecture deviates from itself in various extensions, associations and metaphors. For me, explaining architecture in written language is nothing more than combing and restoring the thinking track of architecture. However, for any architecture, the best interpretation is the architecture itself.
注释与参考文献:
Notes and references:
[1]唐纳德·贾德,《远离鸟类》,理查德·希夫,唐纳德·贾尔德,第117页
[1] Donald Judd, Safe from Birds, Richard Shiff, Donald Judd, p.117
[2]“存在的事物是存在的,一切都站在它们一边”,唐纳德·贾德,《远离鸟类》,理查德·希夫,唐纳德·朱德,第117页
[2]“Things that exist exist and everything is on their side”,Donald Judd, Safe from Birds, Richard Shiff, Donald Judd, p.117


项目基本信息
项目名称:武夷山竹筏育制场
业主:福建武夷山旅游发展股份有限公司
项目地点:福建南平武夷山星村镇
项目功能:制作厂房,储藏,办公室,宿舍
设计单位:迹•建筑事务所(TAO)
主持建筑师:华黎
设计团队:华黎、Elisabet Aguilar Palau、张婕、诸荔晶、赖尔逊(驻场建筑师)、Martino Aviles、姜楠、施蔚闻、连俊钦
基地面积:14,629平方米
建筑面积:16,000平方米(其中制作车间1519平方米,办公及宿舍楼1059平方米)
设计时间:2011-2012
施工时间:2012-2013(制作车间、办公室及宿舍楼,仓库楼未建)
摄影:苏圣亮
主要材料:混凝土
Credits and Data
Project title: Wuyishan Bamboo Raft Factory
Client: WuyishanTourism Development Incorporated Company
Location: Xingcun Town, Wuyishan Mountain, Fujian, China
Program: workshop, storage, office, dormitory
Architect: HUA Li / TAO (Trace Architecture Office)
Design team: HUA Li, Elisabet Aguilar Palau, Zhang Jie, Laijing Zhu, Lai Erxun, Martino Aviles, Jiang Nan, Shi Weiwen, LianJunqin
Site area: 14,629sq. m.
Total floor area: 16,000 sq. m.(workshop 1519 sq. m. office and dormitory1059 sq. m.)
Design: 2011-2012
Construction: 2012-2013 (workshop, office and dormitory, storage unbuilt)
Photographs: Su Shengliang
Main material: concrete
