
戚山山
********
********
浙江省杭州市拱墅区
14岁留美,以最高学士荣誉SUMMA CUM LAUDE毕业于美国哥伦比亚大学,获最卓越建筑学士学位 B.A. in DISTINCTION,最优等学士荣誉PHI BETA KAPPA和 “百年学者” 终身荣誉CENTENNIAL SCHOLAR,主修建筑学,辅修艺术史学和物理学。后以最优异成绩考入哈佛大学,获四年制建筑学硕士学位,是哈佛大学彼得·莱斯基金重点培养人才,2010年作为唯一一位特聘研究员被派送至建筑大师伦佐·皮亚诺建筑事务所RPBW,参与研究与设计挪威国家美术馆、倍耐力全球总部和产业园区。 曾任福斯特FOSTER+PARTNERS建筑事务所项目建筑师和驻纽约中国事务负责人,主要参与纽约联合国广场大厦、纽约赫斯特集团总部大楼、伦敦布隆伯格基金会总部大楼、沃尔沃美国总部和产业园区、阿根廷罗萨里奥城市综合体和文化产业园区建筑设计。皮亚诺和福斯特两位均为普利兹克奖得主。 曾任美国哈佛大学、哥伦比亚大学、香港大学客座及评论教授。 现为特殊引进人才任教于浙江大学,同时担任中国美术学院建筑学院毕业设计导师和现代书法研究中心研究员,并师从普利兹克奖得主王澍攻读建筑学博士学位。 曾参与著名书法家王冬龄教授2017年「太庙道象」、2018年「OCAT竹径」两届艺术展,担任展览空间策划和设计。 戚山山现致力于中国城市问题思考和中国乡村实践,反思如何超越地域限制而为世界带来中国文化的贡献。2012年创立STUDIO QI建筑事务所至今,是民宿集群「宿集」总规划师和首席建筑师、松赞集团首席建筑师,其作品获得WAF美国建筑大师奖、LEAF国际绿叶建筑奖、WA世界建筑最佳居住奖、UED中国最美民宿设计大奖,入选2018全球20位女性建筑师。 她坚信建筑师必须负有强烈的责任感和敏感度。 建筑师必须负有强烈的责任感和敏感度; 建筑应该是一股温柔的力量; 而设计,归根结底是寻找一种“刚刚好”的状态。
空山九帖 · 秦岭宿集,陕西 / 建筑
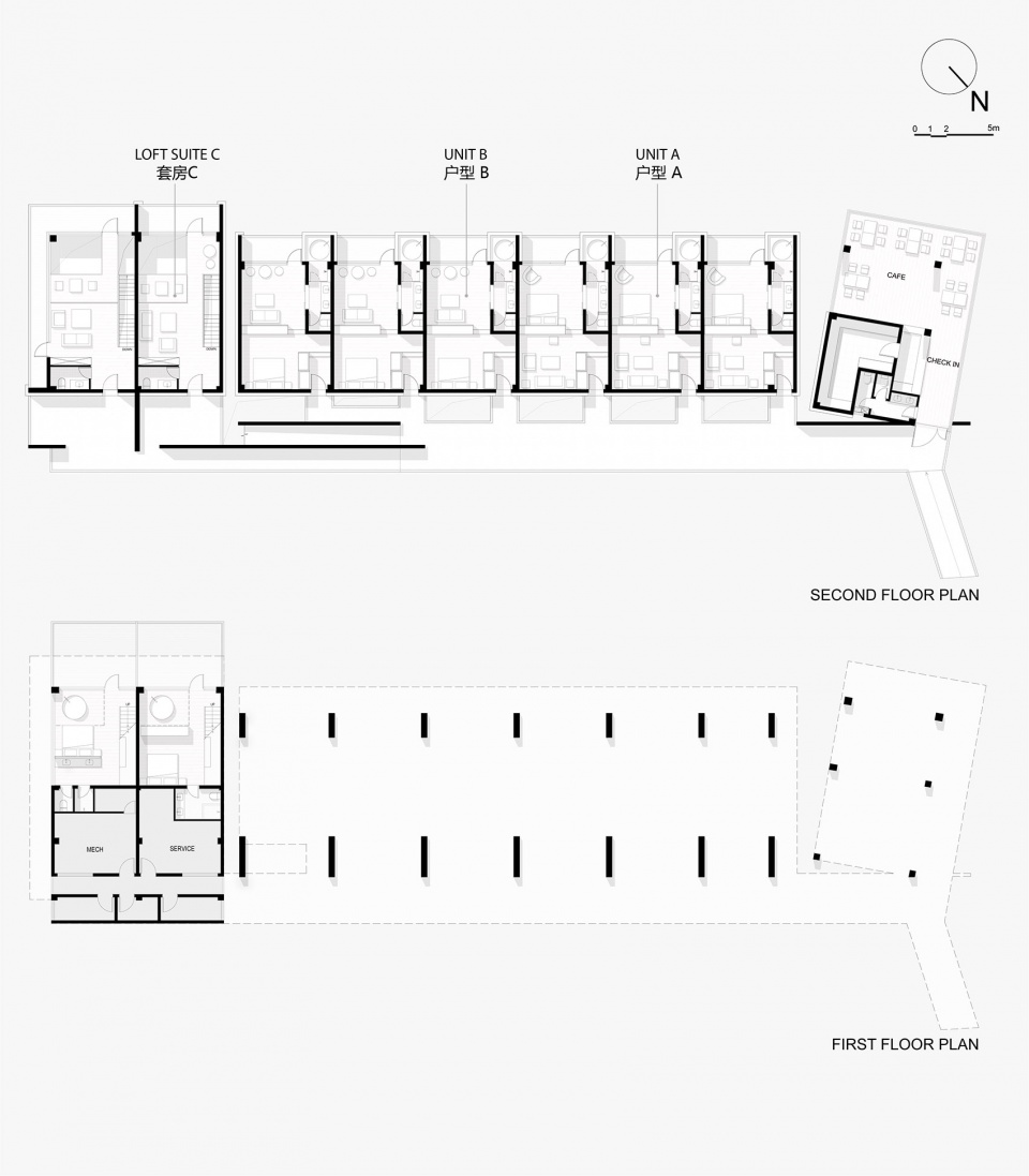
「空山九帖·秦岭」位于陕西省留坝县的秦岭南麓山间,是STUDIO QI建筑事务所承接的“秦岭·宿集”民宿集群中的重要节点,也是该集群中最先建成的建筑。宿集距离秦岭汉中市机场约1小时40分钟时间的车程。「空山九帖」坐落于秦岭山麓中,直面悬崖,身前身后高山连绵,临万丈崖下溪水湍流,这里犹如秦岭的断面,也就是建筑意义上“秦岭的剖面”。正如温和的京都秋日红叶引人遐想,而如热烈火焰般的「空山九帖」秋色则瞬间浸染整片山脉。建筑师意欲将建筑与场地之间建立一种微妙的轻质关系:建筑微微停留于秦岭山岭之间,面向悬崖。建筑底部微微抬起,秦岭山峦间流动的“气流”穿过建筑底端,汇入悬崖中,建筑也乘着这股气流而好似漂浮起来,似即将起飞的舱体。
LONE-M HOTEL · QINLING is located in the foothills of the Qinling Mountains near Liuba, Shaanxi province of China. This incredible site is directly facing a large forest cliff, as if it was becoming a deliberate cross-section of Qinling. The site area for the project is 3906 square meters, and the building area is 800 square meters, consisting a cafe, 8 guest-rooms and suites, and a viewing roof platform. The architect Shanshan Qi intends to establish both a subtle but bold relationship between the building and the site: the building is lifted slightly above the articulating landscape, and adjusts its volumes carefully to views; at the same time, the architecture creates a set of orthogonal strategies reacting to the particular visual and circulatory flow on site, and sets itself parallel-ly against the direction of the facing cliff. The building itself rides on the airflow between the cliffs, like a cabin about to take off.
「空山九帖·秦岭」将人从无边界的大空间转换到包裹身体的小空间中:从山野回到睡房,建筑入户的游走体验将宏大场景逐渐调和与转化为了细微的亲人场景。置身于山峦,人就是沧海一粟;进入包裹身体的室内,人成为主角,而宏大与令人畏惧的山峦则成为窗外的风景。
"Nine Ties of the Empty Mountain · Qinling Mountains" transforms people from a large space without boundaries to a small space wrapped around the body: from the mountains to the sleeping room, the walking experience of building into the house gradually reconciles and transforms the grand scene into a small family scene. In the mountains, people are a drop in the ocean; When you enter the room that wraps your body, people become the protagonist, while the magnificent and awesome mountains become the scenery outside the window.
从大场景到小场景的空间序列。从「空山九帖·秦岭」前蜿蜒的山路至建筑另一侧面向山峦的阳台,沿着这组空间流线是连续的、充满仪式感的行走体验。建筑前的山路置于秦岭山脉中,宏大的山脉从山路两侧倾泻而下,场景宏大而行人微小。当跟随山路行至建筑外廊,一段由混凝土浇灌的悬板框住短桥,连接着客房与外廊。悬板与短桥形成了与山径截然不同的空间体验:踏入平行于建筑主体的悬桥,人体90度转向,身体被悬桥与独立片墙构筑物夹持,空间维度横向收缩,景深顺势延展,构成「空山九帖」独特的户外门廊系统。悬桥走廊与客房主体再次以短桥和天井的置入相分离,从而重新构造了入户体验的空间性认知。通过短桥,脚步再次90度转向,经过一缕撒入天井的阳光,客人步入玄关。正式进入室内场景后,,空间维度再次被收缩,当经由起居、卧室,行至阳台,秦岭山脉的断面逐渐放大,横展眼前,那种人至于浩瀚自然中的状态再次重现,又以全然的心境回归对山川的照看。「空山九帖·秦岭」的空间序列所营造的从宏大到细微再到宏大的场域转换,给予人绝对而又有身体关照的秦岭体验。
Spatial sequence from large scene to small scene. From the winding mountain road in front of the "Empty Mountain Jiutie Qinling" to the balcony facing the mountains on the other side of the building, there is a continuous and ceremonial walking experience along this group of space streamline. The mountain road in front of the building is located in the Qinling Mountains, and the grand mountains pour down from both sides of the mountain road. The scene is grand and the pedestrians are small. When you follow the mountain road to the building veranda, a short bridge is framed by a concrete slab, connecting the guest room and the veranda. The suspended slab and short bridge form a different space experience from the mountain path: stepping into the suspension bridge parallel to the main body of the building, the human body turns 90 degrees, the body is clamped by the suspension bridge and the independent wall structure, the space dimension shrinks laterally, and the depth of field extends along the trend, forming the unique outdoor porch system of the "Empty Mountain and Nine Ties". The suspension bridge corridor and the main body of the guest room are separated again by the placement of the short bridge and the patio, thus reconstructing the spatial cognition of the in-home experience. Through the short bridge, the foot turns 90 degrees again. After a ray of sunlight scattered into the courtyard, the guests enter the hallway. After officially entering the indoor scene, the spatial dimension is shrunk again. When passing through the living room, bedroom, and balcony, the section of the Qinling Mountains is gradually enlarged and stretched across the eyes, the person's state in the vast nature reappears again, and returns to the care of the mountains and rivers with a complete state of mind. The spatial sequence of "Nine Ties of the Empty Mountain · Qinling Mountains" creates a field transformation from grand to subtle and then to grand, giving people an absolute and physical experience of Qinling Mountains.
以动态气流作为建筑与自然的轻质关联
建筑与场地借助“气流”的概念建立了一种轻质的联结。建筑彷佛停留的舱体,被流动于悬崖和山体间的气流微微托起。
在「空山九帖·秦岭」的设计中,“气流”具有两层含义:
(1)“气流”指向空间流通,即建筑形体不打断场地的空气流、不打断场地空间的关联、也不打断场地空间与山脉自然基地的关联。
(2)“气流”指向视线的连续性,即建筑空间序列的设计使得人在行走时的视线如流动的气体一般,可以自由的穿越建筑、场地与山林。
Use dynamic airflow as the lightweight connection between architecture and nature
With the concept of "air flow", the building and site establish a lightweight connection. The building is like a cabin that stays, slightly supported by the airflow flowing between the cliff and the mountain.
In the design of "Nine Ties in the Empty Mountains and Qinling Mountains", "air flow" has two meanings:
(1) "Air flow" refers to the spatial flow, that is, the architectural form does not interrupt the air flow of the site, the association of the site space, and the association of the site space and the mountain natural base.
(2) "Air flow" points to the continuity of vision, that is, the design of architectural space sequence makes people's vision as flowing gas when walking, and can freely pass through buildings, sites and forests.
在具体的建筑思考中,首先,建筑师通过底层架空的方式,使得场地的草甸呈现连续的景观,气流可以环绕建筑流动,而不被建筑切断;其次,客房门前的开敞天井空间,连接着周边的草甸,将建筑切分为小体量,使建筑轻盈,也减少了建筑体对场地的阻断感。
In the concrete architectural thinking, first of all, the architect makes the meadow of the site present a continuous landscape through the way of overhead on the ground floor, and the airflow can flow around the building without being cut off by the building; Secondly, the open patio space in front of the guest room door connects the surrounding meadows and divides the building into small volumes, which makes the building light and reduces the blocking sense of the building to the site.
在连续的视觉线索设计中,视线从山路开始望向无尽的秦岭,至平行于山崖的建筑被阻挡,视线在微妙变化的路径中经由斜桥、公区、悬桥、短桥、玄关、起居、卧房终至阳台,在阳台驻足,视线线索正是成为行为的引导,将不同属性的若干层空间联结起来。人在山路行走望见被轻轻抬高的「空山九帖」,能看见草甸延续至建筑后方,后方的景色却被建筑控制和遮掩。进入客房,能够看见藏身于玄关一隅的秦岭框景,引导人向前探索。移步阳台,隔岸的山林与山脉再无遮挡的显现于面前。视野彷佛可以随着山势向上移动,至天空与山的交界处。视野的骤变为人带来强烈的情感冲击,使人从现实时空瞬移到秦岭猿鸣遍山的古境,沉浸于秦岭静寂而广袤的山脉中。
In the continuous visual clue design, the line of sight starts from the mountain road to the endless Qinling Mountains, and ends at the balcony through the oblique bridge, the public area, the suspension bridge, the short bridge, the porch, the living room, and the bedroom in the subtly changing path. The line of sight is the guide of behavior, connecting several layers of space with different properties. Walking on the mountain road, people can see the "nine empty mountains" that are slightly raised. They can see the meadow extending to the rear of the building, but the scenery behind is controlled and covered by the building. When you enter the guest room, you can see the frame view of the Qinling Mountains hidden in a corner of the porch and guide people to explore forward. Move to the balcony, and the mountains and forests across the bank will appear in front of you. The view seems to move up with the mountain to the junction of the sky and the mountain. The sudden change of vision has brought a strong emotional impact to people, making people move from the real time and space to the ancient scene of apes singing all over the mountains in the Qinling Mountains, and immerse themselves in the quiet and vast mountains in the Qinling Mountains.
丰富与审慎的XYZ 轴空间关系
身体的多维状态在XYZ轴的空间关系交织中展开。
「空山九帖·秦岭」呈东西向布置,入口朝北 ,南侧面山,屋顶设露台。
Rich and prudent spatial relationship of XYZ axis
The multi-dimensional state of the body unfolds in the interwoven spatial relationship of the XYZ axis.
The "Nine Ties of the Empty Mountain · Qinling Mountains" is arranged in an east-west direction, with the entrance facing the north, the south facing the mountain, and the roof with a terrace.
X轴的空间序列:东西向设定为X轴,建筑沿X轴布局主游走动线也依循X轴延展,使身体一直依附于建筑主体轴线的关系沿山体间穿梭。同时,主动线也与建筑主体分离,空间关系及体验序列必须由90度相交的Y轴构建连接,进行状态转换。 另,屋顶平台及客房阳台序列也由X轴线展开,与悬崖断面平行。
Y轴的空间序列:南北向设定为Y轴,即从玄关至阳台的流线方向,这是建筑的短切面,也是场景转换的集中体现。建筑在Y轴中实现了从外部空间到室内空间的场域转换,并在室内空间塑造了丰富的空间转换:从悬桥、片墙、短桥、门洞、玄关、卧房、阳台,视野不断切换,视线与动线交替构成了微妙转换的动态场域。
Z轴的空间序列:Z轴为垂直高度向的空间实践。秦岭山脉在Z轴呈现盘错而上的趋势,并且在悬崖与溪流的直线落差间体现的淋漓尽致。「空山九帖」设双Z轴体系,其一,为建筑北侧与短桥并置的垂直天井,由此分离了外走廊与客房门檐,塑造入户场景的片断性;其二,为跃层套房内的垂直天井,串联二层北侧入户与一层北侧出户直至悬崖前的纵向动线连接。
The spatial sequence of the X axis: the east-west direction is set as the X axis, and the main walking line of the building layout along the X axis is also extended along the X axis, so that the body has always been attached to the main axis of the building and shuttles along the mountains. At the same time, the active line is also separated from the main body of the building. The spatial relationship and experience sequence must be connected by a 90-degree intersection of the Y-axis for state transition. In addition, the roof platform and guest balcony sequence are also expanded by the X axis, parallel to the cliff section.
The spatial sequence of the Y axis: the north-south direction is set as the Y axis, that is, the streamline direction from the porch to the balcony, which is the short section of the building and the concentrated reflection of the scene transformation. The building realizes the field conversion from the external space to the interior space in the Y-axis, and creates a rich space conversion in the interior space: from the suspension bridge, the partition wall, the short bridge, the doorway, the porch, the bedroom, and the balcony, the field of vision is constantly switched, and the alternate line of vision and the moving line constitute the dynamic field of subtle conversion.
Space sequence of Z axis: Z axis is the space practice in vertical height direction. The Qinling Mountains show a staggered upward trend on the Z axis, and it is vividly reflected in the straight drop between the cliff and the stream. The "Empty Mountain Jiutie" has a double Z-axis system. First, it is a vertical patio juxtaposed with a short bridge on the north side of the building, which separates the outer corridor from the eaves of the guest room door and shapes the fragmentary scene of entering the house; The second is the vertical patio in the duplex suite, which is connected with the vertical moving line from the entrance on the north side of the second floor to the exit on the north side of the first floor to the front of the cliff.
通透而丰富的空间场域
几乎没有视线阻挡的秦岭断面扑面而来,我们在这里,呼吸着森林的清流,倾听着秦岭的脉搏,饱览的是无与伦比的秦岭正观立面。
Transparent and rich spatial field
The section of the Qinling Mountains, which is almost unobstructed by the sight, comes to us. Here we breathe the clear water of the forest, listen to the pulse of the Qinling Mountains, and enjoy the incomparable front view of the Qinling Mountains.
场域状态的序列性
「空山九帖·秦岭」的室内场景与身体状态和空间方位紧密关联,影响着人与空间的场域关系。
Sequence of field states
The indoor scene of "Nine Ties in the Empty Mountains · Qinling Mountains" is closely related to the physical state and spatial orientation, affecting the field relationship between people and space.
「空山九帖·秦岭」的公区是一个可以展望群山的空间,整体氛围通透开放,设置前台、早餐与下午茶。公区位于建筑一侧的尽端,脱离开客房主体而侧身而置,好似一处渴望伸向秦岭山脉深处的构筑物。公区体块三面设玻璃窗,使人仿佛被迎面的秦岭切面环绕。由室外进入建筑的路径与进入公区的路径呈现近150度的折角,人们在这里经过一次并不促急的转弯,穿过悬板,进入前台空间。再回转向内进入休憩间放下行李,旅人赶路时的匆忙与浮躁感仿佛在这一刻消失,只剩被秦岭包裹着自己那已然静下来的灵魂。
The public area of "Nine Ties in the Empty Mountains · Qinling Mountains" is a space that can look forward to the mountains. The overall atmosphere is transparent and open, with reception, breakfast and afternoon tea. The public area is located at the end of one side of the building. It is separated from the main body of the guest room and placed sideways, like a structure eager to extend into the depths of the Qinling Mountains. There are glass windows on three sides of the public area block, which makes people feel as if they are surrounded by the facing Qinling Mountains. The path from the outside to the building and the path to the public area present an angle of nearly 150 degrees. People go through a slow turn here, pass through the suspended slab, and enter the front space. Then turn inward and enter the rest room to put down the luggage. The hurry and impetuous feeling of the travelers on the way seems to disappear at this moment, leaving only their quiet soul wrapped in the Qinling Mountains.
建筑师针对「空山九帖·秦岭」客房的空间序列关系进行了细腻的思考。在客房的进深方向,也就是Y轴中,玄关、起居室、卧房与阳台依次递进,分别引导不同的观景状态,山川的幽静和悬崖的肃穆在不断深入客房的进程中逐步展开。建筑师通过将起居室与卧房中的“坐”与“卧”两种状态在进深方向的位置进行互换,构成A与B两种典型客房户型,且形成四种不同的观景体验,可盘腿正坐于悬崖断面前,也可直面躺卧于山脉间。
The architect gave a detailed consideration to the spatial sequence of the guest rooms in "Jiutie Qinling Mountain". In the depth direction of the guest room, that is, in the Y-axis, the porch, living room, bedroom and balcony step by step to guide different viewing conditions. The tranquility of mountains and rivers and the solemnity of cliffs are gradually unfolding in the process of deepening into the guest room. By exchanging the "sitting" and "lying" positions in the living room and bedroom in the depth direction, the architect forms two typical room types A and B, and forms four different viewing experiences. He can sit cross-legged in front of the cliff section, or lie directly in the mountains.
「空山九帖·秦岭」另设有两间跃层套房,称为户型C+D。西侧尽端设转角落地玻璃窗,被景观怀抱。该户型由二层进入Y景深空间,并由Z轴向的室内天井串联向下,放眼望去,一层起居已沿展于草甸中,而二层楼板浮于空气中。
There are two other duplex suites, called apartment type C+D. At the end of the west side is a corner floor glass window, which is embraced by the landscape. The house type enters the Y depth of field space from the second floor, and the indoor patio in the Z axis is connected downward. Looking out, the living room on the first floor has been extended in the meadow, while the floor on the second floor is floating in the air.
沐浴与坐卧观景体验的并置
在「空山九帖·秦岭」的客房体系中,卫生间与主体生活区域由X轴向平行并置,内部功能由Y轴向依次排列。方形浴缸位于景观最前端,与空旷的阳台相连,勾勒出两种躺着看风景的姿态。此时,沐浴所带来的放松感觉成为观景体验的一部分,而被葱葱郁郁的山林环绕的沐浴也构成了独特的居住体验,给人提供了近似露天沐浴的野生质感。几乎没有视线阻挡的秦岭断面扑面而来,我们在这里,呼吸着森林的清流,倾听着秦岭的脉搏,饱览的是无与伦比的秦岭正观立面。
The juxtaposition of bathing and sitting and lying sightseeing experience
In the guest room system of "Nine Ties in the Empty Mountains · Qinling Mountains", the bathroom and the main living area are parallel and juxtaposed in the X axis, and the internal functions are arranged in the Y axis. The square bathtub is located at the front of the landscape and connected with the open balcony, outlining two kinds of posture of lying and watching the landscape. At this time, the relaxing feeling brought by bathing becomes a part of the viewing experience, and the bathing surrounded by lush mountains and forests also constitutes a unique residential experience, providing people with a wild texture similar to outdoor bathing. The section of the Qinling Mountains, which is almost unobstructed by the sight, comes to us. Here we breathe the clear water of the forest, listen to the pulse of the Qinling Mountains, and enjoy the incomparable front view of the Qinling Mountains.
项目名称:空山九帖 · 秦岭
设计方:STUDIO QI 建筑事务所
公司网站:www.qiarchitects.net
联系邮箱
合作:info@qiarchitects.net
招聘:hr@qiarchitects.net
媒体:media@qiarchitects.net
设计时间:2018年8月 – 2019年12月;
完成时间:2021年6月
主持建筑师:戚山山
设计团队:罗洁滢、吴尚明、杨纯纯、郭圣、曹泓毅
项目地址:中国陕西省汉中市留坝火烧店镇天星亮村五组
建筑面积:800 平方米
摄影版权:金玮琦 王宁 唐徐国
运营:飞蔦集文化创意有限公司
客户:宿集营造社
Project Name: LONE-M HOTEL · QINLING
Design:STUDIO QI
Website: www.qiarchitects.net
Contact e-mail
projects: info@qiarchitects.net
jobs: hr@qiarchitects.net
media: media@qiarchitects.net
Architect in Lead: Shanshan QI
Design Team: Jieying LUO、shangming WU、 Chunchun YANG
Building Area: 800 sqm
Photograph: Weiqi JIN,Ning WANG, Xuguo TANG
































