
王建伟
********
********
北京市北京市东城区
方案设计、效果图制作及现场施工对接。
国网租赁公司人济大厦B座办公区精装修设计项目,北京/室内
国网租赁公司人济大厦B座
办公区精装修设计项目
FINE DECORATION DESIGN OF OFFICE AREA OF BLOCK B OF RENJI BUILDING
设计理念:安全 | 经济 | 绿色
Design philosophy: Safety | Economy | Green
01
功能分析
FUNCTION ANALYSE
功能类型
1、公共服务:办公大堂、员工活动室、图书室、会议室
2、办公
3、餐饮:食堂、包间
4、辅助功能:机房、监控室、档案室
Function type
1. Public services: office lobby, employee activity room, library, conference room
2. Office
3. Catering: Canteen, private rooms
4. Auxiliary functions: computer room, monitoring room, archive room
02
现状平面分析
PLANE ANALYSE

建筑内存在三种不同的平面轮廓, 其中,1—3层平面为895.38㎡,4—15层为907.99㎡,16——18层为985.71㎡.
There are three different plane contours in the building, among which the 1-3 floors have a plane area of 895.38 square meters, the 4-15 floors have a plane area of 907.99 square meters, and the 16-18 floors have a plane area of 985.71 square meters
03
平面及效果
PLANE layout
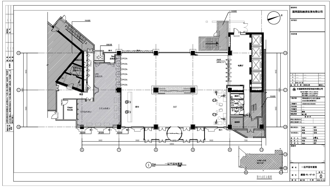
1F
方案效果
Program planning
▼平面布局,PLANE LAYOUT

▼空间效果—大厅效果,PLANE LAYOUT



▼空间效果—电梯厅,PLANE LAYOUT


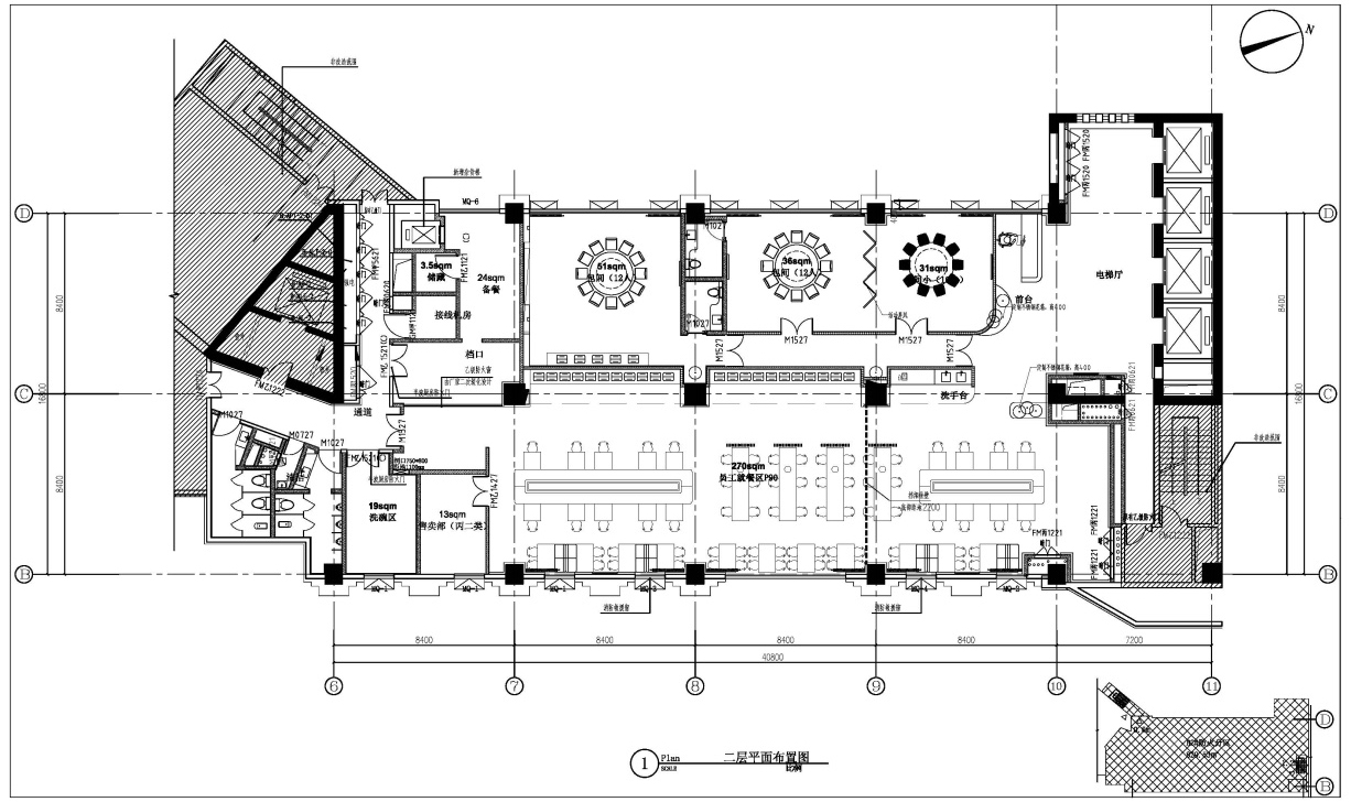
2F
方案规划
Program planning
▼平面布局,PLANE LAYOUT

▼空间效果—员工餐厅,SPACE EFFECT

▼空间效果—员工餐厅,SPACE EFFECT

▼空间效果—大包,SPACE EFFECT

▼空间效果—小包,SPACE EFFECT

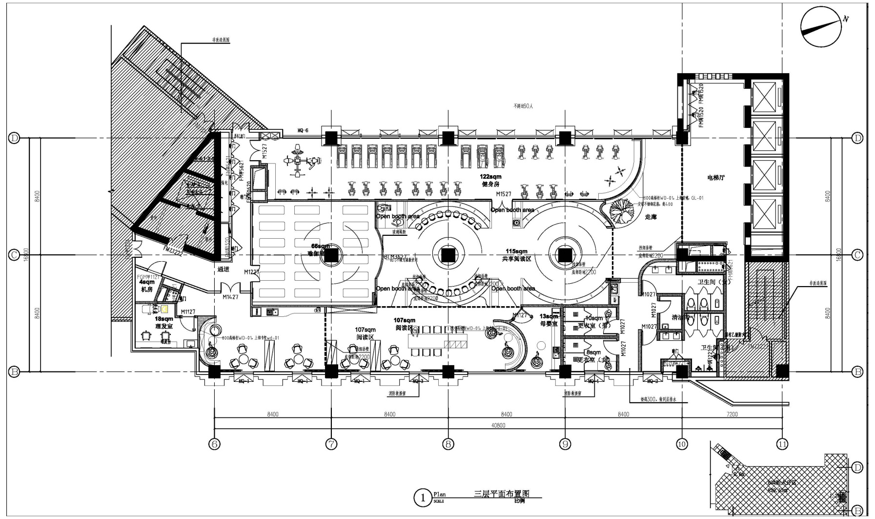
3F
方案规划
Program planning
▼平面布局,PLANE LAYOUT

▼空间效果—阅读区,SPACE EFFECT

▼空间效果—共享区,SPACE EFFECT


▼空间效果—健身房,SPACE EFFECT

▼空间效果—瑜伽室,SPACE EFFECT

▼空间效果—母婴室,SPACE EFFECT

▼平面布局,PLANE LAYOUT

▼平面布局,PLANE LAYOUT

▼空间效果—大会议室(方案一),SPACE EFFECT

▼空间效果—大会议室(方案一),SPACE EFFECT



▼空间效果—会议走道,SPACE EFFECT

▼平面布局,PLANE LAYOUT

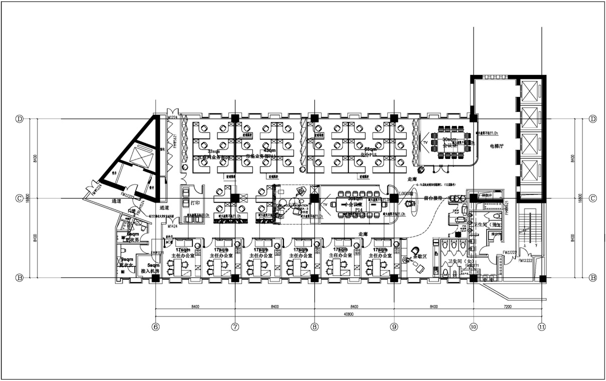
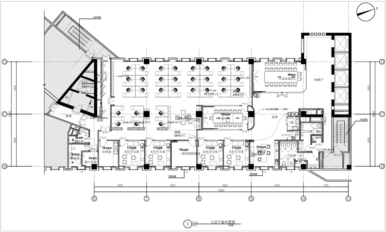
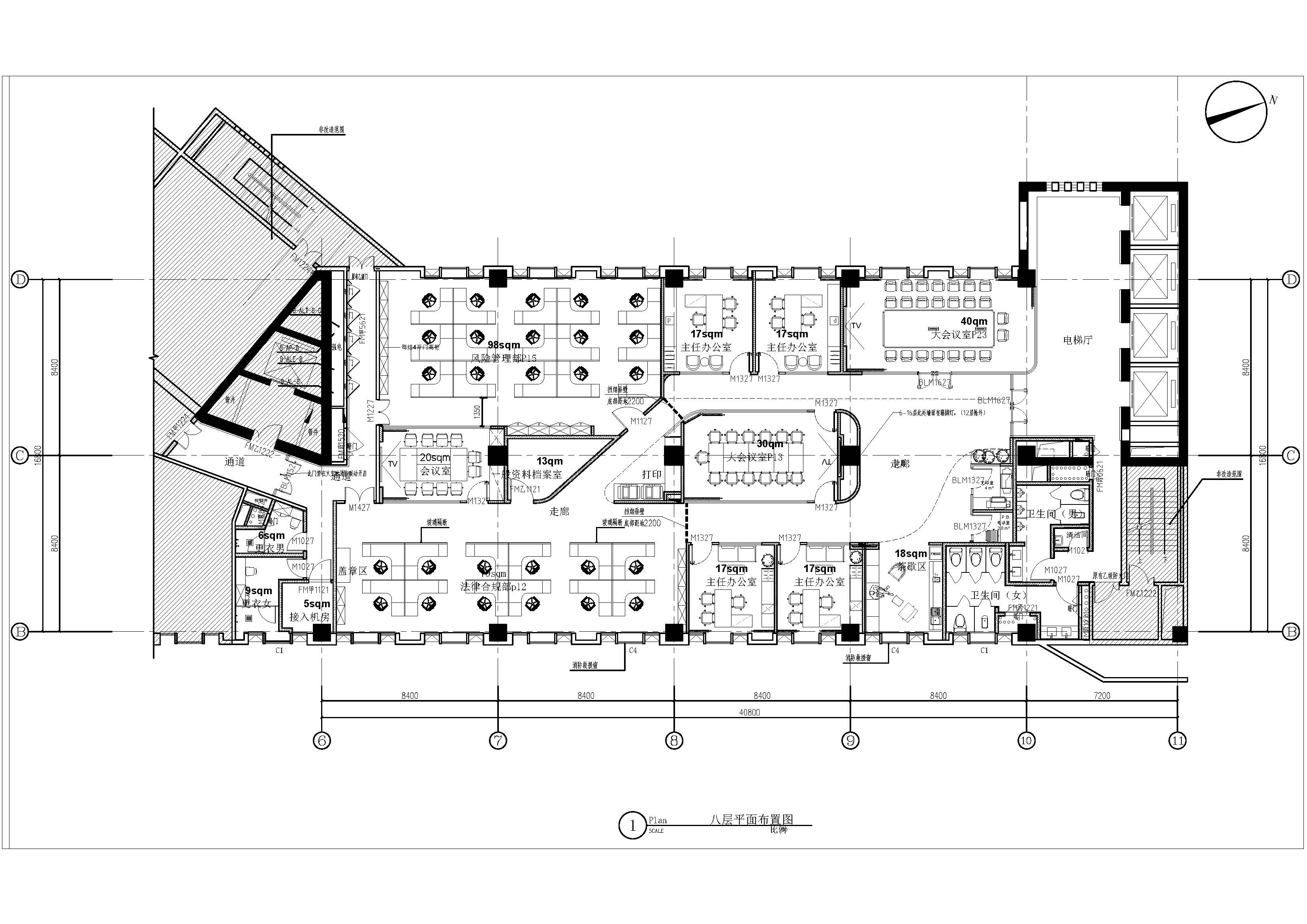
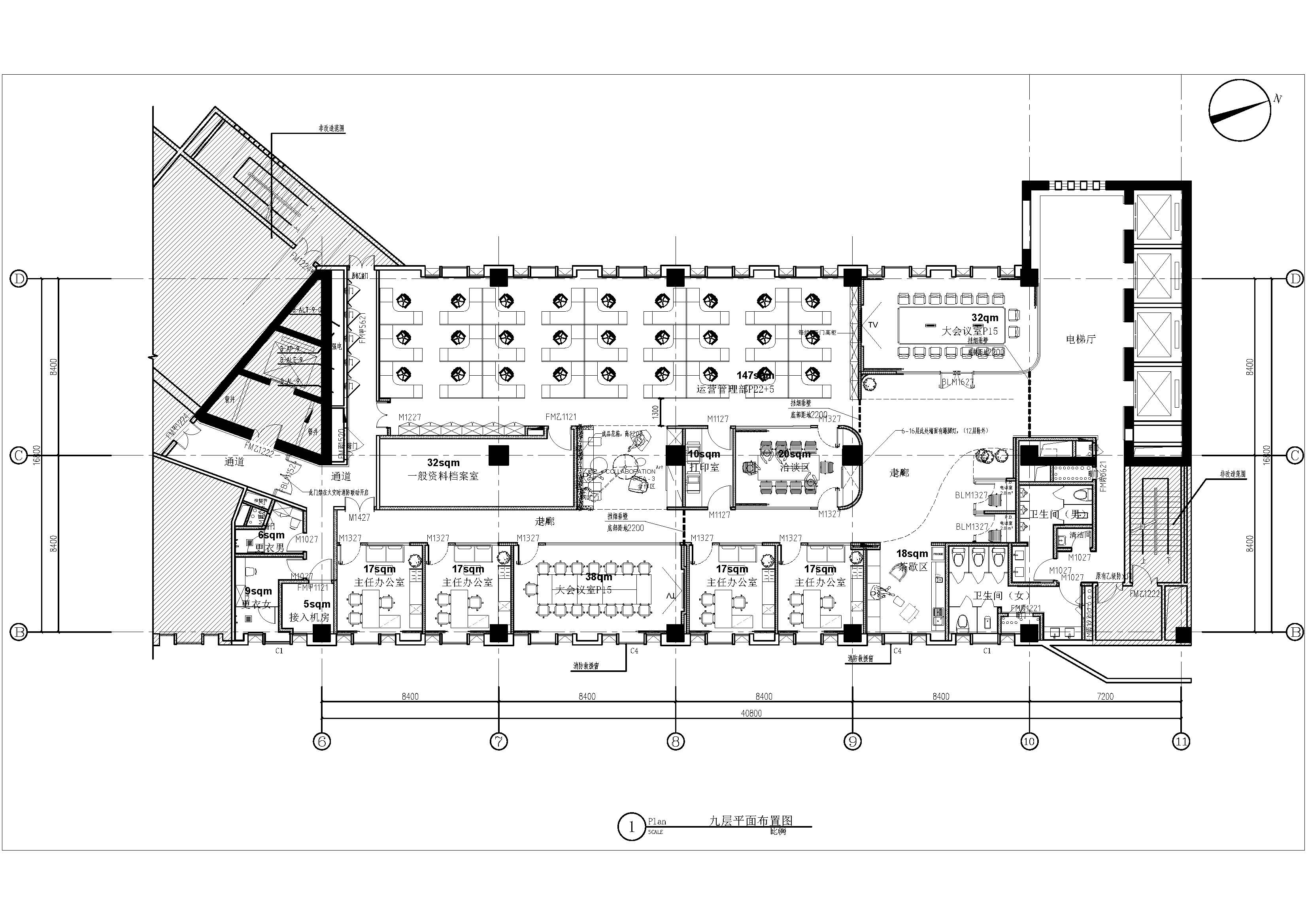
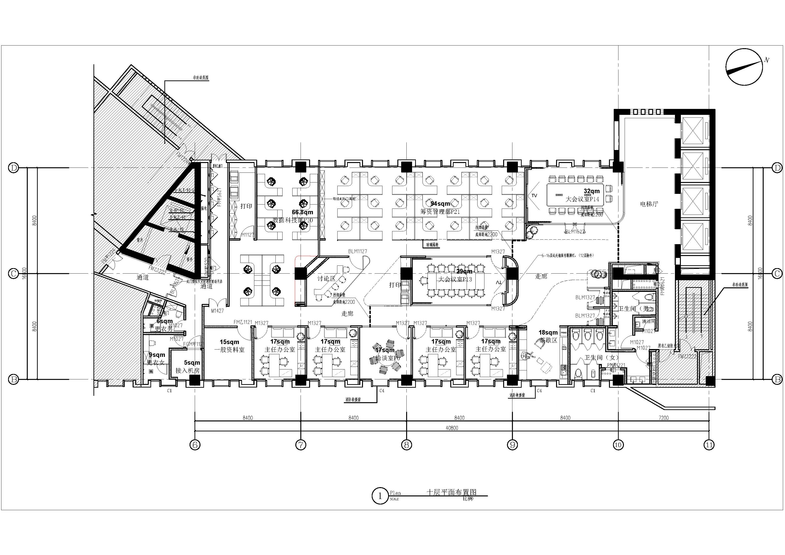
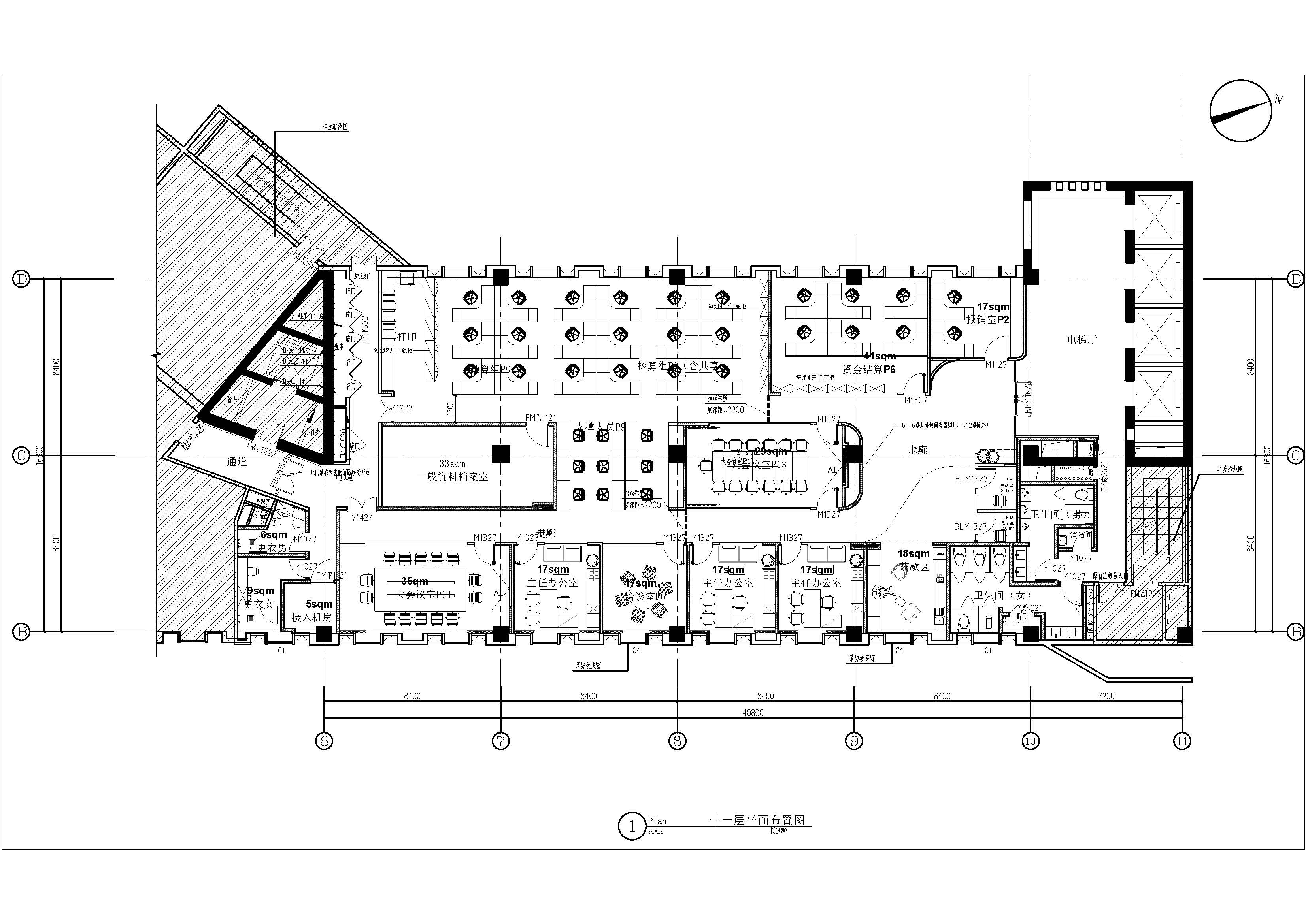
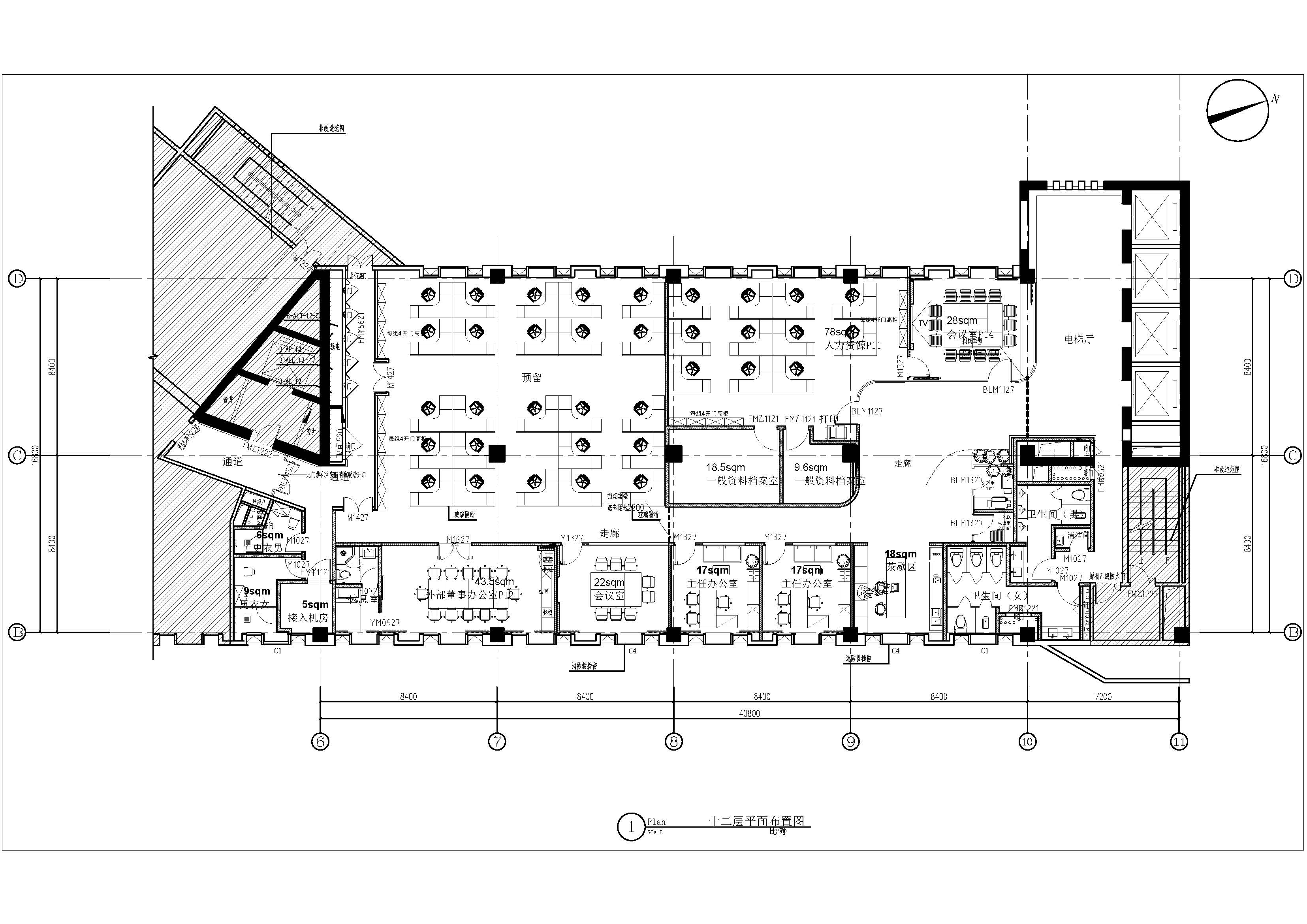
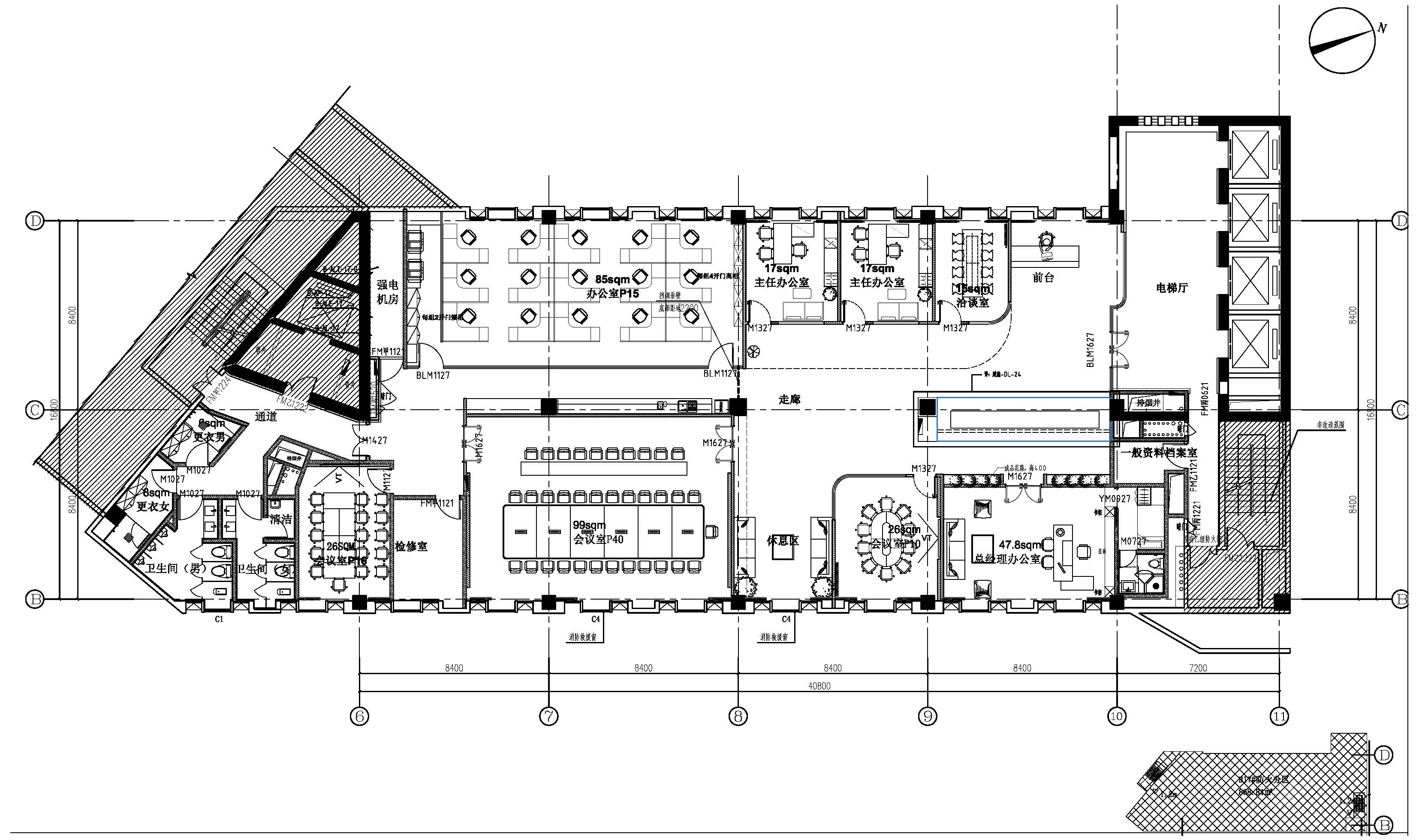
7F
方案规划
Program planning
▼平面布局,PLANE LAYOUT

▼空间效果—办公层,SPACE EFFECT




▼空间效果—办公层(方案二),SPACE EFFECT


▼空间效果—标准层电梯厅,SPACE EFFECT

▼空间效果—标准层电梯厅,SPACE EFFECT


▼空间效果—主任办公室,SPACE EFFECT

▼空间效果—小会议室(中间),SPACE EFFECT

▼空间效果—会议室(入口),SPACE EFFECT

▼空间效果—卫生间,SPACE EFFECT


▼平面布局,PLANE LAYOUT






▼空间效果—入口效果,SPACE EFFECT

▼空间效果—副总办公室,SPACE EFFECT


▼空间效果—廉政谈话室,SPACE EFFECT

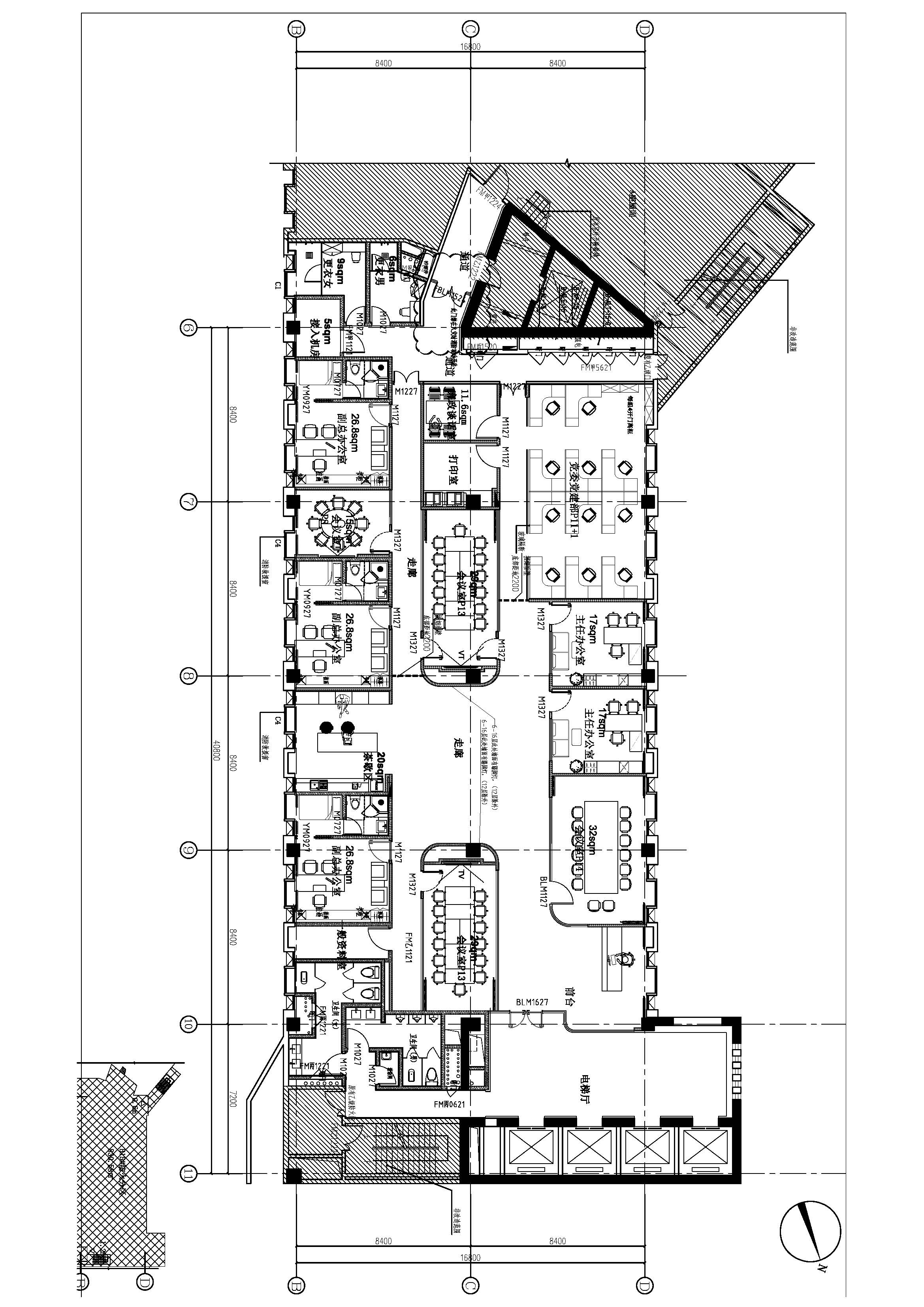
16F
方案规划
Program planning
▼平面布局,PLANE LAYOUT

▼空间效果—总经理办公室方案,SPACE EFFECT


▼空间效果—休息室,SPACE EFFECT


▼空间效果—入口空间,SPACE EFFECT




▼空间效果—大会议室,SPACE EFFECT

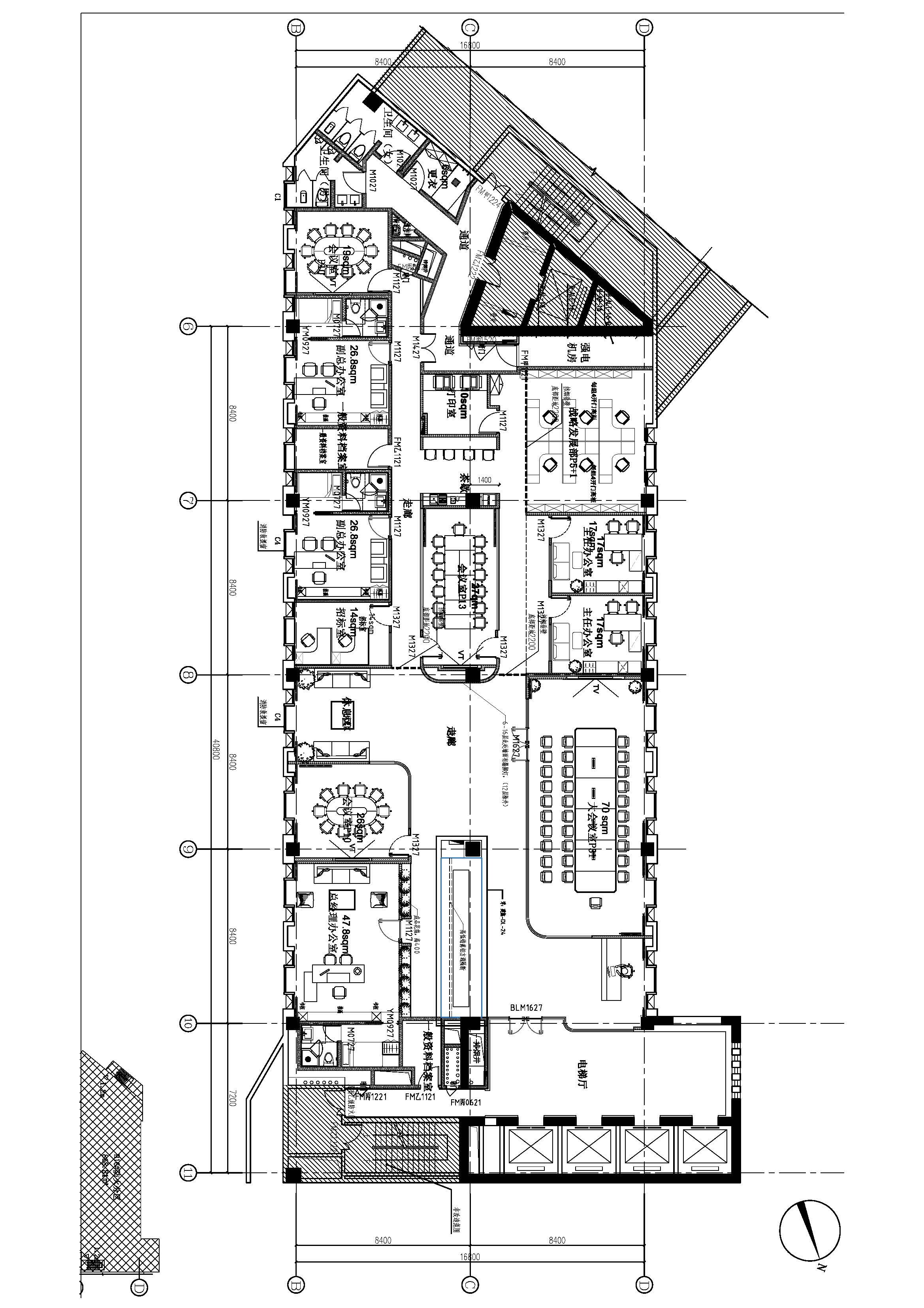
17F
方案规划
Program planning

▼空间效果—董事长办公室,SPACE EFFECT


▼空间效果—领导层入口,SPACE EFFECT

▼空间效果—大会议室,SPACE EFFECT

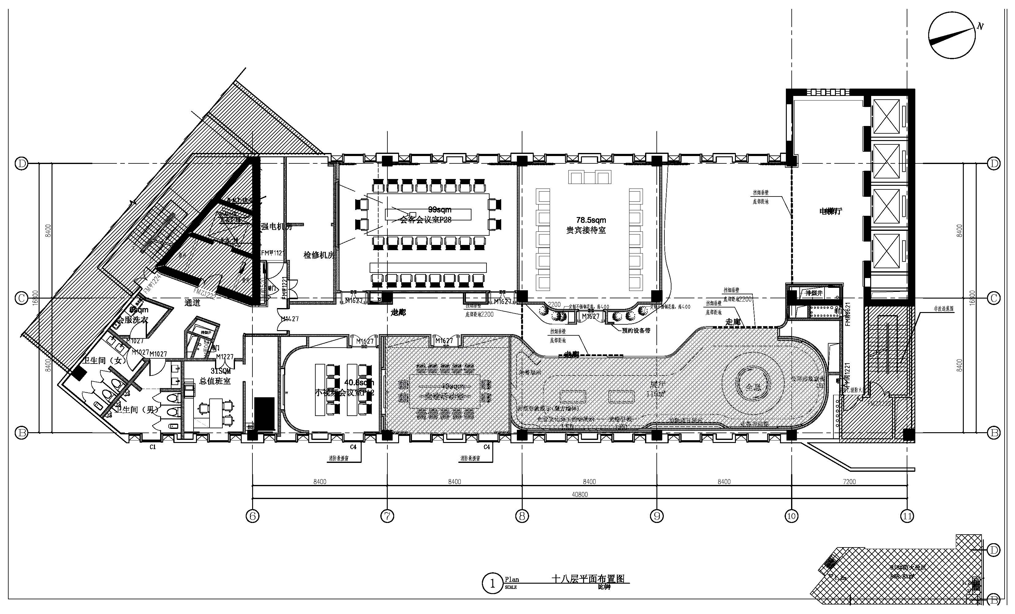
18F
方案规划
Program planning
▼平面布局,PLANE LAYOUT

▼空间效果—公区走道,SPACE EFFECT

▼空间效果—接待室,SPACE EFFECT

▼空间效果—视频会议室,SPACE EFFECT

▼空间效果—接待会议室,SPACE EFFECT


设计中新材料、新工艺、新科技的应用
NEW ENVIRONMENTAL PROTECTION MATERIALS
材料样板
MATERIAL SAMPLE
1.光电玻璃
光电玻璃是一种新型拓展性产品,可以理解为是一种玻璃的LED显示材料。关闭时呈现玻璃的状态,开启时可以动态显示进行媒体播放。许多人会将LED光电玻璃认为是普通玻璃幕墙,也有人把它归纳成显示屏,更多人一听到LED就认为LED光电玻璃是照明灯具。总的来说呢,这些说法都没错,但是LED光电玻璃是三者的完美结合,将建筑材料与灯光照明的完美结合,从而实现媒体传播的一种显示方式。
1. Photoelectric glass
Optoelectronic glass is a new type of expandable product, which can be understood as a type of LED display material made of glass. When turned off, it presents a glass state, and when turned on, it can dynamically display for media playback. Many people think of LED photoelectric glass as a regular glass curtain wall, while others categorize it as a display screen. Many people believe that LED photoelectric glass is a lighting fixture when they hear it. Overall, these statements are all true, but LED photoelectric glass is a perfect combination of the three, combining building materials with lighting to achieve a display method of media dissemination.


2.调光玻璃/膜
调光玻璃其是一种夹层玻璃,将调光液晶膜放置入两层玻璃中间,然后置于高压釜或夹胶炉经高温高压胶合后得到,是一种新型特种光电玻璃产品。其中的液晶调光膜在通电与不通电的情况下会秒切换为不同的视觉状态.
2. Dimming glass/film
Dimming glass is a type of laminated glass, which is made by placing a dimming liquid crystal film between two layers of glass, and then placing it in a high-pressure kettle or adhesive furnace for high-temperature and high-pressure bonding. It is a new type of special photoelectric glass product. The liquid crystal dimming film will switch to different visual states in seconds when powered on or off
▼通电透明,断电雾化,Transparent power on, atomized power off


3.U型玻璃
U型玻璃(U-Profile-Glass)亦称槽型玻璃,是一种新颖的建筑型材玻璃,国外有近40年的生产应用历史。
3. U-shaped glass
U-Profile Glass, also known as channel glass, is a novel type of architectural profile glass with a production and application history of nearly 40 years abroad.
因截面呈U型,使之比普通平板玻璃有较高的机械强度并具有理想的透光性、较好的隔音性、保温隔热性、能节省大量金属材料、以及施工简便等优点,适用于建筑的内外墙、隔墙、屋面及窗等。
Due to its U-shaped cross-section, it has higher mechanical strength compared to ordinary flat glass and has advantages such as ideal transparency, good sound insulation, thermal insulation, saving a large amount of metal materials, and easy construction. It is suitable for internal and external walls, partitions, roofs, and windows of buildings.


4.自移动隔断
自移动隔断是指通过智能化、体系化的运作机制实现快速精准的分割室内空间的隔断自移动隔断的工作流程
4. Self moving partition
Self moving partitions refer to the workflow of quickly and accurately dividing indoor spaces through intelligent and systematic operating mechanisms
简洁的液晶显示器一键触屏启动,方便快捷。
A simple LCD display with one touch screen startup, convenient and fast.



5.轻陶石
PU轻陶石是一种绿色的新型装饰材料耐油,耐磨,耐低温,耐老化,硬度高,有弹性能做到天然石头的造型和颜色,产品轻质、健康环保可钉,可锯,可刨,可洗,不龟裂,不变形,不虫蛀施工方便简单,使用胶水或者钉子直接安装适用于各种室内,室外的装饰用材。
5. Light pottery stone
PU light ceramic stone is a new type of green decorative material that is oil resistant, wear-resistant, low temperature resistant, aging resistant, high hardness, and elastic. It can achieve the shape and color of natural stones. The product is lightweight, healthy, and environmentally friendly, and can be nailed, sawn, planed, washed, not cracked, deformed, and not eaten by insects. The construction is convenient and simple, and can be directly installed with glue or nails. It is suitable for various indoor and outdoor decorative materials.




6.长效抗菌氧化铝
表面处理技术将长效抗菌效果与氧化铝产品结合,从而显著降低细菌和病毒疾病的传播。有利于现在疫情的防范,该技术可用于对环境有严格要求的公共空间,从而减少交叉污染,长效抗菌氧化铝采用特殊工艺能够达到99.9999%的抗菌率,长效抗菌抑制病毒疾病。
6. Long acting antibacterial alumina
Surface treatment technology combines long-term antibacterial effects with alumina products, significantly reducing the spread of bacterial and viral diseases. This technology is conducive to the prevention of the current epidemic. It can be used in public spaces with strict environmental requirements, thereby reducing cross contamination. Long acting antibacterial alumina can achieve a antibacterial rate of 99.9999% using special processes, and long-term antibacterial can inhibit viral diseases.



05
室外景观效果图
EFFECTS AND CONCEPTS
▼主入口效果图,EFFECTS AND CONCEPTS


▼屋顶现状,EFFECTS AND CONCEPTS

▼屋顶景观平面图,EFFECTS AND CONCEPTS


▼屋顶景观效果图,EFFECTS AND CONCEPTS
















项目名称:国网租赁公司人济大厦B座办公区精装修设计项目
文章分类:室内设计-办公会议
设计理念:安全 | 经济 | 绿色
项目规模:1—3层平面为895.38㎡,4—15层为907.99㎡,16——18层为985.71㎡
主创设计师:王建伟
设计团队:张振波、栾雪婷、董涛
设计公司:北京华城远大建设有限公司
项目年份:2021年
项目地址:北京市朝阳区
业主单位:国网租赁公司
新型建材:光电玻璃,调光玻璃/膜,U型玻璃,轻陶石,长效抗菌氧化铝
Project Name: State Grid Leasing Company Renji Building B Office Area Fine Decoration Design Project
Article classification: Interior Design - Office Meetings
Design philosophy: Safety | Economy | Green
Project scale: The plan of the 1-3 floors is 895.38 square meters, the 4-15 floors are 907.99 square meters, and the 16-18 floors are 985.71 square meters
Chief designer: Wang Jianwei
Design team: Zhang Zhenbo, Luan Xueting, Dong Tao
Design company: Beijing Huacheng Yuanda Construction Co., Ltd
Project Year: 2021
Project address: Chaoyang District, Beijing
Owner: State Grid Leasing Company
New building materials: photoelectric glass, dimming glass/film, U-shaped glass, light ceramic stone, long-term antibacterial alumina
