
太原市末染装饰工程有限公司
********
********
山西省太原市万柏林区
孟飛,毕业于2011年,从事设计工作已有九年,怀着对设计的热爱与坚持,18年与爱人一起创办自己的工作室——末染设计,出自more than、one、other,设计的初心是生活中不止有设计,还有其他包括在内的人文关怀和情感。
兮間,太阳/室内
生命就是一场寻找和表达自己的过程。
我们都在用自己的生存方式表达自己,这是关乎情感,关乎温度。建筑和服装其实是人的另一层皮肤或庇护所,它可以保护、表达我们。它需要符合我们审美,适合我们的身形和气质,它需要被触摸,需要去体验。希望这个空间会让我们更好的感受服装,寻找自己,表达自己……
Life is a process of finding and expressing oneself.
We are all expressing ourselves in our own way of life, which is about emotion and temperature. Architecture and clothing are actually another layer of human skin or shelter, which can protect and express us. It needs to be in line with our aesthetics, suitable for our body shape and temperament. It needs to be touched and experienced. I hope this space will let us better feel the clothing, find ourselves and express ourselves……
有限的门面宽幅采用大面落地窗设计,呈现一个更为开阔的视觉空间。设计师希望玻璃窗外不只是路经时一瞥即逝,寻找自己影子的围墙,而是与行人产生链接的载体。退让的室外空间可以为生活在这座城市中行色匆匆的赶路人,或是闲逛街亭的人们,提供一个歇脚之地;哪怕是在这拥挤的街头,甚至在商店打烊的雨夜,也有个临时避雨的场所。
The limited width of the facade is designed with large floor to ceiling windows, presenting a more open visual space. The designer hopes that the glass window is not just a wall to look for his own shadow, but a carrier to link with pedestrians. The retreating outdoor space can provide a resting place for people who are in a hurry to travel in the city or stroll around the street kiosks; Even in this crowded street, even on the rainy night when the shops close, there is a temporary shelter from the rain.
▼正门外立面,Facade outside the front door

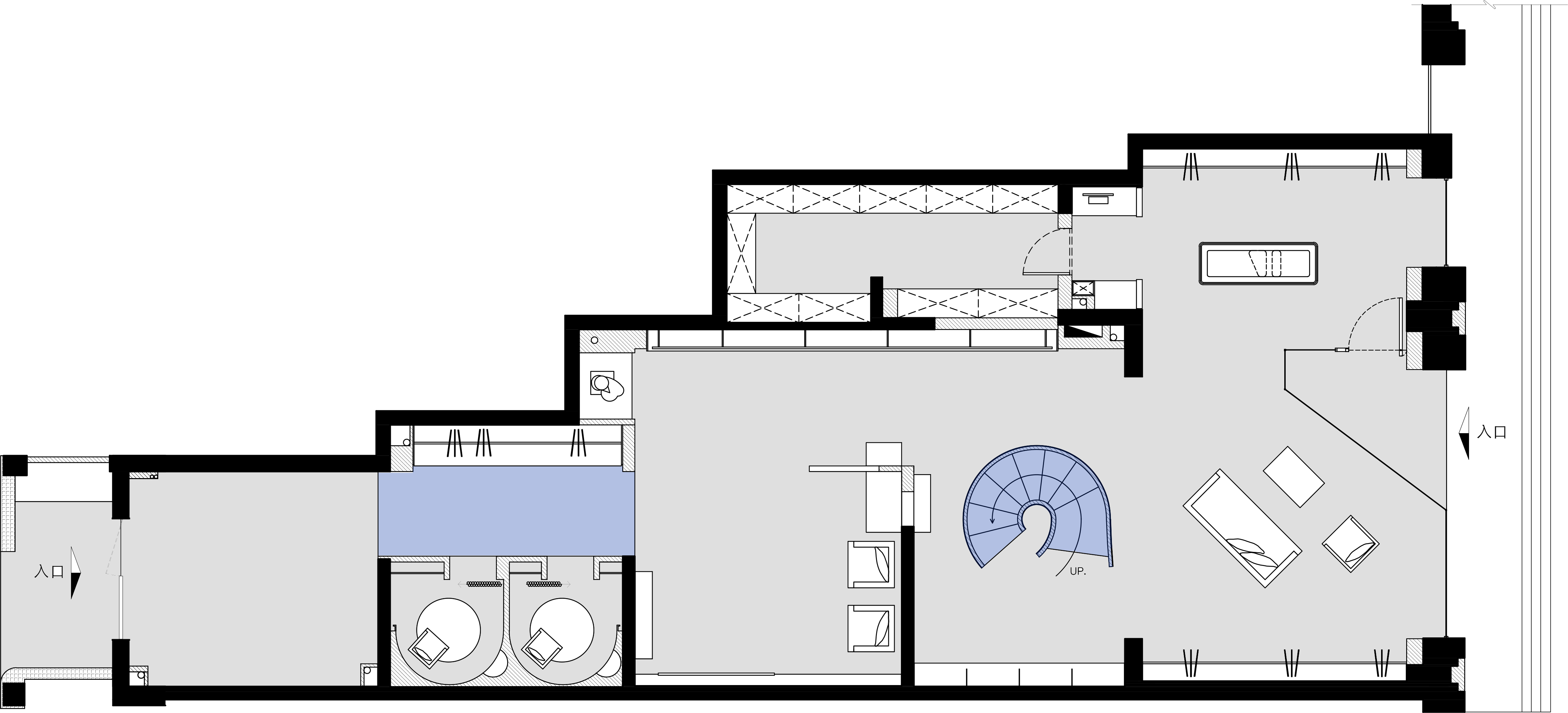
▼一层平面 末染设计,First floor flat finish design

▼二层平面 末染设计,Second floor plane finish dyeing design

项目定位:
服装与建筑的起源都是为了遮蔽和保护人类,一个有着流动之美,一个有着凝固之美,两者都是人类肌肤的延伸,都是关于人的艺术。一群拥有着相同爱好的年轻人,一个新兴的本土独立品牌,MAISON JANE(兮間)。我们期望着引导进入的观者,在白色的空间中,在毫无干扰的状态下剥离开来,回想自己的阅历和经验,逐渐抛去疲累和负担,在自我的关注里对内不断求索,回归到自我轻灵的“本真”和“初心”。
Project orientation:
The origin of clothing and architecture is to shelter and protect human beings. One has the beauty of flow and the other has the beauty of solidification. Both are extensions of human skin and are about human art. A group of young people with the same hobbies, a new local independent brand, Maison Jane (Xijian). We expect the viewer who leads us to the white space to peel away without interference, recall his own experience and experience, gradually throw away his fatigue and burden, constantly seek for the inside in his own attention, and return to his light "true" and "original heart".
空间意境:
当我们进入一个空间的时候,通常会在第一时间被空间的色彩所环抱,注意力也最容易被空间色彩所吸引。通过“白”这个色彩,来体现“净”与“静”的美学观念,在更高的哲学高度上,我们想要用“白”来还原真实世界与心灵世界的一种“初态”。削减到本质,不能剥离它的韵,保持干净纯净,但不要剥夺生命力。白色空间里,我们想要通过简单淳朴的色彩语言,缓缓叙述历经沧桑与时间的洗礼,一切褪去浮华,展现本真的原始状态”。
Space artistic conception:
When we enter a space, we are usually surrounded by the color of the space at the first time, and our attention is most easily attracted by the color of the space. Through the color of "white", we can reflect the aesthetic concepts of "purity" and "stillness". At a higher philosophical level, we want to use "white" to restore the "initial state" of the real world and the spiritual world. Cut down to the essence, do not peel off its rhyme, keep it clean and pure, but do not deprive it of vitality. In the white space, we want to slowly narrate the baptism of vicissitudes and time through simple and simple color language, so that everything fades away from the flashiness and shows the original state of the truth ".
空间布局:
我们希望顾客置身于⼀个互动呼吸的空间⾥⾯,⼈、物、景的构成,既和谐如画,也流动如乐章。顾客围绕商品体验⾛动,感受空间里有层次和节奏的变化。秉承以上关系设想,我们没有做过多的空间分割,在保留空间⼀体化的基础上,⽤景观的形式来营造整个天地感——独特的在空间内构筑出⼀种奇妙的⾃然物理状态,兼备柔与力的质量感、舒适的利落块⾯、温柔的细腻曲线,所有的感受与视角随着顾客的运动⽽变化,带来丰富的空间互动感受。
Space layout:
We hope that our customers will be in an interactive breathing space, where the composition of things and scenery is both harmonious and flowing like music. Customers move around the commodity experience, and feel the changes of levels and rhythms in the space. Adhering to the above relationship assumption, we have not done too much space division. On the basis of preserving the integration of space, the form of landscape creates the whole sense of heaven and earth - a unique and wonderful physical state is built in the space, with a sense of quality of softness and strength, comfortable and sharp blocks, and gentle and delicate curves. All feelings and perspectives change with the movement of customers, bringing rich feelings of space interaction.
▼二层四面休闲区,Four side leisure area on the second floor

白色空间里,我们想要通过简单淳朴的色彩语言,缓缓叙述历经沧桑与时间的洗礼,一切褪去浮华,展现本真的原始状态。
In the white space, we want to use simple and simple color language to slowly narrate the baptism of vicissitudes and time, so that everything fades away and shows the original state of authenticity.
▼试衣间过道,Fitting room aisle

景观
室内景观以“园林”为概念,融合了树、石、木等传统元素以及微水泥、不锈钢等的现代材料,以纯粹的笔触勾勒无形的丰盈,赋予其惬意悠然的情感表达以及更深远的内涵,倾力演绎贯通古今的和谐之美。
Scenery
The interior landscape takes "garden" as the concept, integrates traditional elements such as trees, stones and wood and modern materials such as micro cement and stainless steel, outlines the intangible richness with pure strokes, endows it with comfortable and leisurely emotional expression and more profound connotation, and tries to deduce the beauty of harmony through ancient and modern times.
▼二层景观,Landscape on the second floor

临近和距离,触摸和感受,当下和想象,提供一个使人沉浸和愉悦的外表,使得我们的眼睛和所有的感官被诱醒,去形成一个从进入开始的完整的体验感。
Proximity and distance, touch and feeling, present and imagination provide an immersive and pleasant appearance, so that our eyes and all senses are awakened to form a complete experience from the beginning of entry.
▼室内庭院,Indoor courtyard

细节处增添镜子反射的原理,增添纵向延伸感,赋予空间灵动性。
The principle of mirror reflection is added to the details, which adds a sense of longitudinal extension and endows the space with flexibility.
▼地面细节,Ground details

▼二层拍照区,2F photo area

形状
以一种尽可能开放的空间去承载生活的联系,每一个产品都能在这里得以解释。作为载体的容器,它具有包容万物的能力。
Shape
Every product can be explained here in an open space to carry the connection of life. As a carrier container, it has the ability to contain all things.
光能凭空造型,勾勒出物体的轮廓;也能打破造型,分割僵硬沉重的空间。展厅作为载体的容器,由纯粹的造型、单色的材料、明亮的质感打造,为在规整的布局和有限的面积中寻求突破。
Light energy shapes out of thin air and outlines the outline of the object; It can also break the shape and divide the rigid and heavy space. The exhibition hall, as the container of the carrier, is made of pure modeling, monochrome materials and bright texture, seeking a breakthrough in the regular layout and limited area.
▼二层入口,Entrance on the second floor


建筑不喧,自有声。空间不言,自从容。
一种沐浴在时间光泽下,简洁安静中的质朴之美,与极简主义有异曲同工之妙,却更为璞真深邃。一种干净纯粹,兼具生命力的美。简朴至极,亦是高贵。
A building has its own sound. Space does not say, from calmly.
A simple beauty bathed in the luster of time, simple and quiet, which is similar to minimalism, but more simple and profound. A clean and pure beauty with vitality. Simple to the extreme, but also noble.
服装与建筑的起源都是为了遮蔽和保护人类,一个有着流动之美,一个有着凝固之美,两者都是人类肌肤的延伸,都是关于人的艺术。一群拥有着相同爱好的年轻人,一个新兴的本土独立品牌,MAISON JANE(兮間)在电商经济如此成熟的今天,希望将其“克制而极致”的态度融入到实体店空间。
The origin of clothing and architecture is to shelter and protect human beings. One has the beauty of flow and the other has the beauty of solidification. Both are extensions of human skin and are about human art. A group of young people with the same hobbies, a new local independent brand, Maison Jane (Xijian), hopes to integrate its "restraint and extreme" attitude into the physical store space in today's e-commerce economy is so mature.
▼项目一瞥,Project at a glance

色彩
当我们进入一个空间的时候,通常会在第一时间被空间的色彩所环抱,注意力也最容易被空间色彩所吸引。通过“白”这个色彩,来体现“净”与“静”的美学观念,在更高的哲学高度上,我们想要用“白”来还原真实世界与心灵世界的一种“初态”。
Color
When we enter a space, we are usually surrounded by the color of the space at the first time, and our attention is most easily attracted by the color of the space. Through the color of "white", we can reflect the aesthetic concepts of "purity" and "stillness". At a higher philosophical level, we want to use "white" to restore the "initial state" of the real world and the spiritual world.
▼一层休闲区,1F leisure area

结构
虽然是白色的空间,却不是空无一物。
Structure
Although the space is white, it is not empty.
旋转楼梯为空间的中景进行展开,让一镜到底的空间多了层次。楼梯弧形的流畅的形体,也让整个空间更为从容优雅,增添了空间的气质。
The revolving stairs unfold the middle view of the space, which makes the space from one mirror to the bottom more hierarchical. The smooth shape of the curved stair also makes the whole space more calm and elegant, adding to the temperament of the space.
▼一层通向二层,1st floor to 2nd floor


设计选材:
室内景观以“园林”为概念,融合了树、石、木等传统元素以及微水泥、不锈钢等的现代材料,以纯粹的笔触勾勒无形的丰盈,赋予其惬意悠然的情感表达以及更深远的内涵,倾力演绎贯通古今的和谐之美。
Design material selection:
The interior landscape takes "garden" as the concept, integrates traditional elements such as trees, stones and wood and modern materials such as micro cement and stainless steel, outlines the intangible richness with pure strokes, endows it with comfortable and leisurely emotional expression and more profound connotation, and tries to deduce the beauty of harmony through ancient and modern times.
用户体验:
在空间内的改造,远超出空间本身。小空间的来回转换显得自然,不在收到隔断的约束,让空间在设计中得到了升华。开业后好评如潮,多功能空间的设置,使得每一次展览,或是沙龙活动,都能轻松应对。
User experience:
The transformation in the space is far beyond the space itself. The back and forth transformation of small space is natural, and the space is sublimated in the design without receiving the restriction of partition. After the opening, the multi-functional space has been highly praised, making it easy to deal with every exhibition or salon activity.
细节
金色部分运用了金箔,搭配黑色乳胶漆。黑色与金色的搭配一直是时装设计师,乃至整个时尚界的宠儿,它从不会缺席任何大牌的T台与秀场。黑金颜色的经典搭配,让视觉感官的层次更加丰富。配合一体式的石材台盆,让空间变得更加整体。
Details
The gold part is made of gold foil and black emulsion paint. The collocation of black and gold has always been the favorite of fashion designers and even the whole fashion industry. It will never miss any big T-stage and show. The classic collocation of black gold color enriches the level of visual senses. With the integrated stone basin, the space becomes more integrated.
▼室内细节:黑金搭配,Interior details: black gold matching

不过分追求装饰性和复杂化,光和空间的双重奏里,时间在流转,色彩在变换,体积在变化,赋予空间变幻莫测的瞬间感,创造出有趣的互动视觉。
Do not excessively pursue decoration and complexity. In the double play of light and space, time is flowing, color is changing, and volume is changing, which endows the space with an unpredictable instantaneous sense and creates an interesting interactive vision.
▼二层展示区,Exhibition area on the second floor

外立面
随着经济的发展,沿街商业建筑门面在经济浪潮中不断的更新迭代。对于寸土寸金的黄金地段,大家都在挖空心思,尽可能的扩大自己的经营面积,看似空间大了,实则客人却小了,建筑与人的距离也被拉远了。在门面设计中做出最温暖的退让,将部分室内面积让给到没有进店的行人。
Facade
With the development of economy, the facade of commercial buildings along the street is constantly updated and iterated in the economic wave. As for the golden area where an inch of land is worth an inch of gold, everyone is trying to expand their business area as much as possible. It seems that the space is large, but in fact the guests are small, and the distance between buildings and people is also widened. Make the warmest concession in the facade design, and give part of the indoor area to pedestrians who do not enter the store.
▼后门厅,Back door Hall

项目信息
项目名称:兮間
文章分类:室内设计
设计公司:末染设计
项目地址:太原市
项目规模:360㎡
获奖案例:金堂奖
摄影师:阿龙
Project information
Project Name: Xi Jian
Article category: Interior Design
Design company: final dyeing design
Project address: Taiyuan City
Project scale: 360 ㎡
Award case: Jintang Award
Photographer: a long
