
王建伟
********
********
北京市北京市东城区
方案设计、效果图制作及现场施工对接。
中材节能创新综合楼室内装修及室外景观设计方案,天津/室内
多元化 | 创造性| 智能性| 绿色健康
Diversified | Green type | Intelligent | Green Health

项目概况
PROJECT PROFILE
▼总平面图,general layout


项目现状及任务书分析
BUILDING STATUS &DESIGN ORDER
总平面分析
GENERAL PLANE ANALYSIS
优势分析:
1.项目位置在地块西南角,可相对独立成区
2.建筑主入口距园区入口较近,可达性较好
3.建筑周边为环形道路,且四个方向均有出入口,便于不同功能的流线组织
Advantage analysis:
1. The project is located in the southwest corner of the plot and can be relatively independent into a district
2. The main entrance of the building is relatively close to the entrance of the park, with good accessibility
3. The building is surrounded by circular roads with entrances and exits in all four directions, facilitating the organization of flow lines for different functions
劣势分析:
1.建筑主入口距消防车道距离较近,且地面停车位较满,无室外入口的广场空间
2.建筑与地下车库不连通
Disadvantage analysis:
1. A square space where the main entrance of the building is close to the fire lane and the ground parking spaces are full without outdoor entrances
2. The building is not connected to the underground garage

建筑现状分析
BUILDING STATUS
优势分析:
1. E座主入口门厅双层挑空,空间品质好
Advantage analysis:
1. The main entrance hall of Building E is double layered and has a good quality of space
劣势分析:
1.D、E、F三个楼座之间出入口相对独立,无统一的公司形象出入口,D座、F座出入口门厅空间狭小,不能体现公司形象;
2.三个楼座一二层功能空间彼此不连通;
3.D座首层东北角为服务整个园区的消防控制室,此区域不能改造;
4.D座一二层南侧墙面与E座毗邻无开窗,采光条件较差;
Disadvantage analysis:
1. The entrances and exits between buildings D, E, and F are relatively independent, without a unified company image entrance and exit. The entrance hall space of buildings D and F is narrow, which cannot reflect the company image
2. The functional spaces on the first and second floors of the three buildings are not connected to each other
3. The northeast corner of the first floor of Building D is the fire control room that serves the entire park, and this area cannot be renovated
4. The south wall of the first and second floors of Building D is adjacent to Building E without any windows, resulting in poor lighting conditions

优势分析:
1. 首层及二层层高较高,空间尺度舒适
Advantage analysis:
1. The height of the first and second floors is relatively high, and the spatial scale is comfortable
劣势分析:
1.建筑3-9层层高较低,作为办公空间净高较为局促
2.原建筑未考虑报告厅等高大空间的净高要求
Disadvantage analysis:
1. The height of the 3-9 floors of the building is relatively low, and the net height of the office space is limited
2. The original building did not consider the net height requirements for tall spaces such as the lecture hall

优势分析:
1.F座南向为低层建筑,上层空间视野较好
2.建筑结构为框架结构,柱网规则,便于功能的改造与划分
Advantage analysis:
1. Building F is a low rise building facing south, with a better view of the upper space
2. The building structure is a frame structure with regular column grids, which facilitates functional transformation and division
劣势分析:
1.三个楼座屋顶均为不上人屋面,屋顶空间未充分利用
2.建筑外立面开窗较小,东西两面开窗少,不利于办公空间布局
3.设计未体现绿色、健康、环保、智慧建筑的时代要求
4.结构板为密肋楼板,加固改造难度大
Disadvantage analysis:
1. The roofs of all three buildings are non accessible and the roof space is not fully utilized
2. The exterior facade of the building has smaller windows and fewer windows on the east and west sides, which is not conducive to the layout of the office space
3. The design does not reflect the requirements of the times for green, healthy, environmentally friendly, and smart buildings
4. The structural plate is a ribbed floor slab, which is difficult to reinforce and transform


任务书分析
DESIGN ORDER
功能类型:
1.展览展示:文化中心、科技馆、院士工作站、精密仪器陈列室
2.公共服务:门厅、会议中心(报告厅、中小会议室)、健身房、屋顶花园
3.餐饮:厨房、员工餐厅、包间
4.办公
5.员工宿舍
Function type:
1. Exhibition display: Cultural Center, Science and Technology Museum, Academician Workstation, Precision Instrument Exhibition Room
2. Public services: foyer, conference center (lecture hall, small and medium-sized conference rooms), gym, rooftop garden
3. Catering: Kitchen, Employee Restaurant, Private Room
4. Office work
5. Employee dormitories
功能特点:
功能及流线较为复杂,涉及多类功能空间的流线组织
Functional features:
The functions and streamline are relatively complex, involving the streamline organization of multiple functional spaces

02
功能定位与设计理念
FUNCTION ORIENTATION AND DESIGN CONCEPT
中材节能积极倡导并努力实践合作与共赢的精神,得到了全球合作伙伴与客户的广泛赞誉,伴随国家经济的快速发展企业经历了高速成长,现在又迈入高质量发展新阶段。在“十四五”新征程中,中材节能将坚持党建引领发展,坚持改革促发展,坚持创新促发展,坚持国际化促发展,持续提高企业的发展质量和效益,不断做强做优做大国有资本,为实现公司跨越式发展、创建世界一流企业努力奋斗!
Zhongcai Energy Conservation actively advocates and strives to practice the spirit of cooperation and win-win, which has been widely praised by global partners and customers. With the rapid development of the national economy, the enterprise has experienced rapid growth and is now entering a new stage of high-quality development. In the new journey of the 14th Five Year Plan, Sinoma Energy Conservation will adhere to Party building leading development, reform promoting development, innovation promoting development, internationalization promoting development, and continuously improve the quality and efficiency of enterprise development. We will strive to become stronger, better, and more capitalist, and strive to achieve leapfrog development of the company and create a world-class enterprise!
一、设计目标
庄重典雅、绿色环保、科技创新、现代化办公理念
1、Design objectives
The concept of solemnity and elegance, green environmental protection, technological innovation, and modern office
二、设计定位:
简洁、科技、庄重、高品质
2、 Design positioning:
Simplicity, technology, solemnity, and high quality

三、设计理念:
务实、创新、安全
结合公司特有文化理念与核心价值观:
中材节能股份有限公司以习近平新时代中国特色社会主义思想为指导,全面贯彻落实十九大及历次全会精神,全面贯彻习近平总书记关于国资国企改革发展和党的建设重要论述,按照集团“4335”指导原则和公司“3335”战略规划;强管理、控风险,保障完成公司目标;育先机、开新局,全面推动高质量发展;推改革、 促调整,提升企业发展活力;重党建、强文化,引领企业做强做优做大;因此在空间设计表现上我们要符合企业的核心理念 与价值所在。打造现代科技前卫的空间。应用金属和石材作为空间的主要装饰材料,展现空间的庄重典雅和前沿科技感。定制企业专属的经济、环保、实用、以人为本的绿色型公共空间。
3、 Design philosophy:
Pragmatism, Innovation, and Security
Combining the unique cultural concepts and core values of the company:
Strong management and risk control to ensure the achievement of company goals; Nurturing opportunities, opening up new opportunities, and comprehensively promoting high-quality development; Promote reform and adjustment to enhance the vitality of enterprise development; Emphasize party building, strengthen culture, and lead enterprises to become stronger, better, and larger; Therefore, in terms of spatial design performance, we need to conform to the core concepts and values of the enterprise. Create a space that is avant-garde in modern technology. Using metal and stone as the main decorative materials for space, showcasing the solemnity, elegance, and cutting-edge technology of the space. Customized green public spaces exclusively for enterprises that are economical, environmentally friendly, practical, and people-oriented.
作为国家重点单位,引领国有企业,推进红色文化
As a national key unit, leading state-owned enterprises and promoting red culture

灵活性、适应性
新兴的办公空间应具备灵活性和适应性,可采取办公室办公和远程办公相结合的工作方式,这种新的办公模式不仅有助于解决后疫情时代存在的问题,而且有助于探索新的办公策略。楼宇智能化的水平的持续提升,促进办公室办公人员与远程办公人员的互联互通,新的办公空间必须能够更加敏捷地适应新的工作方式,并配备灵活的空间和设施,满足新兴办公模式的需求。会议室应该能够为与会者,无论是以线下还是线上方式出席会议,营造平等的会议体验。秉持平等公平和包容性理念打造的办公空间,将有助于增强企业文化并建立新的联系,打造更深层次、更丰富的办公空间体验。
Flexibility and adaptability
Emerging office spaces should have flexibility and adaptability, and can adopt a combination of office and remote work methods. This new office model not only helps to solve the problems in the post pandemic era, but also helps to explore new office strategies. The continuous improvement of the level of building intelligence promotes the interconnection between office workers and remote workers. New office spaces must be able to adapt more agile to new work methods and be equipped with flexible spaces and facilities to meet the needs of emerging office models. The conference room should be able to provide participants with an equal meeting experience, whether they attend the meeting offline or online. The office space created with the principles of equality, fairness, and inclusivity will help enhance corporate culture and establish new connections, creating a deeper and richer office space experience.
配备灵活的空间和设施,满足新兴办公模式的需求。
Equipped with flexible space and facilities to meet the needs of emerging office models.

人文、协作
办公空间始终秉持以人为本的理念。
社交、平等、再利用、幸福感和平衡等元素已经成为全新办公体验不可或缺的组成部分。办公室的基本角色已经发生转变,正在成为一个将人们聚集在一起进行合作、建立人际关系和工作关系以及将人们与公司特有的业务、使命和目的联系起来的场所。独处空间和协作空间的布局正在发生变化,对空间进行更有效的利用——减少独处空间,增加协作空间,增设形象展示空间、陈列室、虚拟现实休息室等。建筑面积的分配是相同的——不同的是我们如何使用这些空间。更加注重空间的设计和空间利用/再利用方式,办公空间将担负起更高的使命。随着办公空间将逐渐承担起协作枢纽的作用,空间规划的重点也将从办公桌慢慢转至更高比例的协同工作。通过平面布局和设计方案,建筑各层将设立可扩展的专用空间与共享区域,提供最大的灵活性,通过将建筑物的结构、系统、服务和管理根据用户的需求进行最优化组合,从而提供一个高效、舒适、便利的人性化建筑环境。
Humanities and collaboration
The office space always adheres to the concept of people-oriented.
Social interaction, equality, reuse, happiness, and balance have become indispensable components of a new office experience. The basic role of the office has undergone a transformation, becoming a place where people gather together for collaboration, establish interpersonal and work relationships, and connect people with the unique business, mission, and purpose of the company. The layout of solitary and collaborative spaces is undergoing changes, making more effective use of space - reducing solitary spaces, increasing collaborative spaces, adding image display spaces, exhibition rooms, virtual reality lounges, etc. The allocation of building area is the same - the difference is how we use these spaces. More emphasis will be placed on space design and utilization/reuse methods, and office spaces will shoulder a higher mission. As the office space gradually takes on the role of a collaborative hub, the focus of spatial planning will gradually shift from desks to a higher proportion of collaborative work. Through the layout and design scheme, each floor of the building will be equipped with expandable dedicated spaces and shared areas, providing maximum flexibility. By optimizing the structure, system, services, and management of the building according to user needs, an efficient, comfortable, and convenient humanized building environment will be provided.


健康、环保
健康建筑是推动新时代高质量绿色建筑发展的重要途径。
选择权、自主权、身心健康和幸福感已经成为个人和团队发挥最佳效能的首要条件。从健康检查、无接触式安全保障到升级后的空气质量系统,业主和用户都把目光集中在绿色建筑和体验上。户外空间日渐成为办公环境中不可或缺的组成部分,而开放式立面与改造后的屋顶花园可以提供额外的灵活办公空间。增加露台或阳台等室外空间,以解决员工担忧的室内空气质量问题,并为员工提供了多样化的空间选择。人们喜欢这种室内外的无缝连接,并且这些空间可以为户外办公提供一种选择。
Health and environmental protection
Healthy buildings are an important way to promote the development of high-quality green buildings in the new era.
The right to choose, autonomy, physical and mental health, and happiness have become the primary conditions for individuals and teams to maximize their effectiveness. From health checks, contactless safety measures to upgraded air quality systems, both homeowners and users are focusing on green buildings and experiences. Outdoor space is increasingly becoming an indispensable component of the office environment, and open facades and renovated rooftop gardens can provide additional flexible office space. Adding outdoor spaces such as terraces or balconies to address employee concerns about indoor air quality and providing employees with diverse space choices. People like this seamless connection between indoor and outdoor spaces, and these spaces can provide a choice for outdoor work.
▼整合室外和室内空间,Integrate outdoor and indoor spaces


智慧创新
5G技术的发展加速了办公空间自动化和数字化的进程。
数字化和自动化技术在科技行业的发展势头尤为迅猛。工作和办公场所之间的联系已经不再那么密切,根据新的定义,办公室是将人们聚集在一起的最佳场所——尤其是对于那些依靠面对面协作、需要特定空间或共享资源来开展工作的人而言,数字化系统将持续提升无缝连接能力和个性化水平。具体包括综合布线系统、视频监控系统、智能门禁系统、智能访客系统、电子巡查系统、息引导与发布系统、、智能会议系统、多媒体会议系统、建筑设备监控系统等。
Smart innovation
The development of 5G technology has accelerated the process of office space automation and digitization.
The development momentum of digitalization and automation technology in the technology industry is particularly rapid. The connection between work and the workplace is no longer as close. According to the new definition, the office is the best place to bring people together - especially for those who rely on face-to-face collaboration, require specific spaces or shared resources to carry out work, digital systems will continue to improve seamless connectivity and personalization levels. Specifically, it includes comprehensive cabling system, video surveillance system, intelligent access control system, intelligent visitor system, electronic inspection system, information guidance and release system, intelligent conference system, multimedia conference system, building equipment monitoring system, etc.


四、设计说明:
整体空间基调:庄重典雅、简洁、高品质,展现企业的核心文化理念,肩负着特殊使命,不失传统文化的延续,在空间布置中融入了国际化前沿的办公理念,在统一与变化中有机融合,体现当代美学思想,视觉和谐、功能和谐。简约高品质。
4、 Design Description:
The overall spatial tone is solemn, elegant, concise, and of high quality, showcasing the core cultural concepts of the enterprise. It shoulders a special mission and does not lose the continuity of traditional culture. The international cutting-edge office concepts are integrated into the spatial layout, organically integrating unity and change, reflecting contemporary aesthetic ideas, visual harmony, and functional harmony. Simplicity and high quality.
原则:整体设计在满足国家相关法律法规及政府部门规范规定;结合企业现代化管理模式,突出设计理念。并结合国家相关管理规范及标准。在符合企业的建设要求下,优化各空间,高效利用,使各区域流线、空间布局更为合理。凸显高品质设计原则,在建设标准上体现在室内空间品质、色彩的选择、质感的处理等美学要求和文化品味上。设计中考虑前瞻性和先进性;形象和空间处理简洁大气,富有时代感,与企业的服务理念相协调。在人性化原则中,满足功能的前提下,充分考虑企业实际情况与需求,注重人的心理、行为需要,创造出以人为本的良好办公环境,注重使用的便捷性和科学性和合理性。为企业职员提供温馨舒适、开敞明亮的公共环境。
Principle: The overall design should comply with relevant national laws and regulations as well as government department norms and regulations; Combining modern management models of enterprises, highlighting design concepts. And combined with relevant national management norms and standards. Under the construction requirements of the enterprise, optimize various spaces, efficiently utilize them, and make the streamline and spatial layout of each region more reasonable. Highlight the principle of high-quality design, which is reflected in the aesthetic requirements and cultural taste of indoor space quality, color selection, and texture processing in construction standards. Forward looking and progressiveness design; The image and spatial processing are concise and atmospheric, full of a sense of the times, and coordinated with the company's service philosophy. In the principle of humanization, while meeting the functional requirements, fully consider the actual situation and needs of the enterprise, pay attention to human psychological and behavioral needs, create a people-oriented good office environment, and pay attention to the convenience, scientificity, and rationality of use. Provide a warm, comfortable, open and bright public environment for enterprise employees.
空间动线:将D/E/F座楼形成一体,以E座作为主要交通中心。参观流线主要集中在一层,在流线上由E座进入然后直接进入F座(企业文化中心),之后在进入科技展厅,最后进入我们的精密仪器室,形成参观路线不重复。并且也将三座楼交通进行互通。
Space circulation: Integrating the D/E/F buildings, with E as the main transportation center. The main focus of the tour route is on the first floor, where visitors enter from Building E and then directly enter Building F (Corporate Culture Center), then enter the technology exhibition hall, and finally enter our precision instrument room, forming a non repetitive tour route. And the transportation between the three buildings will also be interconnected.

03
方案规划与设计
SCHEME DESIGNDESIGN
设计范围:本次设计区域总面积约15181.4 平方米。包括但不限于办公、展厅、宿舍、景观等。
Design scope: The total area of this design area is approximately 15181.4 square meters. Including but not limited to offices, exhibition halls, dormitories, landscapes, etc.
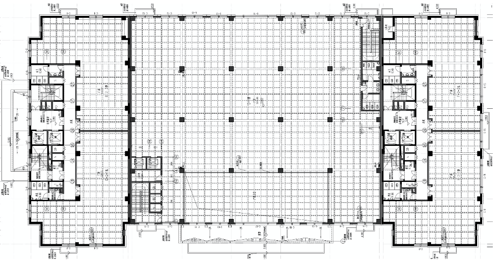
▼D座/E座/F座,D-seat/E-seat/F-seat

设计说明:
本区D/E/F座号楼的一~二层空间结构相似,D座、F座号楼三~九层空间结构相似,因此在环境装饰上采用两类手法。
依据本区建筑条件和设计需求,室内环境采光较好,在材质上墙面使用洞石,展现其空间的庄重典雅;顶面采用金属铝板,烘托其企业的未来感和科技感。
Design Description:
The spatial structure of the first to second floors of the D/E/F building in this area is similar, while the spatial structure of the third to ninth floors of the D and F buildings is similar. Therefore, two types of techniques are used in environmental decoration.
Based on the building conditions and design requirements of this area, the indoor environment has good lighting. In terms of materials, the walls are made of cave stones, showcasing the solemn and elegant atmosphere of the space; The top surface is made of metal aluminum plate, which enhances the futuristic and technological sense of the enterprise.
D E F座一层二层 方案设计
Design of the first and second floors of Block D E F
▼D E F座首层平面布局,D E F Block First Floor Plan Layout

区域说明:
首层平面,作为整栋大楼的交通枢纽,并且空间种类多样,充分体现首层该有的重要意义。因此在平面方案的布局上,依据与原有建筑平面做出了调整:原有建筑平面:三栋大楼相对独立,缺少互通出入口,整个流线有阻碍,使用不方便。
Region Description:
The first floor plan serves as the transportation hub of the entire building, with a variety of spatial types, fully reflecting the important significance of the first floor. Therefore, in terms of the layout plan, adjustments have been made based on the original building plan: the original building plan: the three buildings are relatively independent, lacking interchanges and entrances, and the entire flow line is obstructed, making it inconvenient to use.
▼D E F座首层地面铺装,Ground paving on the first floor of Block D E F

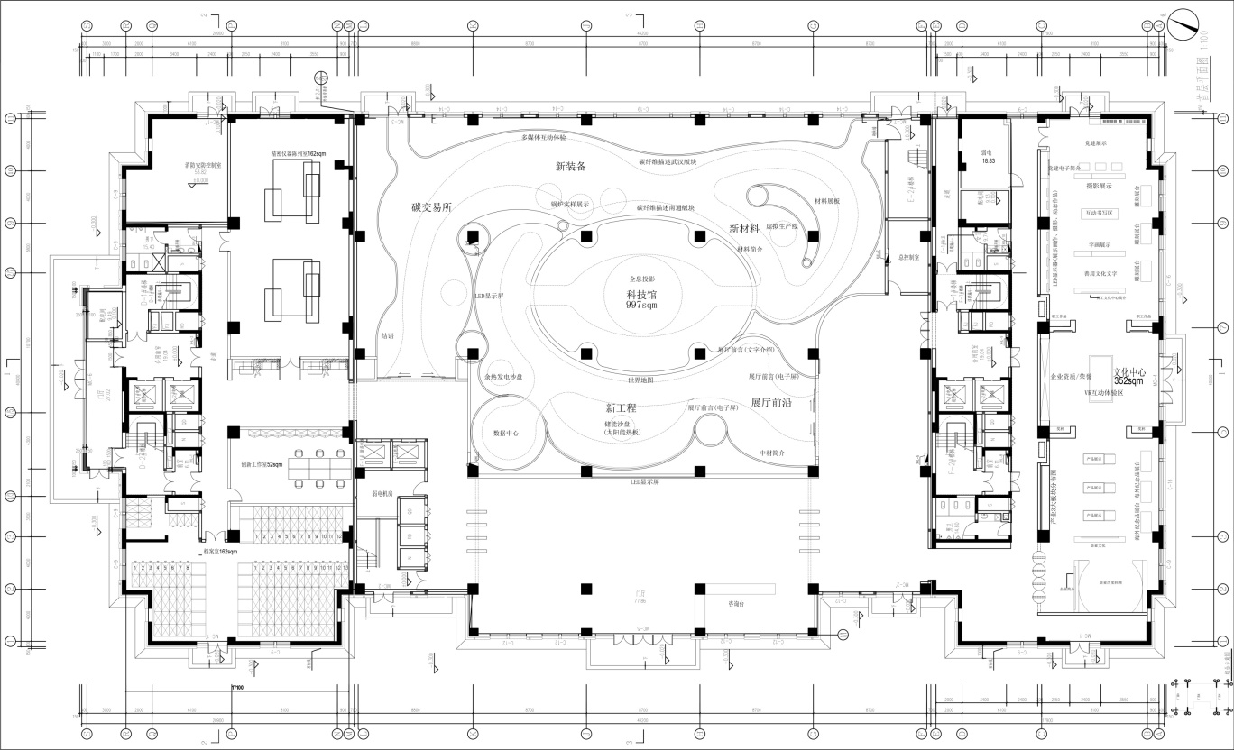
公共办公区概念 E座
Public Office Concept Block E
▼大堂效果图,CONCEPT OF SPACE


▼科技展厅效果图,CONCEPT OF SPACE




▼数据中心效果图,Data center rendering

▼企业文化中心效果图,Rendering of corporate culture center



▼电梯厅效果图,Elevator lobby rendering


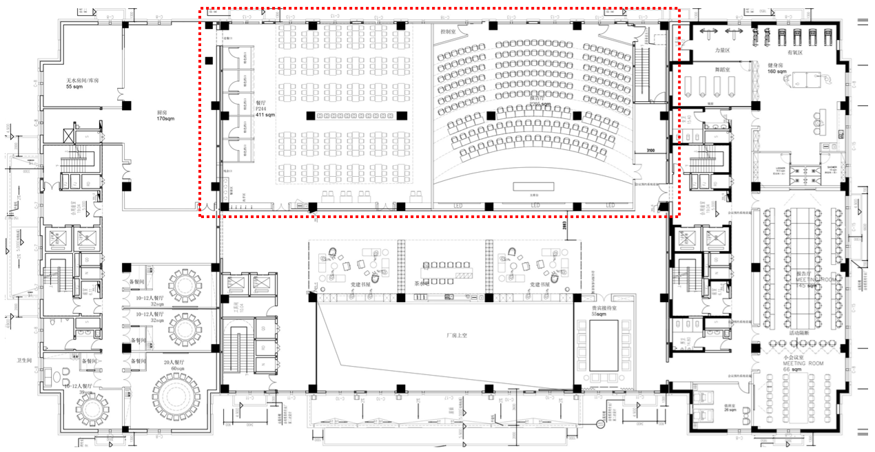
▼D E F座二层平面布局,Plan layout of the second floor of Block D E F

方案二,取消柱子,进行结构加固,人数为170人,比之前减少39人
Option 2: Cancel the columns and reinforce the structure, with a total of 170 people, a decrease of 39 people compared to before
区域说明:二层作为整栋大楼员工的生活配套区域,不仅要满足空间的多样性和灵活性,更应该在空间上花费心思的是空间的舒适度,因此在本层我们
设置了健身娱乐区,党建书屋阅读区,咖啡吧。餐厅内设计特设档口以及自助餐区,在桌椅的样式和颜色上进行变化,使人放松。
Area Description: As the living supporting area for the entire building's employees, the second floor not only needs to meet the diversity and flexibility of the space, but also needs to focus on the comfort of the space. Therefore, on this floor, we
We have set up a fitness and entertainment area, a party building reading area, and a coffee bar. The restaurant is designed with special stalls and buffet areas, with changes in the style and color of tables and chairs to make people relax.
▼D E F座二层地面铺装,Ground paving on the second floor of Block D E F

▼2F报告厅效果图,Renderings of 2F Lecture Hall

▼2F餐厅效果图,Renderings of 2F Restaurant

▼2F党建书屋效果图,Renderings of 2F Party Building Bookstore

▼接待室效果图,Reception room rendering


▼健身房效果图,Gym rendering

▼中型会议室效果图,Medium size conference room rendering

▼2F餐饮大包,2F Catering Package

▼2F餐饮小包,2F Catering Package


D、F座三层-九层方案设计
D. Design of the third to ninth floor plan for Block F
▼D/F座三层平面布局,Plan layout of the third floor of Block D/F

▼D/F座三层地面铺装,Ground paving on the third floor of Block D/F

公共办公区概念 D/F座,Concept of Public Office Area Block D/F
▼中型会议室效果,Medium sized Meeting Room Effects


▼小型会议室效果,Small Meeting Room Effect

▼会议层走道概念效果,Concept effect of conference floor walkway

▼D/F座四层平面布局,Plan layout of the fourth floor of Block D/F

▼D/F座四层地面铺装,Ground paving on the fourth floor of Block D/F

▼D/F座五层平面布局,Plan layout of the fifth floor of Block D/F

▼D/F座五层地面铺装,Ground paving on the fifth floor of Block D/F

▼D/F座六层平面布局,Plan layout of the sixth floor of Block D/F

▼D/F座六层地面铺装,Ground paving on the sixth floor of Block D/F

▼D/F座七层平面布局,Plan layout of the seventh floor of Block D/F

▼D/F座七层地面铺装,Ground paving on the seventh floor of Block D/F

开场办公区效果 D/F座
Opening Office Area Effect D/F Block
▼方案一,Scheme 1

▼方案二,Option 2

▼茶水间效果,Tea room effect

▼标准部门办公室效果,Standard department office effect

▼D/F座八层平面布局,Plan layout of the eighth floor of Block D/F

▼D/F座八层地面铺装,Ground paving on the eighth floor of Block D/F


▼D/F座九层平面布局,Plan layout of the ninth floor of Block D/F

▼F座 董事长办公室效果,Effect of Chairman's Office in Block F

▼F座 高管办公室效果,Effect of Executive Office in Block F

▼F座 领导层办公走道,F Building Leadership Office Walkway

▼D座 标准间效果,D-Block Standard Room Effect



▼D座 套房效果,D-seat suite effect

▼F座 领导层电梯厅,F Building Leadership Elevator Hall

▼F座 领导层楼梯间,F Building Leadership Staircase

▼D/F座 标准卫生间概念效果,Conceptual effect of D/F block standard bathroom

▼D/F座 标准卫生间概念效果,Conceptual effect of D/F block standard bathroom


办公区标准配套
THE STANDARD OF
FORM A COMPLETE SET
▼设备暗门,Equipment hidden door

▼电梯轿厢,Elevator car

▼标识效果,Identification effect

04
设计中新材料、新工艺、新科技的应用
NNEW ENVIRONMENTAL PROTECTION MATERIALS
▼材料大样选型,Material sample selection

材料样板
MATERIAL SAMPLE
设计中新材料的应用(市场中主要集成速装材料)
Application of new materials in design (mainly integrated with fast loading materials in the market)
材料特点:环保、节能、耐用、安装便捷
Material characteristics: environmentally friendly, energy-saving, durable, and easy to install
硅酸钙板材料:
硅酸钙板、石英纤维装饰板作为新型绿色环保建材,除具有传统石膏板的功能外,更具有优越防火、耐潮、使用寿命超长的优点,大量应用于工程建筑的吊顶天花和隔墙、家庭装修等室内工程的壁板。
Calcium silicate board material:
Calcium silicate board and quartz fiber decorative board, as new green and environmentally friendly building materials, not only have the functions of traditional gypsum board, but also have the advantages of superior fire resistance, moisture resistance, and long service life. They are widely used in indoor engineering such as suspended ceilings, partitions, and home decoration.
其他新型材料:
本项目应用的其他新型材料,例如:竹木纤维集成材料、生态石塑集成材料、铝合金集成材料均有环保、耐用、安装便捷的优点。
Other new materials:
The other new materials applied in this project, such as bamboo wood fiber integrated materials, ecological stone plastic integrated materials, and aluminum alloy integrated materials, all have the advantages of environmental protection, durability, and convenient installation.

1.石英纤维装饰板
石英纤维装饰板以精细石英砂、进口原生木浆纤维为主要原料,抄取成型,经高温高压、蒸压养护等技术制成芯材,并通过二次高温高压,将特殊浸渍装饰纸复合于芯材表面。表面装饰纹理多种多样,可做成纯色、木纹、布纹、石纹、数码定制纹理等。具有七大优点:A级不燃、防水防潮、耐磨耐刮、耐污抗菌、防腐防蛀、坚固耐用、绿色环保。可用于办公建筑中会议室、办公室等空间的墙面、吊顶等。
1. Quartz fiber decorative board
Quartz fiber decorative board is mainly made of fine quartz sand and imported primary wood pulp fibers, which are extracted and formed. The core material is made by high-temperature and high-pressure, steam pressure curing and other technologies, and special impregnated decorative paper is composite on the surface of the core material through secondary high-temperature and high-pressure. The surface decoration texture is diverse, and can be made into solid colors, wood grain, cloth grain, stone grain, digital customized texture, etc. It has seven major advantages: A-grade non combustible, waterproof and moisture-proof, wear-resistant and scratch resistant, stain resistant and antibacterial, anti-corrosion and moth proof, sturdy and durable, and environmentally friendly. Can be used for walls, ceilings, and other spaces in office buildings such as conference rooms and offices.


2.ES节能硅酸钙板
ES节能板是综合石膏板、纤维水泥板、硅酸钙板等各种传统建筑板材的优劣势,同时,ES节能板也具有不开裂、防火、防潮、易造型、隔音、环保等多种优势。提高建筑物节能保温性能、空间使用效率和施工效率。本项目可应用于报告厅、文化中心的的吊顶。
2. ES energy-saving calcium silicate board
ES energy-saving board combines the advantages and disadvantages of various traditional building boards such as gypsum board, fiber cement board, and calcium silicate board. At the same time, ES energy-saving board also has various advantages such as non cracking, fire resistance, moisture resistance, easy shaping, sound insulation, and environmental protection. Improve the energy-saving and insulation performance, space utilization efficiency, and construction efficiency of buildings. This project can be applied to the ceiling of lecture halls and cultural centers.


3.穿孔吸音硅酸钙板
穿孔吸声板具有出色的吸声功能,在低频至中频均有极佳的吸音表现。其拥有多种布孔款式和孔径,除用作各种场所的天花板外,同时还可作为吸音墙板的使用。本项目主要应用于三层的会议室及办公区走廊部分。
3. Perforated sound-absorbing calcium silicate board
Perforated sound-absorbing panels have excellent sound absorption functions, with excellent sound absorption performance in both low and mid frequencies. It has a variety of hole styles and apertures, which can be used not only as ceilings in various places, but also as sound-absorbing wall panels. This project is mainly applied to the conference room and office corridor on the third floor.


4.竹木纤维集成材料
以竹粉、木粉、钙粉、PVC料等为原料通过高分子界面化学原理和塑料填充改性的特点,采用挤压工艺制造而成,可以根据需要对产品的色彩、尺寸、形状进行控制,实现按需定制,代替实木最大程度降低使用成本,节约森林资源。墙面采用外置中空的结构,达到隔音防潮的作用。主要应用于宿舍的墙面及接待室,营造温馨的氛围。
4. Bamboo and wood fiber integrated materials
Made from bamboo powder, wood powder, calcium powder, PVC material and other raw materials through the principles of polymer interface chemistry and the characteristics of plastic filling modification, it is manufactured using extrusion technology. The color, size, and shape of the product can be controlled according to needs, achieving on-demand customization and replacing solid wood to minimize usage costs and save forest resources. The wall adopts an external hollow structure to achieve sound insulation and moisture prevention. Mainly used on the walls of dormitories and reception rooms to create a warm atmosphere.


5.生态石塑集成材料
采用天然大理石石粉加入食品级树脂材料共挤形成,平整度高,硬度高,柔韧性佳,截面可做成矩形、弧形等多种样式。可应用于入口大堂墙面、电梯厅墙面。
5. Ecological stone plastic integrated materials
It is formed by co extrusion of natural marble powder and food grade resin material, with high flatness, hardness, and flexibility. The cross-section can be made into various styles such as rectangles and arcs. Can be applied to entrance lobby walls and elevator lobby walls.


6.铝合金集成墙面
铝合金集成墙面开启了墙面的集成化装修时代。铝合金集成墙面以铝合金为基材,与聚氨酯隔音发泡材料,防潮防蛀铝箔层压制而成。铝合金集成墙面中的聚氨酯隔音发泡层不仅绝热效果好,具有隔音,耐寒耐热,电绝缘等优点之外,而且质量又轻,属于轻质材料,因此可以被运用在天花板上,实现利用集成墙面打造顶墙一体。本项目可用于文化中心展厅、科技展厅等,打造时尚、科技、现代感。
6. Aluminum alloy integrated wall
Aluminum alloy integrated walls have opened up the era of integrated wall decoration. The aluminum alloy integrated wall is made of aluminum alloy as the substrate, combined with polyurethane sound insulation foam material, and pressed with moisture-proof and moth proof aluminum foil layer. The polyurethane sound insulation foam layer in the aluminum alloy integrated wall not only has good insulation effect, but also has advantages such as sound insulation, cold and heat resistance, and electrical insulation. It is also lightweight and belongs to lightweight materials. Therefore, it can be used on the ceiling to achieve the integration of the top and wall using the integrated wall. This project can be used in cultural center exhibition halls, technology exhibition halls, etc., to create a sense of fashion, technology, and modernity.
▼铝合金集成墙面,Aluminum alloy integrated wall


装配式
ASSEMBLING MATERIAL
设计中新工艺的应用(标准化生产与装配式装修)
Application of new technologies in design (standardized production and prefabricated decoration)
材料特点:绿色、耐用、稳定、易维护
Material characteristics: green, durable, stable, and easy to maintain

细节处理
Detail Processing

项目名称:中材节能股份有限公司设计研发楼室内装修及室外景观设计项目
设计理念: 多元化 | 创造性| 智能性| 绿色健康
文章分类:室内设计-办公会议
项目地址:天津市北辰区技峰路与延吉道交口
项目规模:15181.4㎡
设计主创:王建伟
设计团队:栾雪婷,张振波,叶建森,于本彦
设计公司:北京华城远大建设有限公司
建 材:镜面不锈钢 木饰面 夹丝玻璃 瓷砖
项目年份:2022年
业主单位:中材节能股份有限公司
建筑层数:D、F座:9层,E座2层
结构形式:框架结构
Project Name: Interior Decoration and Outdoor Landscape Design Project of the R&D Building of China National Energy Conservation Co., Ltd
Design philosophy: Diversification, Creativity, Intelligence, Green Health
Article classification: Interior Design - Office Meetings
Project address: Intersection of Jifeng Road and Yanji Road, Beichen District, Tianjin City
Project scale: 15181.4 square meters
Designer: Wang Jianwei
Design team: Luan Xueting, Zhang Zhenbo, Ye Jiansen, Yu Benyan
Design Company: Beijing Huacheng Yuanda Construction Co., Ltd
Building materials: mirrored stainless steel wood veneer with wire mesh glass tiles
Project Year: 2022
Owner: Sinoma Energy Conservation Limited
Building floors: D and F buildings: 9 floors, E buildings: 2 floors
Structural form: frame structure
