
王建伟
********
********
北京市北京市东城区
方案设计、效果图制作及现场施工对接。
山西昔阳裕丰热力有限公司办公室与会所项目公共区域空间概念设计,山西/室内
设计理念
新中式 | 庄重型 | 智能性
Diversified | Green type | intelligent
01
项目概况
PROJECT PROFILE
建筑条件
项目地址:本工程为山西昔阳裕丰供热有限公司,公安路北侧、烟草公司东侧用地改造项目办公楼。
Building conditions
Project address: This project is the office building of the land renovation project for Shanxi Xiyang Yufeng Heating Co., Ltd. on the north side of Gong'an Road and the east side of Tobacco Company.
设计面积:本次设计区域约总面积 1700 平方米,办公楼1-3层1000平方米、公寓楼2层700平方米等区域设计。
Design area: The total area of this design is approximately 1700 square meters, including 1000 square meters on the 1st to 3rd floors of the office building and 700 square meters on the 2nd floor of the apartment building.

设计说明
CONCEPT
办公空间,采用中式语言 ,对空间进行设计和规划,在空间设计表现上我们要符合企业的核心理念 与价值所在。打造新中式前卫的空间。
The office space adopts Chinese language to design and plan the space, and in terms of space design performance, we must conform to the core concepts and values of the enterprise. Create a space that is avant-garde in new Chinese style.
公寓会所空间,同样采用中式语言,应用金属和石材,实木作为空间的主要装饰材料,展现空间的庄重典雅感。
The apartment clubhouse space also adopts Chinese language, using metal and stone, and solid wood as the main decorative material, showcasing the dignified and elegant feeling of the space.

02
方案设计
SCHEME DESIGN
设计范围:本次设计区域总面积约1700平方米。包括但不限于办公、公寓电梯厅、电梯轿厢等。
Design scope: The total area of this design area is approximately 1700 square meters. Including but not limited to office, apartment elevator halls, elevator cars, etc.
办公楼 1F-3F
EASTERN BUSINESS OFFICE
儒阁
悬空寺始建于北魏后期(公元491年),距今已有一千五百多年,是佛、道、儒三教合一的独特寺庙。“悬空寺”建筑极具特色,以如临深渊的险峻而著称,素有“悬空寺,半天高,三根马尾空中吊”的俚语,以如临深渊的险峻而著称。
Confucian Pavilion
The Hanging Temple was first built in the late Northern Wei Dynasty (491 AD) and has a history of over 1500 years. It is a unique temple that combines Buddhism, Taoism, and Confucianism. The architecture of the "Hanging Temple" is highly distinctive, known for its steep cliffs that resemble an abyss. It is known as the slang "Hanging Temple, half a sky high, three ponytails hanging in the air", and is known for its steep cliffs that resemble an abyss.
原叫“玄空阁”,“玄”取自于中国道教教理,“空”则来源于佛教的教理,后改名为“悬空寺”,是因为整座寺院就像悬挂在悬崖上,在汉语中,“悬”与“玄”同音,因此得名。
Originally called "Xuankong Pavilion", "Xuan" comes from the teachings of Chinese Taoism, while "Kong" comes from the teachings of Buddhism. It was later renamed "Hanging Temple" because the entire temple is like hanging on a cliff. In Chinese, "Xuan" sounds the same as "Xuan", hence the name.

平面图展示
Floor plan display
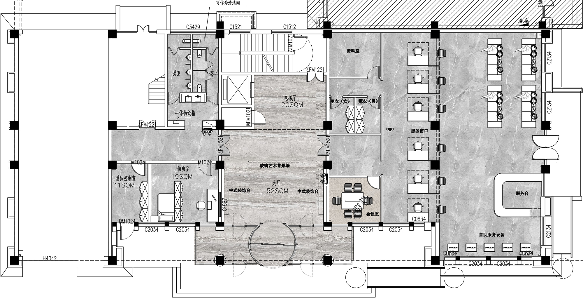
▼1F

设计说明:
本层主要空间为:服务大厅,办公大厅,主入口门厅,电梯厅等空间设计。在环境装饰上采用两类手法。依据本区建筑条件和设计需求,室内环境采光较好,在材质上墙面使用石材,应用中式语言装饰,展现其空间的庄重典雅;顶面采用金属铝板,立面局部装饰采用金属烘托其企业的未来感和科技感。
Design Description:
The main spaces on this floor are: service hall, office hall, main entrance hall, elevator hall, and other spatial designs. Two types of techniques are used in environmental decoration. Based on the building conditions and design requirements of this area, the indoor environment has good lighting. Stone is used on the walls in terms of material, and Chinese language decoration is applied to showcase the solemnity and elegance of the space; The top surface is made of metal aluminum plate, and the partial decoration on the facade is made of metal to enhance the futuristic and technological sense of the enterprise.
▼2F

设计说明:
本层主要空间为:监控中心,办公区,财务等空间设计。在环境装饰上采用简洁的中式语言作为装饰。
Design Description:
The main space on this floor is designed for monitoring center, office area, finance, and other spaces. Using concise Chinese language as decoration in the environment.
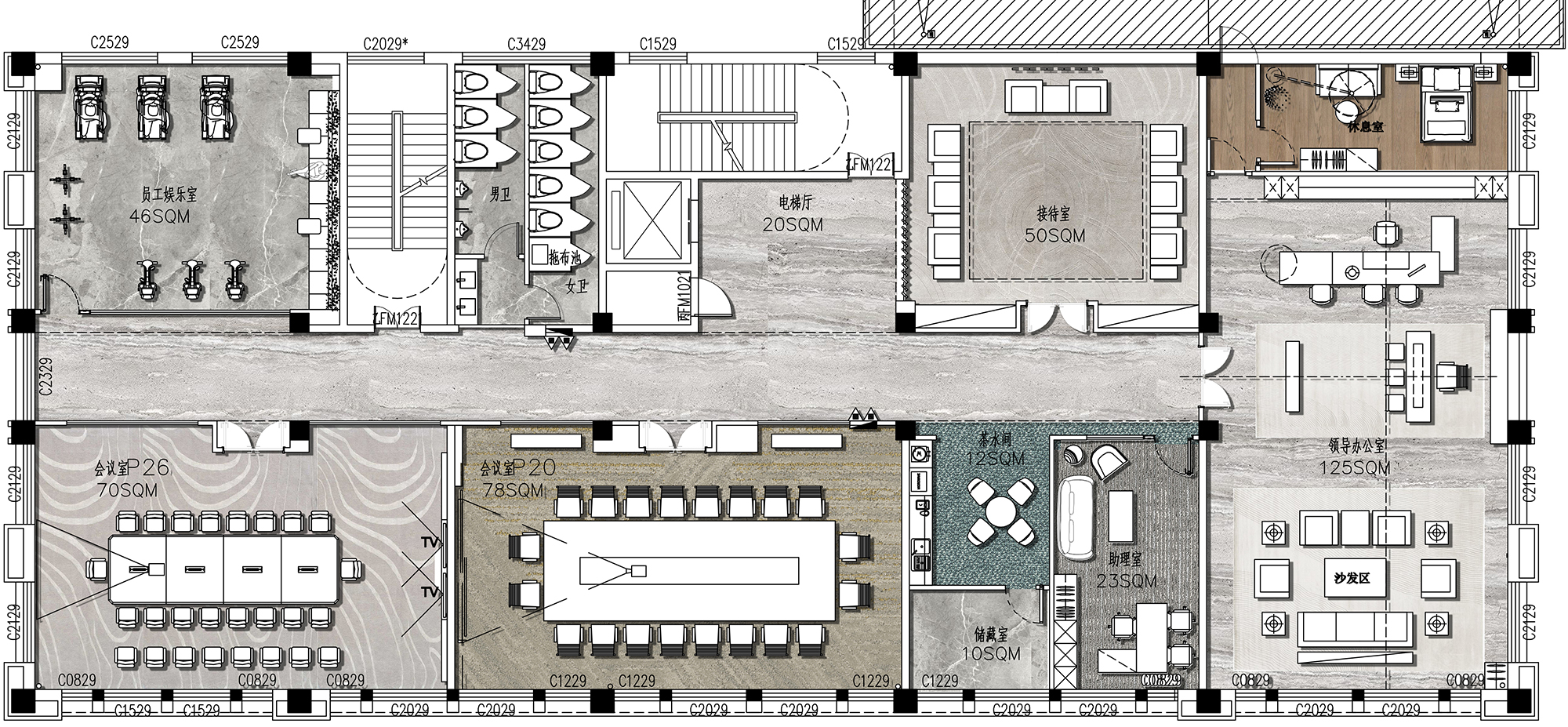
▼3F

设计说明:
本层主要空间为:领导办公室,会议,接待等空间设计。在环境装饰上采用简洁的中式语言作为装饰,体现空间的庄重,沉稳以及东方感。
Design Description:
The main space on this floor is designed for leadership offices, meetings, receptions, and other spaces. Using concise Chinese language as decoration in the environment reflects the solemnity, stability, and oriental feeling of the space.
03
平面指引展示及空间效果展示
GRAPHIC GUIDANCE DISPLAY AND SPATIAL EFFECT DISPLAY
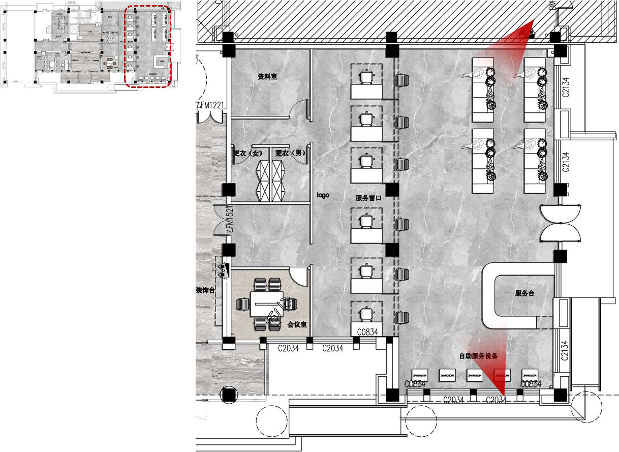
▼1F服务大厅平面指引,1F Service Hall Floor Plan Guidelines

▼1F服务大厅空间效果,Space effect of 1F service hall


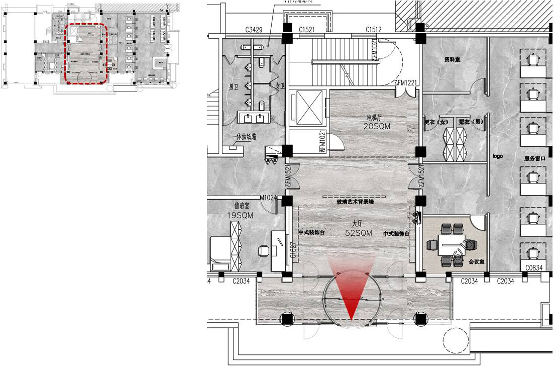
▼1F办公大厅平面指引,Floor Plan Guidelines for 1F Office Hall

▼1F办公大厅空间效果,Space effect of 1F office hall

▼2F开敞办公区平面指引,2F Open Office Area Plan Guidelines

▼2F开敞办公区空间效果,Space effect of 2F open office area

▼2F开敞办公区空间效果,Space effect of 2F open office area

▼2F财务室平面指引,2F Finance Room Plan Guidelines

▼2F财务室空间效果,2F Finance Room Space Effect

▼3F董事长办公室空间效果,3F Chairman's Office Space Effect

▼3F接待室空间效果,3F Reception Room Space Effect

▼3F大会议室概念效果,Concept effect of 3F conference room

公寓楼会所2F
Apartment Building Clubhouse 2F
商所
世时无闲时,四级皆有景
拥一处自在,容意境东方
府门之上,引水入画
形成观山临水的礼序迎宾之境深墙内,松姿摇曳,引人登堂入画、渐入佳境
Commercial offices
There is no idle time in the world, and all four levels have scenery
Embrace a place of freedom and embrace the eastern artistic conception
Above the mansion gate, water is drawn into the painting
Within the deep wall, the scene of welcoming guests with a ceremonial sequence of observing mountains and facing water sways with pine trees, attracting visitors to climb up the hall and enjoy the beautiful scenery gradually

▼2F

设计说明:
公寓楼,主要设计内容为 接待就餐区,娱乐区以及客房区,设计风格以中式为主。
Design Description:
The apartment building is mainly designed with a reception and dining area, entertainment area, and guest room area, with a Chinese style as the main design style.
▼2F电梯厅空间效果,2F Elevator Hall Space Effect

![]()
山水作为主要设计理念,
选用带有水纹的石材
Landscape as the main design concept,
Choose stone with water marks
▼2F走道空间效果,2F corridor space effect

▼2F茶室空间效果,2F Tea Room Space Effect


▼2F餐厅包房空间效果,2F Restaurant Private Room Space Effect

吊顶主灯选用方案,采用”水“来传达其寓意
The selection plan for the main ceiling light uses "water" to convey its meaning
▼2F餐厅包房空间效果,2F Restaurant Private Room Space Effect

墙面装饰采用山西建筑剪影
The wall decoration adopts Shanxi architectural silhouette
▼2F餐厅包房空间效果,2F Restaurant Private Room Space Effect


▼2F KTV/台球空间效果,2F KTV/Billiards Space Effect


项目名称:山西昔阳裕丰热力有限公司办公室与会所项目
设计理念:新中式 | 庄重型 | 智能性
文章分类:室内设计-办公会议
项目地址:公安路北侧、烟草公司东侧用地改造项目办公楼
项目规模:
设计区域总面积:约1700平方米
办公楼1-3层:1000平方米
公寓楼2层:700平方米
设计主创:王建伟
设计团队:叶建森 栾雪婷 马宇航
设计公司:北京华城远大建设有限公司
建 材:镜面不锈钢 木饰面 夹丝玻璃 瓷砖 生态漆
项目年份:2023年
业主单位:山西昔阳裕丰热力有限公司
Project Name: Office and Clubhouse Project of Shanxi Xiyang Yufeng Thermal Power Co., Ltd
Design philosophy: New Chinese style | Zhuang Zhong | Intelligence
Article classification: Interior Design - Office Meetings
Project address: Office building of the land renovation project on the north side of Gong'an Road and the east side of Tobacco Company
Project scale:
Total design area: approximately 1700 square meters
Office building 1-3 floors: 1000 square meters
Apartment Building 2nd Floor: 700 square meters
Designer: Wang Jianwei
Design team: Ye Jiansen, Luan Xueting, Ma Yuhang
Design Company: Beijing Huacheng Yuanda Construction Co., Ltd
Building materials: Mirror stainless steel wood veneer with wire mesh glass ceramic tile ecological paint
Project Year: 2023
Owner: Shanxi Xiyang Yufeng Thermal Power Co., Ltd
