
王建伟
********
********
北京市北京市东城区
方案设计、效果图制作及现场施工对接。
固安航天科技城标准厂房配套楼室内方案设计汇报,固安/室内
一、招标项目概况
1、 Overview of the bidding project

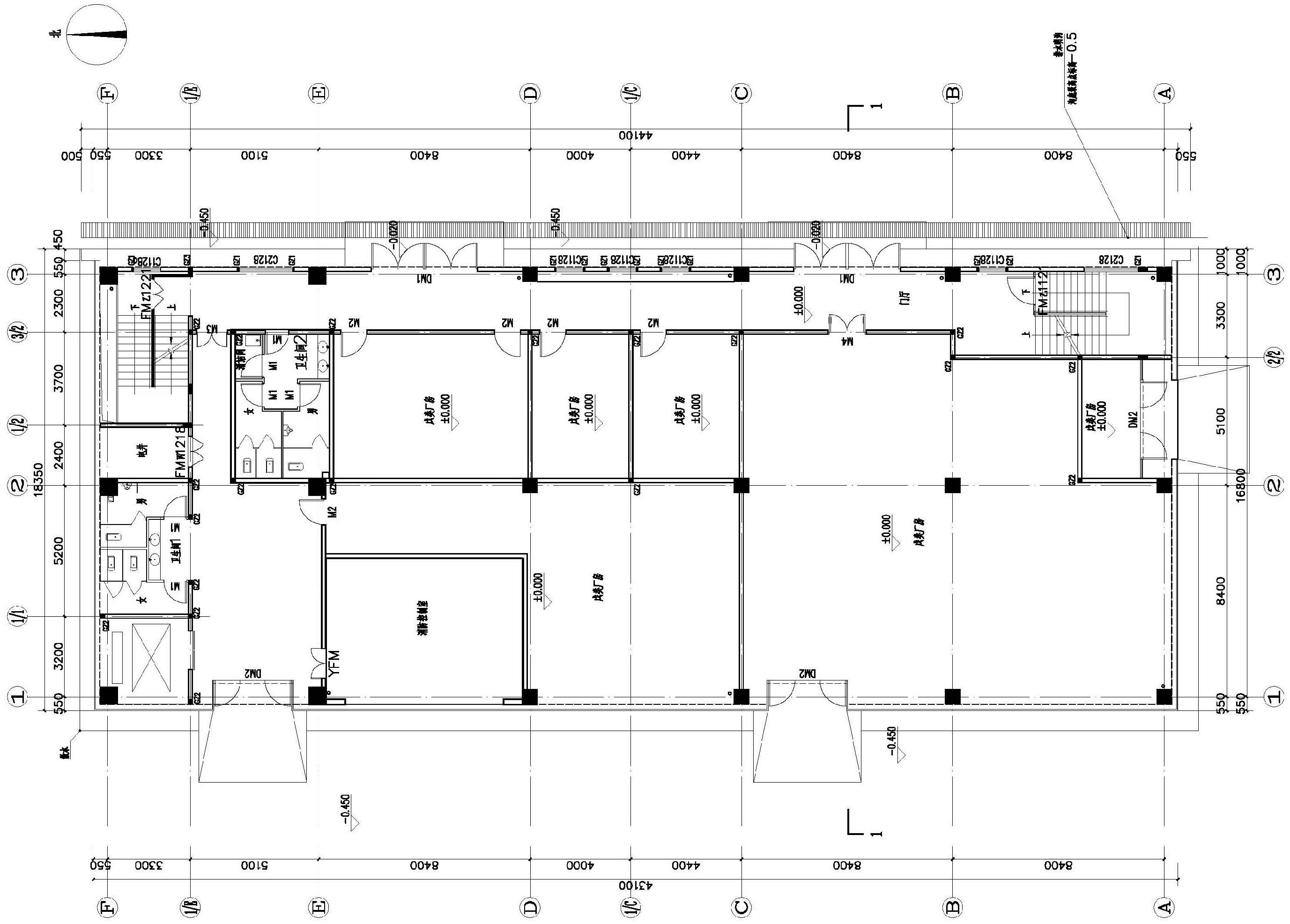
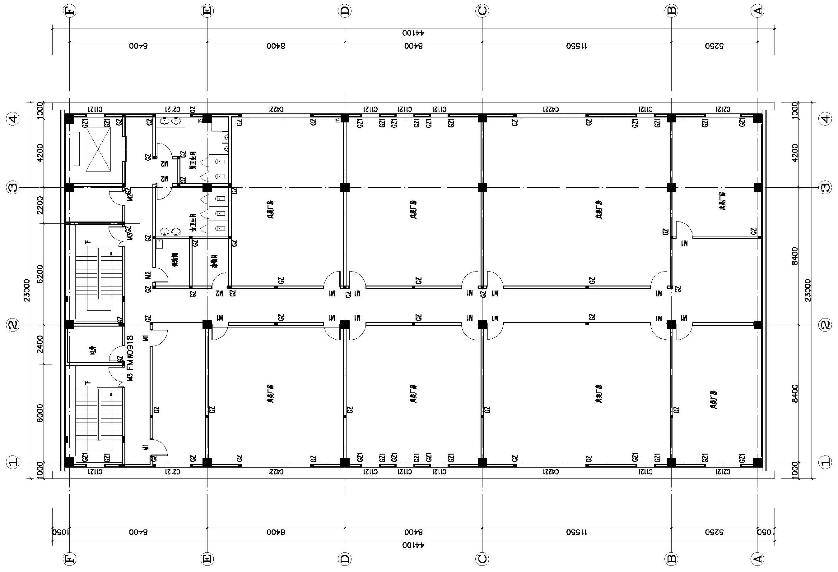
▼46#楼一层原始平面图,Original floor plan of Building 46 # on the first floor

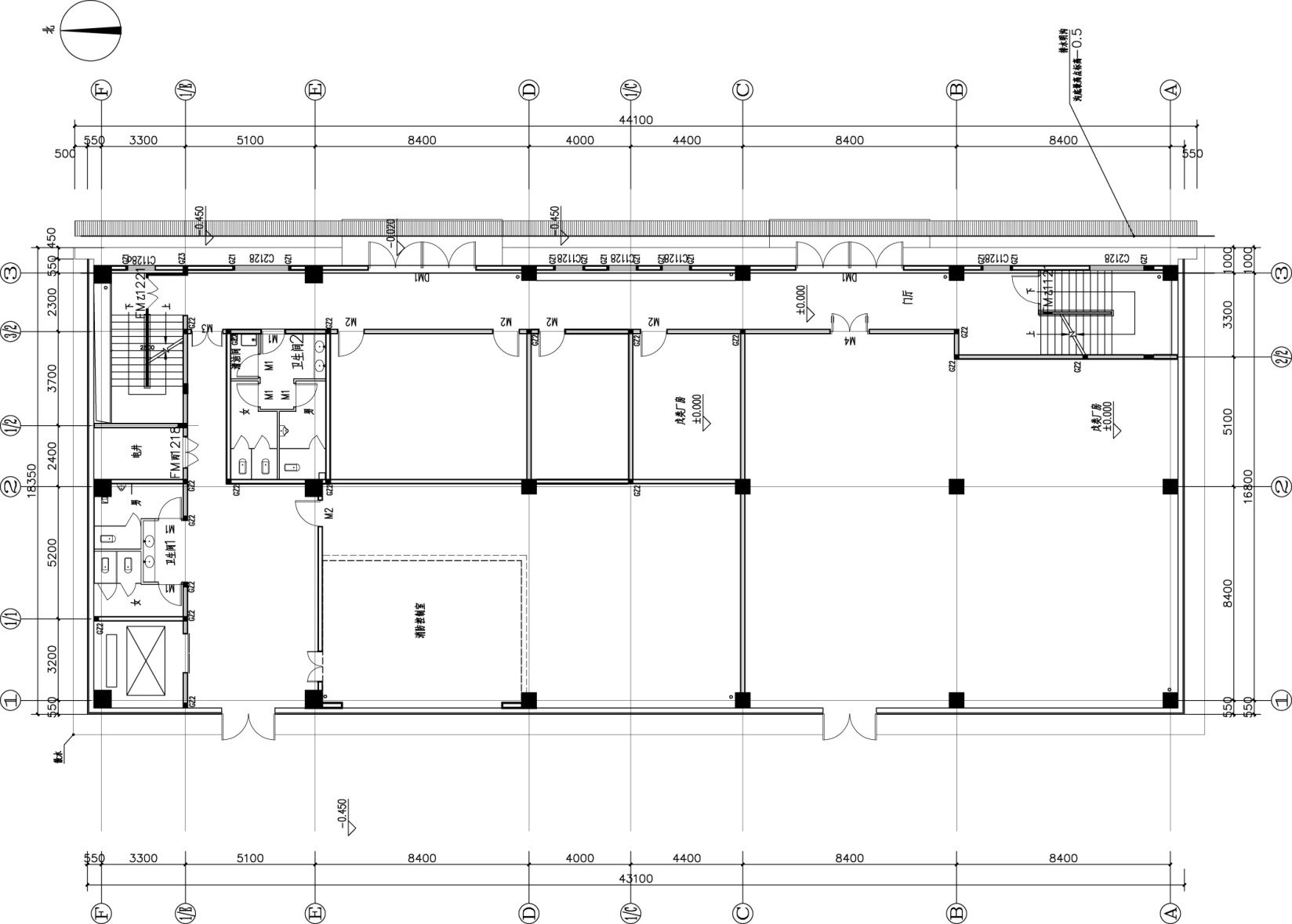
▼46#楼一层现状平面图,Current floor plan of Building 46 on the first floor

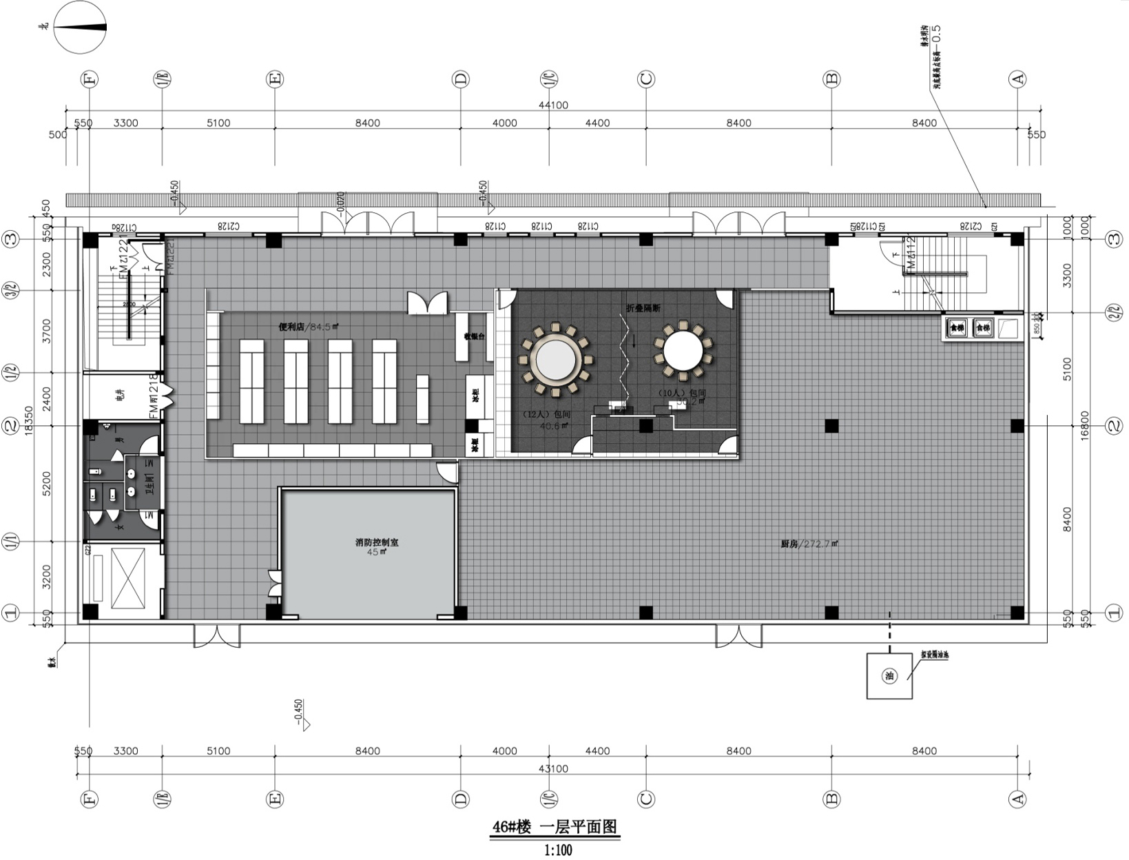
▼46#楼一层彩色平面图,Color Plan of the First Floor of Building 46

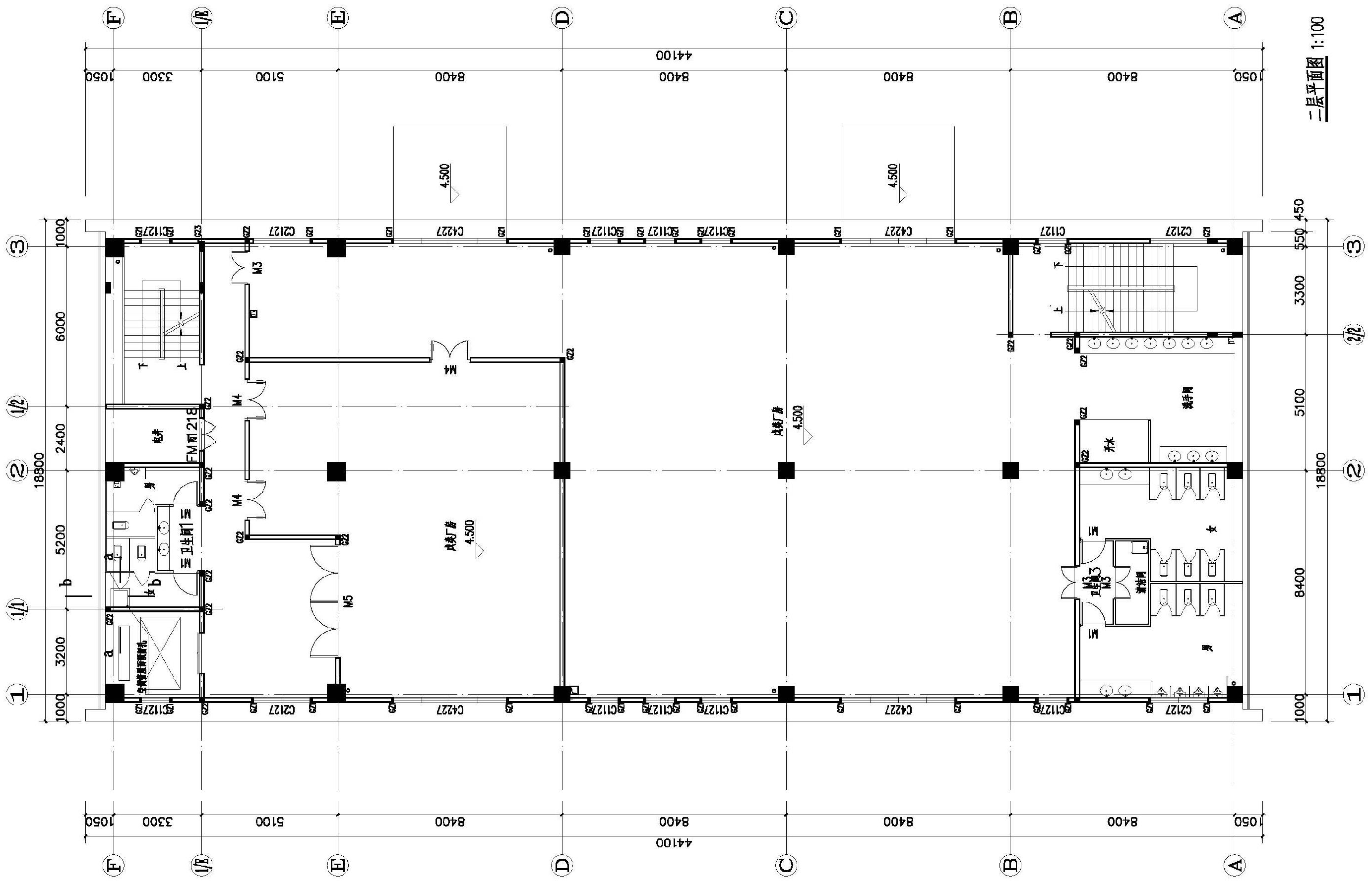
▼46#楼二层原始平面图,Original plan of the second floor of Building 46 #

▼46#楼二层现状平面图,Current floor plan of the second floor of Building 46 #

▼46#楼二层流线平面图,Flow Line Plan on the Second Floor of Building 46 #

▼46#楼二层彩色平面图,Color Plan of the Second Floor of Building 46

▼46#楼三层原始平面图,Original plan of the third floor of Building 46 #

▼46#楼三层现状平面图,Current plan of the third floor of Building 46 #

▼46#楼三层流线平面图,Flow Line Plan of the Third Floor of Building 46 #

▼46#楼三层彩色平面图,Color Plan of the Third Floor of Building 46

▼45#楼三层原始平面图,Original plan of the third floor of Building 45 #

▼45#楼三层现状平面图,Current plan of the third floor of Building 45 #

▼45#楼三层流线平面图,Flow Line Plan on the Third Floor of Building 45

▼45#楼三层彩色平面图,Color Plan of the Third Floor of Building 45

▼46#楼一层包间效果图,Renderings of private rooms on the first floor of Building 46

所用材料
Materials used

46#楼三层咖啡厅效果图(视角一)
Rendering of coffee shop on the third floor of Building 46 (View 1)

46#楼三层咖啡厅效果图(视角二)
Rendering of coffee shop on the third floor of Building 46 (View 2)

所用材料
Materials used

项目名称: 固安航天科技城标准厂房配套楼室内方案及施工图设计
文章分类: 室内设计-办公会议
项目地址: 固安航天科技城标准厂房产业港,配套楼位于园区主入口西侧,展示中心位于园区主入口东侧
项目规模:46#配套楼,F1-F2每层建筑面积约800平米,F3建筑面积约300平米;45#楼展示中心F3建筑面积约990平米。两栋单体已竣工落成,均为毛坯
设计主创: 王建伟
设计团队:叶建森 崔欢 马宇航
设计公司:北京华城远大建设有限公司
建 材:乳胶漆 集成板材 硬包 铝板
完成年份:2015年9月底完成方案设计,2015年11月启动施工建设
Project Name: Interior Scheme and Construction Drawing Design of Supporting Buildings for Standard Factory Buildings in Gu'an Aerospace Science and Technology City
Article classification: Interior Design - Office Meetings
Project address: Industrial Port of Standard Factory Building in Gu'an Aerospace Science and Technology City. The supporting building is located on the west side of the main entrance of the park, and the exhibition center is located on the east side of the main entrance of the park
Project scale: 46 # supporting building, F1-F2 with a building area of approximately 800 square meters per floor, and F3 with a building area of approximately 300 square meters; The exhibition center F3 of Building 45 has a building area of approximately 990 square meters. Two individual buildings have been completed and completed, both of which are raw materials
Designer: Wang Jianwei
Design team: Ye Jiansen, Cui Huan, Ma Yuhang
Design Company: Beijing Huacheng Yuanda Construction Co., Ltd
Building materials: Latex paint integrated panel, hard wrapped aluminum panel
Completion year: The scheme design was completed by the end of September 2015, and construction began in November 2015
