
王建伟
********
********
北京市北京市东城区
方案设计、效果图制作及现场施工对接。
中新药业室内方案概念设计,天津/室内
设计说明:
饮水思源、中药创新、笃行致远;天人同序、乾坤济世;集百草要让这世界都香。三主广场、一核心景观轴线、寓意过去、现在、未来。两翼侧广场,寓意有主有次、比翼双飞。多景观支路网联通各个核心广场,寓意本草纲目、犹如人体经络、四通八达、舒展通畅,蒸蒸日上。
Design Description:
Thinking of the Source of Drinking Water, Innovating Traditional Chinese Medicine, and Pursuing Longevity; Heaven and humanity follow the same order, and heaven and earth serve the world; Gathering a hundred herbs to make the world fragrant. Three main squares, one core landscape axis, symbolizing the past, present, and future. The square on both sides of the wings symbolizes the coexistence of the main and the secondary, and flying together like wings. The multi landscape branch road network connects various core squares, symbolizing the essence of the Compendium of Materia Medica, like the meridians of the human body, with unobstructed and smooth flow, thriving day by day.
01
大堂接待
The lobby reception
▼大堂接待平面,THE LOBBY RECEPTION

极具科技感又不失中式传统风
Highly technological yet traditional Chinese style

大堂接待
THE LOBBY RECEPTION

02
科技走廊
Science and technology corridor
▼科技走廊平面,SCIENCE AND TECHNOLOGY CORRIDOR

科技走廊立面概念
SCIENCE AND TECHNOLOGY CORRIDOR
▼无窗,windowless

▼保留部分窗,Reserve some windows

▼科技走廊,SCIENCE AND TECHNOLOGY CORRIDOR

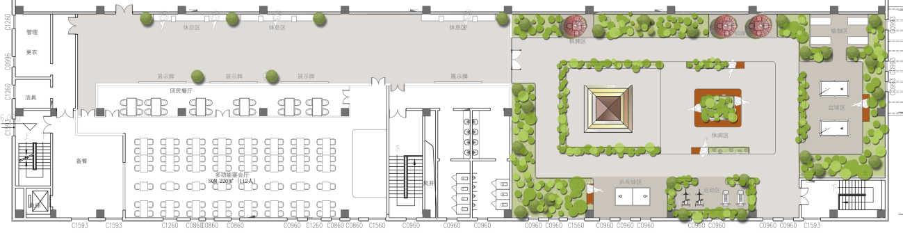
屋顶平台及餐厅(方案一)
ROOF DECK AND RESTAURANT

屋顶平台及餐厅(方案二)
ROOF DECK AND RESTAURANT

屋顶平台及餐厅方案
ROOF DECK AND RESTAURANT

03
屋顶平台
Roof platform
▼View-1

▼View-2

04
厂区绿化
Campus afforestation
屋顶平台及餐厅(方案三)
ROOF DECK AND RESTAURANT

厂区景观效果
CAMPUS AFFORESTATION












项目名称:天津中新药业室内改造
文章分类:室内设计-展示
项目地址:天津
项目规模:300平米
设计主创:王建伟
设计团队:叶建森 于本彦
设计公司:北京华城远大建设有限公司
建 材: 真石漆 木饰面 石材 瓷砖
项目年份:2019
业主单位:天津中新药业
Project Name: Indoor Renovation of Tianjin Zhongxin Pharmaceutical Industry
Article classification: Interior Design - Display
Project address: Tianjin
Project scale: 300 square meters
Designer: Wang Jianwei
Design team: Ye Jiansen and Yu Benyan
Design Company: Beijing Huacheng Yuanda Construction Co., Ltd
Building materials: real stone lacquer wood veneer, stone tiles
Project Year: 2019
Owner: Tianjin Zhongxin Pharmaceutical Co., Ltd
