
王建伟
********
********
北京市北京市东城区
方案设计、效果图制作及现场施工对接。
新兴发展大厦室内改造,北京/室内
01.
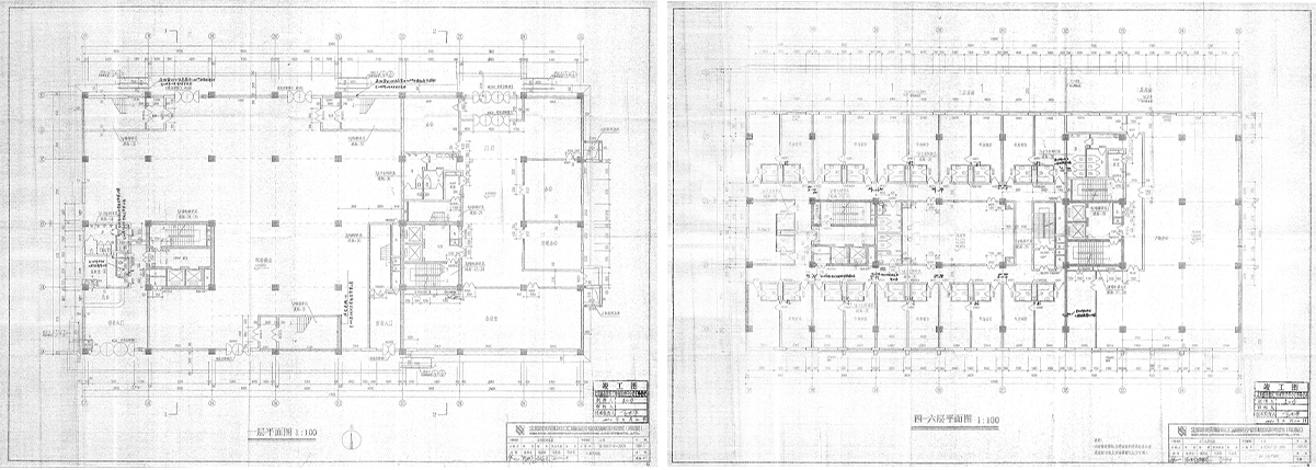
基础资料
BASIC DATA

02.
设计理念
CONCEPT
一、设计目标
庄重典雅、绿色环保、科技创新、现代化办公理念
二、设计定位:
简洁、明快、庄重、高品质
三、设计说明(其他):
整体空间基调:庄重典雅、简洁、高品质,在空间布置中融入了国际化前沿的办公理念,在统一与变化中有机融合,体现当代美学思想,视觉和谐、功能和谐。简约高品质。
1、 Design objectives
The concept of solemnity and elegance, green environmental protection, technological innovation, and modern office
2、 Design positioning:
Simplicity, brightness, solemnity, and high quality
3、 Design Description (Other):
The overall spatial tone is solemn, elegant, concise, and of high quality. The space layout incorporates international cutting-edge office concepts, organically integrating unity and change, reflecting contemporary aesthetic ideas, visual harmony, and functional harmony. Simplicity and high quality.

03.
方案规划设计
Scheme Design
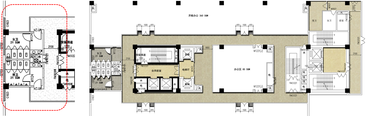
公共区与标准层 | 一层公区 | 大堂设计
Public area and standard floor | First floor public area | Lobby Design
一层大堂平面图
1F COLOR PLAN
▼平面布置,Plan layout

平面布置:
1.根据每座大楼体量、入口及建筑条件,规划大堂平面布置,使空间更加合理。其中在每座大堂考虑了后期商用需求,可作为备用扩初。
2.卫生间、管井、设备间等根据现有建筑条件优化了平面功能布置,隐藏设计净化立面繁杂洞口及暗门。
3.依据现有建筑条件和特点,并考虑到二次改造的难易情况,标准化接待台和背景墙。不易用材繁复,简化空间元素,使空间更加整体。
4.结合企业文化设置艺术品、绿植景观,强化空间特点,突出企业文化和空间品质。
5.利用建筑预留较大功能间,设置清洁间。
Plan layout:
1. Based on the size, entrance, and building conditions of each building, plan the layout of the lobby to make the space more reasonable. Each lobby has been considered for future commercial needs and can be used as a backup for initial expansion.
2. The layout of the bathroom, pipe well, equipment room, etc. has been optimized according to the existing building conditions, with hidden design purifying the complex openings and hidden doors on the facade.
3. Based on the existing building conditions and characteristics, and considering the difficulty of secondary renovation, standardize the reception desk and background wall. It is not easy to use complex materials, simplifies spatial elements, and makes the space more integrated.
4. Set up artworks and green plant landscapes in combination with corporate culture, strengthen spatial characteristics, and highlight corporate culture and spatial quality.
5. Utilize buildings to reserve large functional rooms and set up cleaning rooms.
▼公区,Public area



一层公区
First floor public area
电梯厅设计
Lift Lobby Design


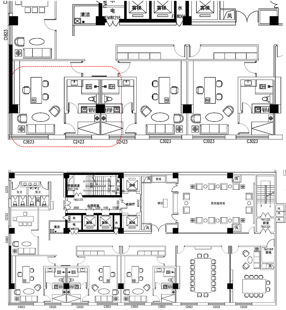
标准层平面图
standard floor plan
公区
Public area



标准层设计
Standard floor Design

▼标准层办公走道方案一,Standard Floor Office Walkway Plan 1


▼标准层办公走道方案二,Standard Floor Office Walkway Plan II


▼标准卫生间,Standard bathroom

配套标准化设计
Standardized design
暗门做法及效果
Hidden door practices and effects



企业办公区设计
Enterprise office area design
8F-10F企业办公区设计
8F-10F Enterprise Office Area Design
▼八层平面图,8F COLOR PLAN

八层平面图——鸟瞰
8F COLOR PLAN


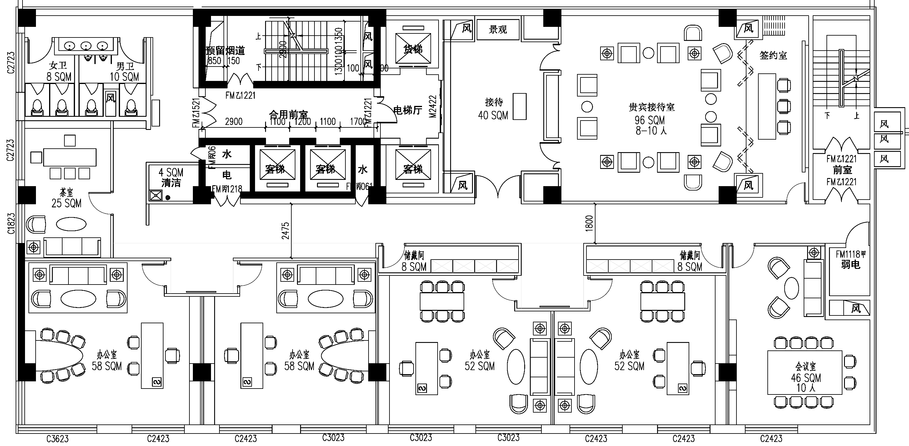
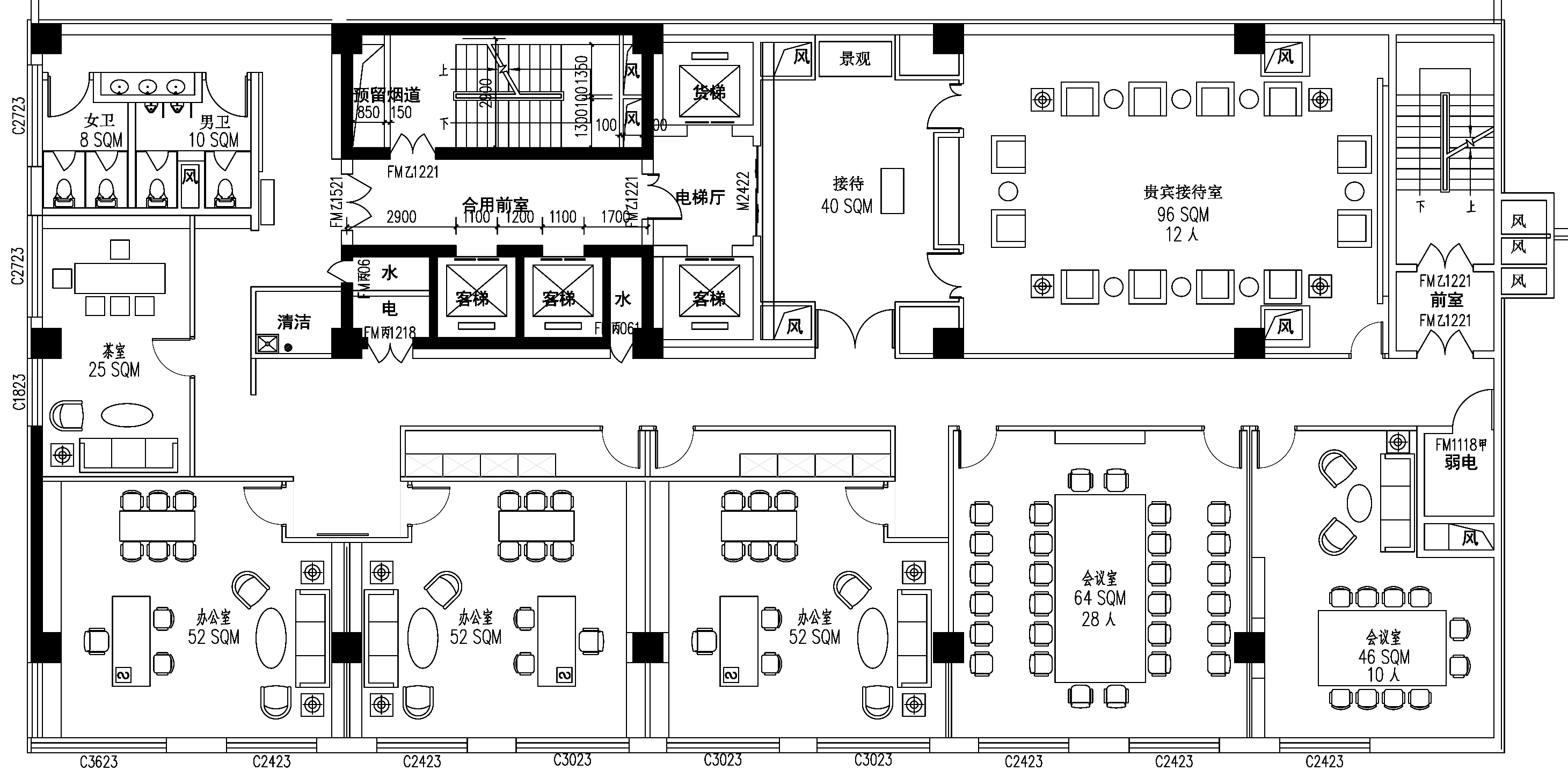
▼九层平面图 方案A,9F COLOR PLAN

▼九层平面图 方案B,9F COLOR PLAN

▼十层平面图 方案A,10F COLOR PLAN

▼十层平面图 方案B,10F COLOR PLAN

▼四层平面图,4F COLOR PLAN

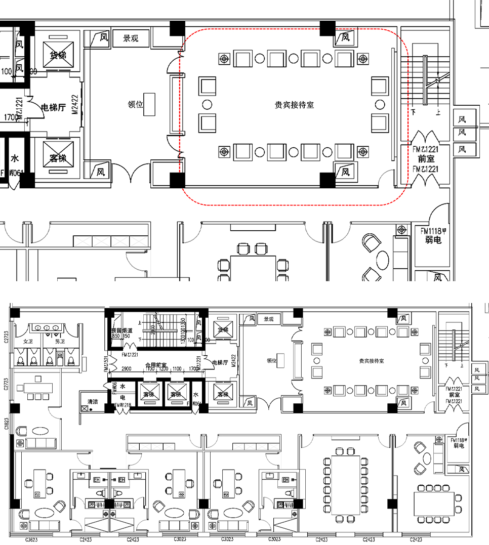
八层平面图——前厅接待
8F COLOR PLAN


八层平面图——小会议室
8F COLOR PLAN


八层平面图
8F COLOR PLAN


八层平面图——开场办公区
8F COLOR PLAN





八层平面图——配套家具
8F COLOR PLAN


八层平面图——休闲区
8F COLOR PLAN






八层平面图——独立办公室
8F COLOR PLAN



九层平面图——领导办公室
9F COLOR PLAN


九层平面图——领导办公室
9F COLOR PLAN




九层平面图——接待室
9F COLOR PLAN



04.
材料与设施
Materials and facilities
材料样板
Material Sample

导视概念图
Vision Oriented Design

卫生间洁具
Bathroom Sanitary Ware

项目名称:新兴发展大厦室内改造
文章分类:室内设计-办公
项目地址:北京
项目规模:8000平米
设计主创:王建伟
设计团队:叶建森 张旭 周连城 于本彦
设计公司:北京华城远大建设有限公司
建 材: 铝板 木饰面 石材 瓷砖
项目年份:2020
业主单位:二五三一大厦
Project Name: Interior Renovation of Emerging Development Building
Article classification: Interior Design - Office
Project address: Beijing
Project scale: 8000 square meters
Designer: Wang Jianwei
Design team: Ye Jiansen, Zhang Xu, Zhou Liancheng, Yu Benyan
Design Company: Beijing Huacheng Yuanda Construction Co., Ltd
Building materials: aluminum board, wood veneer, stone tiles
Project Year: 2020
Owner's unit: 2531 Building
