
王建伟
********
********
北京市北京市东城区
方案设计、效果图制作及现场施工对接。
中国北京出版创意产业基地招商部设计方案,北京/室内
01
项目概况
PROJECT PROFILE
建筑条件
Building conditions
项目地址:该项目位于朝阳区南磨房乡,属于“北京CBD—定福庄国际传媒产业走廊”辐射区。
设计面积:占地面积18公顷,建筑总规模35万平方米
Project address: The project is located in Nanmofang Township, Chaoyang District, and belongs to the radiation area of the "Beijing CBD Dingfuzhuang International Media Industry Corridor".
Design area: Covering an area of 18 hectares, with a total building size of 350000 square meters

商圈分析
Business district analysis
作为北京市出版创意产业政策的先行区,基地通过重点打造七大公共服务平台,全力助推首都出版创意产业集群发展,将成为北京市打造出版创意之都的核心承载区。
As a leading area for Beijing's publishing and creative industry policies, the base will focus on building seven public service platforms to fully promote the development of the capital's publishing and creative industry cluster, and will become the core carrying area for Beijing to build a publishing and creative city.

交通便利,地铁7号线,公交41路348路457路535路561路637路657路夜19路486路。地铁7号线1公里范围内,3公里范围内有多个公园及商业活动场所,4公里临近国际高尔夫球会。
Convenient transportation, Subway Line 7, Bus Route 41, 348, 457, 535, 561, 637, 657, Night 19, 486. Within a 1-kilometer radius of Metro Line 7, there are multiple parks and commercial venues within a 3-kilometer radius, and 4 kilometers away from the International Golf Club.


设计目标
作为北京市出版创意产业政策的先行区,基地通过重点打造七大公共服务平台,全力助推首都出版创意产业集群发展,将成为北京市打造出版创意之都的核心承载区
design goal
As a leading area for Beijing's publishing and creative industry policies, the base will focus on building seven major public service platforms to fully promote the development of the capital's publishing and creative industry cluster, and will become the core carrying area for Beijing to build a publishing and creative capital
设计定位:
简洁、科技、庄重、高品质
Design positioning:
Simplicity, technology, solemnity, and high quality
02
设计理念
Design concept
务实、创新、安全,随着首都出版创意产业的蓬勃发展,特别是为满足北京市加快建设出版创意之都的需要,迫切需要建设一个功能性、平台性、综合性的出版创意产业基地,作为北京市打造出版创意之都的核心承载区。
Pragmatism, innovation, and security. With the vigorous development of the publishing and creative industry in the capital, especially to meet the needs of Beijing to accelerate the construction of the publishing and creative capital, there is an urgent need to build a functional, platform based, and comprehensive publishing and creative industry base as the core carrier area for Beijing to build the publishing and creative capital.

空间氛围:虚→影
SPACE ATMOSPHERE:virtual → shadow
善用这项目的独有优势和自然原素多维多向的连结,呈现一个带画意的个性创意空间,艺术性地表达光线多变的美。
Make good use of the unique advantages of the project - multi dimensional and multi-directional links with surrounding natural elements to create a modern, simple and fashionable business, presenting a personalized creative space with painting.

空间氛围演变
ABSTRACT THE PATTERN PRINCIPLE AND APPLICATION

空间形态:实→形
SPACE ATMOSPHERE:Real → Shape
篆刻的每一笔都极力展现着凹凸有力的历史时刻,承前启后,对未来愿景。坚定的展现空间的体量感。
Make good use of the unique advantages of the project - multi dimensional and multi-directional links with surrounding natural elements to create a modern, simple and fashionable business, presenting a personalized creative space with painting

空间形态演变
ABSTRACT THE PATTERN PRINCIPLE AND APPLICATION

以篆刻形状为设计理念,提取设计元素,丰富并联系联系各个空间。
Take the shape of water ripples as the design element, extract layers of water ripples, enrich and contact each space.
03
招商部标准层配套设施方案规划设计
EASTERN BUSINESS OFFICE SCHEME DESIGN
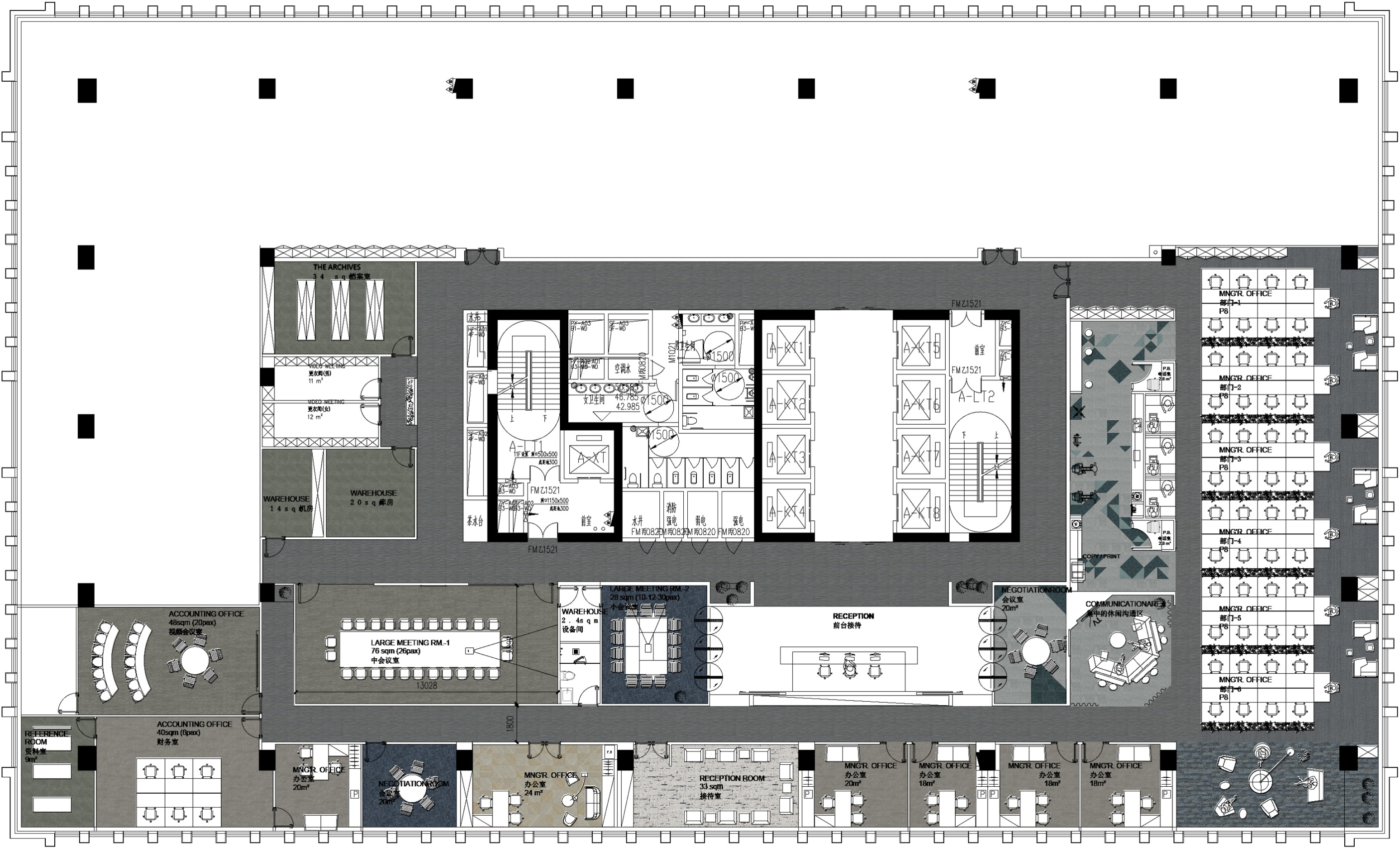
▼平面布局,COLOR PLAN

设计说明:
主要作用是招商样板间,一间办公室24平米,其他的18平米,50人左右开场办公及电话间,贵宾接待室和茶室各一间,私用卫生间,大中小三个会议室。
Design Description:
The main function is to serve as a model room for investment promotion, with an office area of 24 square meters and 18 square meters for the others. The office and telephone room will be opened for about 50 people, with one VIP reception room and one tea room each. Private bathrooms will be provided, and there will be three meeting rooms, large, medium, and small.
地铺选型
Ground paving selection

▼平面动线,Activity route plan

▼鸟瞰——角度一,BIRD'S EYE VIEW

▼鸟瞰——角度二,BIRD'S EYE VIEW

▼前台效果,PUBLIC OFFICE AREA

▼标准走道效果,PUBLIC OFFICE AREA

▼接待室效果,PUBLIC OFFICE AREA

▼视频会议效果,PUBLIC OFFICE AREA

▼会议室,PUBLIC OFFICE AREA

▼会议室效果,PUBLIC OFFICE AREA

▼会议室效果,PUBLIC OFFICE AREA

▼沟通区效果,PUBLIC OFFICE AREA

▼领导办公室,PUBLIC OFFICE AREA

▼标准办公室,PUBLIC OFFICE AREA

▼开场办公,PUBLIC OFFICE AREA

▼水吧区效果,PUBLIC OFFICE AREA

▼公共卫生间,PUBLIC OFFICE AREA

设计说明(其他)
Design Description (Other)
整体空间基调:庄重典雅、简洁、高品质,展现企业的核心文化理念,肩负着特殊使命,不失传统文化的延续,在空间布置中融入了国际化前沿的办公理念,在统一与变化中有机融合,体现当代美学思想,视觉和谐、功能和谐。简约高品质。
The overall spatial tone is solemn, elegant, concise, and of high quality, showcasing the core cultural concepts of the enterprise. It shoulders a special mission and does not lose the continuity of traditional culture. The international cutting-edge office concepts are integrated into the spatial layout, organically integrating unity and change, reflecting contemporary aesthetic ideas, visual harmony, and functional harmony. Simplicity and high quality.
原则:整体设计在满足国家相关法律法规及政府部门规范规定;结合企业现代化管理模式,突出设计理念。并结合国家相关管理规范及标准。在符合企业的建设要求下,优化各空间,高效利用,使各区域流线、空间布局更为合理。凸显高品质设计原则,在建设标准上体现在室内空间品质、色彩的选择、质感的处理等美学要求和文化品味上。设计中考虑前瞻性和先进性;形象和空间处理简洁大气,富有时代感,与企业的服务理念相协调。在人性化原则中,满足功能的前提下,充分考虑企业实际情况与需求,注重人的心理、行为需要,创造出以人为本的良好办公环境,注重使用的便捷性和科学性和合理性。为企业职员提供温馨舒适、开敞明亮的公共环境。
Principle: The overall design should comply with relevant national laws and regulations as well as government department norms and regulations; Combining modern management models of enterprises, highlighting design concepts. And combined with relevant national management norms and standards. Under the construction requirements of the enterprise, optimize various spaces, efficiently utilize them, and make the streamline and spatial layout of each region more reasonable. Highlight the principle of high-quality design, which is reflected in the aesthetic requirements and cultural taste of indoor space quality, color selection, and texture processing in construction standards. Forward looking and progressiveness design; The image and spatial processing are concise and atmospheric, full of a sense of the times, and coordinated with the company's service philosophy. In the principle of humanization, while meeting the functional requirements, fully consider the actual situation and needs of the enterprise, pay attention to human psychological and behavioral needs, create a people-oriented good office environment, and pay attention to the convenience, scientificity, and rationality of use. Provide a warm, comfortable, open and bright public environment for enterprise employees.
项目名称:中国北京出版创意产业基地招商部设计方案
项目地点:北京市 朝阳区南磨房乡
文章分类:室内设计-办公
项目规模:2800平米
设计主创:王建伟
设计团队:叶建森 张振波 于本彦 王慧敏
设计公司:北京华城远大建设有限公司
建 材: 铝板 木饰面 石材 瓷砖集成板材
项目年份:2020
业主单位:北京出版社产业园
施工企业:北京出版社产业园
Project Name: Design Plan for Investment Promotion Department of Beijing Publishing and Creative Industry Base, China
Project location: Nanmofang Township, Chaoyang District, Beijing
Article classification: Interior Design - Office
Project scale: 2800 square meters
Designer: Wang Jianwei
Design team: Ye Jiansen, Zhang Zhenbo, Yu Benyan, Wang Huimin
Design Company: Beijing Huacheng Yuanda Construction Co., Ltd
Building materials: aluminum board, wood veneer, stone, ceramic tile, integrated board
Project Year: 2020
Owner: Beijing Publishing House Industrial Park
Construction enterprise: Beijing Publishing House Industrial Park
