
刘恩芳
********
********
上海市上海市静安区
资深总建筑师 高级工程师(教授级) 一级注册建筑师 工学博士
新余市文化中心,江西/建筑

新余文化中心包括广电中心大楼、图书馆和报业大厦组成。文化中心作为新的城市名片和重要地标,政府对其立面形态和文化寓意有着颇高的要求。例如有着七仙女故事传说的仙女湖文化、傅抱石的国画中的山水文化、《天工开物》著者宋应星的开拓进取的精神,以及新余的钢铁及新能源产业文化,都是新余这座城市所特有的文化。要将如此之多的文化寓意融入到建筑形态和立面之中,实属不易,稍有不当,便会画蛇添足,不伦不类。
Xinyu cultural center consists of the radio and Television Center building, library and newspaper building. As a new city business card and important landmark, the government has high requirements for its facade shape and cultural implication. For example, the fairy lake culture with the legend of the seven fairy tales, the landscape culture in Fu Baoshi's traditional Chinese painting, the pioneering spirit of song Yingxing, the author of "natural engineering opens things", and the steel and new energy industry culture of Xinyu are all unique to Xinyu. It is not easy to integrate so many cultural implications into the architectural form and facade. If it is slightly inappropriate, it will add to the snake and be neither fish nor fowl.


建筑师试图以文人般的浪漫主义情怀,在现代建筑技术条件下,诗意地构建出一幅现代城市山水画。
Architects try to build a modern urban landscape painting poetically with the romantic feelings of literati under the conditions of modern architectural technology.
在美丽的孔目江湿地公园旁,有一座形似金字塔式的现代化建筑,新余市文化中心就坐落在这里,与规模宏大的体育中心隔街相望。从此,市民可以在体育中心锻炼身体,观看球赛,也可就近到文化中心博览群书,欣赏字画,或到湿地公园漫步花径,泛舟湖上,感受公共文化服务体系建设带来的便利,获得全身心的愉悦。
Beside the beautiful kongmu River Wetland Park, there is a modern building in the shape of a pyramid. Xinyu cultural center is located here, across the street from the large-scale sports center. From then on, citizens can exercise in the sports center and watch the ball game. They can also go to the cultural center nearby to read extensively, enjoy calligraphy and painting, or walk along the flower path in the Wetland Park, go boating on the lake, feel the convenience brought by the construction of the public cultural service system, and get wholehearted pleasure.

文化中心集市图书馆、市博物馆、市美术馆于一身,是一座名副其实的文化殿堂。徜徉其中,你不仅可以充分汲取这儿丰富的文化资源,更可以体会到现代化高科技设施带给你的诸多便利。
The cultural center, the market library, the Municipal Museum and the Municipal Art Museum are all in one, which is a real cultural palace. Wandering among them, you can not only fully absorb the rich cultural resources here, but also realize the many conveniences brought to you by modern high-tech facilities.
中心大楼西侧的新图书馆集传统图书馆和数字图书馆于一体,是一座现代化复合型图书馆。新馆藏书40万册,另有报纸期刊近200种,建筑面积1.1万平方米,采取开放式布局、智能化管理、人性化服务,并通过数字图书馆和图书馆联盟推广工程的建设,打造文化资源共享平台,成为我市的文献资源集散中心,被文化部评为“二级图书馆”。
The new library on the west side of the central building integrates traditional libraries and digital libraries, and is a modern compound library. The new library has a collection of 400000 books, nearly 200 kinds of newspapers and periodicals, and a construction area of 11000 square meters. It adopts open layout, intelligent management, humanized services, and through the construction of Digital Library and Library Alliance promotion project, it creates a cultural resource sharing platform, becomes the city's document resource distribution center, and is rated as "secondary library" by the Ministry of culture.

新馆设三大区域。公共活动区位于大楼一层,包括咨询办证大厅、数字阅读体验区、文化展览厅、读者书店、读者沙龙、咖啡吧、少儿阅读服务、视障听障服务、多功能报告厅(负一楼)等。文献借阅区位于大楼二层,包括报刊阅览、图书借阅、电子阅览、自习服务、数字图书馆服务等。文献存储区位于大楼三层,包括基础书库、地方文献库、傅抱石主题库、古籍库、过刊库等。走进图书馆,在全开放式书架上挑上一本自己喜爱的图书,坐在窗明几净的阅览室静静地阅读,让阳光拉长自己的身影,让心灵得到一次知识的洗礼,累了到咖啡吧喝上一杯热咖啡,眺望窗外的湿地风情,该是何等的轻松和惬意!
The new museum has three areas. The public activity area is located on the first floor of the building, including the consulting and certificate processing hall, the digital reading experience area, the cultural exhibition hall, the reader bookstore, the reader salon, the coffee bar, the children's reading service, the visually impaired and hearing impaired service, the multi-function lecture hall (the lower first floor), etc. The document borrowing area is located on the second floor of the building, including newspaper reading, book borrowing, electronic reading, self-study service, digital library service, etc. The document storage area is located on the third floor of the building, including basic library, local document library, Fu Baoshi theme library, ancient books library, back issue library, etc. Enter the library, pick up a book you like on the fully open bookshelf, sit in the bright and clean reading room and read quietly, let the sun lengthen your figure, let your heart get a baptism of knowledge, and when you are tired, how relaxed and comfortable it is to drink a cup of hot coffee in the coffee bar and look out the window at the wetland style!

便利化的现代高科技借阅设施是新馆的另一大亮点。在新馆大门外设有一台24小时自助图书借还机,里面藏有近400册图书,市民凭借阅证即可实现自助借还,不再受图书馆开、闭馆时间限制。要办借阅证,一楼大厅设有自助办证机,一张身份证就可以自己搞定。大厅的数字电子阅报机只要你轻触屏幕,国内数百种当日报纸便全在掌握。如果你喜欢电子阅读,在数字借阅机上找到你想看的图书,掏出手机对着上面对应的二维码扫描一下,就可将该书“带”回家,在手机上随时随地慢慢品读。馆内的自助借还机让你借书还书不求人。智能化、便利化的借阅设施带给读者一种全新的体验,让读书成为一种时尚,一种享受。
Convenient modern high-tech borrowing facilities are another highlight of the new museum. There is a 24-hour self-service book borrowing and returning machine outside the gate of the new library, which houses nearly 400 books. Citizens can realize self-service borrowing and returning by reading cards, which is no longer limited by the opening and closing time of the library. To apply for a borrowing card, there is a self-service certificate processing machine in the hall on the first floor, and you can do it yourself with an ID card. As long as you touch the screen of the digital electronic newspaper reader in the hall, hundreds of domestic newspapers of the day can be mastered. If you like e-reading, find the book you want to read on the digital lending machine, take out your mobile phone and scan the QR code corresponding to it, then you can "take" the book home and read it slowly on your mobile phone anytime, anywhere. The self-service lending and returning machine in the library allows you to borrow and return books without asking anyone. Intelligent and convenient borrowing facilities bring readers a new experience and make reading a fashion and enjoyment.

新馆在提供借阅服务的同时,还将开展专题讲座、展览、培训、读者活动等延伸服务。同时,还将实施图书馆联盟工程,实行总分馆制,实现图书借阅“一卡通”服务,全面构建市、县(区)、乡镇(街道)、村(社区)四级全民阅读网络体系。市民凭“一卡通”可在总馆和全市6个分馆以及多个图书漂流站(点)借阅归还书籍,不仅大大方便了市民借阅,更促进了书香新余建设。
While providing borrowing services, the new museum will also carry out extended services such as special lectures, exhibitions, training, reader activities, etc. At the same time, we will also implement the library alliance project, implement the general and branch library system, realize the "one card" service of book borrowing, and comprehensively build a four-level national reading network system at the city, county (District), township (street), and village (community). With the "all-in-one card", citizens can borrow and return books in the headquarters, 6 branches in the city and many book rafting stations (spots), which not only greatly facilitates citizens' borrowing, but also promotes the construction of a new surplus of books.
中心大楼的东侧便是新的美术馆。美术馆一楼设有2个展厅,面积近1000平方米,装修清雅。另设有新余版画名家工作室、新余漆画名家工作室2个工作室和江西工业版画研究院办公室。
On the east side of the central building is the new art museum. There are two exhibition halls on the first floor of the art museum, with an area of nearly 1000 square meters and elegant decoration. In addition, there are two studios, Xinyu masters of printmaking studio, Xinyu masters of lacquer painting studio, and the office of Jiangxi Institute of industrial printmaking.
▼剖面图,profile

▼总平面图,General layout

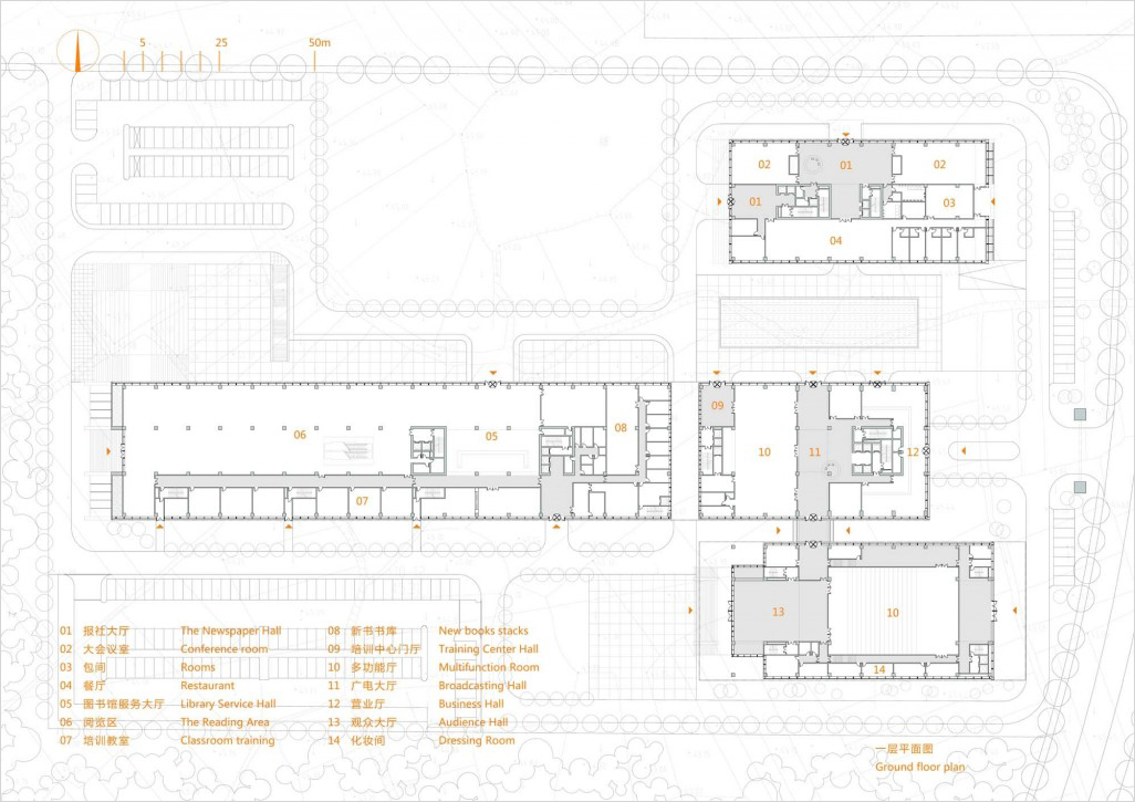
▼一层平面图,First floor plan

▼二层平面图,Second floor plan

▼三层平面图,Third floor plan

