
北京步麓建筑设计服务有限公司
********
********
北京市北京市东城区
B.L.U.E.建筑设计事务所成立于2014年,由日本建筑师青山周平与藤井洋子共同创建于北京,是一所面向建筑以及建筑室内设计方向,充满年轻活力的国际化建筑事务所。B.L.U.E.是Beijing Laboratory for Urban Environment的略称,同时也是事务所的核心设计哲学。以厚重历史与先锐思潮激烈碰撞的北京为中心,通过建筑、室内、产品、艺术等设计实践,实现对城市物理、社会、文化环境等方面的研究,寻求一个真正连接城市环境的设计平台。
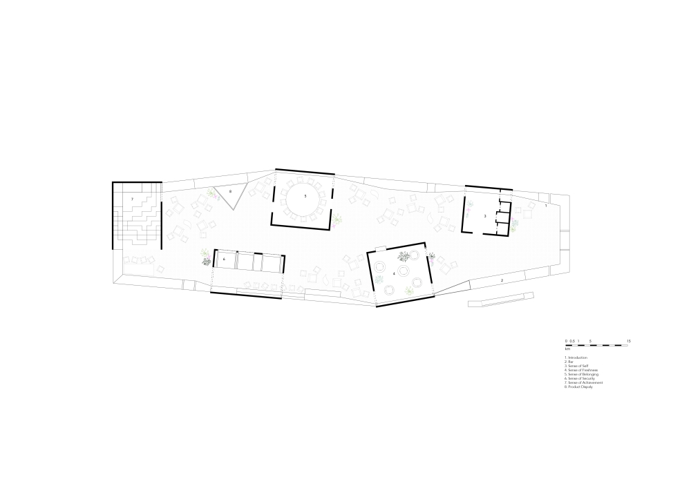
Nescafe Sense Cafe,北京/室内

小镇,充满了乡间泥土气息,充满了鸟语花香,能看到溪水静静流淌,能看到山坡上的牛羊。小镇给予人们清新自在的感觉,与城市枯燥乏味的水泥墙截然不同,它是一个能够不断地刺激、启发和开放人们各种感觉的空间。为了营造一个城市中小镇的感觉,通过黑色吧台将五个形态各异的盒子串联起来,围合出一个充满不同感觉的“小镇”。
The village is full of rustic atmosphere, full of birds and flowers. It can see the stream quietly flowing and the cattle and sheep on the hillside. The exhibition,called village,brings people with the feeling of being fresh and comfortable, and is different from the metropolis. It inspires a variety of sense in diverse space.In order to create the consciousness of a small village in the city, the black bar run through five rooms of different forms and feelings.

盒子与盒子的间隙如同小镇的街道和广场,而盒子本身则是小镇房屋的缩影。在与咖啡馆的体验结合后,形成了下面五种包裹着不同的材质的盒子:自我感,新鲜感,归属感,安全感,成就感。
The gap between the rooms is like the streets and squares of the village, and the box itself is the epitome of the village’s house.In combination with the experience of the cafe, the following five boxes of different materials are generated: sense of self, sense of freshness, sense of belonging, sense of security, sense of achievement.

自我感:在共享的大空间里分隔出只能容纳一个人的小空间,提供人们在独享空间中享受咖啡,感受自我的一种沉浸式的咖啡体验。
Sense of self: to separate a person's small space in the shared area, the exhibition provide people in the exclusive space to enjoy the coffee.

新鲜感:波浪还是山丘?抛开传统,在新的空间体验里脑洞大开。
Sense of freshness: waves or hills? Put aside the traditional feeling in cafe shop, it could bring custom with the freshly space experience.

归属感:圆,是一种内聚的形式,圆桌象征着欢聚、团圆。落座、共饮,将人们带回放松、自在的归属。
Sense of belonging: the circle shaped , is a form of cohesion. The round table symbolizes the joy, reunion . Seated, drink, will bring people back to relax, free ownership.

安全感:坐在高低不同的洞口内看向来往的人群,体验一种窥视的安全感。
Sense of security: sitting in different levels of the round shaped to see the crowd, to experience a sense of security.

成就感:由400mm*400mm*400mm的盒子堆砌成一个向上的空间,带来到达顶峰的成就体验。
Sense of achievement: 400mm * 400mm * 400mm box pile up into a space to bring the culmination of the achievements of experience.














