济南市轨道交通R3线一期工程龙洞停车场综合楼
“城外青山城内湖,凭谁写出辋川图。细细烟雨似江南,人家半住柳荫中。”济南这座城市给人留下的印象一直如此的诗情画意,这里不仅有文人墨客留下的足迹,更有“四面荷花三面柳,一城山色半城湖”而享誉国内的优秀自然景观,在济南这座城市里,建筑要琢磨如何与济南城市特质相契合,山的稳重,水的灵动,因山而落,因水而成。
“The lake outside the city and the inner city of the lake, who wrote the map of the river. The thin smoke and rain resemble the south of the river, and people live halfway in the shade of willow.” The city of Jinan, China has always left the impression of being so poetic and artistic. Under the footprint, there are “four sides of the lotus and three sides of the willow, one city and half of the city lake” and is renowned for its excellent natural scenery in the country. In this city of Jinan, the building needs to figure out how to match the characteristics of Jinan city, the stability of the mountain, The agility of the water.Situated here because of the mountain, gradually developed because of water.
▼项目概览,project preview
本项目坐落于山东省济南市龙洞庄村。基地西南两侧为龙洞风景区,东临大辛河,背山面水,环境优美。基于这样的环境条件,建筑设计团队将设计重点放在与山体环境、滨河景观的对话关系,将建筑“隐”于环境之中。建筑面积为8740.6平方米,主要满足城市R3线的运营需求。是一个集办公、会议、维修、接待、餐饮、住宿、娱乐等功能为一体的小型办公综合体。
This project is located in Longdongzhuang Village, Jinan City, Shandong Province. On the southwest side of the base is the Longdong Scenic Area, facing the Daxin River in the east, facing the mountains and facing the water, the environment is beautiful. Based on such environmental conditions, the architectural design team focused on the dialogue relationship with the mountain environment and riverside landscape, and “hidden” the building from the environment. The construction area is 8740.6 square meters, which mainly meets the operational needs of the city’s R3 rail line. It is a small office complex integrating office, meeting, maintenance, reception, catering, accommodation, entertainment and other functions.
▼鸟瞰图,aerial view
建筑的形象从山水中寻求灵感,建筑形体采用较整的体量向龙洞景区山体倾斜,形成积极的对话关系,面向大辛河景观采用丰富的小体量形成面向河道景观的小尺度界面,建筑立面语言以龙洞景区的山石为原型,采用毛石砌筑做法,同时邻水的建筑形态则采用水岸屋舍错落有致的肌理形态,从而形成山水相依的整体建筑形象。自然材料的运用使该建筑获得了山东省2019年绿色建筑三星级,满足了如今对建筑绿色化、可持续性的要求。
The image of the building seeks inspiration from the mountains and rivers. The building body adopts a relatively large volume to slope towards the mountain of Longdong Scenic Area, forming an active dialogue relationship. Facing the Daxin River landscape, it adopts a rich small volume to form a small-scale interface facing the river landscape. The language of the facade is based on the mountain and rock in the Longdong Scenic Area, using the method of masonry . At the same time, the architectural form of the adjacent water adopts the staggered texture of the waterfront houses, thus forming an overall architectural image of mountains and waters. The use of natural materials has earned the building a three-star rating for Shandong Province’s 2019 green building, which meets today’s requirements for green and sustainable buildings.
▼毛石立面与山体形成积极的对话关系,the rubble facade positively dialogues with the mountain landscape
▼建筑外观,exterior view
▼建筑立面,building facade
建筑内部汲取中国园林中,大小、明暗、开阔、隐显等空间处理手法,将室外毛石砌筑墙体引入室内,使内外一体。人在建筑内部行进时,可以感受到完整的,连续有富于变化的和韵律的空间,隐而不漏,曲径通幽。内部由功能房间围绕着中庭组成,在中庭的东侧和西侧各设置了两个内庭院,满足南北两侧房间的自然采光和通风。一层设置水院,既可以净化空气改善气候,又可以使的建筑上下产生热压差,通过天井加强空气对流辐射交换。建筑北立面铺设玻璃砖,营造柔和的室内光环境,阻挡北侧高架桥的噪声和视线干扰。通过一条贯穿室内中庭的楼梯,可将行人引入每一层观景平台,收放有序的空间秩序营造出观山时的震撼视觉。
The interior of the building draws on the treatment methods of the Chinese garden, such as size, light and shade, open and hidden, and introduces the outdoor masonry wall into the room to integrate the inside and outside. When people walk inside the building, they can feel the complete, continuous and rhythm-filled space, concealed but not leaked, and the winding path is open. The interior is composed of functional rooms around the atrium, and two inner courtyards are set on the east and west sides of the atrium to meet the natural lighting and ventilation of the rooms on both sides of the north and south. A water courtyard is set up on the first floor, which can not only purify the air and improve the climate, but also cause a difference in heat pressure between the upper and lower buildings, and strengthen the air convection radiation exchange through the patio. Glass bricks are laid on the north facade of the building to create a soft indoor light environment and block the noise and line of sight interference of the viaduct on the north side. Through a staircase that runs through the indoor atrium, pedestrians can be introduced into each viewing platform, and the orderly spatial order can create a shocking vision when viewing the mountain.
▼室外毛石砌筑墙体被引入室内,the language of rubble wall is continued in the interior design
▼景观庭院,the landscaped courtyard
▼阳光从墙壁倾泻而下,the sunlight is pouring down on the internal walls
▼中庭概览,atrium space
冬日雪景下,建筑墙体与积了一层薄雪的山体完美融合在一体,充满了和谐美感。
Under the winter snow scene, the building wall is perfectly integrated with the mountain with a thin layer of snow, full of harmony and beauty.
▼冬季建筑外观,winter exterior view
▼夜景,night view
▼冬季鸟瞰,winter aerial view
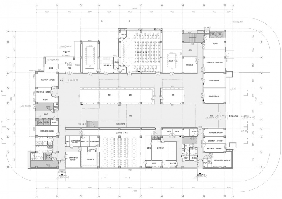
▼一层平面图,ground floor plan
▼立面图,elevations
▼剖面图,sections
项目信息
项目名称:济南市轨道交通R3线一期工程龙洞停车场综合楼
设计方:同圆设计集团有限公司
项目设计 & 完成年份:2019年底竣工
主持建筑师:郭立强
方案设计:司鸿斌、张国萌、边文淦、刘琳
建筑专业:张国萌、张建新
结构专业:蒋世林、杜鹏、张福启、王洪良
设备专业:韩晓东、訾洁、高峰、李吉成
电气专业:孙文杰、楼云亭、孔建飞
室内:边文淦
幕墙:郭新友
项目地址:山东省济南市历下区龙洞庄村
建筑面积:8740.6㎡
摄影版权:时差影像
客户:济南轨道交通集团有限公司
品牌:主要使用材料:毛石砌块、灰泥质感涂料、超白玻璃、玻璃砖
毛石厂家:山东嘉祥聚欣源
玻璃砖厂家:德州德晶玻璃有限公司
Project information
Project Name: Longdong parking lot complex building of Jinan rail transit line R3 phase I Project
Designer: Tongyuan Design Group Co., Ltd
Project design & completion year: completed by the end of 2019
Presiding Architect: guoliqiang
Scheme design: sihongbin, zhangguomeng, Bian Wengan, Liu Lin
Architecture major: zhangguomeng, zhangjianxin
Structure major: jiangshilin, dupeng, zhangfuqi, WangHongLiang
Equipment major: hanxiaodong, Zijie, Gaofeng, lijicheng
Electrical major: sunwenjie, louyunting, kongjianfei
Indoor: Bian Wengan
Curtain wall: guoxinyou
Project address: longdongzhuang village, Lixia District, Jinan City, Shandong Province
Building area: 8740.6 ㎡
Photography Copyright: time difference image
Client: Jinan rail transit Group Co., Ltd
Brand: main materials used: rubble block, plaster texture coating, ultra white glass, glass brick
Rubble manufacturer: Shandong Jiaxiang juxinyuan
Glass brick manufacturer: Dezhou Dejing Glass Co., Ltd






























