上海浦东国庆寺,上海 / 建筑
位于上海浦东唐镇的国庆寺为一座明代寺庙,原址为纪念明代抗倭名将俞大猷的“俞公祠”,六年前启动了新的设计工作,目前首期建筑部分基本完工!
The Guoqing Temple in Dontang Town, Pudong district of Shanghai is a Ming dynasty temple. The original site was the Yu Gong Temple commemorating Yu Dayou, a famous anti-invasion warrior in the Ming Dynasty. New design work was started six years ago, and the first phase of construction is basically completed!
2014年底,我接到朋友电话,邀请为此设计方案!寺庙不大,有个年轻的主持,法号演因,我在电话里跟他说:“如果你要个传统仿古寺庙,我不适合做,如果你想做个现代寺庙,我很有兴趣!”演因师傅说:“我很期待”!我隐约觉得,他是个好业主。
At the end of 2014, I received a call from a friend and invited me to design a proposal for this project! The temple is not big, there is a young Master, his Buddhist name is Yan Yin. Later, I told Master Yan Yin on the phone: “If you wish for a traditional temple, I am not suitable for it. If you want it to be a modern one, I am very interested!”. The Master responded: “I am looking forward to it!”. At that moment, I had a vague feeling that he is a good Master.
我跟他说的“现代”,包含两个层面的含义,一个是形态、空间、材料等物质层面,另一个则是在公共性等理念层面!在今天的中国,寺庙几乎是个“烧香磕头”的地方,原本“讲经说法”和“禅修”的核心功能在下降;佛教建筑原本也并不讲究中轴对称,汉传佛教把宫廷建筑的格局移植到寺庙中(“寺”在过去指官衙),所以我们有了与藏传、南传、日式等不同的官衙式寺庙。在这块场地,我们能否设计一个与城市更友好的寺庙?能否让宗教建筑找到其精神所在?能否把人们进入寺庙的过程塑造为一次理解佛法的旅程?
I said to Master Yan Yin that the concept of “modern” has two levels of meaning, one is about the physical level such as its form, space, material, and the other is the conceptual level such as the ideal of publicity! In today’s China, temples are almost a place of burn incense and pray. The core functions of “Preach the View” and “Meditation” have declined; Buddhist architecture originally did not particularly care of axis symmetry, but Chinese Buddhism transplanted the pattern of this palace architecture into temples (“temple” used to refer to Yamun, government palace of feudal China), so now we have Yamun-style temples that are different from Tibetan, southern, and Japanese Buddhism. As for this project, can we design a temple that is more friendly and more interactive to the city? Can religious buildings find their spirituality? Can the process of people’s entry to this temple be shaped as a journey to understand Buddhism?
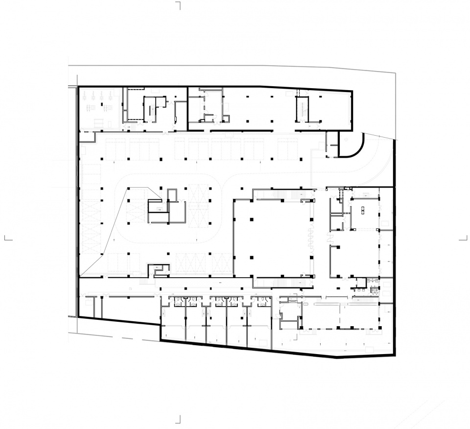
寺庙位于城市内,用地紧邻着一块小城市绿地。我们通过与政府协商,把寺庙的朝向转至与小绿地连通的方向,两者一并设计,形成一体化的空间,绿地公园全天候开放,寺庙也成为其中的一部分。我给寺庙和公园取了个共同的名字——众生禅院。
The temple is in the city and adjacent to a small urban green space. We communicated with the government and changed the direction of the temple to connect with the small green space, so the two sites were designed together to form an integrated public space which open for public all day. In this way, the temple has melted into the park. Collectively they were named Zen Garden of All Living Beings.
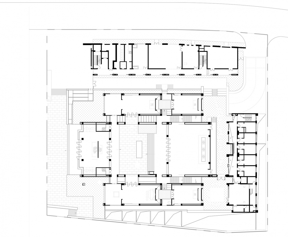
设计能体现“自然与传统”的当代建筑是我和团队的理想,上海国庆寺项目提供了一个契机!设计通过建筑的开合处理、庭院尺度的控制,去除了装腔作势的形态,建筑平和朴素,空间松弛自然,让周边都市环抱之下的寺院呈现 “幽、隐、静、藏”!建筑用杉木模板的清水混凝土、竹钢、钛锌板等材料建造,用现代的语言塑造传统韵味和空间精神。演因师傅告诉我,因为这个设计,寺庙未建成已有了很多的居士,而且一半左右是八零九零后,不同于其他寺庙中老年居士的构成!
Designing contemporary buildings that can embody “nature and tradition” has always been an ideal to our team. The Shanghai Guoqing Temple project provides an opportunity! With careful arrangement of the architectural fragmentation and combination, and strict control of the courtyard dimensions, our design removes the pretentious form, makes the building peaceful and simple, the space relaxed and natural. It successfully preserved the spirit of the temple: tranquility, peace, retreat, and isolation, expressed the spatial appeal of the Buddhism religion surrounded by the hustle and bustle of a modern city. Using fair-faced concrete, bamboo steel, titanium zinc plate and some other modern materials, we infused the language of the modern world into the building and space of traditional charm and spirit. Master Yan Yin told me while the temple is being built, it has already attracted many laymen, and about half of them were born after 1980s, which is much younger than the middle-aged and elderly laymen in other temples!
项目从设计至今已经整整六年,种种原因土建完工的部分仅是其中一大半,园林景观和室内尚未进场,寺庙里已经临时摆设了不少物件,进入半使用状态。这样边用、边建的状态不知还会持续多久,做寺庙设计也如同修行,考验建筑师的耐力和韧性!
主殿旁边的两座辅助建筑,没能扛得住主持师傅要增加面积的执着,从设计时精心推敲的两层高变成了三层;竹钢的格栅因为供应商的撤场,其中一部分被换成铝合金;很多好心的居士关心寺庙建设,捐赠着各种物件,但一些与建筑不协调的东西一不小心就躲过建筑师的眼睛进了场。
It has been six years since the project was designed, and only half of the construction works have been completed for various reasons. The garden landscape and interior have not yet in construction, but many objects have been temporarily displayed in the temple and it has entered a half-use state. I do not know how long this half-use state will last, but temple design is like a practice, testing the endurance and resilience of architects!
The two auxiliary buildings next to the main hall failed to bear the master’s obsession to expand the area and added to three floors in the end where they were originally designed to be two floors. Part of the bamboo steel grille was secretly replaced by aluminum alloy due to the supplier’s withdrawal. Many well-intentioned laymen continued to donate a variety of objects that did not match the architectural temperament, and some objects accidentally escaped the eyes of the architect and was placed into the temple;
关于木模板清水混凝土墙面,尽管我们提供了详细工法和要求,但施工单位一开始很难掌握,按自己的想法边做边摸索,留下大量的瑕疵,一度让人绝望,但我还是咬着牙跟主持师傅说:“做坏了就认了吧,不要修补,留下这些瑕疵也比人为的涂脂抹粉更真实和自然”!浇筑工作从主殿开始,终于在最后实施的寺院围墙处达到了很高的质量,这组建筑最精美之处意外的变成了围墙!
As for the wooden template fair-faced concrete wall, although we provide the detailed construction method and requirements were discussed, but the construction unit ignored it at the beginning, and built it completely according to its own ideas, leaving a lot of flaws, which made people desperate for a while, but I still gritted my teeth and said to the Master: ” Come on, don’t fix it, leaving these flaws is more real and natural than artificial grease and powder”! The concrete work started from the main hall, and finally reached a high quality at the garden walls of the temple after repeated trial and error. The garden walls have unexpectedly become the most exquisite part of this temple!
演因师傅每天住在工地,给工地拍照成了他的日常,从他发的朋友圈看出,他对这个设计从最初的略有怀疑到现在已成深爱。不久前的一天,他、我、景观设计师一起坐在工地上讨论后期的种种,我突然觉得,演因师傅对于空间的想法已经比我更现代和激进了!最近,他还给这些木模混凝土墙起了个富有禅意的名字——融素!
Master Yan Yin lives on the site and taking pictures of the construction site has become his daily routine. From photos he posted on WeChat moments, we could notice that he has been deeply in love with this design from the initial half-trust to the present’s satisfaction. One day not long ago, Master Yan Yin, the landscape architect, and I were sitting on the construction site to discuss the later stages. I suddenly felt that Master Yan Yin’s idea of space is more modern and radical than I! Recently, he gave these wooden-mold concrete walls a Zen-like name – Rongsu!
项目名称:上海浦东国庆寺
项目地点:上海浦东唐镇
设计时间:2014-2016
建成时间:首期土建完工,全部竣工预计2022年
设计单位:深圳墨泰建筑设计与咨询有限公司
设计范围:建筑方案、施工图全程设计(含室内设计)
主持建筑师:沈驰
建筑:王淞、冯文清、刘为霞、朱维、刘余勇、伍玉聪、杨静、陈静儿、罗琼、王春燕、葛铁昶
结构:岑慧园、黄明星、陈惠明、甘凯、朱安安
电气:孙健有、吕珍地、李峰、潘志坚、高阳
给排水:李和、黄杰、温志军、李玲玲、张志华
暖通:彭天辉、代小山、张子星、唐丽华
室内:阮斌、唐韵珊、胡俊波、程翔、黄利波
摄影:曾天培
撰文:沈驰
视频编辑:许良润
视频素材:墨泰建筑、曾天培、深圳卫视、凤凰卫视、我在短视频
Project Name: Shanghai Pudong Guoqing Temple
Project Location: Dongtang Town, Pudong, Shanghai
Time of Design: 2014-2016
Time of Completion: First phase completed; All completion is expected in 2022
Design Unit: Shenzhen Multiarch Architectural Design and Consulting Co., Ltd.
Design Scope: whole-process design of architectural plan and construction drawing (including interior design)
Architect in Charge: Shen Chi
Architects: Wang Song, Feng Wenqing, Liu Weixia, Zhu Wei, Liu Yuyong, Wu Yucong, Yang Jing, Chen Jinger, Luo Qiong, Wang Chunyan, Ge Tiechang
Structural Engineer: Cen Huiyuan, Huang Mingxing, Chen Huiming , Gan Kai, Zhu Anan
Electrical Engineer: Sun Jianyou, Lu Zhendi, Li Feng, Pan Zhijian, Gao Yang
Water Supply and Drainage: Li He, Huang Jie, Wen Zhijun, Li Lingling, Zhang Zhihua
Heating and Ventilation: Peng Tianhui, Dai Xiaoshan, Zhang Zixing, Tang Lihua
Interior Designer: Ruan Bin, Tang Yunshan, Hu Junbo, Cheng Xiang, Huang Libo
Photographer: Zeng Tianpei
Author: Shen Chi
Video Editing: Xu Liangrun
Video Material Provided by: MULTI ARCH, Zheng Tianpei, Shenzhen TV , Phoenix TV, IAM Social Media







































