深圳湾超级总部基地城市展厅改造设计,深圳/室内
方案通过前沿的视觉语言、沉浸的呈现方式和互动的空间体验,为超级总部基地的城市理念和价值观赋形置景。声音和动态影像不露痕迹地融入场景,对展品及历史背景进行补充解释的同时,也使展览跳脱出按部就班的叙述,完成错时性与戏剧感的营造。展览不仅通过沉浸式的蒙太奇空间体验帮助不同背景的观众更主动地参与进叙事之中,同时延续了工作室对于多角度叙事的探索,建立空间、物与文字的关联,为单一空间赋予多种叙事的可能性和阅读深度。展陈描绘出超级总部基地在大湾区建设过程中作为城市门户的蓝图,展现城市建设成果,用国际化视野、前瞻性思维、创新性的设计打造了符合超总基地的高水平规划、高标准建设的展示空间。共同见证深圳这座充满机遇和活力的大都市在不远的未来成为影响力卓著的全球标杆城市。
Through the cutting-edge visual language, immersive presentation, and interactive spatial experience, the design gives form to the philosophy of the Super Headquarters Base. Sound and moving images are unobtrusively integrated into the scenes, complementing the exhibits and their historical context, while at the same time shifting from the conventionally prescribed narrative to creating a sense of mise-en-scène and drama. The exhibition not only helps viewers from different backgrounds to participate more actively in the narrative through an immersive montage spatial experience, but also continues Pills’ exploration of multi-perspective narrative, establishing the connection between space, objects, and text, and endowing a single space with multiple narrative possibilities and reading depth. The exhibition depicts the blueprint of the Super Headquarters Base as the urban gateway in the process of constructing the Greater Bay Area, showing the achievements of the city’s construction. Through a design of international vision, forward-thinking, and innovation, the showroom meets the high level of planning and construction standards of the Super Headquarters Base. Together, we will witness Shenzhen, a metropolis full of opportunities and vitality, become an influential global benchmark city shortly in the future.
深圳湾超级总部基地位于深圳东西发展脉络和南北山海通廊中心,区位条件卓越、自然景观得天独厚。片区用地面积117公顷,总开发建筑面积约520万平方米。将构建全球总部聚集区,都会文化高地、国际交流中心、世界级滨海客厅为一体的未来城市典范。通过对片区的布局结构、开发强度、功能构成、公共空间、地下空间、建筑风貌、生态景观、城市天际线、综合交通、智慧城市等内容进行系统性设计,实现深圳湾集约、高效、生态、人性化的“未来城市”目标。为了进一步向社会各界展示深圳作为先锋都会的城市理念和发展动态,PILLS 工作室受深圳万科邀请担任此次深圳湾超级总部基地城市展厅的空间优化和展陈设计。两个展厅在体量上分离,由建筑的带状服务空间在东侧串联。北侧展厅展示超级总部规划设计的愿景和成果,南侧展厅展示万科作为城市建设见证者的足迹。
既有的城市展厅大多采用专业化、模式化的展陈方式,鲜有能够做到将复杂的城市设计理念生动地展示给观者。我们针对本次设计任务的难点,以以下几个问题为设计的起始点:一、如何以更当代的方式展示和表达城市设计的理念和价值观;二、如何更生动地呈现超总的设计核心;三、如何在展厅有限的空间内激发兴趣和好奇心并营造氛围。
Shenzhen Bay Super Headquarters Base is located in the center of Shenzhen’s east-west vein of development and the north-south corridor of mountain and sea. It is endowed with a superior location and unique natural scenery. The total development area of the Shenzhen Bay Super Headquarters Base is 117 hectares, and the total development building area is about 5.2 million square meters. Shenzhen Bay Super Headquarters Base is committed to becoming an exemplary future city that combines a global headquarters cluster, a metropolitan cultural highland, an international communication center, and a world coastal living room. By systematically designing the layout, density, program, landscape, skyline, public space, underground space, architectural style integrated transportation, and smart city, we aim to build Shenzhen Bay as an intensive, efficient, ecological, and humane “city of the future”. To further demonstrate the philosophy and dynamics of Shenzhen’s development as a pioneering city, PILLS Studio was invited by Shenzhen Vanke to optimize and design the showroom of Shenzhen Bay Super Headquarters Base. The two exhibition halls are separated in volume and are linked by the building’s service ribbon on the east side. The northern showroom shows the vision and achievements of the super headquarters planning and design, while the southern showroom shows Vanke’s footprint as a witness of urban construction.
Most of the existing city showrooms adopt specialized and conventional exhibition approaches, and few of them can vividly present the complex urban design concept to the viewers. In response to the difficulties of this design task, we take the following issues as the starting point of the design: first, how to display and articulate the philosophy and values of urban design in a more contemporary way; second, how to present the design core of Super Headquarters Base in a more vivid way; third, how to stimulate interest, curiosity and create an atmosphere in the limited space of the exhibition space.
方案概念来自博物馆的前身-珍奇屋(Cabinet of Curiosity):15到18世纪间,欧洲收藏家用屋子、收藏室和橱柜陈列自己收藏的稀奇物件和珍贵文物。物件被整理收纳后并置在空间中,分门别类中保留着千丝万缕的联系。每个物件都是从自然科学和人文历史中截取的物质片段,让观者得以通过物件探知历史。
通过物质片段连接观者与未来,当代“珍奇屋”即是对深圳湾超级总部基地城市展厅的隐喻。在这一空间框架下,方案围绕“物”的展示逻辑,基于可感知性(tangibility)进行组织,为城市理念和价值赋予形态,为城市发展动态置景。在有限的空间里,展厅创造了观者与宏观城市叙事产生联结的介质,激发市民对未来城市的好奇想象,探索参与未来。
The concept comes from the Museum’s predecessor, the Cabinet of Curiosity: between the 15th and 18th centuries, European collectors used rooms, chambers, and cabinets to display their collections of rare objects and precious artifacts. The objects are organized and juxtaposed in a space that preserves the inextricable ties between the categories. Each object is a material fragment from the natural sciences and human history, allowing the viewer to explore the history through the object.
By connecting the viewer with the future through material fragments, the contemporary “Cabinet of Curiosities” is a metaphor for the city showroom of Shenzhen Bay Super Headquarters Base. Within this spatial framework, the project is organized around the logic of “object” display. Based on tangibility, the design gives forms to urban visions and values and sets a dynamic scene to show the city’s development. In a limited space, the showroom creates the medium for the viewer to connect with the macro urban narrative, wander and imagine the becoming city, and participate in the future.
方案的叙事性营造了展陈与观者的对话关系,循序渐进而连贯的流线串联起多样化的概念节点,将超总愿景一一进行解构和展示。展览内容与空间形式合为一体:叙事结构与空间流线之间相互对应;展墙、展龛、展柜和展台组合形成连续多样的交互界面;节点利用不同的媒介还原关键的设计概念。可交互的模型与多媒体装置结合,营造出多感官参与的沉浸式体验,使城市变得可视、可感,人与环境、未来的互动得以发生。
展厅通过拆解超级总部基地的设计理念生成并组织展览逻辑,设计概念被转译为八个不同尺度的蒙太奇镜头。在空间中,超级总部的系统和节点通过流线层层递进、串联展示。展柜、展台和壁龛相互结合,陈列多样的模型和多媒体装置,为展览叙事叠加物质层面的信息和时空维度的叙事。
The narrative of the program creates a dialogue between the exhibition and the audience. The progressive and coherent flow links the diverse conceptual nodes that deconstruct the overarching vision. The exhibition content is integrated with the spatial form: the narrative structure corresponds to the circulation; the walls, niches, cabinets, and tables are combined to form a continuous yet diverse interactive interface; the nodes use different media to present the key design concepts. The combination of interactive models and multimedia installations creates an immersive experience with multi-sensory participation, making the city visible and tangible, and allowing people to interact with the environment and the future.
The showroom generates and organizes the exhibition logic by deconstructing the design concepts of Super Headquarters Base, which are translated into eight montages of different scales. In the space, the systems and nodes of the Super Headquarters are displayed in layers and are threaded by circulation. Display cases, tables, and niches are combined to display various models and multimedia contents, overlaying the material level of information and the Spatio-temporal dimension of the exhibition narrative.
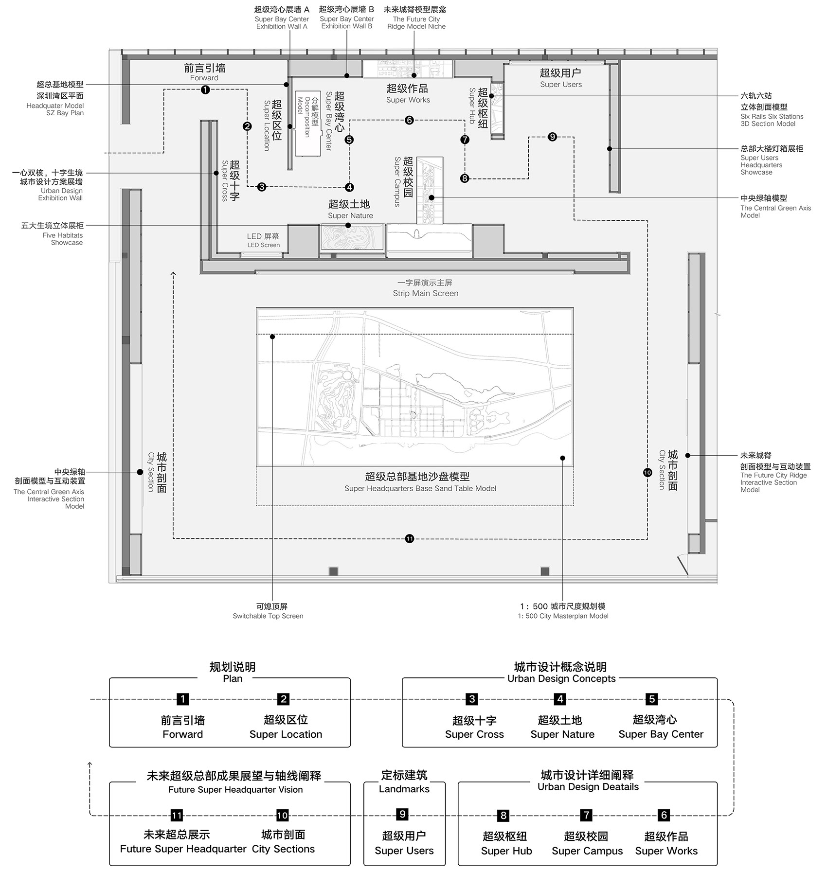
小厅前言展示了深圳湾超级总部基地在统筹大湾区一体化进程、城市规划结构中的战略作用,为整体展览的叙事铺垫背景。深圳湾区平面图采用了展示沿线的重要城市节点,体现“超级区位”交通资源的优势和链接粤港澳大湾区的巨大潜力。
The preface of the small hall demonstrates the strategic role of the Shenzhen Bay Super Headquarters Base in the integration process and urban planning structure of the Greater Bay Area, laying the background for the overall narrative. The plan of the Shenzhen Bay area shows the important city nodes along the route, reflecting the advantages of “super location” transportation resources and the great potential of linking the Guangdong-Hong Kong-Macao Great Bay Area.
超级总部基地的规划概念—“一心双核,十字生境”以平面图示的方式强调规划方案的“超级十字”结构,阐释地区的高度地标、文化地标和公园地标协同融合的布局思路,为展览叙事搭建宏观总体的体系框架。效果图和多媒体通过中标方案多媒体,补充讲解了城市的规划概念。
The planning concept of Super Headquarters Base – “One Center, Two Cores, the Ecological Cross” is demonstrated by a plan diagram to emphasize the “supercross” structure of the scheme, explaining the layout for integrating landmarks of regional height, culture, and park. The node is designed to build a macroscopic and general framework for the narrative. Renderings and multimedia of the design scheme complement the demonstration of the urban planning concept.
“超级湾心”位于深圳湾超级总部基地十字结构的中心交汇处,由三栋超高层地标建筑及其环绕布置的综合交通枢纽、文化设施构成。我们将“超级湾心”以分解模型的方式,将核心区精密复杂的立体系统解构,将片区高效复杂的空间体系呈现在观众面前,清晰而详细地展现了地下的空间系统与设施系统,以及地上的道路系统与建筑地标,阐释了城市建设概念,以及从大都会的“拥挤文化”转向人,城,自然多维迭代的可能性。创新的模型表达充分体现深圳湾超级总部基地作为都会新名片、活力繁荣与生态共存的地标性质。
The “Super Bay Center” is located at the center of the cross structure of the Shenzhen Bay Super Headquarters Base, and consists of three skyscrapers, integrated surrounding transportation hubs, and cultural facilities. We deconstructed the core area’s complex three-dimensional system in the form of an exploded model, presenting the underground space and facilities system, the above-ground road system, and architectural landmarks in a clear and detailed manner to the audience. It explains the concept of urban construction and the possibility of shifting from the “crowded genre” of the metropolis to the integration of people, city, and nature. The innovative model fully reflects the nature of Shenzhen Bay Super Headquarters as a new metropolitan model, a landmark of vitality, prosperity, and ecological coexistence.
展厅另一侧的T形展台包含了中央绿轴模型和“五大生境”立体展柜。中央绿轴是超总的南北向城市绿谷,连通海湾与湿地,诠释人与自然的共生之美。中央绿轴模型通过顶盖的抬升将地上生态设计与地下交通体系有机展现,结合方案动画展示,直观地展现出“超级校园”的设计理念和其与周边地块的关系。在其旁边,我们通过生态模型取样结合透明触碰屏幕,生动地展现深圳多样、富饶的生态系统,强调了超总片区人与自然和谐共处的设计初衷,高密度聚居与可持续发展并举的设计理念。可互动的生态箱使模型具备可读性,通过触碰可以获得更多的栖息在片区的植被鸟类资料,在激发好奇心的同时使观者得以与生态环境产生情感联结。
The T-shaped counter on the other side of the exhibition hall contains a model of the Central Green Axis and a three-dimensional display of the “Five Habitats”. The Central Green Axis is the north-south urban green valley of Super Headquarters, connecting the bay and wetland, showing the beauty of symbiosis between humans and nature. The central green axis model unveils the above-ground ecological design and the underground transportation system by lifting the roof. Combined with the program animation, the model intuitively shows the design concept of the “Super Campus” and its relationship with the surrounding land. Next to it, the ecological model sample is combined with a transparent touch screen to vividly demonstrate the diverse ecosystem of Shenzhen, emphasizing the original design intention of harmonizing the human and nature of the Super Campus, and the design concept of high-density settlement and sustainable development. The interactive ecological box renders the model readable, and by touching it, more information about the vegetation and birds inhabiting the area can be pulled out, stimulating the viewer’s curiosity and allowing for an emotional connection with the ecological environment.
“未来城脊”是超总十字轴线的其中之一,在摩天城市中创造低密度的城市轴线,打造片区多元交互平台,为孕育独角兽企业和高能级成长企业空间组成的低密度活力街区。展龛将城市空间愿景嵌入展墙中,展示未来超级活力都市的构成,以及30万就业人口日常交往、消费、文化、休闲活动的发生地。通过街区的剖面模型,可以直观地了解到未来超总片区的街区尺度与模式。
深圳湾超级总部基地打造以轨道交通为主导的立体交通系统,形成六轨六站超级枢纽。“超级枢纽”展柜通过剖面模型展现覆盖地铁2、9、11号线、规划地铁29号线、深莞城际及穗莞深城际的六轨六站综合性站城一体化枢纽。“超级枢纽”的辐射范围与服务能力遍及粤港澳大湾区。
The “Future City Ridge” is one of the supercross axes, creating a low-density urban axis, a diversely interactive platform, and a vibrant low-density neighborhood for the breeding of unicorn companies as well as high-energy growth companies. The niche embeds the vision of urban space into the exhibition wall, demonstrating the future super-vibrant city and the place where 300,000 employed people will have their daily interactions, consumption, culture, and leisure activities. The section model of the neighborhood provides an intuitive understanding of the scale and mode of the future neighborhood in Super Headquarters.
Shenzhen Bay Super Headquarters Base creates a railway-led three-dimensional transportation system, forming a Super Hub that connects 6-Rails and 6-Stations. Employing a section mode, the “Super Hub” showcases the integration of existing Metro Lines 2, 9, and 11, with the planning Metro Line 29, and the 6-Rails 6-Stations that allow for the Shenzhen-Dongguan intercity, and Guangzhou-Dongguan-Shenzhen intercity transportation. The service scope and capacity of the “Super Hub” cover the Guangdong-Hong Kong-Macao Greater Bay Area.
未来的超级总部基地是深圳地标建筑的聚集地,二十一座已经设计完成的摩天楼形象被纳入展龛,展现出入住超总的“超级用户”的不凡实力。“总部大楼”展柜使用可替换灯箱罗列展示地标建筑,留白的灯箱为未来持续加入超级总部基地的用户预留了展示空间,揭示了深圳湾超级总部作为成长中的新生代湾区所包含的生命力与自我迭代的无限可能。屏幕内容展示了招商银行全球总部大厦、中兴通讯总部大楼、万科总部大厦、OPPO国际总部等世界500强企业总部的群像。
The future Super Headquarters Base is a gathering place for Shenzhen’s landmark buildings. Twenty-one completed skyscrapers are incorporated into the exhibition niche to show the extraordinary strength of the “super users” who will reside in the Super Headquarters. The “Headquarters Towers” showcase uses replaceable light boxes to display the landmark buildings. The empty spots are reserved for continuously joining future users. It demonstrates the constant vitality and potential contained in the Shenzhen Bay Super Headquarters as a growing bay area. The screen shows the group portraits of the global headquarters of the world’s leading 500 enterprises like the China Merchants Bank, ZTE, Vanke, and OPPO.
通过对超总城市设计的悉心梳理,观者可由不同的板块详细了解超总城市设计的核心思想。在小厅层层递进的叙事尽端,是陈设超级总部基地展厅沙盘的大厅,观者在此由对设计的局部的认识转变为对城市片区的整体感知。
大厅左右两侧设置城市剖面模型,结合推拉屏幕,使屏幕形成与城市对应的切片,实体与对应位置剖面信息的结合使观者通过互动增进对重点区域的理解,并将拆解的信息重组为一个整体,呈现完整的未来总部印象。
The audience can understand the core ideas of the urban design of Super Headquarters in detail through different panels that meticulously parse out the design scheme. Exiting the narrative of the small hall is where the sand table of the Super Headquarters Base is presented. The viewer can shift from the knowledge of the local part of the design to the overall perception of the city area.
Section models of the city are set up on either side of the hall, combined with a sliding touch screen to form an information slice of the city. The combination of the physical and the corresponding sectional information enables the viewer to further understand the key areas through interaction. The showcase reorganizes the disassembled information into a whole, presenting the total image of the future headquarters.
大厅中央的1:500沙盘模型清晰地反映超总的总体形象及其与深圳的区域关系。斜置的主屏和原有一字屏环绕沙盘,展现超总的设计理念和美好未来。一主一辅两块屏幕相互配合,结合沙盘模型叠加展现多重信息,分章节多媒体应对不同的展示场景和人群需求,营造沉浸式的观展体验。
The 1:500 sand table model in the hall’s center demonstrates the overall image of Super Headquarters Base and its regional relationship with Shenzhen. The inclined main screen and the existing strip screen surrounding the sand table show the design concept and bright future of Super Headquarters Base. The main and the auxiliary screens cooperate, combined with the sand table model, to show multiple information. The multimedia content responds to different display scenarios and crowd needs by switching through chapters, creating an immersive viewing experience.
项目名称:深圳湾超级总部基地城市展厅
项目位置:深圳市南山区
设计面积:750 m²
委托方:深圳市万科发展有限公司
委托方团队:齐琳、潘琳琳、韩赟、张丽氢、刘珊、张谢鑫、王川、钟宇翔、张浩
指导单位:深圳湾超级总部基地开发建设指挥部办公室
设计时间:2020年-2021年
展厅改造及展陈设计:PILLS 工作室
主持建筑师:王子耕
设计团队:周颖、褚杰、张少敏、石建礼、汪曼颖、沐璨琦、许诗曼、姜星竹、张晓环
顾问:金鑫、欧智文、纪啸林
致谢:刘晓都、宗卫国
展厅施工及数字内容、多媒体技术团队:丝路视觉科技股份有限公司
Project Name: Shenzhen Bay Super Headquarters Base City Showroom
Project Location: Nanshan District, Shenzhen
Design area: 750 m²
Client: Shenzhen Vanke Development Co.
Client’s Team: Qi Lin, Pan Linlin, Han Eddie, Zhang Lihydro, Liu Shan, Zhang Xiexin, Wang Chuan, Zhong Yuxiang, Zhang Hao
Steering Unit: Shenzhen Bay Super Headquarters Base Development and Construction Command Office
Design time: 2020-2021
Exhibition Hall Renovation and Exhibition Design: PILLS Studio
Lead architect: Wang Zigong
Design Team: Zhou Ying, Chu Jie, Zhang Shaomin, Shi Jianli, Wang Manying, Mu Canqi, Xu Shiman, Jiang Xingzhu, Zhang Xiaohuan
Consultants: Jin Xin, Ou Zhiwen, Ji Xiaolin
Acknowledgments: Liu Xiaodu, Zong Weiguo
Construction and Digital Content, Multimedia Technology team: Silkroad Visual Technology Co, Ltd






































