REXON企业空间 · The “X”,浙江 / ByoArc拜昂建筑
REXON 上虞 50㎡复合空间,是集办公与展厅双重功能于一体的企业核心载体,既肩负着对外展示品牌形象、传递核心价值的重要使命,更是连接企业与客户的关键沟通窗口。
The REXON Shangyu 50㎡ hybrid space functions as the enterprise’s core venue, integrating office and exhibition in one. It serves not only as a showcase for brand identity and core values, but also as a critical interface connecting the company with its clients.
▼入口,entrance

场地由两间约 20 余平米的常规办公室改造而来,直面层高偏矮、预算有限的双重现实约束,如何在苛刻条件下平衡业主对空间品质的高要求,实现办公与展示功能的高效融合与价值最大化,成为本次设计的核心命题。
Renovated from two separate offices of roughly 20 square meters each, the project is constrained by low ceiling height and a tight budget. The central design challenge was to balance the client’s high standards for spatial quality under strict limitations, achieve efficient integration of working and exhibition, and maximize the overall value of the space.
▼展示通道,display aisle

▼通道和展柜,aisle and display cabinet

▼展示通道-展架,display aisle – display stand

本次设计以 “以最少动作解决核心需求” 为核心策略,摒弃复杂的空间改造手法,用简约却精准的设计巧思,让有限空间释放多元功能,在方寸之间构建出动线流畅、功能清晰的复合场域,既契合企业日常办公的实用需求,又满足品牌展陈的专业要求。
Guided by the core strategy of “meeting demands with minimal”, the design avoids elaborate structural alterations. Instead, minimalist yet precise gestures unlock diverse functions within limited dimensions, crafting a coherent hybrid space with clear circulation and well-defined zones. The result responds to both the practical needs of daily office work and the professional requirements of brand display.
▼改造前空间,Space Before

▼设计轴测图,DESIGN AXONOMETRIC

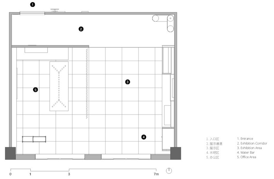
空间营造的关键,在于用极简的设计手法实现功能的自然划分与有机融合。我们以入口区域的片墙为空间界定的核心载体,将 50㎡的空间利落划分成两大功能板块。
The essence of the spatial design lies in naturally separating and merging functions through a minimalist approach. A prominent slab wall at the entrance acts as the primary spatial divider, cleanly organizing the 50㎡ area into two distinct zones.
▼办公区和展示区通道,passage between office area and display area

▼办公区看向展示区,view from office area to display area

一侧打造为专属展示通道,通过线性的空间布局,为访客营造从外部到内部的沉浸式空间转换感,引导其有序行进、层层感受品牌魅力,让展陈动线更具节奏感与体验感。位于展廊尽端设置了一个以传动带为原型的装置展架,产品和功能深度结合。
One side forms a dedicated exhibition corridor. Its linear composition creates an immersive transition from exterior to interior, guiding visitors in a rhythmic, layered journey through the brand narrative. At the far end of the gallery sits an installation display inspired by industrial conveyor belts, deeply merging product presentation with functional expression.
▼展示空间-分隔状态,display space – partitioned state

▼整体空间,overall space

另一侧较大空间则整合为主展示区与开放办公区,为了兼顾空间的连通性与私密性,两区之间采用半透布帘作为软隔断,既能够在办公时段保障办公区域的相对独立,减少展陈动线的干扰,又可根据接待、活动等使用需求灵活开合,让空间在 “办公模式” 与 “展陈模式” 之间自由切换,在空间面积受限的前提下,实现了空间价值的最大化利用,让实用性与灵活性兼具。
The larger opposite zone combines the main exhibition area and open workspace. To balance openness and privacy, the two areas are separated by a translucent fabric soft partition. During office hours, it provides relative seclusion for working areas and reduces disruption from exhibition circulation. For receptions or events, it can be fully opened or closed, allowing the space to switch freely between Office Mode and Exhibition Mode. Within its restricted footprint, the design maximizes spatial utility while achieving both practicality and flexibility.
▼办公区和展示区,office area and display area

▼展示柜,display cabinet

▼休闲区,leisure area

可持续设计理念贯穿项目设计与落地的全程,以材料再利用与模块化设计为核心,从源头把控损耗与能耗,让环保理念与空间美学双向兼顾。选材层面,选用木板、不锈钢等环保低碳材料,在保证空间质感与耐用性的同时,降低材料生产与使用过程中的环境影响;吊顶设计则秉持极简原则,在对空间尺度与使用需求的精确计算基础上,将轨道与灯具合理排布于核心功能区域,摒弃冗余的造型设计,最大限度减少材料的使用,降低建筑隐含碳,真正让可持续设计落地于每一个细节。
▼装置展示架,INSTALLATION DISPLAY STAND

Sustainable design principles are embedded throughout the project, centered on material reuse and modular construction to minimize waste and energy consumption from the outset, reconciling environmental awareness with aesthetic quality. Low-carbon, eco-friendly materials including wood panels and stainless steel are selected for durability and refined texture, while lowering environmental impact across material production and application. The ceiling follows a strict minimalist logic: tracks and lighting are strategically placed only in core functional zones after precise calculation of spatial scale and usage, eliminating unnecessary decorative elements. This reduces materials and embodied carbon, grounding sustainability in every detail.
▼办公区,office area

▼办公区和展示架,office area and display shelf

▼办公区细节,office area detail

在 50㎡极小空间与有限预算的双重约束下,本次设计不仅突破了场地本身的限制,通过精准的空间划分打造出内容丰富、动线流畅的专业展陈区域,更构建了一个多功能融合、灵活可变的开放办公与接待场域。
Despite the constraints of a mere 50 square meters and a limited budget, the design transcends the site’s physical limitations. Precise zoning creates a professional exhibition area with rich content and smooth circulation, alongside a flexible, multi-functional open office and reception space.
▼办公和展示通道,office and display aisle

从片墙的空间界定到软隔断的灵活运用,从环保材料的甄选到极简细节的打磨,每一处设计都围绕 “少” 展开,最终让这个复合空间既完美契合企业的品牌展示与日常办公双重需求,更成为企业对外传递品牌理念、与客户深度沟通的优质载体,让方寸空间,绽放出多元的功能价值与设计魅力。
From the slab wall that defines spatial order to the adaptable soft curtain, from sustainable material selection to refined minimalist details, every choice follows the ethos of less is more. In the end, this compact hybrid space fully satisfies the enterprise’s needs for both office operation and brand exhibition. It becomes an effective medium for communicating brand philosophy and engaging deeply with clients, proving that even a small footprint can deliver rich value and distinctive design.
▼陈列架细节,display shelf detail

▼展示架细节,display rack detail

▼展示架节点,display rack joint detail

▼平面图,Plan

▼结构改造,Structure renovation

Project name: REXON SPACE · The “X”
Project type: Exhibition & Office
Design: ByoArc Studio
Website: http://www.byo-arc.com/
Contact e-mail: info@byo-arc.com
Design year: 2024.12
Completion Year: 2026.3
Leader designer & Team: Yuan Jiang
Project location: Chaoyang 2nd Road, Shangyu District, Zhejiang Province
Gross built area: 50㎡
Photo credit: Sea Horizon
Partner: LUMINATION
Project Manager: Yixin Xu
Project Management: Yixin Xu, Siyu Zhu
Construction Units: LUMINATION, Zhimao Decoration & Design Co., Ltd.
Clients: REXON POWER TRANSMISSION COMPONENTS PTE. LTD.
Materials: Wood, Stainless Steel, Textured Paint












