小庭院之家,上海/室内设计
设计师围绕“如何在25平方米的空间内营造一个温馨、舒适且能容纳多种活动的场所。”这一设计目标开展设计。通过建立室内外的连接、利用夹层以及功能叠加等方式充分挖掘了该极小户型的空间潜能,最终打造了一个居住功能完备且能承载多人聚会的丰富空间。
The designer focuses on "how to create a warm, comfortable place that can accommodate a variety of activities in a space of 25 square meters." This design objective is to carry out the design. Through the establishment of indoor and outdoor connections, the use of mezzanine and functional superposition, we have fully tapped the space potential of this small house type, and finally created a rich space with complete living functions and capable of carrying many people.

▼改造前,Before renovation

▼改造后,After reconstruction


概念生成
设计师将庭院与室内空间作为一个整体考虑,以此来获取更多的使用面积以及开展活动的可能性。通过人与人之间的行为活动建立起空间整体的联系。设计师以一条“活动发生轴”为主线,丰富的活动场景以此轴展开。
Concept generation
The designer considers the courtyard and interior space as a whole, so as to obtain more usable area and the possibility of carrying out activities. Through the behavior and activities between people, we can establish the overall connection of space. The designer takes an "activity axis" as the main line, and the rich activity scenes are unfolded on this axis.
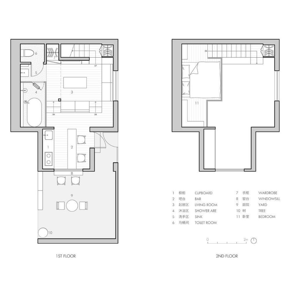
场景01-小庭院
小庭院位于建筑南侧,四周的低矮建筑围合出一方闹市中的清幽之地。天气好的时候可作为露天客厅使用。
Scene 01- small courtyard
The small courtyard is located on the south side of the building, and the surrounding low buildings enclose a quiet place in the downtown. It can be used as an open-air living room in good weather.

场景02-吧台区域
由于历史保护建筑的窗洞不能进行改动,这一限制打消了设计师想直接打通外墙,将室内外空间通过物理方式直接建立连接的想法。设计师在窗内和窗外分别设置了一纵一横两个吧台,为内外建立了间接的连接。外部的活动与内部的活动通过窗户联系在一起,内与外的界限获得了柯林罗式的“现象的透明”。
Scene 02- bar area because the window opening of the historical protection building cannot be changed, this restriction eliminates the designer's idea of directly opening the outer wall and directly connecting the indoor and outdoor spaces through physical means. The designer has set up two bars, one vertical and one horizontal, inside and outside the window, respectively, to establish an indirect connection between the inside and outside. External activities and internal activities are linked through windows, and the boundary between the inside and the outside has obtained the collinrow style "transparency of phenomena".

由于民宿对于烹饪的需求不高,原本功能性很强的厨房被弱化,这对于功能的复合叠加提供了机会。正对入户门的区域叠加了三种功能:玄关、吧台、厨房。橱柜中的酒杯、组成序列的吊灯、吧台和高凳营造出街边咖啡厅般的温馨氛围。这一场景提升了住户的入户体验,也提供了独立的就餐以及临时办公区域。
Due to the low demand of B & B for cooking, the original functional kitchen has been weakened, which provides an opportunity for the composite superposition of functions. Three functions are superimposed in the area facing the entrance door: porch, bar and kitchen. The wine cup in the cupboard, the chandelier in the sequence, the bar and the high stool create a warm atmosphere like a coffee shop on the street. This scene improves the residents' entry experience, and also provides independent dining and temporary office areas.



场景03-半下沉起居室
改造前,地面被整体垫高45公分,只有卫生间区在原始正负零标高。在改造时,设计师保留了入户厨房区的垫层,将起居区域、卫生间区域的地面降到原始标高。起居区域形成一个具有包围感的半下沉空间。
Scene 03- semi sunken living room
Before the renovation, the ground was raised by 45 cm, and only the toilet area was at the original elevation of plus or minus zero. During the transformation, the designer retained the cushion of the kitchen area, and lowered the floor of the living area and toilet area to the original elevation. The living area forms a semi sunken space with a sense of surrounding.

高差营造出丰富的空间感受。踏步两侧被定义为沙发,楼梯扶手同时充当书架和衣柜。木饰面以及木质家具为空间带来亲和力,家具与建筑的界限变得模糊,这样有利于充分利用每一处空间。
The height difference creates a rich feeling of space. Both sides of the step are defined as sofas, and the handrails of the stairs act as bookshelves and wardrobes at the same time. Wood veneer and wood furniture bring affinity to the space, and the boundary between furniture and architecture becomes blurred, which is conducive to making full use of every space.



场景04-夹层卧室
夹层为卧室区域,由于层高限制,床垫直接铺在地板上。在床两侧设置的固定家具丰富了夹层的使用功能,也限定出与下方空间互不打扰的区域。
Scene 04- mezzanine bedroom
The mezzanine is the bedroom area. Due to the limitation of floor height, the mattress is directly laid on the floor. The fixed furniture set on both sides of the bed enriches the use function of the mezzanine and also limits the area that does not disturb each other with the space below.


场景05-卫浴区域
卫浴区域占满整个夹层下方空间。平时台盆区、沐浴区完全面向起居室敞开,仅用玻璃隔断进行空间分割,必要时可放下浴帘遮挡隐私。被水泥漆包裹的暗色调卫浴区在精心营造的照明下带给住客静谧、放松之感。
Scene 05- plumbing area
The bathroom area covers the space below the entire mezzanine. At ordinary times, the basin area and bath area are completely open to the living room, and only the glass partition is used for space division. If necessary, the shower curtain can be put down to cover privacy. The dark color bathroom area wrapped in cement paint brings a sense of tranquility and relaxation to the guests under the carefully created lighting.


项目信息
项目名称:小庭院之家
文章分类:住宅改造
设计公司:栖斯设计
项目地址:上海
项目规模:25平方米
获奖案例:筑巢奖
项目年份:2019年
Project information
Project Name: small courtyard house
Article category: residential renovation
Design company: Qisi design
Project address: Shanghai
Project scale: 25 square meters
Award Winning Case: nesting Award
Project year: 2019














