中联铂悦,苏州/室内


项目定位:
这是业主的第一套房子,所以对空间的品质要求极高,但是对预算还是比较克制的。 在装修之前业主做了很多功课,深入研究各大论坛的装修帖,他发现设计才是整个过程的灵魂,他知道设计公司的设计与装修公司的设计师还是有区别的。在不断的寻找中遇到了晓安设计。
Project orientation:
This is the owner's first house, so the quality of the space is very high, but the budget is relatively restrained. Before the decoration, the owner did a lot of homework and studied the decoration posts of major forums. He found that design is the soul of the whole process. He knew that the design of a design company is different from that of a decoration company. I met xiao'an design in my constant search.

空间意境:
整个家的氛围上,这与在顶面、墙面各个地方点缀的线性灯光起到了很大的作用,在黑白灰色为主的空间中,暖色的灯光为之添加了一些温暖。
Space artistic conception:
In terms of the atmosphere of the whole home, this has played a great role with the linear lights dotted on the top and walls. In the space dominated by black and white and gray, warm lights add some warmth to it.

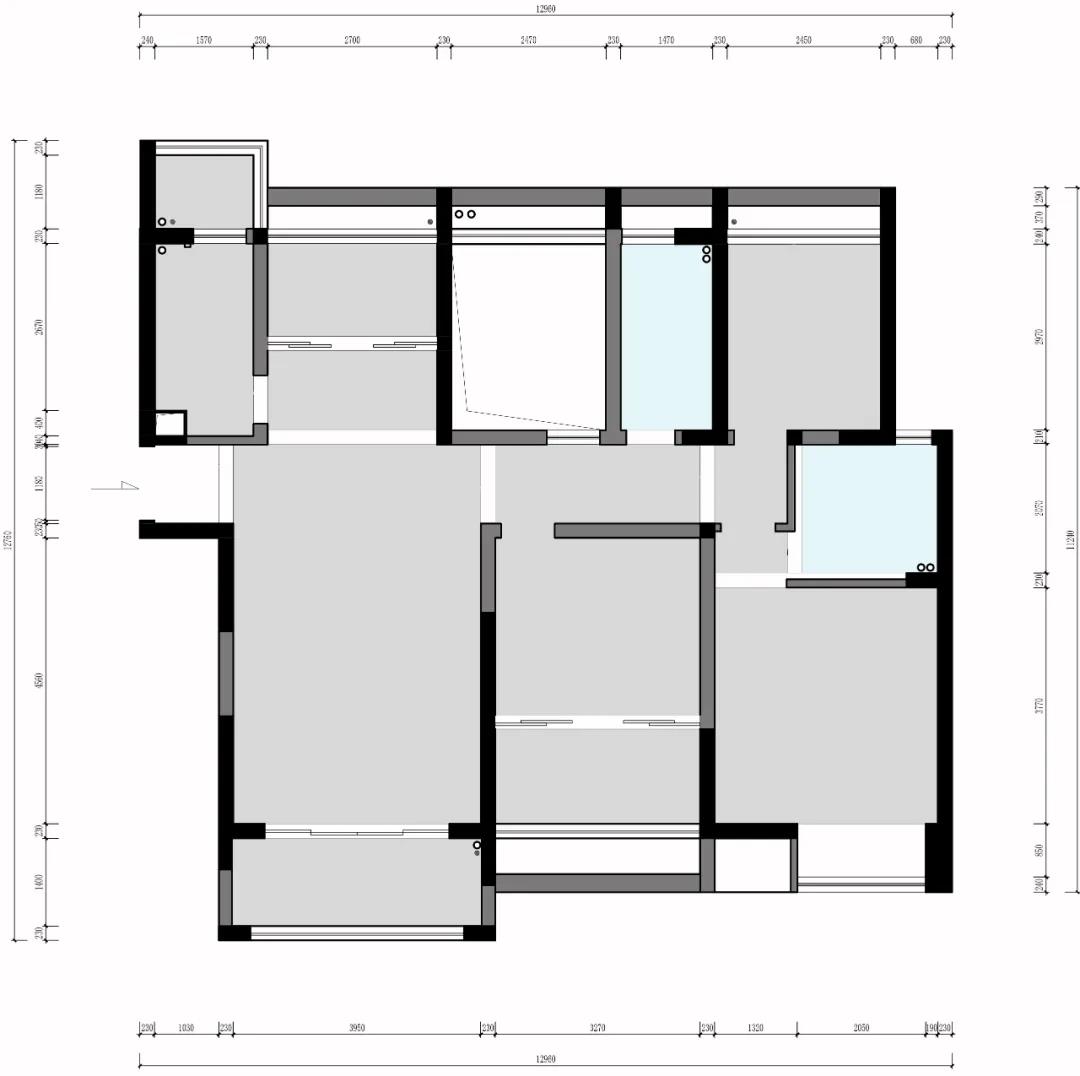
空间布局:
格局上我们将客厅与次卧的墙面开了一个窗洞,它既为客厅带来通透感,又是次卧的层板搁架。
Space layout:
On the pattern, we opened a window opening between the living room and the wall of the second bedroom, which not only brings a sense of transparency to the living room, but also a shelf for the second bedroom.

设计选材:
经过对方案的探讨,设计师发现业主对设计的效果要求,是需要非常高的整木设计和施工才能实现的,这个是落地的难点。 为此设计师对全屋的整木格局的设计合细节做了详细的图纸和空间图,让业主更能感受到家里的样子。再落地方面,与业主一起pass了很多家整木,有的一线品牌不接受定制,有的价格和品质不成正比,最后终于找到了一家能够把设计方案完全落地的公司,期间设计师也差点没把合作商逼疯,经过大家的努力终于有了现在呈现的效果。
Design material selection:
After discussing the scheme, the designer found that the effect requirements of the owner for the design can only be realized with very high whole wood design and construction, which is the difficulty of landing. For this reason, the designer has made detailed drawings and space drawings for the design and details of the whole wood pattern of the whole house, so that the owners can better feel the look of home. In terms of landing, we passed through many whole timbers with the owners. Some first-line brands did not accept customization, and some prices were not proportional to the quality. Finally, we found a company that could completely implement the design scheme. During this period, the designers almost drove the partners crazy. After everyone's efforts, we finally achieved the present effect.

用户体验:
设计师是一位细节控,在细节的把控上非常的较真,这是业主欣赏的地方,尤其是在成品定制的把控,折让业主在后期得使用中没有后顾之忧。
User experience:
The designer is a detail controller. He is very serious about the control of details. This is what the owner appreciates. Especially in the control of finished product customization, the owner has no worries in the later use.






项目信息
项目名称:中联铂悦
文章分类:室内设计
设计公司:苏州周晓安空间装饰设计有限公司
项目地址:苏州
项目规模:140㎡
设计师:朱峰
项目年份:2017年
Project information
Project Name: Zoomlion Baiyue
Article category: Interior Design
Design company: Suzhou Zhou Xiaoan space decoration design Co., Ltd
Project address: Suzhou
Project scale: 140 ㎡
Designer: Zhu Feng
Project year: 2017














