深圳市第十四高级中学深圳 / 同济人建筑设计有限公司
01
项目背景
PROJECT OVERVIEW
学校是一个复杂的自适应系统,如同精妙的自然生态系统,其内在逻辑规律和外在形态与其所处的大环境背景会产生一系列的动态关系。针对新时代和新的教育背景,项目在这个非传统的学校适宜的地段,创建一座非传统的,满足新型教育模式、培养新兴社会人才的“全域”校园。构想了一个充满活力的“校城”生态系统,意在打造一所“全面发展的未来学校”。
A school is a complex adaptive system, like a subtle natural ecosystem, whose internal logic and external form generate a series of dynamic relationships with the context in which it is located. In response to the new era and the new educational context, the project creates a non-traditional campus in a suitable location for a non-traditional school that meets the new educational model and cultivates talents for the emerging society. The project envisions a vibrant “school-city” ecosystem with the intention of creating a “holistic school of the future”.
▼学校鸟瞰图,aerial view

02
项目概况
Project Overview
深圳市聚龙科学中学(规划名“深圳市第十四高级中学”)占地面积6.7万平方米,建筑面积11万平方米,是一所能容纳60个班级、3000个学位的全寄宿制公办高中,学校已于2022年9月投入使用。
Shenzhen Julong Science High School (planned name “Shenzhen 14th Senior High School”) covers an area of 67,000 square meters, with a building area of 110,000 square meters. It is a full boarding public high school with 60 classes and 3,000 places.
▼学校南入口,south entrance

03
设计理念
Design Concept
创造“校城”的社会生态系统,具备社区完善性、社会渗透性、空间多维性、城市标志性。
Create a social ecosystem of “school city” with community completeness, social penetration, spatial multidimensionality, and urban landmark.
▼区位图,location

03.1 社区完善性|self-sustaining
“校城”应拥有相对完善的社区生活体系,具备一定的自我支持属性,满足学生学习和生活双重需求,除传统教学空间以外,创造包括交流、沟通、协作、竞争、计划、规划等一系列行为的发生场地。
the school should be self-sustaining, containing a raletively sophisticatedcommunity living system, satisfying both studying and living demand,crealing spaces that could contain a variely ofsocial aclivities, such ascommunicaiton, argument, negociafion, competition, scheduling, andplanning;
▼教学楼立面,teaching building facade

03.2 社会渗透性 |spatial penetralion
“校城”内“社会界面”与校园界面有一定程度的空间渗透,为学生提供社会模拟体验;校内与校外也应有一定程度的时间渗透,校内“社会界面”一方面接受社会更新,一方面也有能力独立运作,反哺社会;
there is a certain degree of spatial penetralion between the social interfaceand the campus interface to provide students with social simulationexperience; and there should also be a cerlain degree of fime penetrafionbetween the inside and the outside, so the penetrated interface could bothaccept social renewal and operate independently with the school to nurturethe society;
▼草坪绿化,meadow

03.3 空间多维性|spatial penetralion
“校城”的物理空间顺应功能重组而进行“重构”,在各个方面提升空间维度,丰富度,以更好地促进各种学习活动的发生;Physical space is “reconsructed” according to the reprogramming, so as foimprove the spatial dimension and richness in various aspects, and betterpromote the occurrence ofvarious learning activities;
▼“解构”“重塑”,deconstruction and reconstruction

▼空间重塑,reforming the spaces

▼超级培养皿,mega culture dish

用新模式把对应空间“解构”并“重组;依照逻辑对传统教学空间“重塑”。使学习成为积累知识的生态圈;进入大学的预备场;步入社会的模拟器;全面发展人才的培养皿。
The new model “deconstructs” and “reorganizes” the corresponding space; “remodels” the traditional teaching space according to logic. It makes learning an ecosystem for accumulating knowledge, a preparatory field for entering the university, a simulator for entering the society, and a petri dish for cultivating all-round development of talents.
▼操场,sports ground

03.4 城市标识性| urban identity
“校城”应具备一定的城市标识性,尤其在环境背景比较复杂冲突的情况下,作为一种新时代的教育宣言,产生标志性的城市界面。
the communi-campus should have a certain urban identity, especiallyin complex, even conflict context, as a manifesto of new era educafion,producing an iconic urban interface.
▼标志性的城市界面,an iconic urban interface


04
设计策略
Design strategy
04.1 开放交流的校园空间|open campus spaces
项目整体南北呼应,将学校南北入口打造成一条中轴线,结合景观、外部河流形成基础格局,将学校结构规划为四区、三轴、十二空间,功能各异,构成户外活动的空间系列。
The project as a whole echoes north and south, making the north and south entrances of the school a central axis, combining the landscape and the external river to form a basic pattern, and planning the structure of the school into four districts, three axes, and twelve spaces with different functions, constituting a series of spaces for outdoor activities.
▼功能分区图,fucntion diagram

▼建筑生成,generatipn process

4.2 极富空间张力的开放式校门|stunning open school gate
入口处的巨型顶层飘板连接两侧的教学楼与综合楼,形成两个区域的自然过渡。放大尺度的平台创造师生汇合集散的场所。入口广场的地面层和架空层延伸开来,同时连接综合楼、教学楼、宿舍楼等主要建筑群落,两个层面之间由多个楼梯相连。
The giant top floating board at the entrance connects the teaching building and the comprehensive building on both sides, forming a natural transition between the two areas. A scaled up platform creates a place for teachers and students to gather and disperse. The ground and elevated levels of the entrance plaza extend, connecting major building complexes such as the comprehensive building, teaching building, and dormitory building. The two levels are connected by multiple staircases.
▼学校南入口大台阶,entrance plaza

▼学校南入口夜景,entrance plaza night view

4.3 重塑的教学空间|reformed teaching space
新教育模式下,学校更强调学生的自主性,鼓励学生在校园中交流互动,在开放的环境中自由学习,将综合楼设计成多功能混合的交互MALL,促进各种学习活动的发生。
Under the new education model, the school places more emphasis on student autonomy, encourages students to communicate and interact on campus and learn freely in an open environment, and designs the complex as a multi-functional hybrid interactive MALL to facilitate the occurrence of various learning activities.
▼综合楼东立面,comprehensive building facade

▼综合楼西南面,comprehensive building corner

4.4 行云流水的中心庭院|interconnected central courtyard
双层设计使得校园内部在水平和垂直面上四通八达,纵横交错,各个功能区紧密连接,为师生提供了多样的活动和交通空间。平台下方的架空区成为第二通道,整个空间的设计层次丰富,虚实结合,同时走廊下灰空间为师生创造了多样的活动空间。
The double-layer design makes the campus interconnected horizontally and vertically, with various functional areas closely connected, providing diverse activity and transportation spaces for teachers and students. The elevated area below the platform becomes the second channel, and the design of the entire space is rich in layers, combining reality and virtuality. At the same time, the gray space under the corridor creates diverse activity spaces for teachers and students.
▼中心庭院俯视图,central courtyard top view

▼教学区中轴庭院,central axis courtyard

▼中心庭院,round courtyard

▼二层活动平台,activity platform


4.5 半围合建筑组群的独立庭院| independent activity courtyard
留白空间赋予更多自主活动,每个教学楼拥有独立的活动庭院,每个庭院的风格又不尽相同。
Leave blank space for more independent activities, and each teaching building has its own activity courtyard, each with a different style.
▼教学楼庭院俯瞰,top view of the teaching buildings and courtyards

▼独立的活动庭院, independent activity courtyard

4.6利于交流的生活区|conducive living environment
私密性与共享性的巧妙结合,为高中生们创造一个更有利于交流的住宿环境,室内设计使用极简几何形式、色彩对比,创造出灵动、轻盈、富有活力的室内空间。
The clever combination of privacy and sharing creates a more conducive living environment for high school students to communicate. The interior design uses minimalist geometric forms and color contrasts to create a dynamic, lightweight, and energetic indoor space.
▼教师宿舍楼,dormitory

▼食堂室内装饰,canteen interior

▼多功能报告厅室内装饰,multi-purpose hall

4.7 立面材质语言——讲述青春校园故事|façade materials
学校建筑的整体外墙材料以灰色铝板为基调,以陶板、冲孔板为点缀,配色简约,营造出活力、灵动、舒适的校园氛围,打造“特色校城”。
The overall façade of the school building is made of grey aluminum panels, accented by ceramic panels and perforated panels, with a simple color scheme that creates a vibrant, dynamic, and comfortable campus atmosphere and creates a “distinctive school city”.
▼综合楼幕墙玻璃,glass curtain wall

▼综合楼立面冲孔铝板,perforated aluminum plate on comprehensive building facade

▼教学楼立面铝单板,aluminun plate on teaching building facade


▼细部节点,detailed sections

▼一层平面图,1F plan

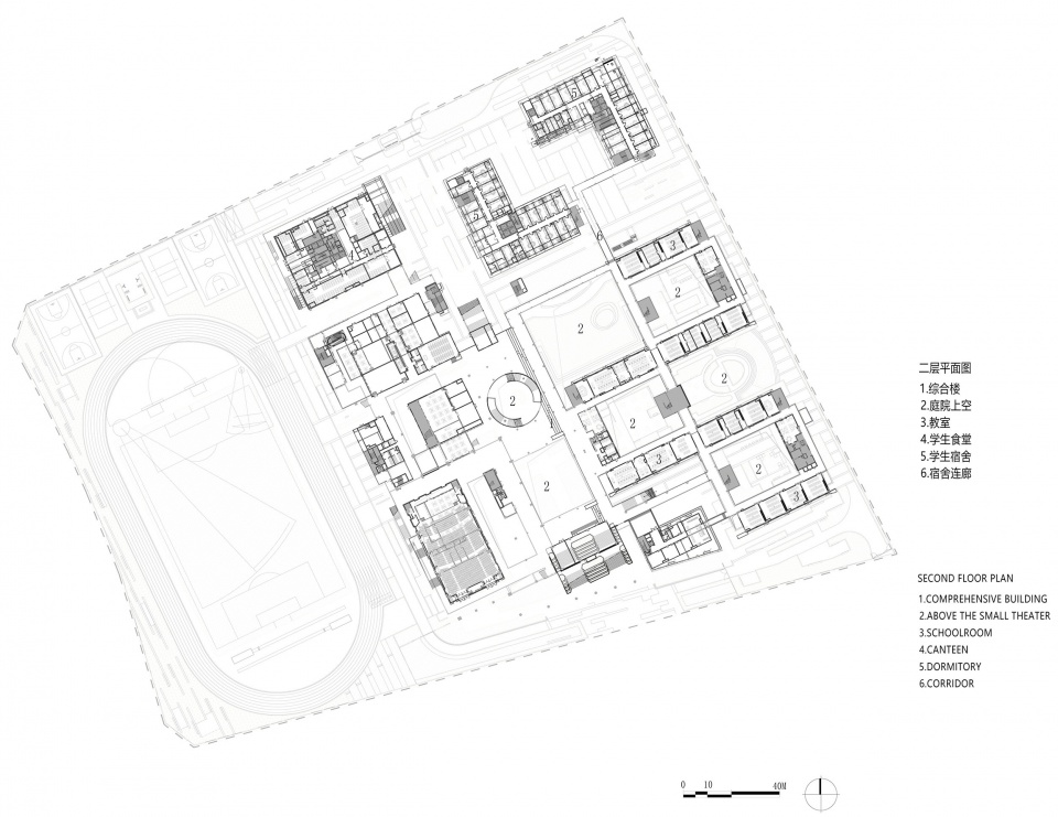
▼而层平面图,2F plan

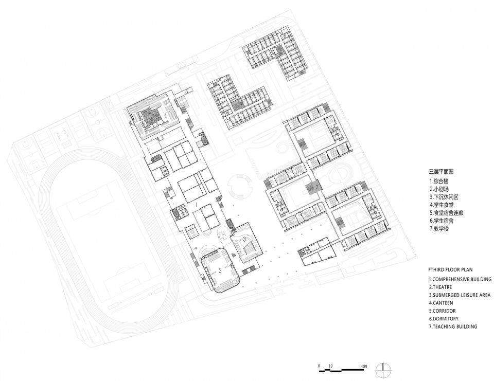
▼三层平面图,3F plan

▼四层平面图,4F plan

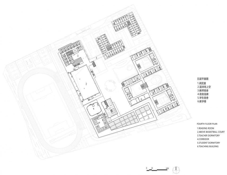
▼五层平面图,5F plan

Project name: Shenzhen Julong Science Middle School (Shenzhen No. 14 Senior High School)
Design the general contracting team: Tongji Architects Co., Ltd, Shenzhen
Website: http://www.tja.com.cn
Design year & Completion Year: 2020.04 & 2022.09
Project Leader: Fan Rui
Project Manager: Zhang Pengfei, Yu Zhenzhen
Architecture: Wang Tan, Wang Wei, Wang Huiyi, Pan Jun
Structural majors: Liu Ting, He Wanran, Zhou Quanbo
Landscape major: Bao Zhipeng, Chu Huijia
Water supply and drainage majors: Wu Zhifei, Wang Zhitao, Xie Futao
HVAC major: Luo Chenyun, Wei Hongyan
Electrical majors: Huang Cong, Zuo Xinming, Liu Ting
Project location: Shenzhen, Pingshan
Gross Built Area: 110,000 square meters
Schematic design unit: CPC Architectural Design
Principal architects: Qiu Jiang, Han Qiang, Xing Jin
Design Team: Zhang Ming, Zeng Bingyu, Matthew Mander, Lisandro Ardusso, Zhu Wanbei, Zhang Fang, Zhang Yaqin, Luo Xian”
Clients: Shenzhen Municipal Construction and Public Works Department














