Calling学院扩建,南非 / SALT architects
本项目为Calling学院的Stellenbosch校区的扩建,设计这座学院提供了多功能空间,支持高质量的学习、休闲和员工设施。
A new extension to the Calling Academy Stellenbosch campus offers multi-functional spaces that support high quality learning, recreation and staff facilities.
▼项目概览,Overall view

▼鸟瞰,Bird’s eye view

该校区位于一片田园风光的地块上,毗邻Stellenbosch和Kuilsriver之间的Polkadraai路。周边土地的上一代拥有者将这片区域保留下来,为当地农业社区服务。Calling Education作为一家非营利组织,成立的初衷是为了提供负担得起的优质教育。
Located on a bucolic plot bordering the Polkadraai Road between Stellenbosch and Kuilsriver, the site was set aside by the previous generation of surrounding landowners to serve the local farming community. Calling Education as an NPC was established out of the need for providing affordable top-quality education.
▼东立面,East facade

▼东立面夜览,East facade night view

▼承办活动,Activity

东立面的设计通过独特的建筑语言突显了这一机构的身份特征。穿孔混凝土幕墙上设有两个大型开口,引导学生穿过一个模糊室内与室外界限的过渡空间,进入教学楼。
The articulation of the eastern facade declares a distinct feature to associate with the institution. A perforated concrete screen with two large openings that ushers learners into the school buildings through a threshold space that blurs boundaries between indoors and outdoors.
▼小庭院,Courtyard


▼过渡空间,Transition space

▼过渡空间中的绿植,transition space greenery

位于校园边缘的多功能礼堂建筑与下方的大型露台、台阶和运动场相连。沿建筑南立面的折叠大门将周围壮丽的葡萄园景色尽收眼底,延伸的屋顶为露台提供遮荫,同时形成一个覆盖的室外活动空间。
The multipurpose hall complex located at the edge of the campus opens up to a large terrace, steps and sport’s fields below. Large folding doors along the southern facade of the building beautifully frame the spectacular surrounding landscape of vineyards with an oversailing roof above providing shade and covered spill-out space on the terraces.
▼教室,Classroom


▼教室近景,Classroom close view

▼走廊空间,Corridor space

校区的设计过程是一个持续的、有机发展的过程,旨在以最低的成本最大化学习环境的质量,同时与自然景观紧密相连。这一设计理念与学校优先追求优质教育而非设施成本的原则相呼应。
Designing this campus was an ongoing organic process aimed at maximizing the quality of the learning environment, connected to the natural beauty of the site, at the lowest possible cost, resonating with their priority of quality education over cost of facilities.
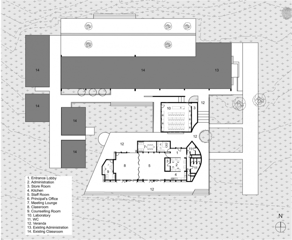
▼首层平面图,ground floor plan

▼北立面图,north elevation

▼南立面图,south elevation

▼东立面图,east elevation

▼西立面图,west elevation

▼剖面图,section

Project Team
SALT architects – Architects (Gustav Roberts)
AVCON structural engineers – Structural Engineers
Steenser Construction – Contractor
Project size: 760
Site size: 25110
Project Budget: R 4 342 338
Timeline: March 2020 – Dec 2021 (2020 – design development, 2021- construction)
Concrete roof tiles: BMI Coverland (https://www.bmigroup.com/za/contact/)
Translucent roof tiles: BMI Coverland
Lighting: Spazio fittings with light level simulations by LED Lighting SA
(https://www.ledlighting.co.za/contact/)
Internal timber doors: Custom made Supawood door leafs and Meranti door frames by Multi Homes Joinery (https://www.multihomesjoinery.co.za/ContactUs.aspx)
Aluminium Doors & Windows: Wispeco profiles by Aluscience (Aluscience/contact)
Ceilings: 18mm OSB board; 40mm Isoboard (https://isoboard.com/insulation/contact-us/) Sanitary ware: Re-used fittings received as a donation


