Blower新风机房,南非 / SALT architects
项目概况Project Overview
项目是位于开普敦郊外的阿特隆污水处理厂的新风机房综合体。地面层包括一个大型风机房及其电机控制中心(MCC房)和空气分配管道,未来升级所需反应器的MCC,地面工作人员的更衣室、洗衣房和储物室。二楼的功能以行政办公为主,包括控制室、SCADA站、办公室、会议室、实验室和员工设施。风机房旁边以角度连接的是新建的电力建筑,内设有四台大型柴油发电机及其相关设备,用于在停电时为整个厂区提供电力。
The project is a new Blower House Complex on the Athlone Wastewater Treatment Works just outside Cape Town. On Ground floor the complex consists of a large blower room with its Motor Control Centre (MCC room) and air plenums, a MCC for the future upgrade’s reactors, locker rooms for the ground staff, a laundry room, and stores. The nature of the first floor is more clerical and includes the control room, SCADA station, offices, boardroom, laboratory, and staff amenities. Connected at an angle to the blower house is the new electrical building which houses four large diesel generators and their associated plant to run the whole plant in case of a power outage.
▼项目概览,overview of the project


▼项目入口,entrance of the project


场地背景信息Site Info, Background
阿特隆污水处理厂位于开普敦市中心以外约10公里处,紧邻N2高速公路,这条公路是通往城市的主要干道之一。高速公路对面是标志性的红色和棕色面砖块构成的阿特隆发电厂遗址,该厂于2003年停运。阿特隆污水处理厂的首个设施建于1921年,1939年进行了扩建,并于1952年扩展至每日处理36百万升水(Ml/d)。这些旧建筑如今已不再使用,但它们仍然以粗糙的棕色面砖和预制混凝土窗框形式存在,体现了工艺美术运动的风格。建筑师为该地开发的总体规划提议将这些建筑重新利用,未来将赋予其令人兴奋的新功能。
Athlone Wastewater Treatment Works is situated about 10km outside Cape Town’s CBD, next to the N2 highway, one of the main arteries feeding the city. On the other side of the highway is the iconic monolithic red and brown face brick blocks of the remaining old Athlone Power Station, which was decommissioned in 2003. The first wastewater treatment works on the Athlone site was constructed in 1921, extended in 1939, and increased to 36Ml/d in 1952. These old structures are no longer in use but have a presence on site being carefully detailed in rough brown face brick and pre-cast concrete window frames hinting towards the Arts and Crafts movement. The master plan the architects developed for the site propose to re-purposing these buildings with very exciting new uses in the future.
▼入口,entrance

▼入口,entrance


在70年代末和80年代初,随着更加严格的法规出台,污水处理厂进行了现代化改造,处理能力提升至每日100百万升水(Ml/d)。这些建筑在改造过程中也采用了棕色面砖,但更加现代,融入了更多裸露的混凝土结构和圆角屋顶板细节。
During the late 70’s and early 80’s more stringent legislation led to the modernization of the Works regarding the treatment process, and it was upgraded accordingly to approximately 100Ml/d. The buildings during these upgrades are also in brown face brick but in a modernist way with more exposed concrete structures and bullnose roof sheet details.
▼裸露的混凝土结构,exposed concrete structures


客户要求Client’s Brief
在满足所需功能的基础上,新建筑还需呈现出开普敦市的进步形象,能够从靠近市中心的高速公路上看到;是一个让工作人员感到自豪的地方;优化厂区内工作人员的流动;并能从控制室俯瞰整个厂区的各个部分,包括现有和未来的设备区域。
Including accommodating the required functions, the new building was to bear an image of progress for the City, being visible from the highway close to the city centre; be a place that plant staff can take pride in; optimise flow of staff on the site; and provide observation opportunity over all previous and future plant sections from the control room.
▼靠近市中心的高速公路视角,view from the highway

如何实现客户要求How the Brief was Realised
建筑师对环境的回应:
Architect’s response to the context:
作为计划中50Ml/d升级的第一步,新的风机房旨在与周围的基础设施遗址相融合,同时树立起一个新的标准,展示材料使用和细部设计,体现城市对其设施的自豪感,同时避免过多的维护负担。
Being the first step in the planned 50Ml/d upgrade, the new blower house aims to fit in among the infrastructure relics while establishing a new standard for material use and detailing that exude the City’s pride in their works without the burden of excessive maintenance.
▼建筑外观,exterior of the building

▼建筑外观,exterior of the building

建筑师对要求的回应:
Architect’s response to the brief:
未来的反应器、沉淀池、道路和渠道等大规模土建设施的布局决定了建筑体量的大致位置。幸运的是,这样的布局使得建筑的长立面朝北。为了在阳光和空间品质方面创造灵活的使用空间,我们还希望通过建筑物的主要功能来表达其特色——即风机房。我们在北立面上设计了一个一楼画廊,从大气的入口大堂楼梯延伸。画廊一侧与风机大厅相邻,连续的玻璃窗允许人们看到风机,另一侧则是员工相关功能区,这些区域的布局注重空间间的价值,使空间既有用又宜人,同时使画廊不仅仅是一个交通通道,而是成为一个有意义的地方。
The layout of the planned large civil infrastructure development like the future reactors, settling tanks, roads, and channels, determined the general positioning of the building mass. Fortunately, that caused the long façade to be orientated North. Further to creating optional user space in terms of sunlight and spatial qualities, we wanted to celebrate the primary function of the building which is the plant. A first-floor gallery was created along the north façade, flowing from a generous stair in the entrance lobby. On the one side the gallery borders the blower hall and continuous glazing allow views down to the blowers, and on the other side the staff related functions are dispersed in a way that is focused on the value of the spaces in between the functions to be useful and pleasant as well as allowing the linear gallery to be a place rather than just a hallway for circulation.
▼走廊,corridor


▼办公空间,office space



▼会议室,meeting room


▼阳台,balcony

▼走廊,corridor


▼行政办公室,office

一楼的行政功能和画廊位于北立面,通过在北边缘设置一面厚实的棕色风化面砖墙来层次分明地呈现。这个元素低于风机大厅,并围绕内部功能区雕刻出来,强调了人性尺度与机器主导环境的对比。在地面层,这一元素内侧设有一条覆盖走道,既能保护免受天气影响,又通过多样化的空间变化和光线让用户步入主入口,展现内部功能的独特风貌。画廊内的一些区域也围绕着最佳阳光进行布局,形成了不同亲密度的座位和会议区。各功能区尽量朝向画廊开放,使得不同区域之间的功能交织,走廊成为厨房、实验室、会议区等的一部分。在东侧的控制室,SCADA(监控和数据采集)站则通过棕色面砖墙“穿透”外立面,却没有接触到两侧墙面。它突出了位于下方的主入口,同时让操作员可以观察到大部分厂区。
The first floor’s clerical functions and gallery were layered on the northern façade by placing a thick brown eroded face brick wall pane along the northern edge. This element is lower than the blower hall, and carved out around the internal human functions, reinforcing the human scale in a machine dominated context. On the ground floor, a covered walkway was created on the inside of this element, protecting one from the elements and leading the user to the main entrance through a path of varying character by allowing glimpses of the internal functions, and constantly changing volume and light, as the first floor and roof slab above reacts in various ways to their respective conditions. On the first-floor gallery, the functional elements push to the northern edge in search of optimal sunlight. Some portions of the gallery join this pursuit, creating sitting and meeting areas of varying degrees of intimacy. The functions are as open as possible toward the gallery so that the uses overlap, and the gallery become part of the kitchen, laboratory, meeting areas, etc. At the control room on the eastern edge, the SCADA (supervisory control and data acquisition) station pushes its head through the brown face brick skin without touching it on either side. It announces the main entrance underneath it and enable the operators to observe the majority of the plant.
▼设施空间,serve room



▼设施空间,serve room

▼细部,detail


在棕色面砖立面的背后,风机大厅则以红色面砖为主要材料,作为一个砌体结构的盒子拔地而起。
Behind the brown face brick façade, the blower hall rises higher in red face brick expressed as a masonry box.
▼风机大厅则以红色面砖为主要材料,he brown face brick façade of the blower hall

解决方案:Solutions:
在布局设计时,厂区内员工的流动得到了精心考虑。地面工作人员在厂区内的各个区域进行8小时轮班作业,全天候工作。更衣室、洗衣房和MCC房被布置在地面层,减少泥土被带入建筑内部。清洁的行政功能区则被安排在一楼,工作人员可在地面层更衣室换上干净的衣物后再进入。一楼的实验室用于办公室人员和地面工作人员,负责测试厂区内采集的各种样品。实验室位于一楼画廊的尽头,设置了一个宽敞的次要出入口,设有宽大的混凝土楼梯和外部阳台,透过棕色面砖外立面可见。此出入口也作为建筑西侧的紧急出口。
Circulation of staff on the plant was carefully considered with the layout. The ground staff are physically working around all areas of the plant in 8h shifts around the clock. The locker rooms, laundry, and MCC rooms were placed on the ground floor to limit treading dirt from the grounds into the building. The cleaner clerical functions are separated from the grounds on the first floor and can be accessed after donning clean outfits at the ground floor locker rooms. The laboratory is used by both office and ground staff, testing samples collected all over the plant. It was placed on the furthest end of the first-floor gallery and a spacious secondary access point was introduced at the end of the gallery with a wide concrete stair and external balcony peeking through the brown face brick skin. It doubles as the escape door at the western end of the building.
▼傍晚景象,at dusk


▼夜景,night view



▼一层平面,ground floor plan

▼二层平面,first floor plan

▼立面,elevation


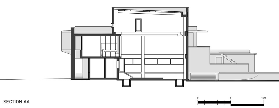
▼剖面,section

SALT Architects – Architects
Water & Wastewater Engineering – Project manager, Employer’s Agent, and Civil Engineers
WA Structural Design – Structural Engineers
JGP Group – Mechanical and Electrical Engineers
Hiload Inyanga Construction – Building Contractor
Amandla Construction – Bulk Earthworks Contractor
Project size: 3470
Site size: 350814
Timeline: September 2018 – January 2022
Water & Wastewater Engineering – Project manager, Employer’s Agent, and Civil Engineers
WA Structural Design – Structural Engineers
JGP Group – Mechanical and Electrical Engineers
Hiload Inyanga Construction – Building Contractor
Amandla Construction – Bulk Earthworks Contractor


