杭州MAX科技园样板办公空间 / IFG伊波莱茨建筑设计
杭州作为中国的电子商务之都,拥有超过5万家专门从事跨境电商业务的企业。我们将坐落于杭州电商中心区, MAX 科技园内的一栋五层建筑打造成为一个满足高科技电子商务企业需求的样板办公空间。在高度活跃的线上零售行业中,创新常常源于人与技术之间的跨学科交流,MAX 所展现的是一个能适应未来工作世界的复杂需求,服务于以技术为先的行业,兼顾协作性和创新性的全新未来办公场景。
Hangzhou is China’s e-commerce capital: home to over 55,000 companies specialising in online retail. One industry hub is the 264,000 m² MAX Technology Park. Here you will find the MAX Show Office, which presents new concepts for workplace design across 2,200 m², while addressing the specialist needs of the e-commerce sector in particular. In the highly dynamic online retail sector, innovation arises through interdisciplinary dialogue at the interface between people and technology. Next generation office worlds are collaborative and innovative, meeting the expectations of a younger generation of employees as well as the changing requirements of working life.
▼室内概览,overview of the indoor space


平衡的艺术The fine art of balance
我们的空间设计策略是用巧妙的对比来营造动态的环境。模块化的天花板体现秩序感,而天花板下有意错开的功能区则激发人们的兴趣,鼓励人们去探索。酒店风格的家具和温馨的装饰打破了集中办公空间的简洁线条,令氛围兼具专业性又散发舒适的日常生活感,体现出现代办公空间的双重属性:整洁而又灵活,技术化但不乏人性。
The spatial strategy employs thoughtful contrasts to create dynamic environments. Modular ceilings establish order, while the intentionally dislocated functional areas beneath spark interest and encourage exploration. Clean lines in focused work areas are softened by hotel-inspired furnishings and warm colour accents, creating an atmosphere that blends professional efficiency with lifestyle comfort. This approach reflects the dual nature of the modern workplace: structured yet flexible, technology-driven yet human.
▼模块化的天花板体现秩序感,Modular ceilings establish order



▼天花板下的功能区,function space under the ceilings



▼巧妙的色彩对比,clever color contrast


这种双重性还体现在材料和颜色的选择上。材料处理保留天然纹理,并与科技美感相辅相成;色彩方案则将充满活力和朝气的色调与沉稳的色调结合,相得益彰。对比产生的张力营造出一种鼓舞人心的氛围,为新想法、互动和集中办公创造空间。
The balance extends to the selection of colours and materials on display. Natural textures form a base palette and are complemented by a technological aesthetic, while the colour scheme juxtaposes vibrant, energising hues with serene tones. An arc of tension that defines an inspiring atmosphere – providing space for new ideas, spontaneous interactions and heads-down work.
▼满活力和朝气的色调与沉稳的色调结合,
while the color scheme juxtaposes vibrant, energising hues with serene tones



建筑宣言Architectural manifesto
一楼大堂的设计宛如一份用建筑语言谱写的宣言。在总高7.5米的空间内,我们有层次地结合了前台、休息区、展区、会议室和礼堂等功能,形成一个令人赞叹的多功能空间组合。大堂的设计用有趣且具创新性的方式展现出该行业活力四射的前瞻性,给人留下深刻的第一印象,过目难忘。
The ground floor lobby makes a striking architectural statement: The 7.5 metre-high space stacks reception, lounge, exhibition areas, meeting rooms and an auditorium like building blocks to form an impressive multifunctional ensemble. Playful and creative, the lobby picks up on the energy and motivational approach of the industry to make a lasting first impression.
▼一楼大堂设计,The ground floor lobby design

▼有机结合了前台、休息区、展区、会议室等功能,stacks reception, lounge, exhibition areas, meeting rooms



▼休息区,lounge

▼大堂局部,lobby



▼大堂细部,lobby detail

数字沟通的专家Expert in digital communication
▼透明的高科技实验室和数字化的直播间,the visible high-tech glass labs and digital broadcasting facilities



▼数字化的直播间,digital broadcasting facilities

▼透明的高科技实验室,the visible high-tech glass labs

丰富灵活的空间选择Office space – wide-ranging and fully flexible
三楼和四楼是不同配置和装备的“传统”办公空间。灵活的布局和丰富多样的空间选择为独自办公、开敞办公和大小会议提供适合的环境,满足常规需求的同时也对传统办公理念做出拓展。无论如何,自发交流和沟通都是这里的主线,是孕育创意的土壤。
The third and fourth floors reimagine classic workspace situations in varied configurations. With flexible layouts and a range of options that take into account individual work as well as open-space concepts and a range of conference settings, we demonstrate a variety of possibilities that transcend conventional office configurations. What is always included are opportunities for spontaneous interactions, which are known to foster the best serendipitous ideas.
▼灵活的布局和丰富多样的空间选择,flexible layouts and a range of options


▼为大小会议提供适合的环境,appropriate environment for various meetings

▼独立办公区域,independent office area

是的,我们在乎!Yes, we care!
空间的五楼呈现新一代的管理理念:楼层中央是一根粗大的“树干”,“枝叶”就像一把大伞,将整个空间揽在怀中。我们用这一设计语言隐喻管理层对雇员的关怀。
The fifth floor symbolises a new style of management. At the centre stands a column with fins that arch protectively across the ceiling like the branches of a tree. The tree is a metaphor for an open-minded and caring leadership approach that is both strong and nurturing.
▼楼层中央是一根粗大的“树干”,At the centre stands a column with fins


▼将整个空间揽在怀中,arch protectively across the ceiling


增长的蓝图A blueprint for growth
坐落于杭州电商中心区的MAX科技园样板办公空间所展现的是一个面向未来的工作世界,它适应复杂需求,服务于以技术为先的行业,视觉效果强烈,个性独树一帜。我们希望这座对瞬息万变的未来工作模式高度敏感和灵活的办公空间能够成为全行业发展的一个新标杆。
The MAX Zone Show Office in Hangzhou showcases future-proof work worlds that embrace complexity, while considering the specific requirements of a tech-orientated industry to create a distinctive character with strong visual gestures. Located in the heart of Hangzhou’s e-commerce district, the MAX Zone Show Office serves as a model office for an entire sector that is already engaged in defining future changes in the world of work.
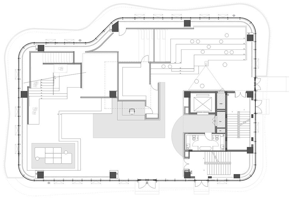
▼一层平面,ground floor plan

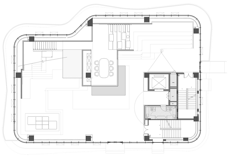
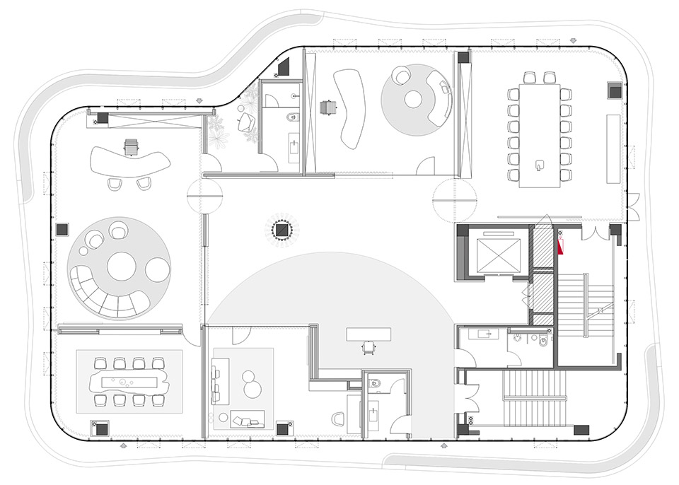
▼夹层平面,mezzanine floor plan

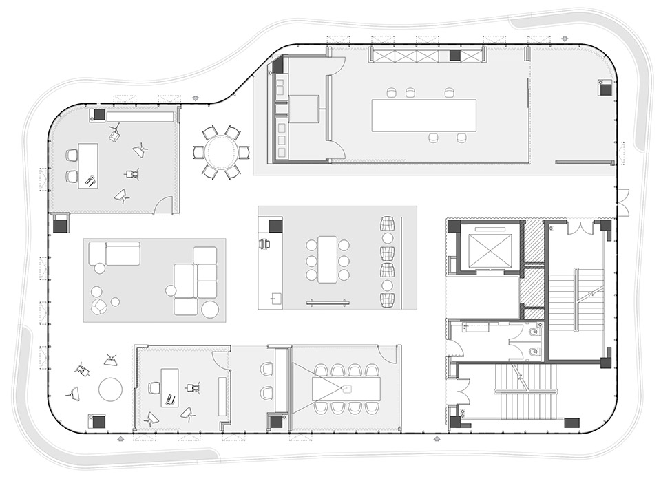
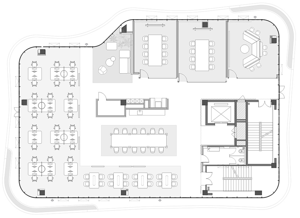
▼二层平面,second floor plan

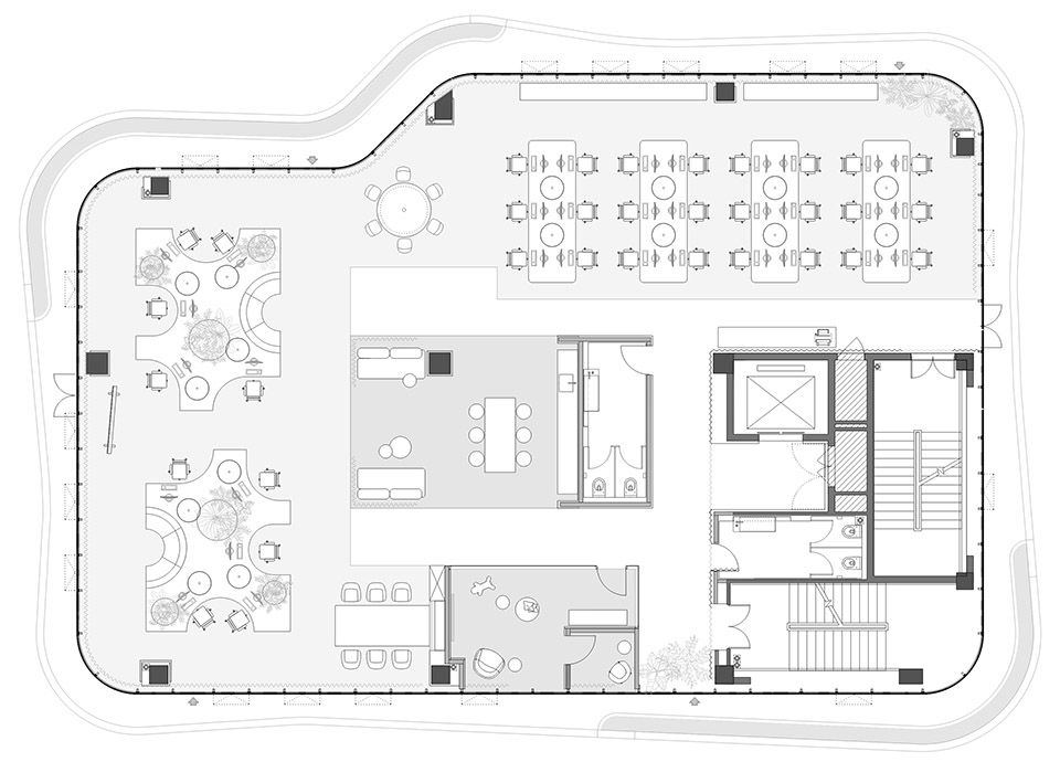
▼三层平面,third floor plan

▼四层平面,forth floor plan

▼五层平面,fifth floor plan















