Daniela Riquelme工作室扩建,墨西哥 / AMASA Estudio
该项目涉及位于Coyoacán心脏地带的一座住宅的翻新和扩建。通过资源优化,原有空间得到了扩展,现在作为艺术工作室和工坊使用。
The project involves the renovation and expansion of a residence located in the heart of Coyoacán. Efforts to optimize resources resulted in the enlargement of the original space, which now functions as an art studio and production workshop.
▼室内概览,overview of the indoor space

Daniela Riquelme是墨西哥城的艺术家,专注于绘画和珠宝创作,最初将房屋的二楼用作她的工作室和工坊。然而,随着时间的推移,她发现这个空间无法满足她的艺术创作需求,特别是在空间和照明方面的局限性。因此,工坊的翻新工作重点是对二楼进行全面改造,以更好地支持艺术创作。此次改造包括创造新的开口、安装定制家具、木工和铁艺、上色、为工作室-工坊计划添加一个展览区域,以及最重要的,引入充足的自然光。
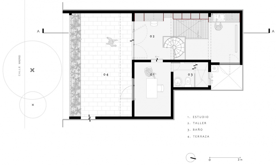
▼平面图,plan

Daniela Riquelme, a Mexico City-based artist specializing in painting and jewelry, initially used the upper floor of the house as her studio and workshop. Over time, however, she found the space inadequate for her artistic practice, particularly due to limitations in space and lighting. Consequently, the renovation of the workshop focused on a comprehensive transformation of the upper floor to better support artistic production. This transformation included creating new openings, installing custom furniture, carpentry, and ironwork, applying color, adding an exhibition area to the studio-workshop program, and, most importantly, introducing abundant natural light.
▼从露台看室内,from the terrace to the indoor space

▼从露台看室内,from the terrace to the indoor space

扩建计划围绕一座现有的螺旋楼梯展开,将车间分为两个部分。第一部分是一个工作室区域,可以通向一个露台,露台上可以俯瞰到科约阿坎中心街道两旁的树冠。从这个空间进入更为私密的区域,其中包括一个完整的浴室。相对的墙面上,定制的木工单元贯穿整个空间的深度,为丹妮拉的创作过程提供了丰富的储物空间,存放物品、书籍和材料。该单元包括书架、绘图桌、抽屉以及一张坚固的工作台,上面安装有专门处理材料的水槽。
▼剖面图,section

The expansion program is centered around a preexisting spiral staircase that divides the workshop into two sections. The first section features a studio area with access to a terrace, offering views of the treetops that line the streets of central Coyoacán. From this space, one enters a more private area that includes a full bathroom. Along the opposite wall, a custom carpentry unit extends across the depth of the space, providing ample storage for objects, books, and materials essential to Daniela’s creative process. This unit includes shelving, a drafting table, drawers, and a sturdy workbench with a sink designed for handling materials.
▼从楼梯上到二层平台,through the staircase to the upper level


水槽位于车间的后部,该部分是从原始平面图中扩建出来的。楼梯旁的一个流通区域,正下方是一个天窗,将两部分空间连接起来。天窗为走廊和楼梯带来光线,而此区域的格栅平台允许光线照射到房屋的底层,照亮本来缺乏自然光的公共空间。
The sink is located in the rear section of the workshop, which was expanded from the original floor plan. A circulation area next to the staircase, directly beneath a skylight, connects the two sections. This skylight fills the hallway and staircase with light, while a grated platform in this area allows light to filter down to the house’s first floor, illuminating the public spaces that would otherwise lack natural light.
▼天窗为走廊和楼梯带来光线,This skylight fills the hallway and staircase with light

车间扩建后的后部区域,以其增强的空间质量和自然光线为特点。朝东的大窗户提供充足的采光。与第一部分的露台门相似,窗框采用精美的铁艺设计,配有鲜艳的红色装饰。这个窗框围绕着气象标的机制旋转,可以通过交叉通风带动整个车间的空气流通。此外,这个区域的屋顶系统也独具特色。锯齿形屋顶设计为绘画和展示提供了最佳的照明条件,利用间接阳光避免了眩光或强烈的阴影。三处朝东的天窗进一步增强了自然光的扩散效果。
The expanded rear section of the workshop is distinguished by its enhanced spatial quality and natural light. A large window facing east provides abundant illumination. Like the terrace doors in the first section, the window frame is crafted from intricately designed ironwork in a vibrant red accent. This frame rotates on its axis with a weather vane mechanism, enabling cross-ventilation throughout the workshop. Additionally, this section features a distinct roofing system. The sawtooth roof design provides optimal lighting conditions for painting and exhibition, utilizing indirect sunlight to avoid glare or harsh shadows. Three overhead openings, also facing east, further enhance the diffusion of natural light.
▼朝东的大窗户提供充足的采光,A large window facing east provides abundant illumination


在整个二楼——包括车间、楼梯、工作室、走廊和露台——设计团队为铁艺装饰选择了石榴红色。这种充满活力的色调被选中,因为它最能代表和唤起Daniela Riquelme的艺术创作,这些创作在通过东向光线照射的、经过精心改造的Coyoacán心脏地带的二楼上得以蓬勃发展。
Throughout the upper floor—encompassing the workshop, staircase, studio, hallway, and terrace—the design team selected a garnet red for the ironwork accents. This vibrant color was chosen as the most representative and evocative of Daniela Riquelme’s artistic work, which thrives under the eastern light pouring into this thoughtfully transformed second level in the heart of Coyoacán.
▼为铁艺装饰选择了石榴红色,the design team selected a garnet red for the ironwork accents

▼结构爆炸图,structure axonometric

▼改造前后对比,before & after




Project Name: Taller Estudio Daniela Riquelme
Architecture office: AMASA Estudio
Use: Residential, Restoration
Area: 52 M2
Location: Ciudad de México, México
Status:Built
Year: 2024
Architects: Andrea López, Agustín Pereyra
Client: Daniela Riquelme
Construction: AMASA Estudio
Restructuring Engineering: Juan Felipe Heredia
Installations Engineering: Gabino Neri
Ilumination: Andrea López, Agustín Pereyra
Colaborator: Gabino Neri, Oscar Baltazar, Jorge Luis Santiago
Photography: Zaickz Moz














