漾应的火塘蟠龙天地店,上海 / 上海实在建筑设计工作室
漾应的火塘蟠龙天地店是继南京老门东、无锡运河汇之后我们受邀设计的第三家店,也是火塘在上海的首店。蟠龙天地由瑞安地产开发,历经五年打造,承载了1400余年的深厚历史,也融合了江南水乡与海派文化的独特韵味,成为上海的时尚新地标。
The YOUNG INN’S FIRE PUB Panlong Tiandi store marks the third store design we have undertaken, after those in Nanjing Laomendong and Wuxi Canal Wharf, which stands as Shanghai’s inaugural FIRE PUB store. Developed by Shui On Land, Panlong Tiandi was crafted over five years, bearing a history of more than 1,400 years. It harmoniously merges the distinctive allure of the Jiangnan water town with Shanghai’s culture, establishing itself as a new trendy landmark in the city.
▼立面,facade

漾应的火塘诞生于疫情期间,火塘的核心是音乐与篝火。音乐是全世界共同的语言,没有任何语言能像音乐一样诗意地吟唱出人类的历史和文化。它能够跨越社会经济与身份的差异,将所有不同年龄段和不同文化背景的人联系在一起。点燃篝火如同在寒冬的夜晚点燃光明与希望,成为了很多年轻人心灵的港湾。
▼剖透视,sectional perspective

YOUNG INN’S FIRE PUB emerged during the pandemic, with its heart centered around music and bonfires. Music is a language that everyone understands, and no other form of expression can poetically convey the history and culture of humanity quite like it does. It possesses the ability to bridge socioeconomic and identity gaps, uniting people of all ages and from diverse cultural backgrounds. Lighting a bonfire is like bringing light and hope into the cold of the night, offering a refuge for the spirits of numerous young individuals.
▼立面概览,facade overview


我们力求避免传统商业演出空间的繁复装饰与夜店属性,通过声学空间的原型探索及自然材料的使用,增强火塘特有的文艺性和精神性,使其成为供人疗愈心灵的场所及精神文化空间。
We aim to steer clear of the elaborate decorations and nightclub characteristics typical of traditional commercial performance venues. Through the exploration of acoustic space archetypes and the use of natural materials, we seek to elevate the distinctive artistic and spiritual attributes of the FIRE PUB, thereby transforming it into a haven for healing and a space for spiritual and cultural enrichment.
▼立面中间的混凝土柱,a concrete column positioned at the center


店铺为一个东西向两开间的矩形空间,而南北向的门面居中位置被一根混凝土柱一分为二,整体性被破坏,对于开业后客人视觉体验有较大影响。
The store features a rectangular layout extending from east to west with two bays, and its north-to-south facade is split by a concrete column positioned at the center, which undermines the overall visual cohesion and greatly affects the initial impression of customers upon entering.
▼原始现场,original site

我们以木吉他箱体作为空间原型,用一个正圆形空间衍生出的墙体包裹门面正中的混凝土柱,统一了入口的视觉整体性,同时圆与矩形的内切角空间作为店铺的灰空间区域形成外摆区域,吸引沿街来往人流驻足观赏。
▼吉他箱体内部,guitar body inside

Inspired by the form of a wooden guitar body, we employed a circular space to encircle the central concrete column on the facade, thereby restoring the visual unity of the entrance. The interstitial space created by the intersection of the circle and the rectangle serves as a transitional zone for the store, offering an outdoor seating area that invites passersby to pause and take notice.
▼概念生成,concept generation

▼开窗尺寸,opening size analysis

店铺内部正圆形空间布局重叠西侧区域的挑高空间则形成了天然的环形演出剧场。在经过声学计算及测试后,在声波反射较为集中的位置开设了6个不同高度及不同尺寸的窗洞,在声学上有效降低了室内混响时间以满足演出要求。如同弦类乐器琴身的音孔一样,将室内演出的声音有指向性地传到室外,同时街上的行人也可以通过这些窗洞听到室内的演出。视觉上我们将其中两个较大的窗洞设置成了不同高度的吧台饮酒区。而其余的洞口则作为内部采光的补充将阳光引入室内。
Within the store, the circular layout overlaps with the double-height area on the west side, naturally creating a circular performance theater. Following acoustic calculations and testing, six window openings of varying heights and sizes were strategically placed where sound wave reflections are more pronounced. This design acoustically reduces the indoor reverberation time to meet the requirements for performances. Much like the sound holes in string instruments, these openings channel the sound of indoor performances outward, allowing those on the street to enjoy the music as well. Visually, two of the larger openings were designed as elevated bar and drinking areas at different heights. The remaining openings serve to supplement natural lighting, bringing sunlight into the interior space.
▼不同高度及不同尺寸的窗洞,openings of varying heights and sizes

▼临街座位,seatings by the street

吉他,小提琴,钢琴,古筝这些演出乐器都属于弦类乐器,是众多乐器种的一个重要分类之一。弦类乐器的发声原理是通过机械的力量使得琴弦发出振动而发出声音。这些乐器都需要演奏者通过弓和弦的相互作用来发出声音,弓和弦发出的声音是通过二者之间相互滑动摩擦力而产生的。通过将弦两头绷紧形成了张力,张力的大小决定了弦的音高。
Guitars, violins, pianos, and guzhengs are all part of the string instrument family, which is a major group within the wide range of musical instruments. The way string instruments make sound is through the vibration of strings caused by mechanical force. These instruments need the player to use a bow and strings to produce sound, with the sound coming from the sliding friction between the two. When the strings are stretched at both ends, tension is created, and the amount of this tension decides the pitch of the string.
▼结构分析,structural analysis

因此我们探寻整体建构美感的过程中,以张弦作为主题,在顶部形成一个三角张弦木梁体系,上弦刚性构件与下弦柔性索的组合,通过撑杆连接形成自平衡受力体系,使整个结构显得既坚固又轻盈。这种轻盈感不仅提升了建筑的空间感,还使得建筑更加灵动和富有变化。
Because of this, in our search for the building’s overall aesthetic, we chose tension and strings as our main theme, creating a triangular truss (wood) beam system at the top. The mix of rigid upper chord members and flexible lower chord cables, joined by struts, forms a self-balancing force system that makes the whole structure look both strong and light. This lightness not only improves the building’s spatial feel but also adds to its dynamic and ever-changing character.
▼室内,inteiror


▼结构细部,structure details


在木梁的中间我们采取了第二种结构体系:张拉膜结构。膜材料具有良好的透光性,能为建筑带来自然光,同时保持轻盈的外观。这种结构不仅让建筑看起来更加灵动和优雅,还能创造出通透感。这两种“刚柔并济”的受力方式不仅提高了结构的承载能力,还赋予了建筑一种动态的美感。三角梁的几何直线与圆形弧线墙体的对比也使得空间更具戏剧性和感染力。
▼节点构造,detailed axons



In the central portion of the wooden beam, a secondary structural system has been integrated: a tensile membrane structure. The membrane material provides exceptional translucency, enabling natural light to permeate the building while preserving a lightweight appearance. This structural choice not only enhances the building’s dynamic and graceful aesthetic but also fosters a sense of openness. The combination of these two “rigid and flexible” load-bearing methods not only enhances the structure’s load-bearing capacity but also imparts a dynamic beauty to the building. The geometric linearity of the triangular beams creates a striking contrast with the curvilinear walls of the circular space, infusing the area with a sense of dramatic impact and emotional resonance.
▼演绎空间,performance space



室内表演的舞台中心位于圆形空间的中心。我们设置了室内、室外共3层不同高度的环形木制观看座位,紧凑的距离使得表演者和观众拥有更好的互动体验。歌手随时可以根据观众的需求变换不同演奏曲目。
The performance stage’s center is situated right in the middle of the circular space. We have arranged three tiers of circular wooden seating, both inside and outside, at different heights. This close arrangement improves the interaction between the performers and the audience, enabling singers to change their set list based on what the audience wants.
▼表演者和观众间紧凑的距离, close interaction between the performers and the audience



用餐区域设置在西侧室内舞台及东侧室外火塘中间,这样无论在任何时段都能随时观赏演出,也可以携带饮品去舞台位置。整体内部材料我们选择使用同款灰色水洗石与水磨石作为底色,尽量弱化视觉装饰效果以凸显出张弦结构与舞台,营造出自然有机感的庇护场所。
The dining area is strategically positioned between the indoor stage on the west side and the outdoor FIRE PUB on the east side. This layout allows guests to enjoy performances at any time and to take their beverages to the stage area if they choose. For the interior finishes, we have selected grey-washed stone and terrazzo as the base materials, minimizing decorative elements to highlight the tensile structure and the stage. This design approach creates an atmosphere of a naturally organic shelter.
▼用餐区域, dining area



东侧室外区域作为外摆篝火表演区,围绕着火塘我们用红砖垒砌出高低双层座位及花池。同时也利用了场地现有的二层户外连廊,形成了一个天然的露天小剧场。
The outdoor space on the east side functions as a terrace with a bonfire performance area. Surrounding the FIRE PUB, double-tiered seating and planters have been constructed using red bricks. Additionally, the existing second-floor outdoor corridor of the venue has been repurposed to form a natural open-air mini-theater.
▼外摆篝火表演区,outdoor space


每当夜晚降临的时候,火塘成为一个聚会的场所,音乐和篝火让人们聚在一起分享彼此的故事和经历,于无形中缔结深厚而真挚的友谊和情感纽带,这使篝火不仅仅是一个物理存在,更是一种精神的寄托和情感的共鸣。
As evening descends, the FIRE PUB transforms into a gathering spot where music and bonfire unite people to share stories and experiences, cultivating deep and genuine friendships and emotional connections. This evolution of the bonfire from a mere physical structure to a spiritual sustenance and an emotional resonance is what truly defines its significance.
▼外摆篝火表演区,outdoor space


▼模型,models




▼总平面图,site plan

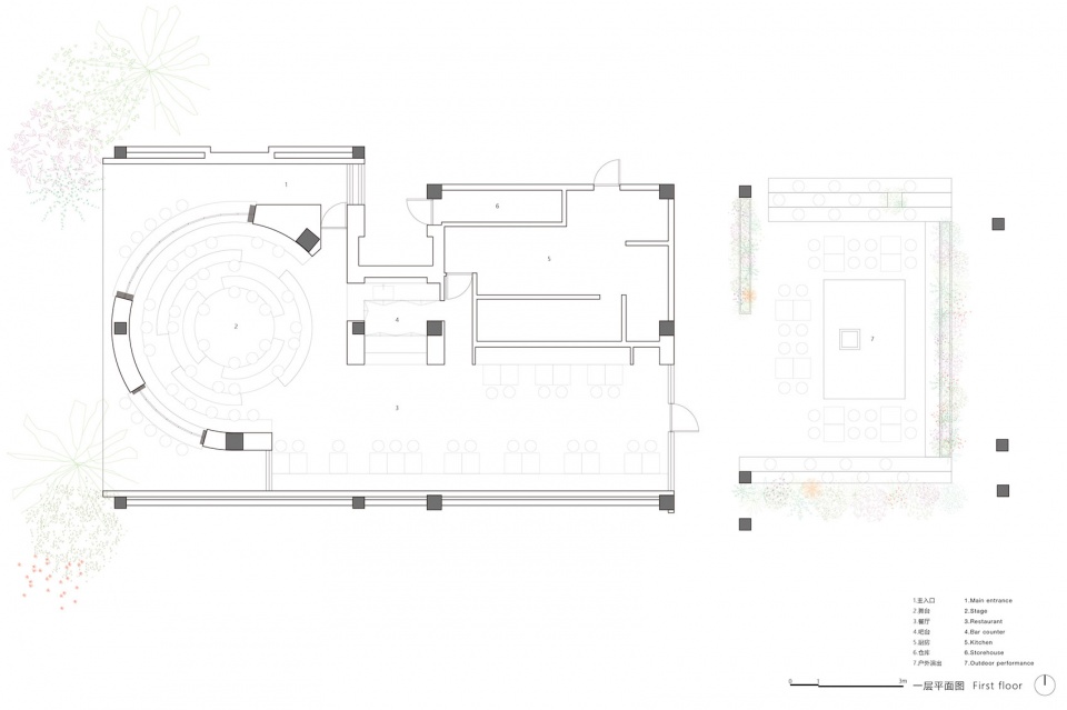
▼平面图,plan

Project name: YOUNG INN’S FIRE PUB Panlong Tiandi
Project type: Facade, Interior
Design: SZ-Architects
Website: www.sz-architects.net
Contact e-mail: SZ-architects@outlook.com
Design year: Jan 2024 – Feb 2024
Completion Year: April 2024
Leader designer & Team: (Lead Designer)Zhikun Zhang, Yue Liu. (Team)Wenjing Zhang, Yaning Shen, Deyong Kong, Daoting Li
Project location: Panding Road, Qingpu District, Shanghai, China
Gross built area: 213㎡
Photo credit: Mata Okawa
Structure design: iStructure Design & Consulting Co.,Ltd (Xiaotian Yang, Kunying Wu, Zhe Wang)
Landscape consultant: Plantopia
Client: YOUNG INN’S FIRE PUB
Property: Shui On Land
Contractor: Nanjing Haoyade Decoration Engineering Co.
Structural Type: Triangular Truss (Wood) Beam System
Materials: Washed Stone, Terrazzo, Glulam, Stainless Steel Cables, Light-emitting Membrane














