Rimac园区,克罗地亚 / 3LHD
Rimac园区的建设旨在将公司所有部门整合到一个地点,实现开发与生产过程的融合,特别是在从汽车概念到大规模生产转型的过程中。该园区位于萨格勒布附近的Sveta Nedelja,交通便捷,靠近环道,并拥有足够大的土地,能够满足未来园区的建设需求。园区将容纳公司的业务、研发和生产部门,同时配套一系列为访客和员工提供的支持设施。
The purpose of building the Rimac Campus is to consolidate all segments of the company in one location, enabling the integration of development processes and production during the business transformation period, transitioning from automotive concepts to serial production. The campus is located in Sveta Nedelja, near Zagreb, where easy access from the bypass is ensured, along with a sufficiently large plot of land that can meet the needs of the future complex. The campus will house the company’s business, development, and production segments, complemented by a range of supporting facilities for visitors and employees.
▼园区鸟瞰图,Aerial view of the campus

现有的地块虽然缺乏显著特征,但其起伏的地形却拥有可达七米的高度差。区域内唯一显著的特征是附近的历史遗址——厄尔多迪城堡。新的园区设计将这一现代化技术功能与周围景观元素巧妙融合,形成一种新的解读。建设将分阶段进行,首先是生产设施的建设、景观绿化、办公楼和员工住宿区的建造。园区由两座标志性建筑组成——一座玻璃办公楼和一座大规模封闭的生产建筑。两者通过绿色屋顶相连,屋顶下设置餐厅、幼儿园和员工设施。景观设计是项目的重要组成部分,包括步道、湖泊、绿地以及赛车场。
▼轴测图,Axonometric drawing

The existing state of the plot gave the impression of a space without notable features, but it contains a varied topography with height differences reaching up to seven meters in some places. The only dominant feature in the area is the historic Erdödy Castle, located nearby. The new campus emerges as a modern interpretation of specific technological functions integrated with the existing elements of the landscape. The construction is planned in phases, which include building the production facility, landscaping, construction of an office building, and employee accommodation units. The campus is defined by two recognizable structures – a glass office building and a large enclosed volume intended for production. These structures are connected by an artificial topography of a green roof, beneath which a restaurant, kindergarten, and employee facilities are located. Along with the construction, another key aspect of the project is landscaping, which includes pathways, a lake, greenery, and a racetrack.
▼远景,Viewing the building at distance

该园区项目设想通过绿色和休闲区域的融合,创建一条新的公共和社交轴线,园区本身便融入这一体系。虽然这是一个私营项目,但设计上摒弃了常见的围墙和障碍物,所有区域通过倾斜坡道实现无障碍进入,形成一个开放系统,既能满足现有需求,也能应对未来的扩展。这个设计理念不仅局限于园区本身,还为城市未来的发展提供了更广泛的构想。
The campus project envisions establishing a new public and social axis that includes green and recreational zones, into which the campus itself is integrated. Although it is a private initiative, the campus is designed without typical barriers and fences. All areas are accessible via sloped ramps, creating an open system that accommodates both existing and future elements. The vision extends beyond the campus itself, offering a broader concept for the future development of the city.
▼建筑外观,Exterior view

新的办公楼、生产设施和现有城堡共同构成一个三角形布局,形成空间的三角化原则。建筑设计避免了直角,创造了外部空间的流动性,使得园区空间延展至其边界之外。建筑形态遵循这一逻辑,新的结构轮廓没有直角或明显的正反面,取而代之的是由连续外壳包裹的形式,包容内部功能。这种空间逻辑打破了传统的层级化空间组织,并具有很高的扩展性,可以根据未来的需求扩展到现有范围之外。建筑与景观设计的曲线灵感来源于运动、汽车和赛车场的设计理念。
The positioning of the new office and production buildings, along with the existing castle, forms a triangle, generating a spatial triangulation principle. This avoids right angles in the buildings, resulting in a fluidity in the external spaces that extends beyond the campus boundaries. The architectural design follows this logic consistently, with the contours of the new structures lacking right angles or distinct front or back sides. Instead of traditional facades, the buildings are enveloped by continuous shells that wrap around the contents.This spatial logic establishes a non-hierarchical organization of space and its expansiveness, allowing for the continuation of this principle beyond the current scope, depending on future development needs. The design of both the buildings and the landscape is shaped by curves derived from the logic of movement, as well as the design of cars and racetracks.
▼建筑与景观,Architecture and landscape

生产设施位于一座超过75,000平方米的封闭建筑内,能够完成从零部件到成品的全过程生产。快速建造得益于工业建筑技术,结合了预制钢筋混凝土和钢结构元素。建筑内部不同的生产环节高度整合,设计上为灵活调整和快速适应提供了空间。各部门被设计为独立的“房中房”结构,拥有六米高的天花板,并设有中间层用于设备安装。除了生产和存储区域外,建筑还包括博物馆和与生产相关的办公区域,这些区域位于通过绿色中庭和天窗采光的夹层中。生产建筑像一座工厂展厅,生产的各个阶段通过玻璃窗展示,成为参观的部分内容。
The production facility is housed in a massive enclosed building, covering over 75,000 square meters, enabling production from car parts to the final product. Rapid construction was ensured through industrial building technology, combining prefabricated reinforced concrete and steel elements. Inside the building, various production functions are integrated, designed to allow flexibility and adaptability within short time frames. Departments are designed as separate “houses within a house,” with six-meter-high ceilings and intermediate spaces for installations. In addition to the various production and storage areas, the building houses a museum and an office section linked to production, situated on a mezzanine illuminated by green atriums and skylights. The production building is conceived like a factory showroom, where different stages of production are framed by glass windows, making them part of the tour and presentation.
▼生产设施外立面,Exterior Facade of the Production Facility

生产建筑的外立面设计为由金属波纹板组成的连续外壳,总长度达到一公里。铝材因其轻巧性和易于安装的特点被选中,特别是在立面角部的曲线设计上具有优势。此外,铝材的反射性使得大体量的生产建筑在视觉上“去物质化”,引发了关于新纪实主义及其与周围空间关系的思考。外壳部分覆盖了穿孔金属板,这既保证了通风,也为外部景观提供了视角。外立面的清晰设计让内部的动态生产过程得以展示。立面上的开口是等高的“切口”,根据其内在逻辑进行设计,这些开口内设置了不同用户的入口和凹槽。
The main design element of the production building is a continuous envelope made of profiled metal sheeting, stretching a total length of one kilometer. Aluminum was chosen for its lightness and ease of installation on the facade, allowing for the necessary curvature at the corners. Simultaneously, it provides reflection and dematerialization of the massive production volume, opening up the topic of a new monumentalism and its relationship to the surrounding space. The envelope is partially clad with perforated metal to allow views outside or ensure ventilation of technical spaces. The clarity of the envelope enables the accommodation of all dynamic processes taking place inside. Openings on the facade are “bites” into the volume of equal height, determined by their own logic, within which niches and entrances for various users are located.
▼外立面近景,Closer view of the facade

内部组织通过清晰的沟通通道解决,通道宽度如同街道,便于人员流动和导航。通道两旁是共享空间,如卫生间和茶水间,这些区域被设计成科技感十足的内部凹槽。主轴线的交汇处是中央中庭,这一扩展的交流区域设有大型厨房和公共餐厅,成为员工聚集和互动的空间。引入的中庭不仅提供自然光和新鲜空气,还改善了建筑内部的微气候和氛围。平屋顶将作为大规模太阳能发电站使用,支持工厂完全依赖电能,避免使用其他能源。
The internal organization is resolved by establishing clear communication pathways, sized like streets, allowing easy movement and navigation. Alongside them are shared spaces such as restrooms and tea kitchens, designed as interior niches within the technologically sterile landscape. At the intersection of the main axes is the central atrium, an expanded communication area with a large kitchen and communal dining room, serving as a gathering place. The introduction of atriums allows for natural light, fresh air, and a more pleasant microclimate and atmosphere within the building. The flat roof will be used for a large solar power plant, in line with the idea that the entire factory will rely solely on electric energy, without other energy sources.
▼室内概览,Interior view

办公楼围绕两个封闭的多层中庭展开,分别具有不同的功能和气氛。其中一个中庭设有演讲厅,用于展示和活动,另一个则是一个绿色空间,供员工放松或独立工作。圆形的立面设计旨在提供无遮挡的绿地视野并最大化自然采光。阳光和光照研究决定了外立面玻璃窗和墙面空间的比例。悬挑屋顶的设计与阳光角度相契合,确保开阔的外部视野同时延续了立面的曲线形态。灵活的平面布局能够快速适应办公空间的变化,并具备双向朝向,既可以俯瞰绿地,也可以朝向中庭。
The office building is organized around two enclosed multi-story atriums of different characters. One features an auditorium for presentations and events, while the other is a green space for relaxation and independent work. The rounded facade design is defined by the desire for unobstructed views of greenery and maximum natural lighting. Studies of sunlight and light have determined the amount of glazing and wall space on the facade. A characteristic element of the prominent overhanging roof is shaped by the angle of sunlight, allowing for unobstructed views outside while following the curved contours of the facade. The flexible floor plan allows for easy adaptation of the offices and dual orientation, towards the greenery and the atriums.
▼中庭空间,Central Atrium Space

园区的公共轴线由一个新建的湖泊、入口广场、餐厅和草地组成。办公楼和生产设施之间通过人工景观的交汇点进行连接,餐厅被绿意环绕,成为中心聚集点。餐厅设计有两个景观视角,分别朝北和朝南,可以看到城堡、湖泊、游乐场以及草地上的羊群,这些羊群帮助维持草坪的整洁。
The central (public) axis of the campus is defined by the sequence of a new lake, an entrance square, a restaurant, and a meadow. The connection between the office building and the production facility is found in the artificial topography of the junction, where the restaurant, immersed in greenery, serves as the central meeting point. The restaurant is defined by two vistas, one to the north and one to the south, with views of the castle, lake, playground, and meadow with sheep grazing to maintain the lawn.
▼办公空间,Office area


该综合体预计将容纳超过一千名员工和访客,因此设计中一个重要的方面是为不同类型的用户提供多样化的流动路径,提供不同的空间体验,并根据用户需求调整到达目的地的速度。不同的通行路线部分重叠,货物流通路径设计高效,而访客则通过更慢的路线逐步探索园区的各个区域。园区内部的道路,在特殊情况下,还可以转变为赛车场。道路的设计灵感来源于世界著名赛道,如蒙扎和银石。
Since the complex is expected to host over a thousand employees and visitors, one of the key aspects is designing movement paths for different types of users, offering varied experiences of the space and differing speeds at which they reach their destinations. Various access and movement routes have been established, which only partially overlap. The flow of goods is designed with efficient paths, while visitors and customers move more slowly, discovering different parts of the campus. The internal road within the campus, which otherwise serves for the movement of visitors and goods, can become a racetrack on special occasions. The design of the road is conceived as a collage of curves from some of the world’s most famous tracks, such as Monza and Silverstone.
▼生产空间概览,Overall of the Production Facility

▼生产空间,The Production Facility



园区的建筑概念位于景观与建筑物之间,介于自然与人造环境之间,打破了传统科技园区的设计假设。高科技与田园气氛相结合,精心挑选的动物成为环境调节的一部分,强调了一个新的共生系统,不仅仅是空间上的连续性,还包括人与动物、人与汽车之间的和谐共处。园区并非一个静态、封闭的整体,而是一个包容变化的空间,既承载生产和研发过程,也容纳不同类型的用户,形成一个动态、可持续发展的生态系统。
The campus architecture is conceived between landscape and objects, between the natural and the conditioned, breaking the usual assumptions of a technological campus. High technology meets an idyllic atmosphere, with carefully selected animals becoming part of the environmental conditioning, emphasizing the continuity that is not only spatial but establishes a new system of coexistence between people, animals, and cars. The campus is not a static, completed whole but embraces change. It encompasses production and development processes, topography and architecture, as well as all types of users.
▼总平面图,Master Plan

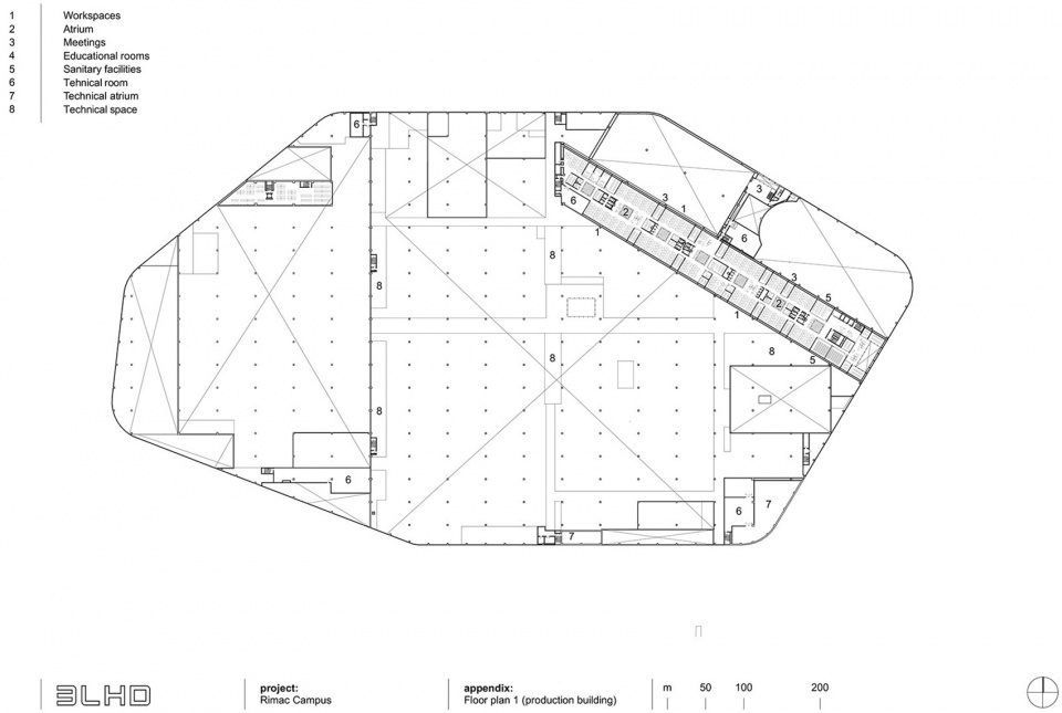
▼底层平面图,Ground Floor Plan

▼二层平面图,Upper Floor Plan

▼立面图,Elevations


▼剖面图,Sections


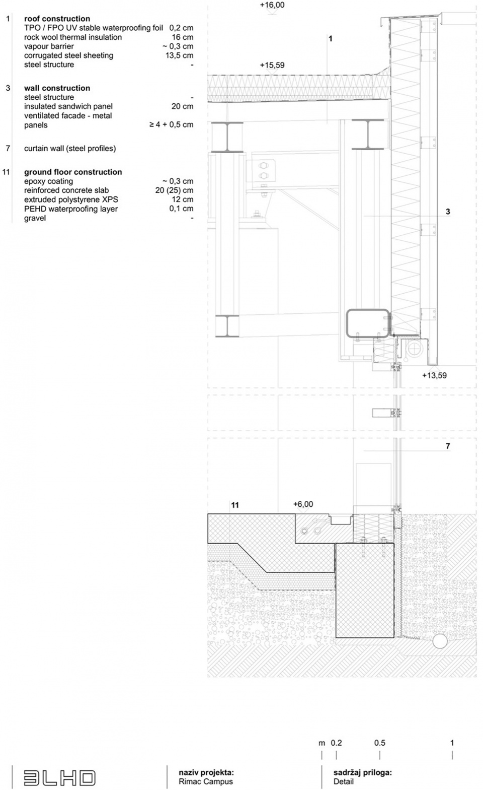
▼剖面图细部,Detailed sections


▼细部详图,Detailed drawings




Fact sheet: Rimac Campus
Project number: 285
Project name: Rimac Campus
Status: under construction
Project start date: 25.03.2019
Project end date: 07.2023
Construction start date: 08.2021
Program: business, production, public, tourism, sport, landscape, urban planning
Address: Kerestinec
City: Sveta Nedelja
Country: Hrvatska
Geolocation: 45°46“26’N, 15°49“2’I
Type: invited international competition
Site area (m2): 197575
Size (m2): 112980
Footprint(m2): 95329
Client: Rimac Technology d.o.o.
Author: 3LHD
Project team: Saša Begović, Marko Dabrović, Tatjana Grozdanić Begović, Silvije Novak, Paula Kukuljica, Nevena Kuzmanić, Dragana Šimić, Sanja Jasika Lovrić, Duje Katić, Krunoslav Szoersen, Dora Kodrić, Ivana Marić, Domagoj Osrečak, Mia Kozina, Luka Cindrić, Roko Guberina, Marko Ramov, Jelena Prokop, Tena Knežević, Nives Krsnik Rister, Leon Lazaneo, Tamara Janjić, Tamara Paulina Pavković, Nevenka A. Krželj, Josip Babec Šuša, Viktorija Genzić, Alen Pučar, Lucija Ptiček, Monika Prinčić, Ida Ister, Tomislav Soldo, Andrej Filipović
Project team collaborators (Arhimetrik): Tomislav Šolto, Miljenko Zekić, Davor Vilupek, Matija Kokot, Maja Milat, Duška Jelić
Collaborators (competition stage 2019):
Building physics: Mateo Biluš
Traffic planning concept: Boris Leović
Structural concept: Ivan Palijan
Energy concept: Damir Žaja
Landscape design concept: Ines Hrdalo, Kaja Šprljan Bušić
Consultants form the Veterinary medicine faculty: Dražen Matičić, Željko Pavičić (Veterinary medicine faculty Zagreb)
Model: Nikola Brlek (Super hands)
Animation: Boris Goreta
Visualization: Mario Harni, Branimir Turčić
Illustration: Ida Ister
Collaborators:
Structural engineering – Studio Arhing (Juraj Pojatina, David Anđić, Dunja Barić, Borna Doračić, Matej Kramarić)
Traffic planning and project of manipulative surfaces – C5 Koncept (Boris Leović, Jospi Pavlek)
Drainage and hydrant network (internal infrastructure) – Bobanac (Milan Bobanac, Jakov Pažanin)
Drainage and hydrant network (external infrastructure) – APZ Hidria (Damir Keglević, Petra Sirovec)
Geotechnical design of the lake reservoir – Geotech (Marko Šperanda, Mirko Grošić)
Landscape design, lake project – Studio za krajobraznu arhitekturu, prostorno planiranje, okoliš ((Lido Sošić, Marko Sošić, Sanja Bibulić, Dunja Dukić, Hans-Georg Erhardt
Electrical Engineering – Elektroplan (Mladen Stošić, Matej Lijović)
Mechanical installation project – BESTPROJEKT (Marko Josić, Milena Lončar, Josip Barišić)
Elevators – PPN Projekt (Rok Pietri)
Sprinkler installation – Apin projekt (Nenad Semenov)
MEP project of lake technology – Zagrebinspekt (Dalibor Janjatović, Dario Rogina)
Special project – kitchen technology – Dekode (Zoran Divjak)
Building physics and details – AKFZ studio (Mateo Biluš)
Fire protection and safety at work project – Inspekting (Maksim Carević, Josip Radeljić)
Landscape design – Studio za krajobraznu arhitekturu, prostorni planiranje, okoliš (Marko Sošić, Sanja Bibulić, Dunja Dukić)
Bill of quantities – Pro Elemento (Dinko Žele)
Lighting concept: Lighthouse Project (Tomislav Šteglin, Iva Šteglin)
Central Supervisory System: Autel (Danijel Hrgić)
Façade project: Stratura (Josip Červar, Nebojša Buljan)
Explosion safety and clean room: Fiditas (Berislav Prpić, Duško Sulčić)
Foundation pit protection: Grasa (Živko Mihovilović)
Geotechnical study: Premur (Miro Mikec)
DGNB consultant: Drees&Sommer
Consulting: Protema (Thomas Jurgeleit)
Climate engineering: Transsolar (Krauss Markus)
Energy efficiency: FSB (Tea Žakula, Silvano Sušilović)
Visualization: Mario Harni, Branimir Turčić














