Vall d’Hebron消防训练塔,巴塞罗那 / Carles Enrich Studio
设施与景观Infrastructure And Landscape
该项目是位于巴塞罗那北部的Vall d’Hebron消防训练塔,该塔楼在满足活动功能需求的同时,也是一个应对高可见度的挑战。塔楼的布局有助于将不同独立部分连接成复杂整体:一方面,塔楼的垂直结构在形态上与消防站和食品市场相关联,而其材质通过裸露砖砌外立面的处理,与周围的Sant Genís和卡梅尔Carmel社区相连接,又与周围的隔墙和住宅塔楼形成对比。
The project for a fire training tower in the Vall d’Hebron posed the challenge of achieving the functional requirements of the activity while accepting the status of a highly visible element in the north of Barcelona. The configuration of the tower helps to link a complex environment made up of different isolated pieces: on the one hand, the vertical structured structure is morphologically related to the fire station and the food market, while its materiality connects landscapely with the neighborhoods of Sant Genís and Carmel thanks to the treatment of the exposed brick façade, which relates with the party walls and housing towers of the surroundings.
▼塔楼概览,overview of the project


▼塔楼概览,overview of the tower


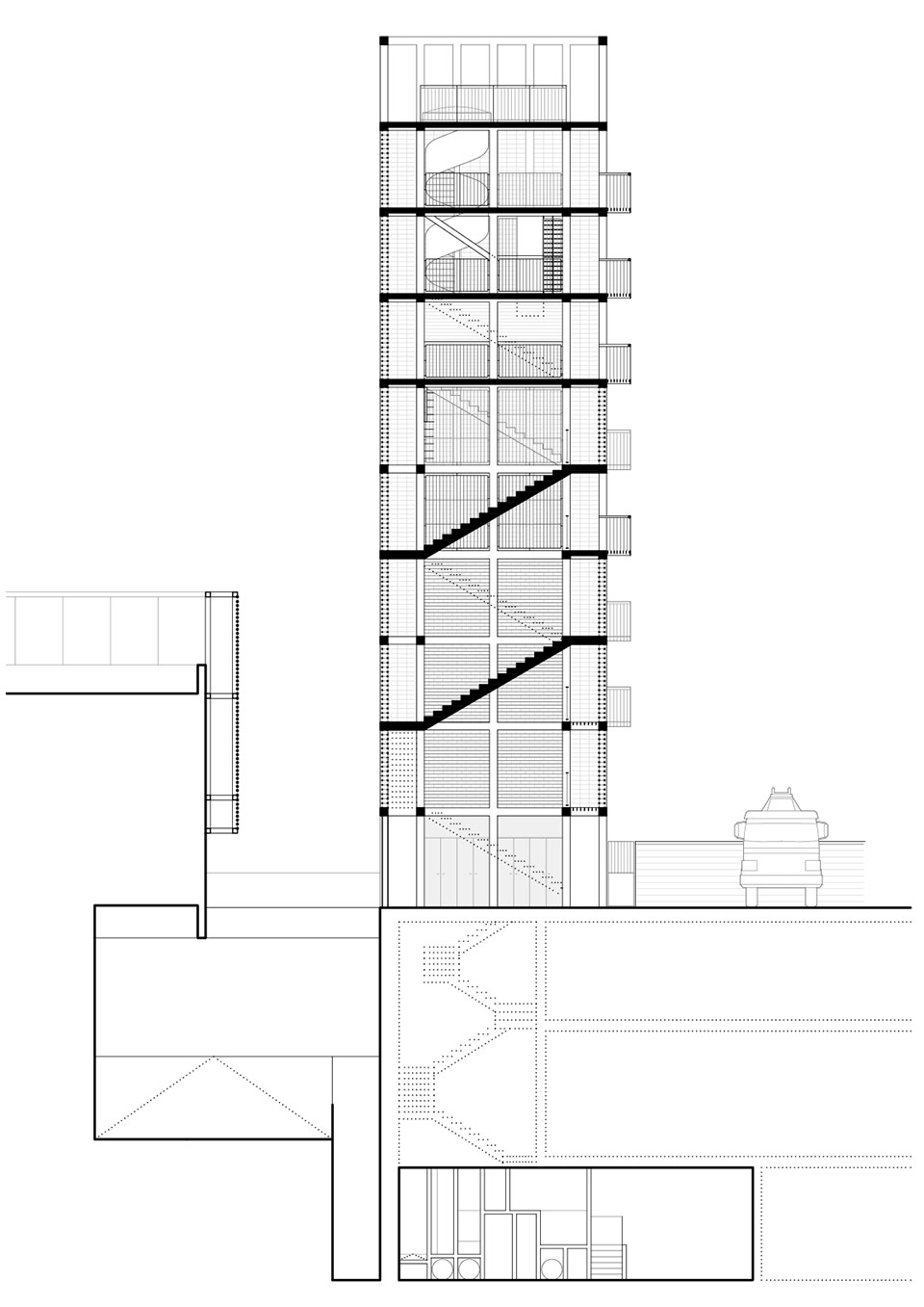
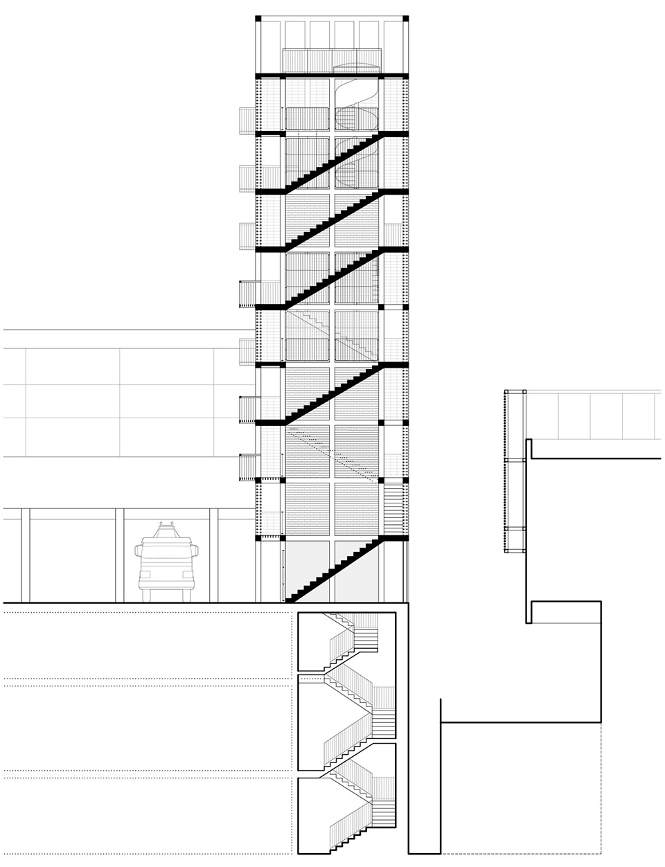
塔楼作为一个开放系统,具有极大的灵活性和功能适应性,以容纳当前的功能需求,并预见未来使用功能的变化。塔楼的平面为7.15平米见方,基于混凝土柱和横梁的网格结构,形成一个三维网格,每层通过该网格形成四个2米×2米的空旷区域,从而为适应多种空间需求提供最大灵活性。室内空间模拟各种极限场景,让消防员能够进行各种训练(双层和三层空间、螺旋楼梯、猫梯、井口、门窗等),而外部则设计有不同位置的阳台,增强了绳降和垂直救援训练的效果。
The tower is proposed as an open system that allows great flexibility and functional adaptation to accommodate current programmatic requirements and anticipate future changes in use. A 7.15 m square floor plan is proposed based on a grid of concrete pillars and girders that generate a three-dimensional mesh from which 4 empty spaces of 2 x 2 m are obtained on each floor in order to accommodate a multiplicity of spatial situations with maximum adaptability. to the program. The interior spaces recreate extreme building situations to allow firefighters to develop their practices (double and triple spaces, spiral staircases, cat ladders, wells, doors, windows, etc.) while on the outside there are balconies in different positions to enhance rappelling and vertical rescue practices.
▼塔楼立面,tower facade



系统与材料性System And Materiality
材料的选择不仅考虑了景观融合的标准,还考虑了耐用性、维护性、抗冲击性和施工简便性。项目仅使用了三种材料,这些材料不仅能够实现差异化,还优化了施工过程:混凝土用于结构,红砖用于外立面,而金属元素用于围护结构和阳台。
▼塔楼轴测图,axonometric

The choice of materials responds to criteria of landscape integration but also durability, maintenance, resistance to impacts and ease of construction. Only 3 materials are used that allow differentiation and optimization of the construction process: concrete for the structure, ceramic for the envelope and metal elements for the enclosures and balconies.
▼垂直救援训练,vertical rescue practices


结构由一个中央核心组成,核心由8根25 x 25厘米的混凝土柱构成,通过同样深度的十字形梁相互交织,外立面则有24根柱子,确保能承受执行绳降训练所需的水平推力。新塔楼将在现有消防站的基础上扩展,采用过渡楼板与操场屋顶对接。外立面作为一个周边环行空间,与所有外立面元素相连接,同时可以不干扰内部活动的情况下将不同楼层相连,从而促进训练的同时进行。外部围护结构通过28 x 12 x 18厘米的挤压红砖模块化设计,避免了切割和浪费,红砖按孔洞朝外排列,形成一个大型格栅。红砖采用的陶瓷材料具有良好的惯性行为和低导热性,有助于调节室内温度,特别是在夏季外部温度超过35°C时。最后,添加了一些轻型金属元素,用于构成悬挑阳台、楼板、楼梯和室内护栏。这些元素在车间预制,以加快安装速度,并便于未来的调整。
▼各层平面图,plans

The structure is configured by a central core formed by 8 concrete pillars measuring 25 x 25 cm, intertwined by girders of the same depth in the shape of a cross, and a second level of 24 pillars on the façade that guarantee the resistance to the horizontal thrust required to rappelling practices. The new tower will extend the fire station’s existing structure by executing a transition slab that coincides with the roof of the maneuvering yard. The envelope is configured as a perimeter circulation space that gives access to all the elements of the façade and that, in turn, allows the different levels to be connected without interfering with the activities that can be carried out inside, promoting a great simultaneity of the practices. The exterior enclosure is designed from the modulation of the 28 x 12 x 18cm extruded ceramic piece, avoiding cuts and losses, placed with the holes seen to form a large lattice. Ceramic has good inertial behavior and low conductivity, helping to regulate the interior temperature, especially in the summer months when the outside temperature can exceed 35º. Finally, some light metal elements are added that make up the cantilevered balconies as well as slabs, stairs and interior railings. These elements are prefabricated in the workshop to speed up placement and allow for future modifications.
▼外部围护结构,The exterior enclosure



▼核心混凝土结构,the core concrete structure


▼红砖形成一个大型格栅,red bricks form a large lattice



▼让消防员能够进行各种训练,allow firefighters to develop their practices

▼让消防员能够进行各种训练,allow firefighters to develop their practices


▼室内空间模拟各种极限场景,The interior spaces recreate extreme building situations


▼让消防员能够进行各种训练,allow firefighters to develop their practices



未来再利用Future Reuse
除了能够实现预定的功能需求外,塔楼还充当了人类和鸟类的气候庇护所。由深度陶瓷件构成的外立面格栅,确保了室内空间的持续通风,并在不使用任何人工空调系统的情况下降低了外部温度。同时,在其中一面外立面上设置了12个雨燕巢,以促进生物多样性并为常出没于Collserola山脉的某种鸟类提供栖息地。从这个角度看,该项目不仅是一个当前使用的基础设施,更是一项能够历久弥新的工程。塔楼的内部隔断和围护结构允许根据需要进行调整,以适应其他功能,延长塔楼的使用寿命,塔楼还可作为观察Horta-Guinardo区的城市观察点。
▼塔楼还充当了人类和鸟类的气候庇护所,the tower acts as a climatic refuge for people and birds

Beyond allowing the development of the planned program, the tower acts as a climatic refuge for people and birds. The façade lattice, made up of very deep ceramic pieces, guarantees permanent ventilation of the interior spaces and allows a reduction in the outside temperature without the use of any artificial air conditioning system. Likewise, 12 swift nests are included in one of the façades in order to promote biodiversity and provide shelter to a species of bird that frequents the Collserola mountain range. In this sense, the project is presented as an infrastructure that will last over time, even beyond its current use. The interior compartmentalization and enclosures allow changes to accommodate other programs and prolong the useful life of the tower, which can also be understood as an urban observation point of the Horta-Guinardo district.
▼顶层空间,top level space

▼屋顶空间,roof space

▼夕阳下的塔楼,tower under the sunset


▼场地平面,site plan

▼轴测图,axonometric

▼平面图,plan

▼分析图,digram

▼立面图,elevation


▼剖面图,section


▼环境气候策略,environmental strategy

▼立面材料轴测,facade material axonometric

Author: Carles Enrich Studio
Promoter: Barcelona d’Infraestructures Municipals SA, BIMSA
Collaborators: MA+SA (structure) + SJ12 (facilities)
Executive management: Miguel Rojo – SGS Tecnos
Builder: Arcadi Pla
Photography: Adrià Goula
Location: Vall d’Hebron (Barcelona)
Project: 2021
Work: 2022 – 2023














