宁德时代下党零碳茶馆,福建 / HATCH Architects 汉齐建筑
为应对全球气候危机,推动中国实现“双碳”目标,宁德时代在新能源电池领域取得辉煌成就后,又将目光聚焦于构建绿色、智能、宜居的城市环境。零碳茶馆的设计灵感源自象征循环往复哲学思想的“莫比乌斯环”。与被动式节能技术不同,该项目通过引入先进的新能源和智能网联技术,主动为建筑赋能。
To tackle the global climate crisis and achieve China’s “dual-carbon” goals, CATL has shifted its focus from the remarkable achievements in the field of new energy batteries to creating green, intelligent, and livable urban environments. The Möbius strip, a symbol of perpetual cycles, inspired the teahouse’s design. Unlike passive energy-saving techniques, this project actively empowers the building with advanced new energy and intelligent interconnectivity technologies.
▼场地概览,Site

▼俯瞰茶馆与停车场,Overlooking the teahouse and parking lot

▼竹林与茶馆与村庄,Bamboo forest and teahouse and village

▼茶馆与村庄,Teahouse and village

▼茶馆另一侧,The other side of the teahouse

整座建筑采用 BIPV(光伏建筑一体化)材料和技术,在有限的空间内实现了全周期绿电直供。屋顶铺设的光伏板,如微积分般精准贴合屋顶曲线,使整个建筑在视觉上更加协调一致。建筑外观大量运用超白玻璃和 UHPC(超高性能混凝土),既保证了通透的视野和充足的采光,又有效降低了能源消耗。
The entire structure utilizes BIPV (Building Integrated Photovoltaics), enabling full-cycle green power supply within limited space. The precision of photovoltaic panel alignment with the roof’s curves ensures visual harmony. With materials like ultra-clear glass and UHPC (Ultra-High-Performance Concrete), the design achieves transparency and energy efficiency.
▼茶馆与光伏停车日景,Teahouse with photovoltaic parking

▼日景鸟瞰,Aerial view

▼从村庄看茶馆,View of teahouse from village

▼零碳包厢立面,Zero carbon box facade

▼零碳包厢,Zero carbon box

同时,位于山脚下的光储充放智能充电站,除了提供基础的充电服务外,还具备车网双向交互功能,可实现电车反向放电给茶楼,最大化利用电力资源。据测算,茶馆的年发电量约为 5.5 万度,减少约 54.8 吨 CO₂ 排放,相当于种植 3000 棵树。这里不仅是一处静谧的休憩之所,更是现代科技与自然美学的完美融合。
Meanwhile, the intelligent charging station at the foot of the mountain provides bi-directional car-to-grid functionality, enabling vehicles to discharge power back to the teahouse. This maximizes energy use efficiency. With an annual power output of approximately 55,000 kWh, the teahouse reduces CO₂ emissions by about 54.8 tons, equivalent to planting 3,000 trees every year.
▼茶馆与夯土建筑,Teahouse with rammed earth building

▼一层外部,Exterior of the first floor

▼上屋顶路径,Roof path

不同于惯常的乡村建设方式,HATCH 构建的零碳茶馆在材料、配色、质地和形态上与周边村落形成了极大的反差。然而,当人们顺着盘桓的山路缓缓步入建筑内部,再沿着螺旋向上的行走动线抵达屋顶时,却会感受到一种令人赞叹的和谐之美。
The zero-carbon teahouse stands out against the surrounding rural architecture, creating sharp contrasts in materials, colors, and textures. However, as visitors ascend the spiraling pathway to the rooftop, they are greeted by an unparalleled sense of harmony.
▼光伏屋顶的观景功能,Viewing function of photovoltaic roof

▼屋顶光伏,Rooftop photovoltaic

茶馆分为上下两层,设有茶饮区、茶艺交流区和观景休闲区,每一处皆拥有绝佳的视野。优雅的弧线贯穿整个空间,使建筑与室内设计完美融合,确保了整体设计的统一性。透过全景落地玻璃,村民与游客彼此欣赏,互为风景。
▼剖面图,Section

The two-story structure comprises a tea bar, tea culture exchange area, and a scenic leisure space, each offering spectacular views. The elegant curves run through the entire space, seamlessly integrating the architecture with the interior design and ensuring the unity of the overall concept. The panoramic glass walls allow villagers and visitors to view each other, forming a mutual appreciation.
▼二层空间,the upper floor


▼包厢与外面的山峦,Interior view and the hills outside

▼旋转楼梯,Spiral staircase


HATCH 联合创始人卫宏涛说:“零碳茶馆绝非寻常意义上的网红建筑,它就像一个精妙的链接器,将周遭的村庄、远处的山峦、永续的能源科技、游客的体验以及村民的生活紧密连结在一起,绘就一幅美美与共的永续山居图卷。”
HATCH co-founder David Wei remarked, “The zero-carbon teahouse is not just a trendy building; it serves as a connector that tightly links the surrounding villages, distant mountains, renewable energy, tourist experiences, and local lifestyles into a cohesive narrative of sustainable mountain living.”
▼村民与茶馆,Villagers and teahouses

▼从老建筑看茶馆,View of teahouse from old building

▼茶馆与光伏停车夜景,Night view of the project

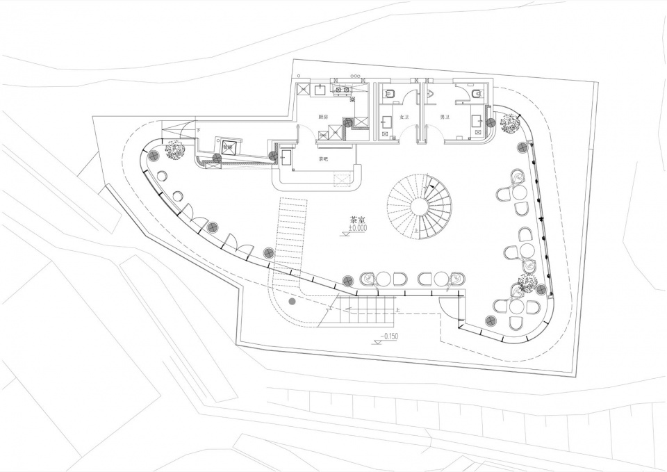
▼首层平面,First floor plan

▼二层平面,Second floor plan

▼顶层平面图,Roof plan

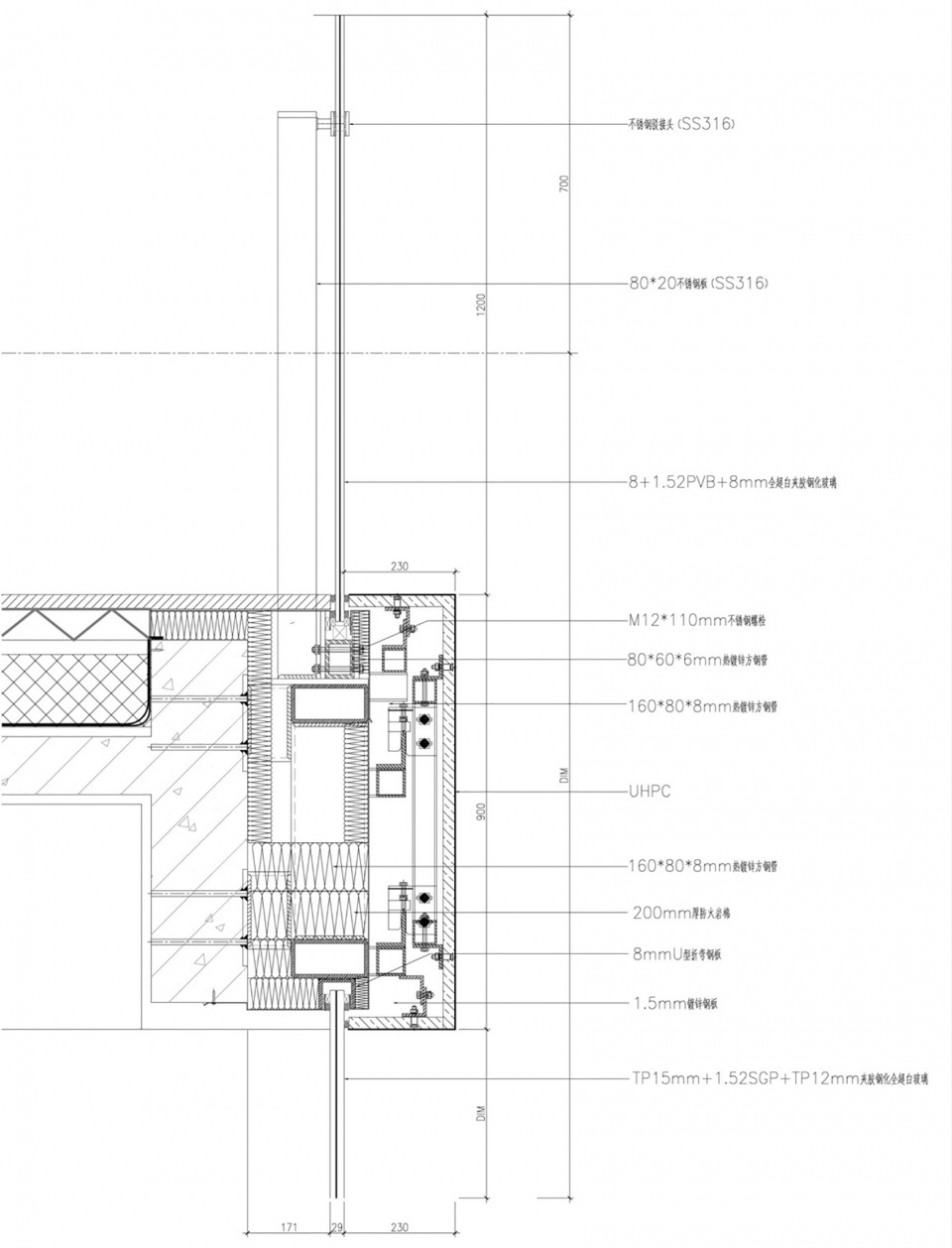
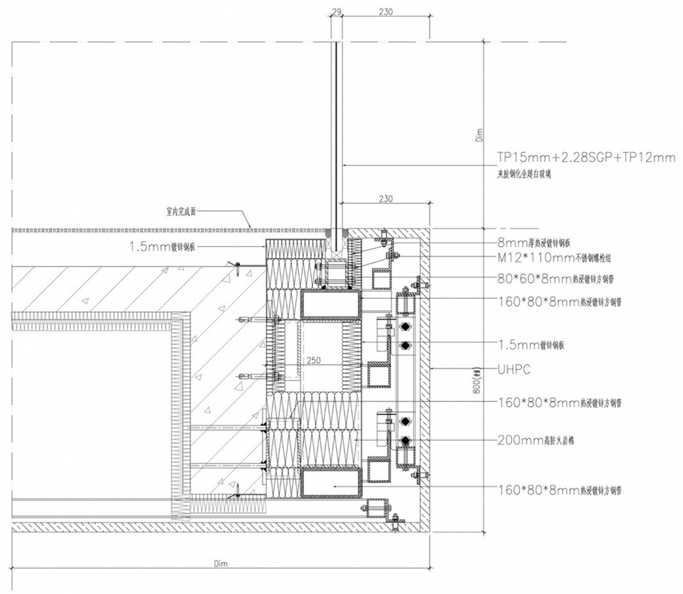
▼墙体大样图,Detailed drawing of the walls


Project name: CATL Zero-Carbon Teahouse Xiadang
Project type: Architectural design, interior design, lighting design
Design: HATCH Architects
Website: http://www.hatchgroup.cn/
Contact e-mail: weiyi.li@hatchgroup.cn
Design year:2023
Completion Year:2024
Leader designer:David Wei
Team: Zhao Danjing, Gan Ji, Lu Huiqin, Wang Qian, Wu Jiechen, Zhang Yuchao, Song Zhizhen, Yang Ying, Duan Jingjing, Huang Pinyang (intern), Wang Haiping, Chen Hao, Tang Wei, Li Yanzhi, Su Li, Ni Jianmin
Construction: Fujian Guanyunxin Construction Engineering Co.
Project location: Xiadang Township, Ningde City, Fujian province
Gross built area: 467㎡
Photo credit: Fangfang Tian
Clients: CATL
Materials:UHPC、Photovoltaic Glass、Glass Curtain Wall
Brands:UHPC (Wuhu Dingfu Landscape Material Co., Ltd.)
Photovoltaic Glass (Amazing Energy Technology (Hangzhou) Co.)














