半山花语爱心书屋,云南 / STEPS大台阶建筑
本项目位于云南省怒江州贡山县丙中洛镇秋那桶村,地处怒江大峡谷深处。由于贡山县海拔较高,地形复杂,相对隔绝,怒族及其他少数民族的传统民居风貌得以保存。但近些年由于工程移民、生态搬迁等因素,大量传统民居正在遭受损毁并逐渐消失。
The project is located in Qiunatong Village of Bingzhongluo Town of Gongshan County of Nujiang Prefecture of Yunnan Province, deep inside Nujiang Grand Canyon. Due to high altitude, complicated terrain and isolation of Gongshan county, the traditional dwellings of Nu nationality and other ethnic groups are preserved. But with migration for infrastructure and environment, lots of such dwellings are being damaged and abandoned.
▼怒江岸旁的贡山县,Gongshan county by Nujiang River

▼怒江大峡谷深处的秋那桶村,Qiunatong Village deep inside Nujiang Grand Canyon

此外,贡山县于2020年刚刚脱贫,生产生活水平较低,本地儿童的教育条件十分有限。生于本地的甘文勇先生为了让家乡的孩子们接触到外面的世界,走出大山,将自家的一组老房改为公益爱心书屋供孩子们阅读学习。自2016年书屋建成至今,“半山花语”爱心书屋一直是秋那桶村乃至方圆140里唯一的乡村书屋,从开始的100册到如今藏书已过4万册。
Moreover, as Gongshan County only recently got rid of poverty in 2020, local children have less opportunities for good education. Born in Gongshan, Mr. Gan wants to make it more convenient for local children to acquire knowledge of greater world and finally step into it, for which he converted several dwellings of his family into community library for children to read and learn. Since 2016, “Flower on Hillside” community library has been the only library within a radius of 140 miles, and the number of book collection grows from 100 to more than 40,000 nowadays.
▼村落组团中心的建筑,the building in the center of the village


为了容纳更多书籍,甘先生计划将其中一栋原本作为教室和厨房的老房子改造为阅读室。此栋建筑位于村落组团中心,同时可作为村里的活动中心。我们受公益委托前来进行建筑改造设计。
To accommodate more books, Mr. Gan wanted to renovate one of the dwellings, turning it from classroom and kitchen into one reading room. The building is in the center of the village, which makes it also community center for the village. We were commissioned the task of architectural design.
▼爱心书屋同时作为村里的活动中心,library also serving as community center

▼由村子小路看向爱心书屋,the view of library from village road

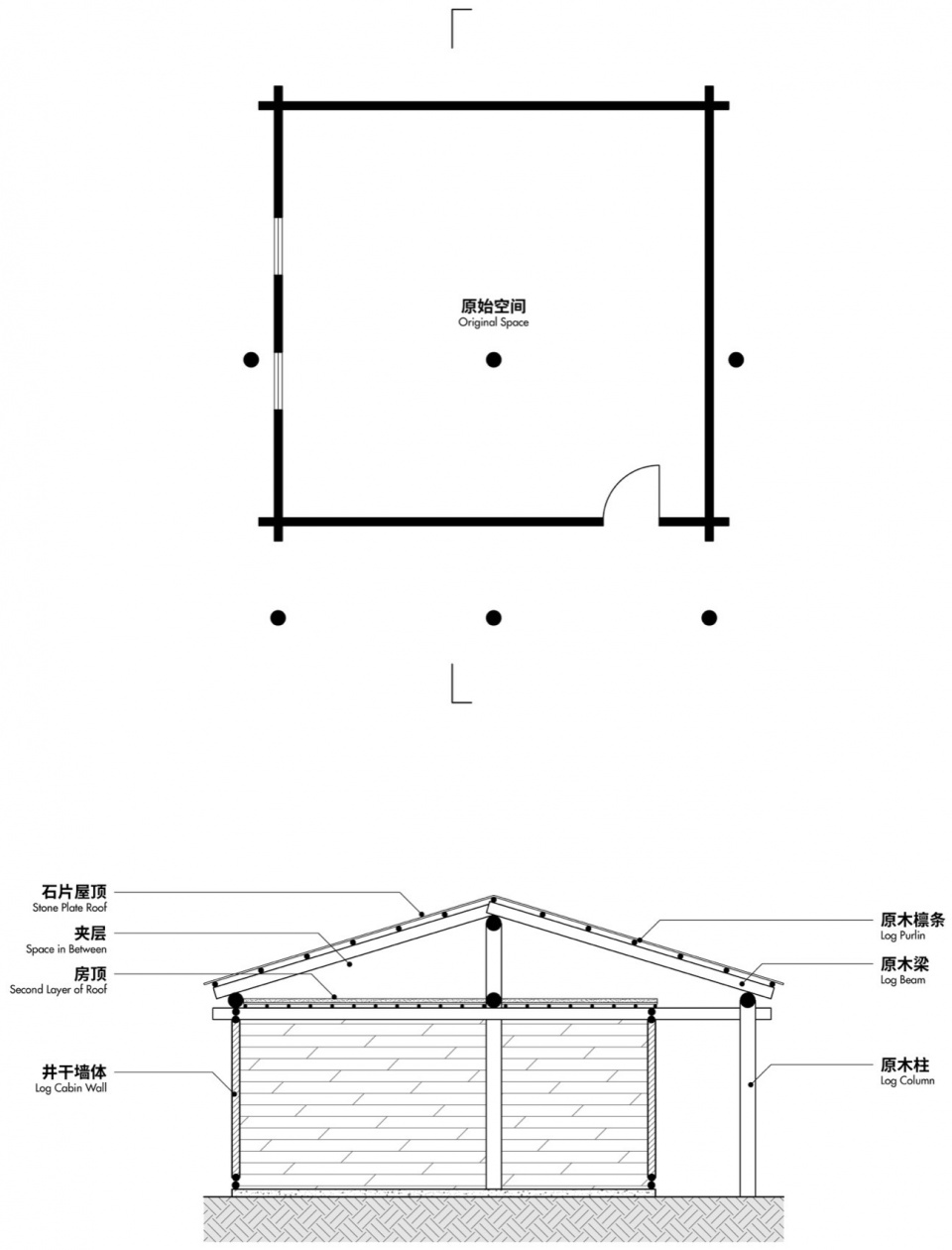
我们首先研究了老房子的原型——怒族的传统民居“平座式”垛木房[1]:原始的垛木房为双层结构,第一层为屋顶结构,双坡石片屋面通过檩条、斜梁、横梁、柱子直接落地;第二层为井干结构,原木交错搭接形成井干式墙体,一根中柱及墙体上搭设的十字木梁、木板形成屋顶之下的房顶。两层结构相对独立,屋顶与房顶之间形成的夹层空间可用于晾晒庄稼、摆放农具,井干墙体的后退部分形成檐下灰空间。平面尺寸约为5mx5m,是最原始的“口”字型单一空间[2],西侧墙开有两个小窗。这种房子的主要问题是采光和通风不足:对于阅读空间来说,采光是最大问题;本地气候潮湿,如果长期通风不足,书籍也会发霉。
▼民居原型垛木房的平面图、剖面图 ,
plan and section of traditional stacked wooden house

▼民居原型垛木房,traditional stacked wooden house

The old dwelling falls into the category of stacked wooden house with platform [1], a traditional type of dwelling of Nu nationality. This kind of dwelling is featured with two layers of structure: 1. roof structure, double pitch roof with stone plate roof tile directly touches ground with wood column, inclined beam, horizontal beams and purlin; 2. log cabin construction, round logs are stacked to create walls, which support a second-layer roof with crossing wood beams on walls and a center column. The two layers of structure are rather independent with each other, the space between the two layers of roof is used for drying crops and piling up farm tools, and the setback of log cabin wall creates grey space under the roof. Plan size is approximately 5mx5m, which is the original single-use type of space [2], with two small windows on west wall. The main functional problems with this type of dwelling are daylighting and ventilation especially for reading room, poor daylighting are bad for children’s eyesight and books would become mouldy due to insufficient ventilation.
▼改造后屋顶保持原始民居的屋顶坡度,与周围建筑相协调,
renovated roof keeping the slope of old dwelling, in harmony with the surrounding


通过实地考察,我们可以推断出后期屋主改造的部分:在平面上,屋主将原单一空间隔为厨房和教室两个房间,并在室外加建了一个小房间,缩小了檐下灰空间。在垂直结构上,屋主拆除了屋面下的房顶,取消了原本用来晾晒庄稼的夹层,保留原房顶的木梁并做了室内吊顶。由于原夹层空间是敞开式,屋主在山墙面用木板将洞口封闭,形成新的围护墙面。我们猜测屋主取消屋顶夹层是因为没有晾晒庄稼的功能需求,且希望室内空间得以变高,不过这并没有改善采光和通风。另外,由于本地已停止生产石片屋面,屋主用平价的灰色石棉瓦代替了传统石片,但瓦片之间有多处缝隙,经常漏水。
▼屋主改造后的平面图、剖面图,
plan and section of the renovation by owner

▼屋主改造后,renovation by owner



During on-site inspection, we could speculate what Mr. Gan did in later renovation. From the perspective of plan, he divided the space into two rooms, and a separate room on the exterior side, which blocks the grey space under the roof; And from the perspective of vertical structure, he removed the second-layer roof, canceling the space between the two layers of roof, but preserved the wood beams for second -layer roof and had ceilings attached to them. He also filled the triangle-shaped gaps on two gable walls with wood boards to seal the envelope. We speculate that the reasons for him to cancel the space between the two layers of roof are the lack of need of drying crops and more vertical space on interior side, but this does not improve daylighting and ventilation. Moreover, as stone plate roof tile is no longer being made locally, he changed it into asbestos tile, which is cheaper and more popular locally, but there are gaps between tiles for water leaking.
▼最新改造后的立面及院子,façade and courtyard after latest renovation

受制于六万元预算和两周工期,我们的改造策略必须非常务实,把钱花在刀刃上。老房子的主体木结构虽已使用多年,质量依然良好,所以我们首先拆除了屋主改造的部分,将建筑主体恢复为原始垛木房结构,这既创造了5mx5m舒适而灵活的阅读空间,又恢复了檐下灰空间,同时也保护了当地传统建筑风貌。由于屋顶下房顶的移除,我们拆除了失去承重功能的中柱,保留了十字木梁用以安装护眼灯管。
▼最新改造后的平面图、剖面图,plan and section of latest renovation

Subject to extremely low budget of 60,000 RMB and construction period of two weeks, this latest round of renovation must be very practical, spending money only on what’s really important. First, in light of the good condition of the original wood structure, we removed the walls and ceilings that Mr. Gan added in later renovation, restoring the space into the state of original dwelling. This creates a 5mx5m space of comfortable and flexible reading room, restores the grey space under the roof, and protects the styles and features of the original dwelling. Because of the removal of the second-layer roof, we removed the center column that lost the function of load-bearing, and kept the crossing beams for installation of eye-protection LED tubes.
▼檐下灰空间,grey space under the roof

▼舒适而灵活的阅读空间,comfortable and flexible reading room


▼保留原始木结构,restoration of original wood structure

▼保留十字木梁用以安装护眼灯管,
keeping crossing beams for installation of eye-protection LED tubes

接下来最重要的是解决采光和通风问题:我们沿着井干墙体上部新做了一圈侧向高窗,并将屋顶整体翻新:在原木斜梁的基础上重做檩条和屋面,新增顶部天窗,侧向高窗和顶部天窗极大地提升了室内采光。侧向高窗用透明耐力板封上,而顶部天窗侧面仅用白色纱窗封上,可作为拔风井提升室内通风,同时防蚊虫和落叶。
▼屋面构造图,roof analysis

▼采光通风分析图,daylighting and ventilation analysis

Second, we need to deal with daylighting and ventilation. We inserted high windows along the top of the log cabin walls. Roof is the key, we preserved the inclined beams, replaced the purlins and added a sky window. The high window on the wall and sky window on the roof improve daylighting significantly. Different with the high window that is sealed with transparent PC sheets, the sky window is hollow without sealing, which serves as ventilation shaft. To prevent fallen leaves entering interior space, white gauze mesh is installed on sky window.
▼孩子们在阳光下阅读,children enjoying reading in sunlight



▼孩子们在阳光下画画,children enjoying painting in sunlight

▼明亮的室内空间,bright interior space

▼天窗可提升通风,sky window improving ventilation

所有新增木质结构均采用本地最常见的4×8木方,由本地木工在现场几天内迅速搭建完成。屋面材料用长条的红色树脂瓦替代原本的片状石棉瓦,解决屋面漏水问题。红色树脂瓦和红色排水檐沟将新改造的屋顶部分与老房子的传统结构从视觉上脱开。室内家具也均为红色,与木结构共同形成温暖和谐的空间氛围。
The new wood structure is completely made of 4×8 lumber that are common in local building material markets, and is quickly built in several days with skilled and proficient local construction workers. Roof material is also replaced with long resin tile that are less likely to leak. The red resin tile, along with red metal gutter, visually detach the new roof from the old wood structure. For interior space, red furniture and wood structure form warm and harmonious atmosphere.
▼红色树脂瓦屋面和排水檐沟与木结构从视觉上脱开,
red resin tile roof and metal gutter detaching from wood structure visually

▼红色家具与木结构形成温暖和谐的空间氛围,
red furniture and wood structure forming warm and harmonious atmosphere of the space

这个小房子让我们想起洛吉耶提出的“原始棚屋”——直指建筑最朴素的本质:用必要的构件扎根于土地,应对自然环境。
This little house reminds us of “The Primitive Hut” concept brought up by Laugier, who points out the simple yet essential core of architecture: a man in nature and the need for shelter, with only what is really necessary to build.
▼小小的书屋点亮了整个村庄,little library lighting up the whole village

▼施工过程,construction process




▼项目区位,site location

[1] 吉菁.云南怒江傈僳族民居研究[D].上海交通大学,2016:72-74.
[2] 刘轲.云南省怒江州传统木楞房建筑适宜性更新设计研究[D].北京建筑大学,2021:17
[1] Ji Jing. A study on the traditional dwellings of the Lisu nationality in Nujiang, Yunnan Province[D]. Shanghai Jiao Tong University, 2016: 72-74.
[2] Liu Ke. Study on the renewal design of traditional wooden house in Nujiang Prefecture of Yunnan Province[D]. Beijing University of Civil Engineering and Architecture, 2021:17
Project name: “Flower on Hillside” Community Library
Project type: Renovation
Company: STEPS Architecture
Website: www.stepsarc.com
E-mail: info@stepsarc.com
Completion Year: 2024
Project location: Yunnan
Gross built area: 36㎡
Design team: Wu Yu, Ji Zixiao
Owner: “Flower on Hillside” Community Library (Gan Wenyong)
Sponsor: Wangshang Bank, NPI Public Welfare Foundation
Executor: Beijing Qihua Community Welfare Foundation
Contractor: Gongshan Lufeng Construction Team
Photo credit: Zhang Ji
Materials: lumber, resin tile, PC sheet, gauze mesh














