San Vicente del Raspeig市政体育馆,西班牙 / Manuel Costoya Estudio De Arquitectura + Naos 04 Arquitectos
San Vicente del Raspeig市政体育馆是一个大型集装箱般的建筑,具有举办多种体育模式和大型活动的多功能性,内部和外部之间的视觉联系成为项目的主线之一,目的是使体育运动从外部可见,以此作为促进体育运动的措施。
The Municipal Sports Pavilion of San Vicente del Raspeig is configured as a large container of great versatility to host multiple sports modalities and large capacity events in general, in which the visual connection between interior and exterior becomes one of the directing threads of the project with the aim of making sports practice visible from the outside as a measure to promote sports.
▼建筑鸟瞰,aerial view of the building



▼建筑外观,exterior of the building


▼建筑街景,street view of the building


为了实现空间的最大灵活性,不同的体育项目被分为两个大型空间:一方面是中央区域,适用于团体运动项目,容量相当于4个室内篮球场;另一方面是用于定向活动和健身的房间。每个室内空间将以不同的光线和色彩特色为特征:中央空间通过5个北向天窗提供顶光,地板木材的温暖色调占主导;活动室则通过两层立面的光线过滤,并呈现不同的冷色调地板。
▼一层平面,ground floor plan

To achieve the greatest degree of versatility of its spaces, the different sports modalities are grouped in two large spaces: on the one hand, the central space intended for team sports modalities and with the equivalent capacity of 4 indoor basketball courts and, on the other, room spaces for directed activities and gyms. Each of these interior spaces will be characterized by different nuances of light and color: the central space, overhead lighting through 5 skylights facing North and with a predominance of the warm tones of the wood of the flooring; the activity rooms, through illumination filtered through the two sheets of the facades and the different cold tones of its floors.
▼北向天窗提供顶光,overhead lighting through 5 skylights facing North



▼地板木材的温暖色调占主导,the warm tones of the wood of the flooring

▼用于大型团体活动的场所,Venue for large group activities



▼俯瞰场地的长廊,the bridge overlook the playground



▼看台区域,stand area


▼看台区域,stand area



同时,这种空间上的用途组织为建筑的管理提供了极大的灵活性,使每个主要用途(凉亭、健身房和餐厅)都能独立运作。
This spatial organization of uses at the same time offers great versatility in the management of the building, by allowing each of the main uses (pavilion, gym and cafeteria) to function independently.
▼训练区域,training area


▼光影变幻,light and shadow


▼光影变幻的训练区域,light and shadow in training area



建筑的立面被设计为一个动态的系统,永远处于变化之中,外立面的水平条纹和内立面的棋盘图案的叠加,根据室内外光线的变化强度交替呈现。这种立面组成的变化通过立面在白天的强烈白色与因内部地板反射光照而产生的不同蓝色的交替进一步强化。
▼立面,elevation

The facades of the building are configured as a dynamic system in permanent change, in which the superposition of two different geometries, horizontal striping on the exterior leaf and checkerboard on the interior leaf, alternate with greater or lesser intensity depending on the nuances of the interior and exterior lighting. These changes in the composition of the façade are reinforced by the alternation between the intense white color of the façade during the day and its decomposition into the different blue colors that arise from the reflection of the lighting on the interior floors of the building.
▼因内部地板反射光照而产生的不同蓝色的交替,the different blue colors that arise from the reflection of the lighting on the interior floors


该建筑被配置为一个能效非常高的系统,最大限度地利用所有空间的自然采光,并配置了一个电动自然通风系统,通过其外墙和位于盖板上的通风口对整个容积进行交叉通风,使白天积聚的热量在夜间得以散发。除这些被动措施外,还配备了一个用于生产热水的气热系统和一个用于发电的光伏装置,从而打造出一座几乎零能耗的建筑。
The building is configured as a very high energy efficiency system, maximizing the natural lighting of all spaces and configuring a motorized natural ventilation system that allows cross ventilation of the entire volume through its facades and the vents located in cover, allowing the nighttime dissipation of the heat accumulated during the day. These passive measures are complemented by the provision of an aero thermal system for the production of DHW and a photovoltaic installation for the production of electricity, thus configuring a building with almost zero energy consumption.
▼夜景,night view

▼夜景,night view


▼夹层平面,mezzanine level plan


▼屋顶平面,roof plan

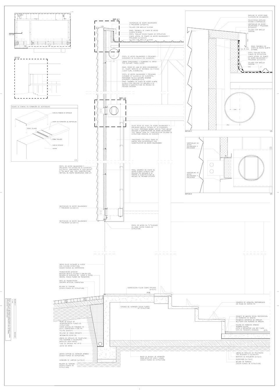
▼立面,elevation



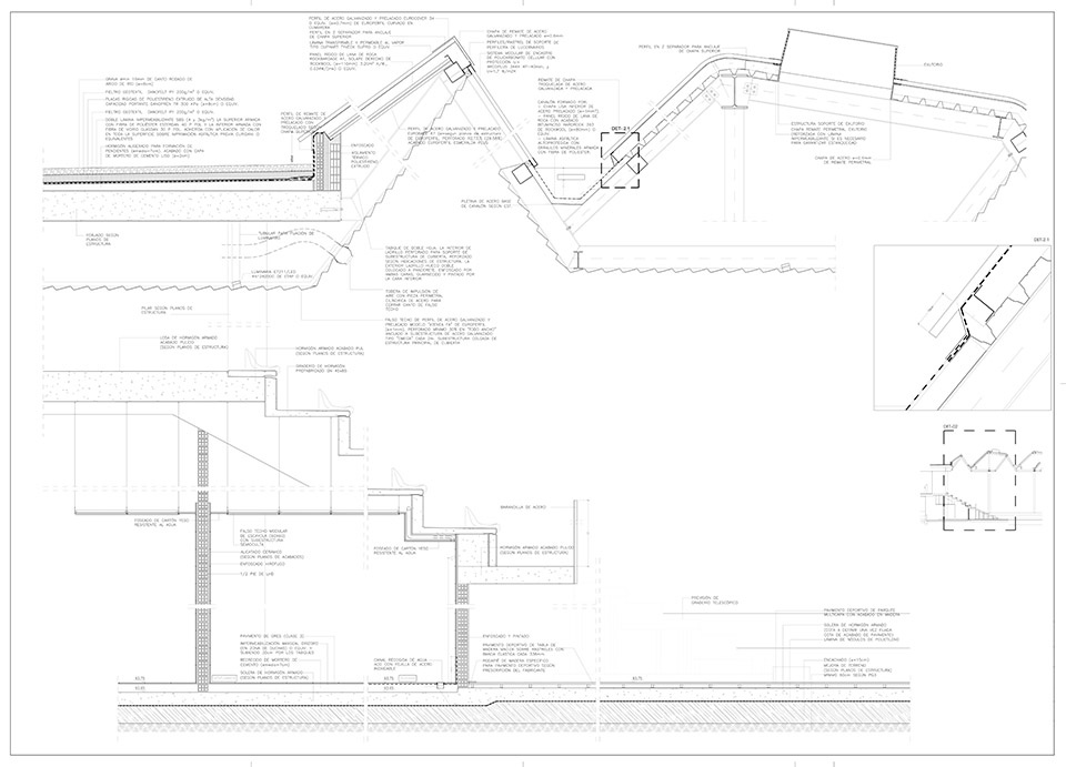
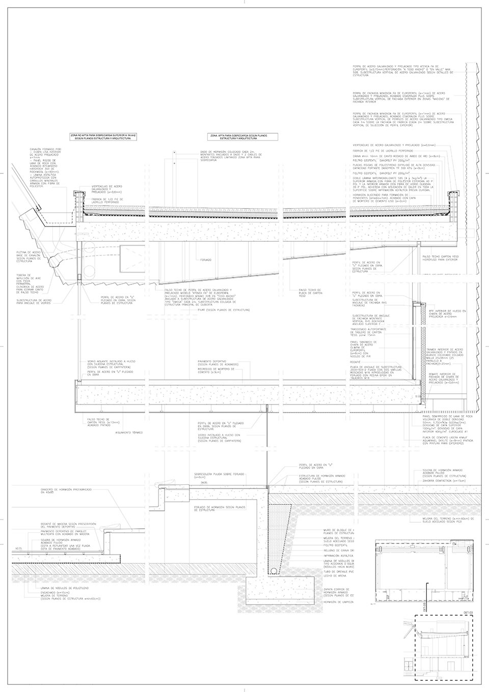
▼剖面,section

▼剖面,section




Name of the project: Municipal Sports Pavilion In San Vicente Del Raspeig
Location: San Vicente del Raspeig. Alicante. España
Year: 2024
Plot Area: 11.232 m2
Built area: 6.648 m2
Presupuesto ejecución material: 6.911.765 €
Budget: 8.225.000 €
Seated capacity: 1.879
Maximum capacity: 6.407
ARCHITECTURE OFFICE INFORMATION
Name: MANUEL COSTOYA ESTUDIO DE ARQUITECTURA (MCEA)
NAOS 04 ARQUITECTOS
Website: http://www.manuelcostoya.com
https://www.naos.es
E-mail: info@manuelcostoya.com
Adress: Avda. Teniente Montesinos, 8. Bajo. 30100. Murcia
Phone: (0034) 868 076 041
Country: España
GENERAL PHOTOGRAPHER INFORMATION
Author: David Frutos Fotografía de Arquitectura
Website: http://davidfrutos.com/
E-mail: info@davidfrutos.com














