流光展厅—— 关中忙罢艺术节内院改造,西安 / 戴璞建筑
2023年,关中忙罢艺术节首次邀请建筑师作为参展人,我们受委托在西安市鄠邑区蔡家坡村子里更新一处庭院。项目地处秦岭以北,以武小川老师为首的西安美术学院实验艺术系师生于2018年在这里创立了“关中艺术合作社”,并创办了“关中忙罢艺术节”,发起了一系列的艺术与乡建项目。
In 2023, the Guanzhong Mangba Art Festival invited architects to participate as exhibitors for the first time. We were commissioned to renew a courtyard in the village of Caijiapo, located in the Huyi District of Xi’an. This project is situated north of the Qinling Mountains, where, in 2018, teachers and students from the Experimental Art Department of the Xi’an Academy of Fine Arts, led by Mr. Wu Xiaochuan, founded the Guanzhong Art Cooperative. This initiative also led to the Guanzhong Mangba Art Festival, which has since launched a series of art and rural construction projects.
▼秦岭鸟瞰,Aerial View of the Qinling Mountains

▼内院鸟瞰,Aerial View of the Courtyard

▼流淌的光影,Streaming Light and Shadow

作为参展建筑师的我们,需要将一座院子的北侧房屋改造成一个可以进行展览的文化活动空间。房屋原本是一个废弃的厨房和一个破败的仓库。庭院每年夏天也会因为大雨而浸泡。我们希望在解决以上基本功能性的问题之外,可以为当地村落探索出一些新的营建更新策略。同时也希望为当地环境带来一些清新的元素以供人亲近。
▼原貌,Original Appearance


As participating architects, we were tasked with transforming the north side of a courtyard into a cultural space for exhibitions. The site was originally an abandoned kitchen and a dilapidated warehouse. Each summer, the courtyard becomes waterlogged due to heavy rains. Our goal is not only to address these fundamental functional issues but also to explore new strategies for revitalizing the local village. Additionally, we aim to introduce refreshing elements to the environment, allowing people to connect more closely with the space.
▼秦岭72峪口作为展厅的潜在语境,The 72 Valleys of the Qinling Mountains as a Potential Setting for Exhibitions

▼展厅内部,Interior

▼由烟囱改成的天光壁龛,A Skylight Alcove Converted from a Chimney

▼装置与入口的关系,The Installation Greeting Visitors at the Exhibition Hall Entrance

▼从壁龛看向入口,View from the Alcove Towards the Entrance

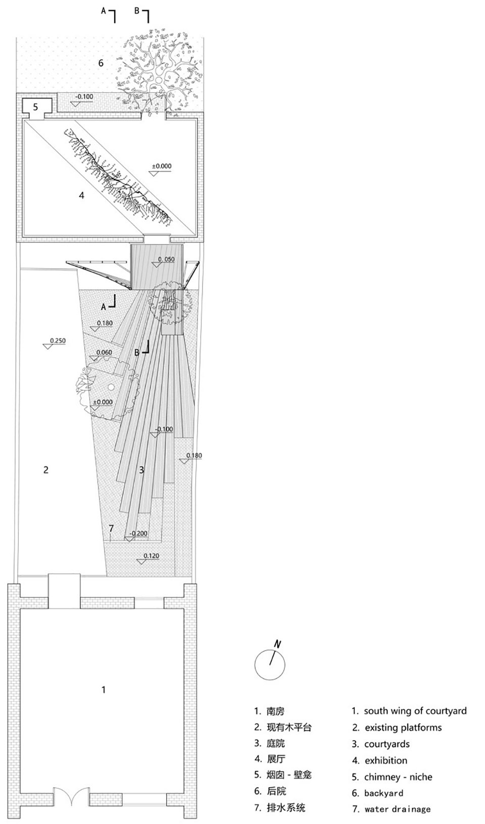
我们提取了当地民居惯用的波浪形底瓦元素,让其顺着倾斜的屋顶流淌而下形成一个类似窗帘的立面肌理。而后展厅的入口插入一个圆形通道,这个通道吸引并邀请观众向院子的北端进行探索。通道带动波浪形的金属网帘进行旋转,并放射出多条铺地分割线,这些线条实际上是院子里的雨水排水引导系统。院子里的高差被精心设计,雨水将流向院子南端预埋的线性排水沟,以保证庭院和展厅地面的舒适。
▼傍晚景色,Evening View

We took inspiration from the wave-shaped tile elements in local residential buildings and allowed them to flow down the sloping roof, creating a facade texture reminiscent of a curtain. At the entrance of the exhibition hall, we designed a circular passage that invites visitors to explore the north end of the courtyard. This passage triggers the wave-shaped metal mesh curtain to rotate, generating multiple paving lines that serve as a rainwater drainage guidance system within the courtyard. The courtyard has been carefully designed with varying heights, ensuring channels into a linear drainage ditch pre-buried at the south end. This design helps maintain the comfort of the courtyard and the exhibition hall’s floor.
▼装置与院内的排水组织,The Integration of the Installation with the Courtyard’s Drainage

▼金属瓦回应传统屋面 1,Metal Tiles Complement Traditional Roofing

▼装置与屋顶的关系,Relationship Between the Installation and the Roof

▼金属瓦回应传统屋面 2,Metal Tiles Complement Traditional Roofing

▼台阶细部,Step Details

圆形通道将庭院内的两颗果树与房屋后面的一棵树的关系进行了空间联系,也为房屋北面的景观更新留出想象。
The circular pathway connects the two fruit trees in the courtyard and a tree behind the house. It also allows for imaginative renewal of the landscape on the north side of the house.
▼洞口与成人的尺度,Opening and Human Scale

▼洞口与游戏,Passages and Games

▼展厅入口,Exhibition Hall Entrance

我们将金属穿孔板在工厂进行分段预制,现场拼装用了两天的时间。金属孔的大小和间距被我们反复推敲,以同时获得透明,镜像反射,和产生阴影的多层效果。人们在不同的时间来到庭院,会遭遇到全然不同情境氛围。有的时候蓝天和阳光会作为镜像主体覆盖住后面的砖墙;有的时候金属网本身会变得透明,原有的房屋会凸显出来。我们期待可以通过这样一种方式为人们带来流水的想象。
We prefabricated the metal perforated panels in sections at the factory and assembled them on-site in just two days. The size and spacing of the holes in the metal panels have been carefully designed to create multiple effects, including transparency, mirror reflection, and shadow generation. As people visit the courtyard at different times, they encounter a variety of atmospheres. Sometimes, the blue sky and sunshine make the brick wall behind serve as the focal point, while at other times, the metal mesh appears transparent, allowing the original house to stand out. Our goal is to evoke the feeling of flowing water through these designs.
▼表皮的光影表现,The Light and Shadow Expression of the Façade

▼透明与光影,Transparency Creates Light and Shadow

展厅内部的砖墙被我们拆除以获得一个完整流畅的展厅。一个三角形的轻型钢架对屋顶重新进行了加固。厨房的烟囱被保留了下来,成为一个带天光的壁龛,它既可以展出实物展品,也或可以当做一个墙壁上的座椅供访客休息。
The brick wall within the exhibition hall was removed to create a spacious and smooth environment. A triangular lightweight steel frame was added to reinforce the roof. The kitchen chimney was preserved and transformed into a skylight niche, which not only showcases physical exhibits but also provides a seating area for visitors to relax.
▼材质细部,Material Details

▼俯瞰入口,Overlooking the Entrance

▼傍晚景色,Evening View

▼施工过程,construction process



▼模型,model


▼平面图,plan

▼剖面图,sections

Project title: Streaming Light Exhibition Hall–Courtyard Renovation for the GuanZhong Mangba Art Festival
Client: Guanzhong Mangba Arts Festival
Curator: Wu Xiaochuan, Song Qun, Guanzhong Arts CO-OP
Location: Caijiapo Village, Xi’an, China
Building area: 37 ㎡
Site area: 97 ㎡
Architects: Daipu Architects
Web: http://www.daipuarchitects.com/
Lead Architect: Dai pu
Project Architect: Zhao Xinyu
Design Team: Zhao Xinyu, Huang Zhiyi, Wang Zhengqi
Drawings: Huang Zhiyi, Wen Chenyu
Structure Consultant: Yang Xiaotian / I-Structure
Photographer:Wu Qingshan
Design: 2023.05-2023.09
Construction: 2023.09-2024.01














