Hotel Keight酒店,克罗地亚 / 3LHD
Hotel Keight 酒店的设计灵感来源于航海、大海与旅行,其空间布局呼应了船舶甲板的结构。酒店位于奥帕提亚市中心,是对这座城市悠久旅游传统的致敬,为宾客提供一个高雅的社交和聚会场所,在这里,人们可以感受到归家的温馨氛围,犹如结束漫长旅程后的归宿。
Hotel Keight is inspired by sailing, the sea and travel. The hotels’ spatial layout reflects the layout of a ships’ decks. Located in the centre of Opatija, this modern hotel is an homage to Opatijas’ tourist heritage, a refined place for socializing and gathering where the guests are greeted by a pleasant atmosphere and the feeling of returning home after a long journey.
▼建筑掩映于景观之中,Architecture set in the landscape

酒店的外立面采用规则的网格结构,由玻璃幕墙与水平(楼层间)结构元素及垂直立面结构元素相结合。此外,外立面选用低调的色调和肌理,与奥帕提亚历史建筑的保护环境和氛围相契合,使酒店呈现出清晰的古典主义形态,不仅与周边环境和建筑功能相适应,同时也丰富了城市空间的视觉形象。
The façade canvas is structured in a regular grid, composed of glazed fields separated by horizontal (inter-floor) construction elements and vertical structural elements of the façade. In addition, discreet tones and textures, characteristic of the protected setting and atmosphere of the Opatija historical structure, give the hotel building a clear classicist form, adapted to the surrounding environment and its basic purpose, and at the same time contribute to the urban space image.
▼立面采用规则的网格结构,The façade canvas is structured in a regular grid

酒店的核心区域位于一层的餐厅,这是酒店宾客、城市游客和奥帕提亚当地居民的聚集地。餐厅的灵感来源于传统沿海厨房,中心摆放一张大型公共餐桌,邀请客人共享美食,营造热闹的社交氛围。此外,酒店咖啡馆借鉴奥帕提亚和维也纳的咖啡文化,提供咖啡和传统甜点,为宾客带来经典欧式休闲体验。
The hotel’s central point is a restaurant on the ground floor, a meeting place for hotel guests, guests of the city and all residents of Opatija. The restaurant is inspired by old coastal cuisines, with a large communal table which invites to a shared meal and encourages socializing. The hotel café, following the example of Opatija and Vienna, will serve coffee and traditional desserts.
▼酒店咖啡馆借鉴奥帕提亚和维也纳的咖啡文化,
the hotel café, following the example of Opatija and Vienna

▼户外用餐区,outdoor dining area


▼餐厅的灵感来源于传统沿海厨房,The restaurant is inspired by old coastal cuisines



▼客房走廊,the corridor for the accommodation units


酒店客房的设计现代而精致,灵感源自船上的“头等舱”,亦即传统意义上的“staterooms”。客房采用深色调,展现风暴中天空与海洋的色彩,使宾客沉浸于宁静的避风港之中。
The accommodation units are a contemporary version of “staterooms”, as the first-class cabins on a ship were traditionally called. With dark colours, the colours of the sky and the sea in a storm, they draw the guest into a haven.
▼现代而精致的客房区域,modern and delicate accommodation units


▼展现风暴中天空与海洋的色彩,the colours of the sky and the sea in a storm


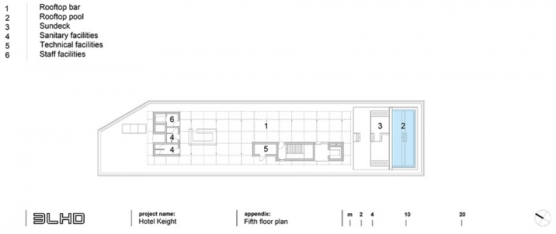
屋顶设有酒吧、泳池和日光露台,明亮轻盈的色彩营造出梦幻般的氛围,让宾客仿佛进入一个远离尘嚣的静谧空间。而在酒店的地下层,则设有养生康体设施,为宾客提供25米室内泳池,以及可用于会议的多功能空间和会议厅。
A bar, a swimming pool and a sun deck are located on the roof. Bright and light tones represent a kind of escape into the dream world. On the lower deck, the basement of the hotel, there are wellness facilities.
▼酒吧和日光露台,a bar and sun deck


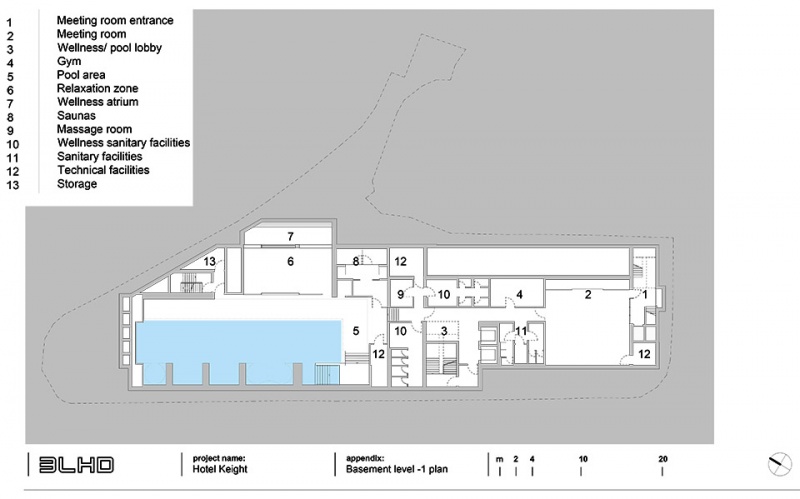
地下层设有康体设施,包括一个25米的室内泳池,同时配备多功能会议空间及会议厅,可满足商务与社交需求。
Wellness facilities with a 25-meter indoor pool are located in the basement of the hotel, where there is also a multipurpose space for meetings with a conference hall.
▼室内泳池,indoor swimming pool


▼康体设施,Wellness facilities

▼场地平面,site plan

▼地下室平面,basement plan

▼一层平面,ground floor plan

▼二层平面,first floor plan

▼五层平面,5th floor plan

▼东立面,east elevation

▼剖面,section

Project number: 270
Project name: Keight Hotel Opatija, Curio Collection by Hilton
Program: tourism
Status: built
Project start date: 09.01.2018.
Project end date: 04.11.2021
Construction start date: 15.9.2021
Construction end date: 10.6.2024
Address: Ul. Velog Jože 2
City: Opatija
Country: Hrvatska
Geolocation: 45°20’0” N, 14°17’50” E
Type: commission
Site (m2): 1657
Size (m2): 5193
Volume (m3): 20855
Footprint (m2): 765
Level (m): 5.20
Client: Katarina Line d.o.o.
Author: 3LHD
Project team: Saša Begović, Tatjana Grozdanić Begović, Marko Dabrović, Silvije Novak, Paula Kukuljica, Koraljka Brebrić Kleončić, Vibor Granić, Mia Kozina, Mia Andrašević Vukelić, Sofija Vrtarić, Nives Krsnik Rister, Irena Mažer, Uršula Juvan, Andrej Filipović, Ida Ister, Vesna Jelušić, Barbara Kaličanec, Aja Zorić, Bojan Pepeonik
Visualizations: Mario Harni, Branimir Turčić (3LHD)
Structural engineering: Ivan Palijan (Palijan), Saša Mitrović (i.t.t.)
HVAC, installation project coordinator: Damir Žaja, Milena Lončar (B.E.S.T. projekt)
Electrical engineering and fire protection system: Boris Kramarić (iC artprojekt)
Water supply, sanitary and storm drainage project – infrastructure: Nataša Slatina (PROJEKT NOVA)
Plumbing and drainage and hydrant network – infrastructure: Zoran Bahunek (ECO projekt)
Building physics: Mateo Biluš (AKFZ studio)
Traffic planning: Boris Leović (C5 KONCEPT)
Special projects – kitchen: Zoran Divjak (Dekode)
Fire safety, safety at work project: Maksim Carević (Inspekting)
Lighting project: Ninoslav Kušter (Orto Forma), Arsen Brečević (Luks)
Landscape design: Luka Brnić (Viridis)
Sprinkler: Nenad Semenov (APIN sustavi)
Pool system HVAC: Marko Zgaga (BAZ projekt)
Pool system electrical engineering: Dražen Komar (MEPRO Engineers)
Elevators: Rok Pietri (PPN projekt)
Foundation pit protection: Mirko Grošić (Geotech)
Bill of quantities: Lucija Ivas (FOREL projekt)
Photography: Jure Živković














