十字交叉之家,北京 / 察社办公室
地方现实的流变
The Shifting Reality of Place
疫情三年改变了很多人的生活工作习惯,这座房子的主人也是其中之一。2023年,他们决定搬回村子里的父母家,在那里重建一座房子。新房同时允许三代人居住,又可以满足居家办公条件。若干年后,他们可能定居于此,不再需要为生计在城市里奔波。
The three-year pandemic reshaped the way people live and work, and the owner of this house was no exception. In 2023, they decided to return to their parents’ home in the village and rebuild a house that could accommodate three generations while also serving as a home office. In the years to come, they may settle here permanently, no longer needing to commute between the city and countryside for work.
▼夜景鸟瞰,aerial view of the site

一如既往,这个设计的初衷是面对真实问题。它无意拥抱抽象的“传统观念”或者“审美趣味”。Kenneth Frampton在其书中写道,直面一个地方的固有问题,这会变成批判地域主义发展的契机。同样的,这也是我的兴趣。
As always, the intent of this design is to address real-life challenges. It does not aim to embrace abstract notions of “tradition” or aesthetic conventions. Kenneth Frampton wrote that confronting a place’s inherent issues can become an opportunity for the development of critical regionalism. This idea aligns with my own interests.
▼夜间街景,street view at night

▼立面夜景,night view of the entrance facade

▼庭院夜景,night view of the courtyard

今天习惯现代生活的人们,对传统院落的诟病,往往集中在缺乏清晰的气候边界,房舍互相分离。通常的更新方式是把房子连接在一起,多表现为把院子变成室内,或者增加外廊。院子封住的结果是,一个巨大间接采光缺乏通风的室内,而外廊隔开院子和内室,人们无法直接接触阳光和新鲜空气;又或者,所有房间像糖葫芦一样串起来,这又可参照到17世纪以前的欧洲住宅,空间均质而缺乏对隐私的关照。因此,如何兼顾气候边界,通过性以及对公共私密的合理布局,这是设计的目的。而我相信除此以外,每个具体的场所和他们的主人,也都携带着各不相同,需要被发现的信息。
▼区位与场地原状,location and original state of the site

▼分析图,analysis diagram

For those accustomed to modern living, criticism of traditional courtyard houses often focuses on their ambiguous climatic boundaries and the separation of living spaces. The common approach to renovation is to link previously detached rooms, often by adding a roof on top of the yard, or adding exterior corridors. The roof or those corridors, however, create barriers between the courtyard and interior rooms, preventing direct exposure to sunlight and fresh air. Alternatively, the rooms may be arranged in a linear enfilade, reminiscent of pre-17th-century European homes—an efficient yet homogeneous layout that lacks privacy. The goal of this design was to balance climatic adaptability, spatial permeability, and the relationship between public and private spaces. Beyond that, I believe that every site and its inhabitants carry unique and often overlooked narratives waiting to be discovered.
▼入口立面日景,day view of the entrance

▼由室内看庭院,viewing the courtyard from interior

▼房舍均拥有双侧采光面,the rooms have double light sides


▼室内一角,corner of the house

▼庭院,courtyard

所以一切的开始,源于具体的场地。A House Rooted in Place
项目所在通州地区,仿佛制定了比北京其他郊区县都要严格的建设要求。譬如宅基地上只能建设一层建筑物,檐口限高3米。也因此,西筏村平坦而开阔。邻里间,即便是近些年改造过的院子,依然大致遵循合院的规制,匍匐于大地。第一次拜访现场,是个雨后的下午。700平方米的院子,衬托已有房舍低矮而天空广大。即便头顶上还有阴云密布,屋檐却挡不住远处的蓝天和日光。这种通透舒阔感也是甲方最早向我表达,对未来房子的期待。
▼模型,model

▼分析图,analysis diagram

The project is located in Tongzhou, Beijing, where building regulations appear to be stricter than in other suburban districts. For instance, residential plots are limited to single-story structures with an eave height of no more than 3 meters. As a result, Xifa Village remains flat and expansive. Even the more recently renovated courtyards continue to follow the traditional heyuan (courtyard house) layout, lying low against the vast landscape. My first visit to the site was on a rainy afternoon. The 700-square-meter courtyard made the existing house appear small beneath the immense sky. Despite the heavy clouds overhead, the eaves could not block the distant blue sky and sunlight. This sense of openness and spatial fluidity was the first thing the client expressed as their vision for the new house.
▼顶视图,top view

针对700平方米的院子占地,又因为预算有限,我们预计要建设一座单层300平方米的房子。房子少,院子大,它将是传统农村院落的变形和演绎。
Given the site’s generous size and the project’s budget constraints, we planned a single-story house with a footprint of 300 square meters. A house with a modest volume and a spacious courtyard—this would be both an adaptation and a reinterpretation of the traditional rural courtyard dwelling.
▼庭院立面,facade facing the courtyard

▼室内概览,overall of interior

十字交叉之家,尽端或者循环House of Cross: A Balance of Termination and Circulation
首先把不同方向的房子首尾相连在一起。在维持庭院尺度的前提下,厢房被合并到一边,进深增加并离开边界,在背对院子一侧闪出另一个窄长的院子。北侧的正房遵循同样的方式向南移动并闪出后院。不同方向的房舍都拥有了双侧采光面,整个院子也因此拥有穿透的视野。
The house is conceived as an interwoven structure, its wings extending in different directions and joining at their ends. To maintain the proportions of the central courtyard, the side wings were consolidated and pulled away from the perimeter, creating a narrow secondary courtyard at the rear. Similarly, the north-facing main hall was shifted southward, opening up a backyard. Each wing now enjoys dual-sided natural light, while the entire courtyard benefits from uninterrupted sightlines.
▼庭院夜景,night views of the courtyard


▼客厅,living room

▼书房区域,library area


▼台阶,steps

▼餐厅,dining area

▼走廊,hallway

建筑的山面出头,顶向边界。从总图上看,环形建筑轮廓变成了十字交叉的图形。均质的空间,产生了若干尽端。姥姥姥爷,爸爸妈妈,小朋友,来访的客人,那些尽端容纳了大家的卧室。姥姥姥爷分开就寝,像多数老年人,更希望各自拥有独立的房间。在独属于他们的尽端,也可以产生这种细分的房间。如果把这些尽端看作伸展的触角,连接它们建筑的身体部位,被拉长和隐隐的切成段落,容纳不同的公共职能。这也观照到多代人共同生活的日常场景。人们在这些若即若离的房间中穿梭,祖孙满堂或者核心家庭的互动,都得到响应。
▼平面图,plan

▼分析图,analysis diagram

The gabled ends of the roofs extend outward, reaching toward the site’s boundaries. From above, the house forms a cross-like configuration. The spatial arrangement is evenly distributed, creating a series of terminal points—private rooms for the grandparents, parents, children, and visiting guests. The grandparents, like many elderly couples, preferred separate sleeping quarters, and the extremities of the house allowed for this subtle division. If these terminal points are seen as extended limbs, then the core of the house—its connective spaces—is elongated and subtly segmented, accommodating various public functions. This arrangement reflects the rhythms of multi-generational living, offering both proximity and separation as needed. People move through these spaces, shifting between moments of family gathering and more private interactions.
▼书房,study room

▼由厨房看餐厅,viewing the dining area from the kitchen

▼卧室入口,door of the bedrooms

▼室内一角,corner of the house

就像连成一片的蘑菇A House Like a Cluster of Mushrooms
为了获得更通透开阔的视野,建筑外墙结构,向屋脊方向移动。不同方向的结构汇聚,变成十字交叉点上的剪力墙桶。房子像蘑菇一样中心支撑像四面挑出。边界解除了结构的束缚,幕墙让室内室外合为一体。甚至因为十字交叉的格局,景深从远处一层一层拉近,院子,房子,院子;人们身处公共区域中,生活场景层叠展现。
▼剖面图,sections


To create a sense of spatial openness, the building’s structural framework recedes toward the roof ridge. Structural elements from different directions converge at the shear wall cores, forming the cross-shaped structural anchor. The house, much like a mushroom, is supported at its center while its eaves extend outward in all directions. Freeing the perimeter from structural constraints allows the façade to dissolve, merging the interior and exterior. The cross-shaped layout creates a view that moves from near to far—courtyard, house, courtyard again—revealing overlapping scenes of daily life.
▼庭院与檐下空间,courtyard and gray space under eaves


▼厨房,kitchen


▼客厅与壁炉,fireplace of the living room

▼书房,library

▼餐厅,dining area

玻璃幕墙上口框材如果直接做在檐梁的底部,室内就获得了两侧3米多高的通透开口。这一方面让家人缺乏庇护感,另一方面也要付出能耗上的代价。我们把檐梁下吊到2.4米的高度,檐口就像蘑菇伞边卷下来。这让室内既维持了一个舒适的高度,又让人们不至于被袒露在天地之间。艳阳高照或是大雨倾盆,坐在窗前的人们,就像躲在蘑菇下面的小虫,得以安顿。对内通透,对外则相反。建筑的唯一外立面正好也是出头的众多尽端空间之一。入口灰空间,顺着坡屋顶延续而下。且配合街道与地块的斜坡,砖砌院墙向内叠涩。整个建筑体量匍匐在路边。
▼模型,model

If the upper frames of the glass façades were aligned directly with the eaves, the interiors would have received over 3 meters of vertical glazing. However, this would have left the occupants feeling exposed and significantly increased energy consumption. Instead, we lowered the eaves beams to 2.4 meters, allowing the eaves to extend downward like the edge of a mushroom cap. This solution maintains a comfortable ceiling height while also creating a sense of shelter—whether under the bright sun or during heavy rain, those sitting by the window feel like small creatures nestled beneath a mushroom cap, protected and at ease. While the house remains open and transparent toward the courtyard, its outward-facing façade is quite the opposite. The only exterior-facing elevation is itself one of the terminal spaces. The entrance semi-outdoor space extends downward along the sloping roof, while the brick perimeter wall, responding to the outward slope of the street and site, steps inward as it rises. As a whole, the building sits low and unassuming against the roadside.
▼立面日景,day view of the entrance


▼入口,entrance

▼入口立面,entrance facade

构成十字交叉之家的要素有三,第一是四向出头的交叉建筑体量,以及由此带来公共私密空间的分离;第二是剪力墙内收,通过挑梁支起的伞状屋顶,本属于“结构之内”的空间转移到“结构之外”和“结构之间”;第三是通过屋顶和檐口高度上的变化,在天光和日常的穿梭中,建筑为主人拉回的安顿感。
Three key elements define the Cross House: first, the cross-shaped volume, which naturally delineates public and private spaces; second, the recessed shear walls and cantilevered roof, shifting enclosed structural space outward and between structural elements; and third, through the interplay of roof and eave heights, the architecture creates a sense of settling during daily life.”
▼庭院,courtyard

▼挑梁支起的伞状屋顶,the cantilevered roof

▼室内细部,details of interior

▼室内夜间灯光效果,lighting design of the house


▼卧室,bedroom

▼天窗,skylight

▼平面图,plan

▼立面图,elevation

▼剖面图,sections


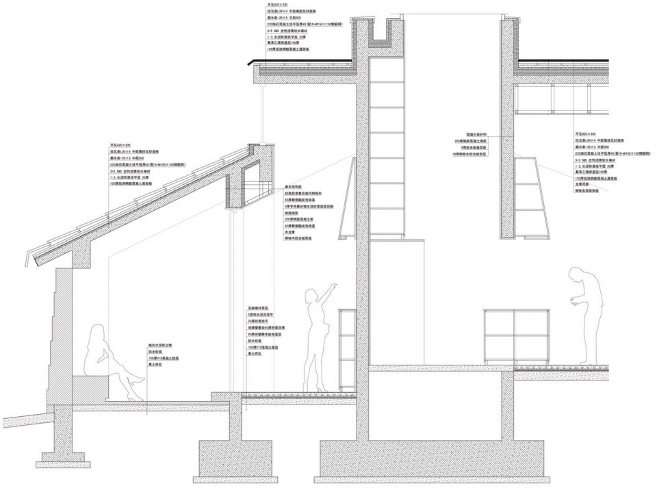
▼细部详图,construction details

Project name: House of Cross – A Shelter and Passage Beneath the Eaves
Project type: Private house
Design: chaoffice
Website: http://chaoffice.info/
Contact e-mail: chaobeijing@outlook.com
Design year: 2023
Completion Year: 2024
Leader designer & Team: CHENG Zhi, SHAO Jinrui
Project location: Xifa Village, Yujiawu, Tongzhou District, Beijing, P.R.China
Gross built area: 334㎡
Photo credit: ZHU Yumeng
Partner: Structure Engineering consultant: GAO Xuemei / Head of construction: ZHANG Youjiang
Materials: laminated eucalyptus plywood / Bridge-cut-off Aluminium Alloy Window
Brands: 东方港木业 / 京驰














