花园阁楼,雅加达 / RAD+ar
如果阁楼和屋顶的特征成为翻新房屋的身份和外观呢?花园上的阁楼由四个内向的体量构成,悬浮在郁郁葱葱的景观之上,在这些体量之间形成了倒置的空间。
What if the attic and roofing characteristics become the identity and façade of a renovated house? Attic above garden consists of four introverted volumetric masses that float above a lush landscape, creating inverted spaces between the volumes.
▼鸟瞰,aerial view

▼半鸟瞰,half-aerial view

▼入口鸟瞰,aerial view of the entrance

开放的布局设计消除了障碍,移除了空间内的墙壁和走廊。通过优化现有结构,设计确保所有地面以上的楼层都是开放式平面,尽量减少可能干扰流动的墙壁或重元素。
The open layout design eliminates barriers, removing walls and corridors within the space. By optimizing the existing structure, the design ensures that all floors above ground are open plans, minimizing walls or heavy elements that could disrupt the flow.
▼建筑外观,exterior of the building

▼悬挑的体量,the overhanging volume

▼天窗引入充足光线,skylights bring in plenty of light

这种方法创造了一系列交替的空间,具有亲密感和开放感、光与影的变化,通过家具在空间中的战略布局提供了成长的空间和变化的时刻,这与现有的结构和自然环境和谐互动。
This approach creates a series of alternating spaces characterized by intimacy and openness, light and shadow, offering room for growth and moments of variation through the strategic arrangement of furniture across the space, which interacts harmoniously with the existing structure and nature.
▼生活区,living room

▼客厅,living room


▼细部,details

▼厨房,kitchen

▼细部,details


所采用的材料是真诚和传统的,整体采用单色调的颜色和纹理,除了不锈钢的储藏室区域外,构成了现有白桦胶合板屋顶天花板的背景。阁楼主导着一致的浅棕色,与周围景观的自然色彩和谐相融,贯穿每一层。
The materials employed are honest and traditional, featuring monochromatic colors and textures throughout, with the exception of the stainless-steel pantry area are to constitute the background for the existing birch plywood roof ceiling. The attic is dominated by a consistent light brown hue, which harmonizes with the natural colors of the surrounding landscape that intersect through each floor.
▼阁楼,the attic space


▼下沉式休闲空间,sunken leisure area

▼细部,details


▼地面上的窗,window on the floor

▼干式洗手池空间,day area

▼细部,details


▼衣帽间,dressing space

▼细部,details


▼浴室,bathroom

连接各层的两个楼梯被隐蔽地集成,仅通过较深的颜色和多孔的质感加以区分。房屋的其余部分展示了更浅的颜色和光滑的表面,浴室则提供了意想不到的强烈色彩的爆发。
Both staircases connecting the floors are discreetly integrated, distinguished only by a darker color and porous texture. The remainder of the house showcases lighter colors and smooth surfaces, with the bathroom offering a surprising burst of more intense color.
▼视线的交互,circulation of sight


▼楼梯间,staircase

▼楼梯,staircase

设计中半几何形状的排列以及现有的木质元素,营造出适合基本居住功能的模糊和流动空间。通过利用现有框架——确定什么是足够的,什么可能是过剩或不足的——这些空间变得难以精确定义,模糊了界限和边界,创造出更流动的功能,同时室内将随着业主的添加而增强可移动元素。
The arrangement of semi-geometry within the design, alongside the existing wooden elements, fosters an ambiguous and fluid space suited for essential residential functions. By working with the existing framework—determining what is sufficient and what may be excessive or insufficient—the spaces become difficult to precisely define, blurring lines and boundaries to create a more fluid functionality while the interior will be enhanced by movable elements added over time by the homeowners.
▼儿童房,children‘s room


这座翻新房屋是为一对建筑师夫妇设计的,他们既寻求家居的私密性,又渴望充足的自然光照和绿色植被的VIP视野。
This renovated house is designed for an architect couple who sought both the privacy of a home and abundant openings for natural light, along with a VIP view of the greenery.
▼建筑外观夜景,exterior of the building at night


▼夜景细部,details at night

▼户外区域夜景,night view of outdoor area


▼夜景,night view

▼分析图,analysis diagram

▼分析图,analysis diagram

▼分析图,analysis diagram

▼一层平面图,ground floor plan

▼二层平面图,first floor plan

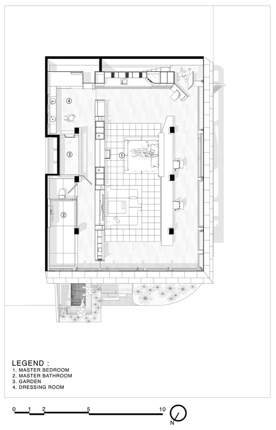
▼阁楼平面图,the attic floor plan

▼剖面图,sections



Project Name: Attic Above Garden
Office Name: RAD+ar
Office Website: http://radarchitecture.net/
Social Media Accounts: @radarchitects
Contact email: visionary@radarchitecture.net
Firm Location: Bali, Jakarta
Completion Year: 2025
Gross Built Area (m2/ ft2): 450 sqm
Project Location: Jakarta
Program / Use / Building Function: Renovation, House
Lead Architects: Melanie Regina Hutany, Antonius Richard Rusli
Lead Architects e-mail: visionary@radarchitecture.net
Architectural Designer : Jason Albert Halim, Veidika Dasta Fabian, Dessy Putri Rahmawati, Ahmad Sohir
Main Contractor : Lana Karya Construction
Photo Credits: Ernest Theofilus
Photographer’s Website: http://www.ernesttheofilus.com/
Photographer’s email: ernest.theofilus@gmail.com














