“云稻这里来”农文旅片区,象山 / 猜一建筑 + Increments Studio
宁波象山素以海岸风光闻名,而场地所在的墩岙村则位于海港以里、低岭之中的泗洲头镇,其风貌特点恰恰诠释了当地地名中常见的“岙”字含义。
Dun’ao Village (墩岙村) is nestled inland among low hills in Sizhoutou Town, known for it’s coastal scenery. The term “岙 (ào)” embodies the notion of a small valley enclosed by mountains.
▼“不思考的云”稻田咖啡馆,cafe in the field

▼“微微躺平”稻田放映厅,the leaning cinema in the field

▼“拨开那片海”稻田阅读室,the secret reading room in the field

▼岙:山中深奥处,三面环山的小型半盆地,Ao: a deep, secluded place in the mountains

首次来到场地,正值稻禾生长的季节,群山环抱的农田风光令人发自内心地舒畅。于是第一次与业主沟通时,我们便以小诗与插画的方式抛出对于场地的构想,并不拘泥于建筑范畴的条条框框。本项目天真而轻快的基调也源于初期这样的共识。
▼初期的概念诗想,conceptual illustrations

At the conception of the project, we believed it was important to capture the sense of serenity and peace among the farmlands surrounded by hills. Instead of typical architectural frameworks, we wanted to express these sentiments through a series of short poems and illustrations. This abstract and reductive approach prompted a reconsideration of the relationship between the body and nature, revealing the potential for it to be lighthearted and playful in nature.
▼场地现状:空置房与硬化面的再生利用,site existing situation

设计任务的初衷在于活化利用农田中空置许久的设备用房与硬化平台,赋予村口新的活力;而同时紧张的工期迫使业主在初期就提出了集装箱装配式建造的想法。在近年的文旅市场中,“集装箱建筑”已成为了一种模糊的范式,良莠不齐的产品与创意造成了大量的同质化。在与业主与运营方讨论后,我们决定在本项目尝试一种创新的采购型设计,将充气膜与集装箱这两种工厂预制产品通过不同的场景糅合,为“快速落地”与“灵活运维”的命题注入不一样的创造力。
The new structures are located in place of various abandoned structures that stood in the field, including old billboards, utility buildings and storage buildings. We investigated material systems that were both available and feasible for the project timeline and budget, ultimately selecting a combination of steel containers and inflatables. We believe these systems allowed for flexibility and quick installation. This prompted us to explore how these seemingly disparate elements could be integrated to create playful and distinctive spatial experiences.
▼采购型设计:充气膜+集装箱,design via procurement: inflatables+containers

「不思考的云」· 稻田咖啡馆 | the Cloud Cafe
点位一位于农田入口处原有的一处空置设备用房。作为农文旅片区,场地入口处对于改造后的“地标性”有着客观的需求。“不思考的云”不仅仅作为一朵概念上的云具备大众传播力,更可利用“云下”也就是气模所创造的大幅度悬挑空间——在不干扰现有农田的原则下,为场地提供了遮阳蔽雨的活动场所。
▼点位一设计策略,design strategy for the cafe

The first site is located at the entrance to the farmland, where an old utility building had long been unused. The site naturally called for a newly defined “landmark” at its gateway. The Cloud serves not only as a visually iconic concept with strong public appeal, but also creates a large cantilevered space beneath the inflatable. This sheltered area offers shade and rain protection for various activities—without disturbing the surrounding farmland.
▼云下的活动平台,the platform under the Cloud

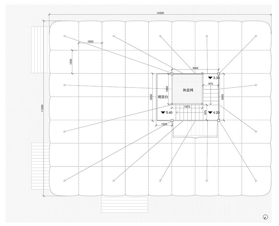
通过本项目我们也得以了解,所谓集装箱建筑大多并非由海运集装箱改造而来,只是采用标准钢构件在工厂预制,并在公路运输中具备集装箱的装卸尺寸,以节约现场落地时间。因此,我们需要在一个3×3×8m的标准塔身中安置一个紧凑的咖啡制作空间,并以此为支点服务“云朵”下的户外平台;而穿过“云朵”方可到达的塔顶瞭望台,则提供了一处观赏群山与稻田不同的视野。
▼“不思考的云”轴测图解,axo illustration of the Cloud Cafe

▼充气时9×12×2m的体积卷起运输时仅一人大小,the Cloud retracted for packaging

Steel containers are traditionally prefabricated off-site into standardized sizes to meet the requirements of their contents and transportation logistics. Instead of reusing a standard ‘off-the shelf’ container, the containers for this project were customized with standardized steel components and adapted to function as occupiable structures. Within this 3×3×8m standard tower unit, we designed a compact coffee station to serve the outdoor platform beneath the “cloud.” A viewing deck atop the tower—accessible only by passing through the “cloud”—offers a unique perspective of the surrounding mountains and rice fields.
▼“不思考的云”近景,the Cloud Cafe close shot

▼云上的瞭望台,the lookout above the Cloud

▼“不思考的云”向外望,the view from above the Cloud

「微微躺平」· 稻田放映厅 | the Leaning Cinema
第二处改造点位于现有的宣传牌。业主希望打造一个具备气候边界的沙龙空间,以供游客在冬夏季节也能够有一处休息或活动的场所。我们再次从最小化对于农田的干扰出发,通过两处结构支点将集装箱以15度倾斜放置,以此来形成室内的阶梯放映厅空间。而与此同时,撑起箱体的结构柱将由定制的环形气模包裹,这一动作不仅仅将结构与空调外机的检修口藏了起来,也形成了外观层面的一种俏皮把戏——沉重的箱体看似靠在轻软的气球之上,如同自然之中的一组巨大玩具。
▼点位二设计策略,design strategy for the cinema

The second intervention is located at an existing billboard. The client wanted to create a climate-controlled salon space where visitors could rest or gather across all seasons, even through winter and summer. Once again prioritizing minimal impact on the farmland, we tilted the container at a 15-degree angle so that the structure only uses two points of support, creating a slope for stepped interior space for screenings. These supporting columns are wrapped in custom inflatable rings—not only concealing the structural elements and AC access points, but also adding a playful visual twist: the heavy container appears to lean casually against soft, balloon-like forms, creating curious unfamiliarity in scale and material.
▼“微微躺平”远眺,view towards the Leaning Cinema

放映厅的室内面积仅30余平米,麻雀虽小,五脏需俱全——我们将幕布、投影仪、音箱、空调等设备一并整合到设计中,木丝板铺装既作吸音功能,也作墙体与吊顶的装饰面。而在地面上,我们在常规的木台阶之外增加了几处更贴合人体的曲面靠背,便于使用者躺下休息,这也更符合本点位“微微躺平”的整体定位。
▼“微微躺平”轴测图解, axo illutrastion of the cinema

The screening room covers just over 30 square meters—small, but fully equipped. We integrated the screen, projector, speakers, air conditioning, and other systems into the design. Wood wool panels serve both as acoustic treatment and as decorative finishes for the walls and ceiling. On the floor beyond the standard wooden steps, curved backrests were custom designed with ergonomic forms, shaped to fit the body, allowing visitors to recline comfortably. This detail aligns perfectly with the laid-back spirit of the “Leaning Cinema.”
▼“微微躺平”稻田放映厅内部,the cinema interior

▼山岭环抱下的稻田放映厅,the cinema surrounded by hills


▼稻田放映厅入口,entrance of the cinema

「拨开那片海」· 稻田阅读室 | the Secret Reading Room
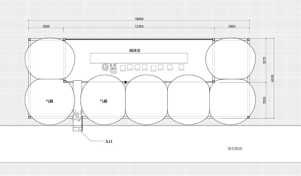
点位三也是一处空置的设备用房,其最靠近农田内侧的山脚下,安静而视野开阔,因此很适合改造为一个田野之上的阅读空间。我们在思考本点位时也试图去创造第三种使得气模与集装箱发生联系的语言——最终,提出以七颗球体来填充一个架空于稻田之上的钢结构框架。
▼点位三设计策略, design strategy for the reading room

The third site is another unused utility building, located at the foot of the hills. Quiet and with an open view, it was ideal for transforming into a reading space above the farmland. For this site, we sought a third way to connect inflatable forms with containers. We arrived at seven spherical inflatables placed within a steel frame elevated above the rice fields.
▼“拨开那片海”远眺,view towards the Secret Reading Room

这些球体形成了一圈没有“门”的墙,人们需要拨开它们方能进入到内部。许多访客反馈说,直到后来进入阅读室身体与气模相接触时,才发现它们并非是坚硬的,而是一颗颗可以推挤的、柔软而有弹性的大气球。这也正是常规的建筑材料所不具备的一种特质。
These soft spheres form a circular “wall” without a door, where visitors must part them to enter. Many visitors later remarked that it wasn’t until their bodies touched the inflatables, that they realized the spheres weren’t solid, but soft, bouncy balloons. This tactile surprise is something conventional building materials rarely offer.
▼气球间需要拨开的入口, the path between spheres

▼被藏起来的阅读室, the hidden reading room

▼阅读室在乡间小道上,people passing by the reading room

阅读室是一个半室外的空间,氧化铝板吊顶、不锈钢书桌和地面隔栅的金属材质与气模的白且圆润产生一种冷酷与可爱的对比。在炎热的天气,因较高的气温球体胀得尤其饱满圆滚,南侧室外明亮的日光在过滤后照入屋顶下方,与半反射的吊顶面一同构成一种特别的阴影效果。
▼“拨开那片海”轴测图解, axo illustration of the reading room

The reading room is a semi-outdoor space, where the metallic materials—aluminum panel ceiling, stainless steel desks, and gridded floor panels—contrast strikingly with the inflatable’s smooth, white, and rounded form, creating a blend of cool austerity and playful softness. In hot weather, the spheres become especially plump and taut due to the higher temperature. Bright sunlight from the south side, once filtered, enters beneath the roof and, together with the semi-reflective ceiling surface, creates a unique shadow effect.
▼稻田阅读室室内,the reading room interior


技术、实验与本地施工 | Technique, Experiment & Local Construction
气模往往被应用在临时装置美陈中,本次项目将其考虑为建筑长久的一部分,对气模的耐久性、维护性以及表达概念的形式性都提出了非常规的挑战。为此,我们团队在落地过程中投入了大量的研究时间,并在制造单位的配合下进行了多轮的打样实验。
Inflatables are often used in temporary installations, but in this project, they were conceived as a permanent part of the architecture. This unconventional approach posed significant challenges in terms of durability, maintenance, and the formal expression of the concept. To address these, our team dedicated substantial time to research during the implementation phase and carried out multiple rounds of prototyping in close collaboration with the manufacturer.
▼“不思考的云”1:20 模型充气测试,the Cloud 1:20 inflation test

▼“不思考的云”1:4 打样充气测试,the Cloud 1:4 inflation test


▼“不思考的云”1:20 | 1:4 | 1:1 全家福,the Cloud cafe mock-ups in 3 scales

首先对于三个点位不同的情况,我们需采用不同的充气方式。点位一“不思考的云”因为其较大的体量以及面对恶劣天气时需收起的要求,我们听取制造方的建议使用了持续充气的PVC夹网布工艺,2米高的四周与100平米大的底部伴随缝合线留有大量气孔,运营时由两台风机持续在塔内输送气压,这就意味着在长期的使用中即便表面有意外破损也不会影响气模充盈,而这一做法也使得“云”的用料重量相比闭气装置下降了一半。
▼打样-现场安装步骤对照,prototyping v.s. final assembly

Due to differing site conditions, we used different inflation methods for each of the three points. For the Cloud Cafe its large size and need to retract in bad weather led us to adopt a continuously inflated PVC mesh system. With air vents along its 2m-high sides and 100㎡ base, two blowers maintain internal pressure—ensuring stability even if punctured, and cutting material weight in half compared to sealed inflatables.
▼“不思考的云”1:4工厂打样实验记录,the Cloud prototyping record

从最初的1:20手工模型,到工厂的1:4充气打样,再到最终的1:1施工,整个过程不光试验了气模在此大尺度下充起的可行性,更是反复演练了现场施工的顺序——对于采购式的项目而言,安装步骤本就是设计需预先考虑的重要部分。
From the initial 1:20 handmade model to the 1:4 inflatable prototype at the factory, and finally the full-scale 1:1 construction, the process not only tested the feasibility of inflating at such a large scale, but also served as repeated rehearsals of the on-site assembly sequence—an essential consideration in design for procurement-based projects.
▼“微微躺平”环型气模1:2打样迭代,the cinema blob prototyping iterations

而点位二与点位三则不同,因为其气模都呈现饱满的球体,我们使用了闭气的加厚PVC材质,并且通过无缝焊接的工艺最终塑造表面的光滑与圆润。点位二“微微躺平”在1:2的打样过程中也浮现了一系列数字建模中难以预料的问题:首先是材料与空气本身的重量使得气模实际会有较大幅度的下坠,其次是环形尾部如何能够在充气后仍然严丝合缝地闭合。这些问题都在与制造方一同的多轮比例与工艺调整中逐步解决。
For the cinema and the reading room, since both inflatables are fully rounded spheres, we used sealed, thickened PVC with seamless welding to achieve a smooth, glossy surface.During the 1:2 prototyping of the cinema inflatable, several unexpected issues emerged: the combined weight of the material and air caused noticeable sagging, and it was challenging to ensure the ring-shaped tail closed tightly after inflation. These problems were gradually resolved through multiple rounds of scale adjustments and fabrication refinements with the manufacturer.
▼与本地师傅、阿姨共同完成的落地流程,collaboration with local workers

虽然主体箱结构与气模都由工厂预制后运输到场地,项目中仍然涉及一部分现场施工内容,如阅读室的铝板吊顶、金属网护栏及各点位气模非常规式的安装。预制产品前期的误差加上本地人员对于新做法的不熟悉致使现场沟通的重要性远大于图纸交付。在接近一个月的驻场后最终效果基本按方案完成,本地师傅、阿姨由最初的半信半疑到最后看到效果也会发出“确实挺好看”的认可。
▼与方案并行的“云稻这里来”策划与产品设计,visual merchandising and branding

Although the main structure and inflatables were prefabricated, on-site work was still needed, like the ceiling, railings, and inflatable installation. Early errors and unfamiliar methods made communication more crucial than the drawings. After nearly a month, the result matched the plan, and local workers, once skeptical, acknowledged, “It really looks good.
▼“云稻这里来”现场施工记录,construction image

从策划到方案设计到产品深化再到后期的施工驻场,本项目体量虽小,对于本团队而言却是一次农文旅全流程的实践尝试。正如全国大部分的农文旅项目,业主、运营方、设计方往往都在经验的摸索与积累,过程难免阻力与反复,但回顾项目落地的短短数月内各方的坚持与配合,正如片区名“云稻这里来”一般,是轻快而有趣的。
Although small in scale, this project was a comprehensive practice for our team in agricultural and cultural tourism. Like most projects in this field, it involved learning through experience, with challenges and revisions along the way. In the end, thanks to everyone’s cooperation, the result was playful and enjoyable, much like the name “Down in the Clouds ”.
▼“不思考的云”平面图,the Cloud Cafe plan

▼“不思考的云”剖面图,the Cloud Cafe section

▼“微微躺平”平面图,the Leaning Cinema plan

▼“微微躺平”剖面图,the Leaning Cinema section

▼“拨开那片海”平面图,the Secret Reading Room plan

▼“拨开那片海”剖面图,the Secret Reading Room section

Project Name: ‘Down in the Clouds’Farm Field Renovation
Project Type: Renovation /Installation
Project Location: Dun’ao Village, Xiangshan,Ningbo, Zhejiang Province
Completion Date: April 2024
Site Area: 150㎡
Building Area: 290㎡
Design: Practice on Earth + Increments Studio
Contact Information:
Practice on Earth: http://www.practiceonearth.com
Increments Studio: http://www.incrementsstudio.com
Design Team:
Wu Haotian, Wang Yun, Lü Yancheng (Practice on Earth)
Hu Liang, Naomi Ng (Increments Studio)
Client: Dun’ao Village Collective Economic Cooperative
Operator: Ningbo Xiangwang Cultural Tourism Co., Ltd.
Inflatable Manufacturer: Shanghai Congxi Equipment
Local Construction Team: Huang Lunyü, Wang Haihua, Master Song, and others
Container Fabrication: Ye Zhongdong’s Team
Photography Credit: Wang Yun














