南海未来城流量经济港,盐城 / 华东建筑设计研究院有限公司|宣发
近期,由华东建筑设计研究院有限公司原创全过程设计的南海未来城流量经济港正式竣工并投入使用。南海未来城是盐南高新区“科创赋能、项目引领、产业主导”战略目标,打造“绿色会客厅、现代数字谷、创新活力城”,全力建设“创新之核”的重点板块。南海未来城流量经济港项目紧邻南海公园,于2024年荣获缪斯奖铂金奖。
Recently, the Nanhai Future City Flow Economy Harbor, designed by East China Architecture Design & Research Institute (ECADI), has been completed and officially put into use. s a key component of Yan’an High-tech Zone’s strategy of “science and technology innovation, project leadership, and industry dominance,” Nanhai Future City aims to build a “Green Living Room, Modern Digital Valley, and Innovative Vitality City” and is committed to constructing an “Innovation Core.” The Nanhai Future City Flow Economy Port project is located by Nanhai Park and was awarded the 2024 Muse Platinum Award for its innovative design and significant contribution to urban development.
项目以“生态赋能、科创引领、产城融合”为核心理念,将滨海湿地生态与科创办公功能有机融合,打造了一座集研发办公、企业孵化、商业配套于一体的智慧科创综合体。其设计不仅响应了盐城建设“长三角北翼科创高地”的战略定位,更通过“立体绿化、弹性空间、低碳技术”等创新设计手法,重新定义了沿海城市科创园区的开发模式。项目以“云廊步道”“湿地客厅”“光影立面”等标志性设计,成为盐城南海科创带面向未来的“创新会客厅”,展现了沿海新兴城市在生态文明与科技创新协同发展上的示范意义。
The project adopts the core philosophy of “Ecological Empowerment, Innovation Leadership, and Integration of Industry and Urban Development,” seamlessly blending coastal wetland ecosystems with innovative office functions. It creates a smart innovation complex that integrates R&D offices, enterprise incubation, and commercial amenities. The design not only responds to Yancheng’s strategic positioning as a “Science and Innovation Hub in the Northern Yangtze River Delta” but also redefines the development model for coastal innovation parks through innovative design strategies such as “vertical greening, flexible spaces, and low-carbon technologies.”Through signature design elements like the “Cloud Walkway,” “Wetland Living Room,” and “Light and Shadow Facade,” the project has become the “Innovation Living Room” of Yancheng’s Nanhai Innovation Belt, facing the future. These elements not only highlight the project’s architectural uniqueness but also demonstrate the exemplary significance of emerging coastal cities in achieving coordinated development between ecological civilization and technological innovation.
▼项目概览,overview of the project

因势而筑,蓝绿交织的科创门户Harmonious Design, Blue-Green Innovation Gateway
区位优势:项目位于盐城南海科创带核心启动区,西临湿地生态廊道,兼具生态敏感性与城市联动性。
设计理念:以“水韵盐城、科创未来”为核心理念,建筑布局顺应湿地水系走向,形成“低密组团+生态渗透”的空间结构。
城市衔接:通过架空连廊、滨水步道与城市慢行系统无缝对接,打造“科创+生态”的示范性节点。
Location Advantage:The project is situated in the core launch area of Yancheng’s Nanhai Innovation Belt, bordered by a wetland ecological corridor to the est . This strategic location balances ecological sensitivity with urban connectivity.
Design Philosophy:Guided by the concept of “Water Rhythm of Yancheng, Innovation Future,” the architectural layout follows the natural flow of the wetland water system, creating a spatial structure of “low-density clusters with ecological permeability.”Urban Integration:
The project seamlessly integrates with the city through elevated walkways, waterfront promenades, and connections to the urban slow-path system, establishing a demonstrative node that combines “innovation and ecology.”
▼项目区位,location of the project

▼项目街景,street view of the project


立体生态,高密度中的自然呼吸Vertical Ecology: Natural Respiration Within High-Density Urban Fabric
垂直绿化体系:构建“下沉庭院—地面湿地—空中露台—屋顶花园”四级生态网络,实现建筑与湿地的微气候交互。
核心景观节点:中央“云廊”立体步道串联各栋建筑,形成俯瞰湿地的观景平台;裙房屋顶的雨水花园兼具蓄水与生物栖息功能。
生态技术应用:采用海绵城市设计,透水铺装、生态草沟与湿地水系联动,年径流控制率达85%以上。
A four-tier ecological network—”sunken courtyard—ground-level wetland—sky terrace—rooftop garden”—is integrated into the design, enabling microclimate interaction between the building and the wetland.
The “Cloud Walkway,” a three-dimensional elevated promenade at the core of the project, connects all buildings and serves as a viewing platform overlooking the wetland. The podium rooftop rain garden combines water retention with habitat creation, enhancing ecological functionality.
Sponge city principles are employed, with permeable paving, ecological swales, and integrated wetland water systems. This design achieves an annual runoff control rate
exceeding
85%, ensuring sustainable water management.
▼实现建筑与湿地的微气候交互,microclimate interaction between the building and the wetland


▼垂直立体的形态,vertical form

▼从底层仰视塔楼,Looking up at the tower from the ground floor

灵动空间,适应科创企业的生长逻辑Adaptable Spaces, Tailored for the Growth Patterns of Tech Innovation Enterprises
模块化办公单元:采用30米大跨度结构,实现办公空间自由分割,满足初创企业到规模企业的全周期需求。
共享创新枢纽:每栋楼设置“共享连廊”,整合会议、协作办公区与休闲咖啡吧,激发跨领域交流。
首层共享办公区可转化为临时展览、市集或科创发布会场,创造多功能空间应用场景。
Modular Office Units:
Featuring a 30-meter span structure, the design enables flexible partitioning of office spaces, catering to the evolving needs of enterprises from startups to scaled businesses.
Shared Innovation Hubs:Each building includes a “shared corridor” that integrates meeting spaces, collaborative work areas, and casual café zones, fostering cross-disciplinary interaction and innovation.Flexible Spatial Transformation:
The ground-floor shared office areas can be transformed into temporary exhibition spaces, markets, or innovation launch venues,creating multifunctional space applications.
▼共享创新枢纽,shared innovation hubs



▼共享连廊,shared corridor


▼底层群房,podium at the ground floor

地域美学,传统与现代的对话Regional Aesthetics: A Dialogue Between Tradition and Modernity
立面语言:以“盐田肌理”为灵感,幕墙采用横向错动的铝板线条,模拟滩涂层叠的韵律感,局部采用金属拉伸网,形成动态光影。
材料在地性:主材选用本土再生材料,呼应盐城“红滩绿苇”的湿地色彩,降低碳足迹。
科技赋能:智慧幕墙系统,南向立面采用自适应遮阳百叶,能耗较国标降低10%。
▼墙身大样,wall detail




Facade Language:
Inspired by the “salt field-inspired patterns,” the facade features horizontally staggered aluminum panels that mimic the layered rhythm of tidal flats. Metal stretched meshs are embedded in certain areas to create dynamic light and shadow effects.
Material Locality:
The primary materials are locally sourced recycled materials, echoing Yancheng’s wetland colors of “red beaches and green reeds” while reducing the carbon footprint.
Technology Integration:
A smart facade system is implemented, with south-facing facades featuring adaptive shading louvers. This technology reduces
energy consumption reduced by 10% below national standards.
▼幕墙采用横向错动的不锈钢波纹板,the facade features horizontally staggered stainless steel corrugated panels

▼模拟滩涂层叠的韵律感,mimic the layered rhythm of tidal flats

▼形成动态光影,create dynamic light and shadow effects


▼以“盐田肌理”为灵感的幕墙系统,the facade system inspired by the“salt field-inspired patterns”


智慧园区,数字孪生赋能管理Smart Park, Empowered by Digital Twin Technology
低碳交通网络:地下智慧车库配备充电桩与无人接驳车,衔接园区共享单车及公交站点,绿色出行率达90%。
未来预留接口:为5G基站、无人机物流配送等智慧场景预埋基础设施,保持园区技术前瞻性。
Low-Carbon Transportation Network:The underground smart garage is equipped with charging stations and unmanned shuttle vehicles, connected to shared bicycles and bus stops within the park. This integrated system achieves a green travel rate of 90%.Future-Ready Infrastructure:Pre-buried infrastructure supports future smart scenarios such as 5G base stations and drone logistics delivery, ensuring the park’s technological foresight.
▼园区交通网络,transportation network



▼园区交通网络,transportation network

南海未来城流量经济港,以生态为基底、以科创为引擎,重新定义了沿海城市产业空间的范式。它不仅是企业成长的“物理容器”,也是盐城市科创的重要载体。在这里,湿地的呼吸与键盘的敲击同频,传统产业的转型与新质生产力的萌芽共生,见证一座城市的未来雄心。
Rooted in ecology and driven by innovation, Nanhai Future City Flow Economy Port redefines the paradigm of coastal urban industry spaces. It is not merely a “physical container” for enterprise growth but also a key enabler of Yancheng City’s innovation-driven development. Here, the rhythm of wetlands and the tapping of keyboards resonate in harmony, while the transformation of traditional industries coexists with the emergence of new productive forces, witnessing the city’s ambition for a future of innovation and sustainability.
▼夜景,night view

▼夜景鸟瞰,aerial view at night

▼模型,model

▼场地平面,site plan

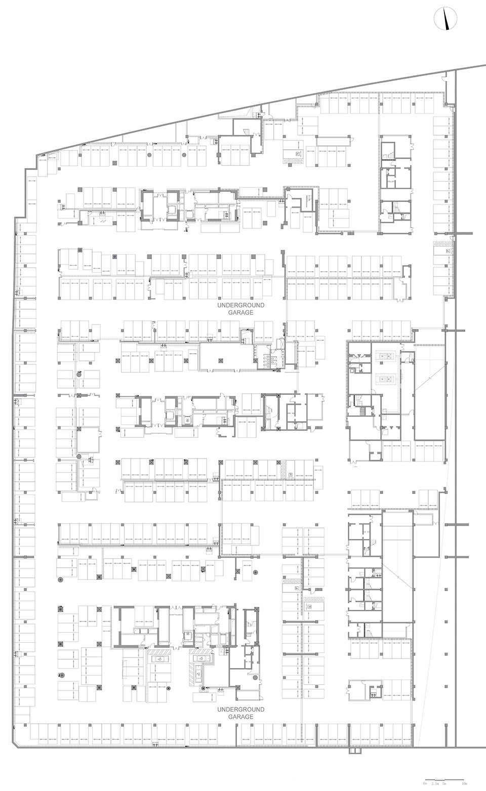
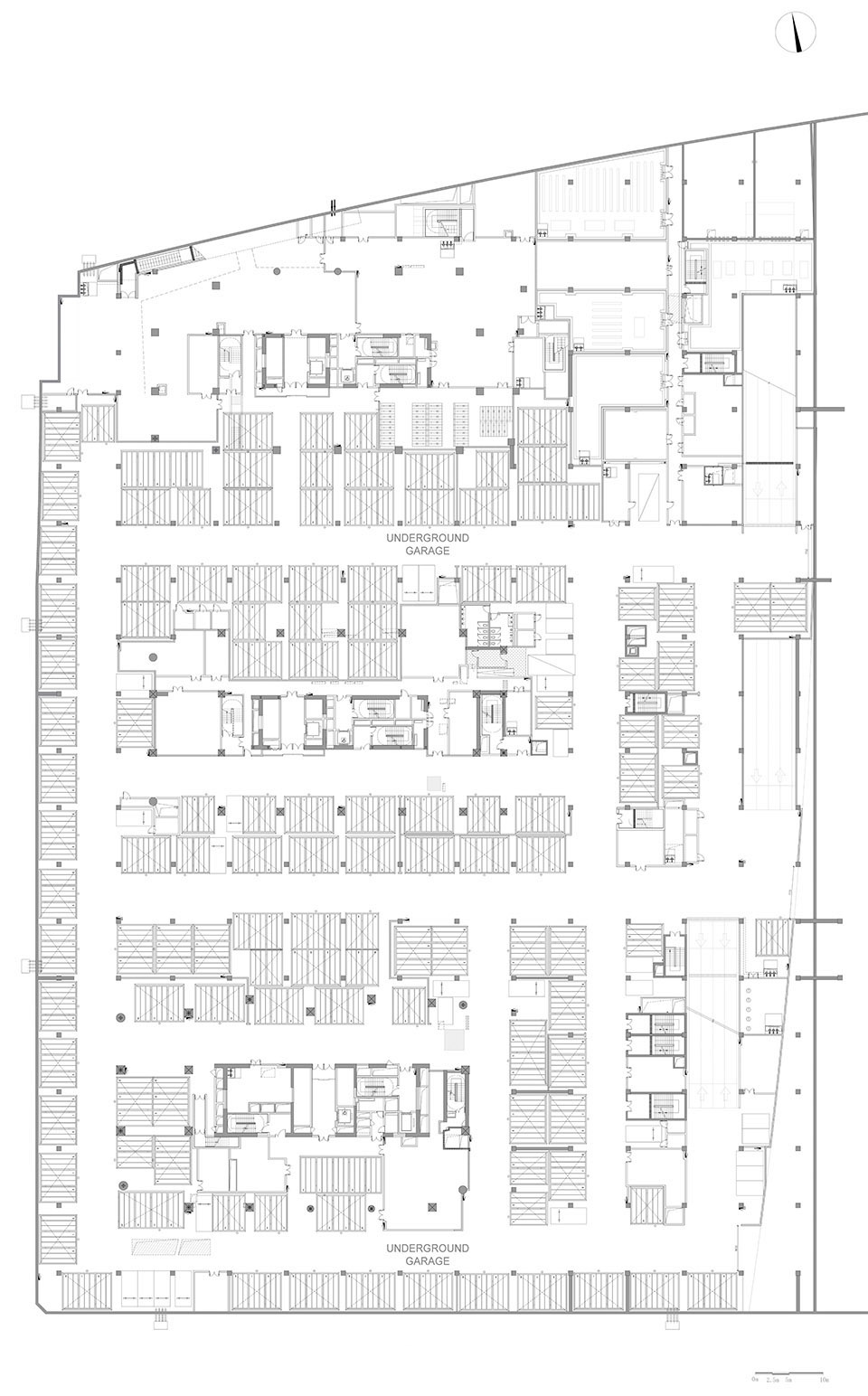
▼地下一层及二层平面,lower basement plan


▼一层整合平面,ground floor plan

▼二层整合平面,first floor plan

▼八层整合平面,8th floor plan

▼屋面层整合平面,roof floor plan

▼立面,elevation


▼剖面,section

▼1#楼A – A剖面,Building 1 section A – A

▼2#楼B – B剖面,Building 2 section B – B

▼3#楼C – C剖面,Building 3 section C – C

Project Name: Nanhai Future City Flow Economy Harbor
Design General Contractor: East China Architectural Design & Research Institute Co., Ltd.
Business Division: Division One
Design Principalt: Dean Yu
Architectural Design: Li Xicheng, Dong Lili, Wang Guanxi, Wang Chongyu, Zhou Yangping, Xi Hanyu, Xiao Chang, Li Le, Huang Wenqian, Han Siheng
Structural Design: Wang Rong, Gu Chaoyang, Liu Qian
MEP Design: Qiu Yikan, Zhang Liang, Wu Liren, Wang Shuying, Chen Yedong, He Xin
Lighting Design: Miao Hailin, Zhao Zhengda
Brand Promotion: Wu Hao, Ding Ming, Wu Yunxi
Location: Nanhai Future City, Yancheng, Jiangsu Province
Client: Yancheng Chengnan New District Development and Construction Investment Co., Ltd.
Client Representatives: Zhang Sheng, Sun Dianqiao, Wang Xiao
Construction General Contractor: Jiangsu Hanjian Group Co., Ltd.
Media Production:Jieyi Architecture Photography Studio














