Gyöngyszem幼儿园改造,匈牙利 / Archikon Architects
建于 1970 年代末期,Gyöngyösi 街上的十层预制板住宅楼围绕着一条绿树成荫的绿色步道,步道两旁分布着小型零售建筑、一所托儿所、一所幼儿园和一所学校,其中包括Gyöngyszem幼儿园。原有建筑为单层平屋顶的预制板结构,中间设有走廊。
Built in the late 1970s, the ten-story prefabricated apartment blocks on Gyöngyösi Street surround a tree-lined green promenade with small-scale retail buildings, a nursery, a kindergarten, and a school, including Gyöngyszem Kindergarten. The existing building was a flat roof single-story, flat-roofed, prefabricated paneled house with a central corridor.
▼项目外观,exterior of the project


由于该建筑存在功能问题、室内空间狭小、缺乏公共空间和联通区域、交通系统不合理,以及亟需能源现代化与无障碍改造,第十三区政府决定对这座破旧建筑进行翻新和扩建。
▼原始场地,existing site

The District XIII Municipality has decided to renovate and extend the building – which was in a dilapidated state – due to functional problems, small interiors, lack of common areas and interconnected spaces, and a poor circulation system, along with the need for energy modernization and accessibility.
▼改造后外观,exterior after renovation

此次改造的目标是打造一个和谐的环境,结合可持续性和数字化发展的理念,建设一所“智慧幼儿园”——一个能够为教育与发展提供最新工具的机构。
The aim was to create a harmonious environment that takes sustainability and digital advancements into account, fostering a so-called smart kindergarten: an institution that provides the latest tools for education and development.
▼打造一个和谐的环境,create a harmonious environment

在保留原有建筑的基础上,新增了一层楼。双层结构中设有夹层,并引入了联通空间,便于开展社区活动,实现两层之间的互动交流。除了十间教室外,发展与活动室也扮演着重要角色:它们为运动、创意活动、烹饪以及个体与人际能力的发展提供空间,并融入健康生活方式的教育理念。
▼改造策略,renovation strategy

The existing building was retained, but a new floor was added – the two-storey sections have mezzanines, with connecting spaces for community activities, allowing interactions across the two floors. In addition to the ten classrooms, the development and activity rooms play a central role; providing space for movement, and creative activities, as well as cooking and developing individual and interpersonal skills as part of a healthy lifestyle education.
▼中庭的旋转楼梯,spiral staircase at the center

▼中庭的旋转楼梯环绕着景观,spiral staircase in the atrium wraps around the landscape

夹层通过楼梯通往庭院,连接至受儿童游戏积木形状启发而设计的趣味性家具。
From the galleries, staircases lead towards the courtyard, arriving at playful furniture inspired by the shapes of the children’s games, the building blocks.
▼中庭的楼梯,staircase at the atrium


为了突出入口的标识性——传承建筑与美术结合的传统——立面上融入了一件珐琅艺术作品。为了进一步提升入口区域的感受,自然光线的引入与强调在设计过程中起到了关键作用。
To emphasize the entrance – reviving from the tradition of the interconnection of architecture with fine arts – a fire-enamel art piece was incorporated into the facade. To further enhance the arrival area, the definition of natural light accents played an important role in the design process.
▼立面的珐琅艺术作品,a fire-enamel art piece at the entrance

Gyöngyszem 幼儿园此次焕新背后的理念,是展示预制建筑也能转变为一个环保节能、可持续、有趣而宜居的空间,同时也能打造独特的智慧建筑和智慧教育体系。
The idea behind the renewal of the Gyöngyszem Kindergarten was to show that a prefabricated nursery can be transformed into an environmentally and energy-conscious, sustainable, playful, and liveable space, in a way that allows for a unique smart building and a smart education program.
▼有趣而宜居的空间,a playful and liveable space

▼场地平面,site plan

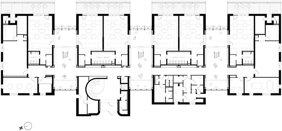
▼一层平面,ground floor plan

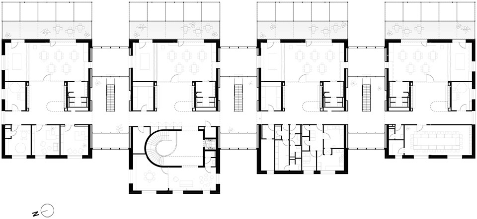
▼二层平面,first floor plan

▼剖透视,perspective section


Project Name: Gyöngyszem Kindergarten
Location: 1138 Budapest, Gyöngyösi Promenade 5.
Year of design: 2020-2022
Year of completion: 2024
Gross built area: 2860 m2
Office name: Archikon Architects
Website: https://www.archikon.hu/
Social media:
https://www.instagram.com/archikon_architects/
https://www.facebook.com/Archikon/
Contact email: office@archikon.hu
Lead architects: Csaba Nagy, Károly Pólus
Architects: Flóra Bordás, Noémi Petró, Jakab Urbán, Bianka Varga, Bence
Várhidi, Nikoletta Zsidai, Miklós Batta
Mechanical engineer: PHQ Kft.
Supporting structure: ÉKI Terv Mérnökiroda Kft.
Electrical engineer: AP-Lightworks Kft.
Fire protection: Decsi György, Fireeng Kft.
SMART building automation, RFID: Miskolczy Energiaterv Kft.
Client: Budapest Capital 13th District Mayor’s Office
Contractor: BUILD IT Mérnökiroda Zrt.
Photographer: Balázs Danyi
Photographer’s email: studio@balazsdanyi.com
Photographer’s website: https://balazsdanyi.com/ https://vzt.hu/
Photographer’s instagram: https://www.instagram.com/balazsdanyi/
Photographer: Balázs Koch
Photographer’s email: balazskoch@gmail.com














