Oskar之家,捷克 / Jan Žaloudek Architekt
巴洛克花园中的现代住宅 Modern House in a Baroque Garden
由建筑师Jan Žaloudek设计的Oskar之家,坐落于南波希米亚村庄Kamenná Lhota的一片宽阔花园中。这片土地原属于邻近的城堡,独特的场地精神由巴洛克时期谷仓的遗迹、几百年树龄的古老乔木以及环绕庭院的石墙共同营造,石墙向外敞开,将庭院延伸至如画的乡村景观。
The House Oskar, designed by architect Jan Žaloudek, was built in a generous garden that originally belonged to the neighbouring chateau in the South Bohemian village of Kamenná Lhota. The site’s remarkable genius loci is enriched by the remnants of a Baroque barn, centuries-old mature trees, and a stone wall that frames the expansive property, opening into the picturesque rural landscape.
▼项目概览,Overall view

沉思、启发与休憩 Contemplation, Inspiration, Recreation
这座住宅体现了沉思、启发与休憩的理念,由建筑师为自己和家人亲手打造。他与妻子——艺术史学家、作家Jolanta Trojak——长期以来梦想拥有一个既能与自然景观深度连接,又能向内沉潜、恢复身心能量的地方。他们希望营造一个不仅适合休憩、同时也是激发创造与灵感的源泉——这些特质已成为他们日常生活的重要部分。
The house, embodying the philosophy of contemplation, inspiration, and recreation, was built by the architect for himself and his family. Together with his wife, art historian and writer Jolanta Trojak, they long dreamed of a place where one could connect with the landscape or retreat inward to restore physical and mental strength. They envisioned a space that not only invites rest but also serves as a wellspring of creativity and inspiration—qualities integral to their everyday lives.
▼远观,Distant view


他们以对细节的极致关注,打造了一个让最简单的日常行为也能升华为深刻体验的空间。Oskar之家成为一个独特的微观世界——一个在睡眠、阅读、用餐与创作中,与窗外宇宙形成共生关系的安宁圣地。
With meticulous attention to detail, they created a space where even the simplest daily routines transform into small, profound experiences. The House Oskar is a unique microcosm—a harmonious sanctuary for sleeping, reading, dining, and creating, all in symbiosis with the universe outside its windows.
▼树木掩映间的小屋,Small house hidden among trees


完美、瑕疵与永恒Perfection, Imperfection, Timelessness
住宅的设计受限于当地地形和作为文化保护地块的建造要求。建筑师小心地将建筑融入环境与历史背景中,确保其不会喧宾夺主压过城堡的存在感,并赋予建筑一种超越时间感的气质。灵感部分来源于村庄中缺失的教堂意象,这座建筑最终成为新与旧、内与外、完美与不完美之间和谐交融的体现。
The house’s design was shaped by the local topography and the constraints of building on a culturally protected site. The architect carefully integrated the building into the landscape and historical context, ensuring it did not overshadow the château and exuded a timeless character. Inspired by the idea of a chapel—lacking in the village—the resulting architecture is a harmonious blend of contrasts: new and old, interior and exterior, perfection and imperfection.
▼建筑立面,Facade

住宅继承了当地民居狭长体量与双坡屋顶的传统形式,借鉴了乡村农用建筑的设计语言。穿孔砌体——在附近历史建筑中用于引入光线与空气的做法——成为建筑的重要特征。这一元素不仅为南向山墙立面提供遮阳,也启发了其他立面上木质遮阳板的设计图案。紧凑的体量在各立面上镶嵌壁龛,呼应巴洛克建筑的形式语言,这些壁龛形成玄关与廊台,灵活调节遮阳与开敞。住宅可以完全向景观敞开,与外界连通,也可封闭内收,突出其冥想性质。
The design respects the traditional elongated form of houses with gabled roofs, drawing on the vocabulary of local agricultural buildings. Perforated masonry, with openings for light and air found in nearby historical structures, serves as the building’s defining feature. This detail acts as a sunshade for the southern gable wall and inspires the pattern of wooden shading panels on the other façades. The compact form of the house is permeated by niches on each façade—references to Baroque morphology. These niches form entry vestibules and loggias, allowing flexible shading. The house can either fully open to the landscape, connecting its residents to the world, or close off to highlight its meditative character.
▼一日之内的立面,Facade

建筑材料尊重了周边建筑与景观的在地特性。承重结构采用保温陶砖砌体并局部结合钢筋混凝土。白色抹灰外立面呼应了邻近房屋的色调与肌理。屋顶覆盖着烧制陶瓷瓦片,遮阳板则由涂白的捷克冷杉与云杉制成。
The building materials honor the local character of the surrounding structures and landscape. The load-bearing structure consists of insulated ceramic masonry combined with reinforced concrete elements. The white stucco façade echoes the tone and texture of neighboring buildings. The roof is clad with fired ceramic tiles, and the shading panels are made from whitewashed Czech fir and spruce.
▼鸟瞰室外露台,Bird’s eye view of outdoor platform

自然周期与光线 Natural Cycles and Light
住宅生活与自然周期及光线运动紧密相连。从卧室与主起居空间眺望,可俯瞰果园,观赏日出与月升。南立面上的穿孔山墙和巨大的圆形窗户将社交空间与庭院及谷仓遗迹联系起来。宽大的开口将室内与室外无缝连接,延伸至木质露台、繁茂绿植与古老石墙的清凉怀抱中。
Life in the house is intimately connected to natural cycles and the movement of daylight. From the bedroom and the main living space, which opens onto a panoramic view of the orchard, residents can observe the sunrise and moonrise. The southern façade, with its perforated gable wall and impressive circular window, connects the social space with the courtyard and the barn ruins. Generous openings seamlessly merge the interior with the exterior, extending into wooden terraces, lush greenery, and the cool embrace of historic stone walls.
▼起居空间,Living space

西立面的入口壁龛遮挡了来自村庄方向的视线;而北立面的拱形壁龛为卧室、浴室和辅助空间引入光线,呼应了邻近巴洛克城堡的曲线造型。
白色遮阳板可在一天之中调节阳光渗透。阳光充盈的房间可瞬间变为光影交错、充满魔幻氛围的静谧空间。夜晚来临时,光线方向反转,住宅透过发光的壁龛向外照亮乡村。室内使用极简主义白色灯具,并以日本和纸灯笼和壁炉跳跃的火光补充照明。
The western façade, with its entry niche, shields the house from village views. A vaulted niche in the northern gable brings light into the bedroom, bathroom, and utility spaces, echoing the curved forms of the nearby Baroque château. The penetration of sunlight into the interior can be regulated throughout the day using white shading panels. A sunlit room can quickly transform into a magical, enclosed space where light and shadow play mesmerizingly. At night, the light reverses direction, and the house, illuminated by its glowing niches, shines into the landscape. The interior is illuminated by minimalist white fixtures, complemented by Japanese washi paper lanterns and the flickering glow of a wood-burning stove.
▼餐厅,Dining space

神圣的灵感Sacred Inspiration
在传统的建筑形态下,室内空间展现出独特的原创性。与外部的白色立面形成对比,内部空间温暖而圆润。主空间设有高达七米的宽大拱形天花板,强调了空间的神圣感。白色抹灰墙面与大型铝框窗户进一步增强了空间的轻盈与空灵感。南侧山墙上的两米直径圆形窗洞,再次呼应了教堂建筑语言。
Behind the house’s traditional morphology lies an original interior. In contrast to the white exterior, the inside is warm and rounded. The main space surprises with a generously vaulted ceiling that rises to a height of seven meters, emphasizing its sacred inspiration. White stucco walls and large aluminum-framed windows further highlight the ethereal character of the space. Another nod to ecclesiastical architecture is the two-meter-wide circular window piercing the southern gable of the house.
▼空间的神圣感,The sacredness of space

室内的中心是弧形木制厨房及以印度Shivakashi花岗岩打造的岛台,宛如教堂的祭坛,是每日生活仪式的核心。在空间南部设有餐区,配有橡木餐桌与椅子,十九世纪的圣母木雕俯视其上。对面是休闲区,配有长形沙发,可远眺乡村景观与庭院中的谷仓遗迹。沙发背后挂着由未染色羊毛编织而成的挂毯。
The focal point of the interior is a curved wooden kitchen with an island made from Indian Shivakashi granite, reminiscent of a church altar. This is the centerpiece of all daily rituals. In the southern part of the space is a dining area with an oak table and chairs, overlooked by a 19th-century wooden carving of the Madonna. Across from this is a relaxation area featuring a long sofa offering views both of the landscape and the courtyard with its barn ruins. The sofa is framed by a tapestry made from undyed sheep’s wool.
▼厨房,Kitchen

除主起居空间外,地面层还包括浴室、卫生间、辅助房间和一间卧室。全屋配备由建筑师设计的定制木制与石材家具,包括实木床、衣柜、玄关处的黑色花岗岩长凳及床头柜。
In addition to the main living area, the ground floor includes a bathroom, toilet, utility room, and one of the bedrooms. Throughout the home, custom-made wooden and stone furniture designed by the architect creates a cohesive aesthetic. This includes solid wood beds and wardrobes, a black granite bench in the hallway, and matching bedside tables.
▼起居室一瞥,A glimpse of living room

上层布局为独立公寓,设有卧室、浴室及工作室空间。与地面层保持开放通透不同,阁楼呈现为封闭的、茧状的空间,适合冥想、阅读与创作。小型屋顶天窗为这一白色、紧凑、穿插着壁龛与拱形结构的空间引入柔和光线。
The upper floor is conceived as a separate apartment with a bedroom, bathroom, and studio space. Unlike the ground floor, which maintains an open connection to the outside world, the attic is a closed, cocoon-like space ideal for reflection, reading, and creation. Small roof windows illuminate the white, compact cavern permeated by niches and arches.
▼圆窗,Round window

细节中的艺术 Art in Every Detail
艺术在这户人家的生活中占据重要地位,他们的收藏涵盖捷克现代主义至当代作品。这份对艺术的热爱体现在住宅的每一个角落。卧室陈列着一幅十九世纪日本屏风画,搭配Antonie Stanová的大型当代画作与Michal Janiga的雕塑。阁楼则展示着Vanda Hvízdalová的石雕作品,置于米色石材底座之上。
Art plays a significant role in the family’s life, whose collection spans from Czech Modernism to contemporary works. This love of art is omnipresent in their home. The bedroom features a 19th-century panneau japonais, alongside a large-format contemporary painting by Antonie Stanová and sculptural pieces by Michal Janiga. Stone sculptures by Vanda Hvízdalová are displayed on travertine pedestals in the attic.
▼卧室,Bedroom

▼阁楼卧室,Attic bedroom



家中策展式的布置在每一处细节中体现。访客一进入玄关,便可看到一件加蓬木质仪式面具;主起居空间中展示着一张整体雕刻而成的非洲木凳及Martin Hanuš的原创陶瓷作品。卧室与阁楼空间则以Isamu Noguchi设计的雕塑型Akari灯具点亮。大量艺术书籍收藏亦成为住宅氛围不可或缺的一部分。
The family’s curatorial approach is reflected in every detail of the house. Visitors are greeted in the entry hall by a wooden ceremonial mask from Gabon, while the main living area features an African stool carved from a single piece of wood and original ceramics by Martin Hanuš. The bedrooms and attic are illuminated by sculptural Akari lamps designed by Isamu Noguchi. A large collection of art books is an integral part of the home’s ambiance.
▼休闲空间,Leisure space

▼中式休闲空间,Chinese leisure space

▼浴室,Bathroom


一座活生生的Gesamtkunstwerk A Living Gesamtkunstwerk
Oskar之家以国际作曲家Oskar Nedbal命名,他曾在邻近城堡创作了轻歌剧《波兰之血》。这座独特的“总体艺术作品”(Gesamtkunstwerk)向公众开放,既可作为传统短租,也可作为艺术家驻地、快闪活动及工作坊场地使用。业主希望围绕住宅聚集起一个充满创造力与灵感的活跃社群。
The House Oskar, named after cosmopolitan composer Oskar Nedbal, who composed his operetta Polish Blood at the neighboring château, is a space the owners want to share with others. This unique Gesamtkunstwerk is open to the public, whether through traditional rentals or as a venue for artist residencies, pop-up events, and workshops. The owners look forward to fostering a vibrant community of creative and inspiring individuals around the house.
▼夜览,Night view



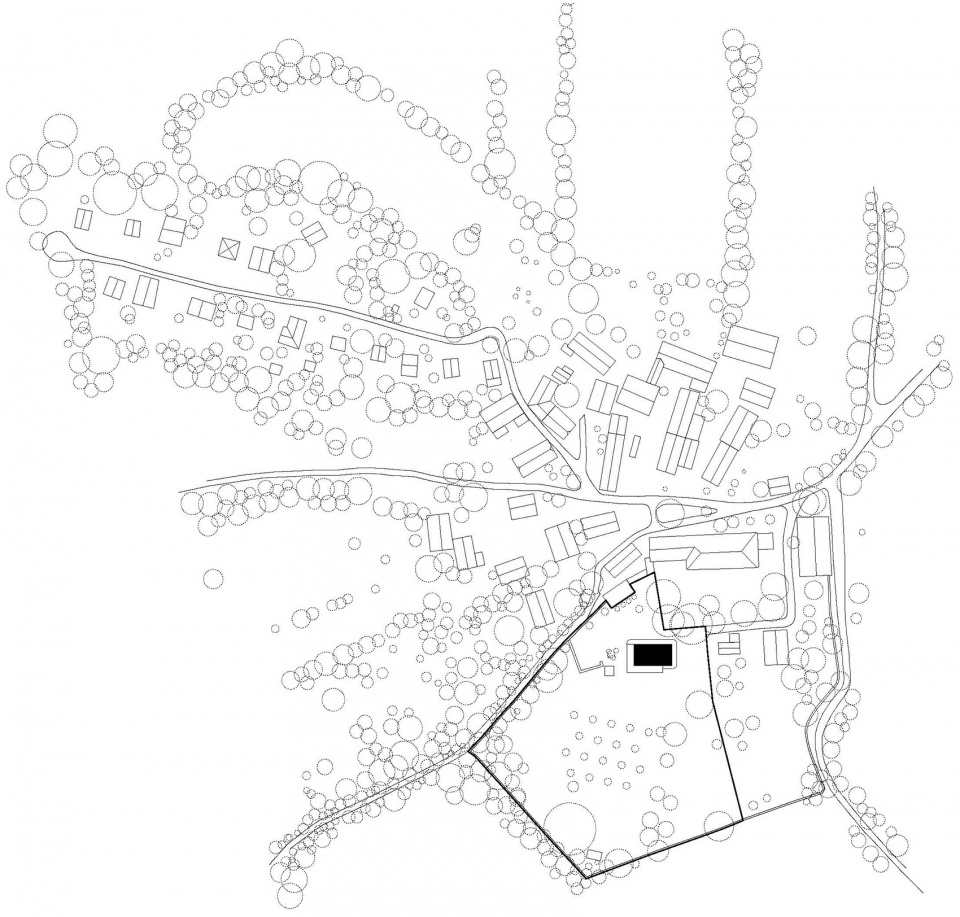
▼项目区位,site plan

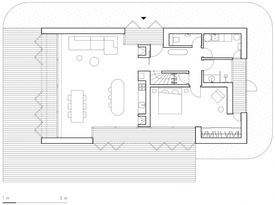
▼首层平面图,ground floor plan

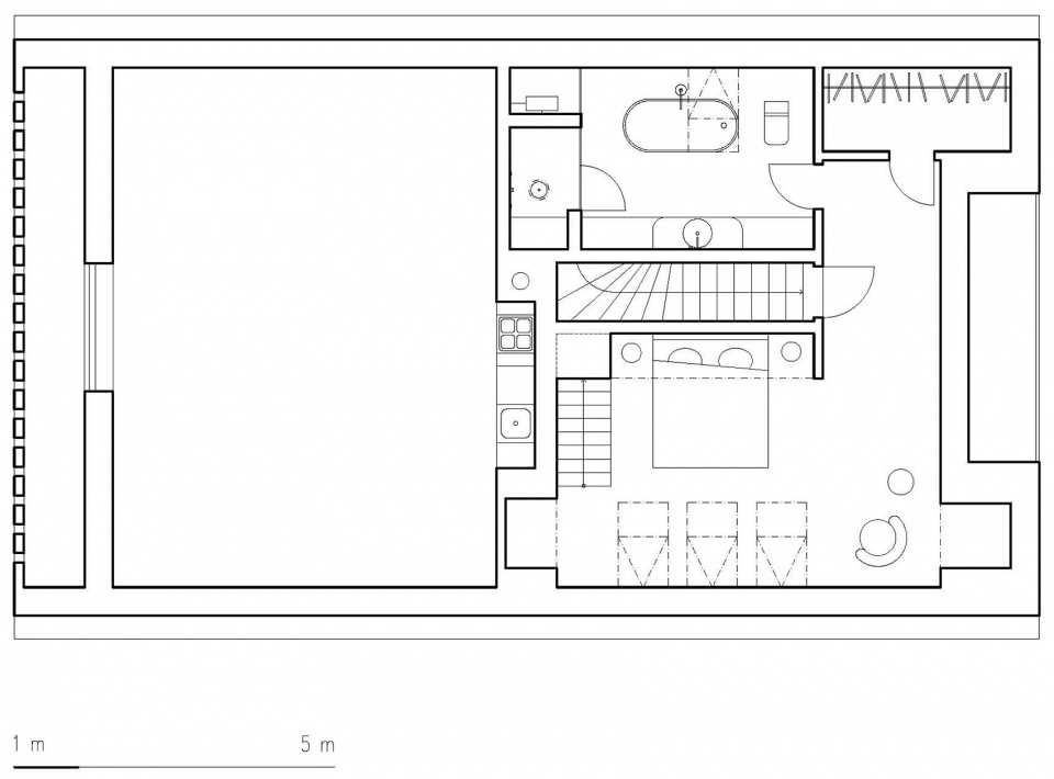
▼阁楼平面图,attic floor plan

▼南立面图,south elevation

▼北立面图,north elevation

▼西立面图,west elevation

▼东立面图,east elevation

Studio: Jan Žaloudek Architekt
Author: Jan Žaloudek
Contact E-mail: zaloudek.architekt@icloud.com
Website: www.janzaloudekarchitekt.cz
Social media: www.instagram.com/jan.zaloudek.architekt
www.instagram.com/house.oskar
vimeo.com/1051159111/320fcc9a48
Studio address: Slunná 7, 160 00 Prague, Czech Republic
Project location: Kamenná Lhota, 391 33 Borotín
Project country: Czech Republic
Project year: 2022
Completion year: 2025
Built-up area: 180 m²
Gross floor area: 171 m²
Usable floor area: 154 m²
Plot size: 8504 m²
Cost: 750 000 €
Client: Jan Žaloudek and Jolanta Trojak
Project website: www.instagram.com/house.oskar
Photographer: BoysPlayNice, www.boysplaynice.com, info@boysplaynice.com
Portraits: Hana Knížová, www.hanaknizova.com, hana@hanaknizova.com
Collaborators and suppliers
Construction project: Projekty S+S [Jana Tůmová], www.projektys-s.cz
Landscape architecture: Atelier Rouge [Jitka Tomsová], www.rougeatelier.com














