LL住宅,意大利 / LADO architetti
这座住宅位于博洛尼亚亚平宁山区一座极小村庄的郊外,海拔750米,坐落在一片具有浓厚农业特色的景观之中。项目的初衷是寻求区域传统建造技艺与当代建筑语言之间的平衡。
Located on the outskirts of a very small village in the Bolognese Apennines, at an altitude of 750 meters, the house is set within a landscape of a distinctly agricultural character. The project was conceived with the aim of finding a balance between the region’s traditional building techniques and a contemporary architectural language.
▼项目外观,exterior of the project


▼项目外观,exterior of the project


这座新建筑取代了原有的一座20世纪70年代的结构,其拆除与重建过程经过了深思熟虑,既需考虑法规限制,也需应对地形的特殊条件。严格的高度规定、限定的体量以及与相邻乡村道路所需保持的距离,成为引导设计的重要约束,促使建筑呈现出一种简洁而功能化的解决方案。最终呈现的是一个几何形态纯粹的体量,现代地诠释了亚平宁山区传统民居中常见的双坡屋顶。整体轮廓被分为两个独立体块,通过形态的错动,呼应了周边环境,却避免了对地方传统建筑的简单复刻。
The building replaces a 1970s structure, whose demolition and reconstruction required deep reflection, taking into account regulatory constraints and the particular topography of the terrain. The imposed height, defined volume, and required distance from the adjacent rural road were strict constraints that guided the design towards an essential and functional solution. The result is a clean geometric volume that modernly reinterprets the traditional pitched roof, characteristic of Apennine houses. The silhouette is broken into two distinct volumes, creating a play of forms that evokes the context without resorting to a mere reproduction of vernacular architecture.
▼一个几何形态纯粹的体量,a clean geometric volume


建筑采用了单一的黑色外壳,这一大胆的选择让住宅在自然环境中既融入又突出。独立于主楼体之外、通过门廊相连的车库,增加了自然融合的元素:金属格架用于攀援植物生长,柔化了建筑的几何感,同时降低了整体视觉冲击力。室外通道采用可渗透材料,如透水碎石和稳定土壤,避免了人工空间的僵硬感,维持了住宅与土地之间直接而自然的联系。建筑外围没有铺设硬质人行道,而是直接从地面中生长出来,确保了视觉与材质上的连续性。
The architecture is distinguished by its monochromatic black envelope—a radical choice that allows the house to blend into the natural surroundings while simultaneously standing out. The garage, separate from the main volume but connected via a portico, introduces an element of natural integration: a metal trellis designed to host climbing plants, softening the geometries and reducing the overall visual impact. The use of permeable materials for external paths – draining gravel and stabilized soil – avoids the rigidity of artificial spaces and maintains a direct relationship between the house and the land. No perimeter sidewalks: the building emerges directly from the earth, ensuring visual and material continuity with the ground.
▼金属格架用于攀援植物生长,a metal trellis designed to host climbing plants

▼门廊相连的车库,the garage connected via a portico

从建造技术上看,项目采用了可持续导向的解决方案:X-LAM交叉层压木板墙体与胶合木楼板使结构整体变轻,更适应地基承载力较低的地形条件。木纤维保温材料提升了能效,而光伏板系统(配备蓄电池)与雨水收集系统,共同构建了一个完整的生态理念。
From a construction perspective, the project embraces technological solutions geared toward sustainability: X-LAM walls and laminated wood floors lighten the structure, making it more adaptable to the terrain’s low load-bearing capacity. Wood fiber insulation enhances energy efficiency, while photovoltaic panels (which power a battery) and a rainwater collection system complete an integrated ecological vision.
▼入口,entrance

▼餐厅及厨房,kitchen and dining area

▼厨房局部,kitchen

▼客厅,living room

▼图书角,book corner

▼客厅,living room


室内空间延续了极简主义美学。底层通过一扇面向西侧山谷的大幅玻璃窗与外部连通,让自然光成为空间的主角。上层布局则注重功能性设计:两间卧室(可灵活改为三间)与一间浴室,布局合理,最大化空间感知。大面积的玻璃界面模糊了室内与室外的界限,使整座住宅宛如一座观测周围自然景观的观景台。
The interiors reflect a minimalist aesthetic. The ground floor opens westward toward the valley through a large glass window, allowing light to become the true protagonist of the space. The upper floor is designed for maximum functionality: two bedrooms (which can be easily converted into three) and a bathroom, arranged in a rational way to enhance the perception of space. The large glass surfaces dissolve the boundary between indoors and outdoors, transforming the house into an observatory of the surrounding nature.
▼延续极简主义美学,the interiors reflect a minimalist aesthetic

▼贯穿空间的壁炉,A fireplace that runs through the space

▼卧室,bedroom


▼浴室,bathroom


▼场地平面,site plan

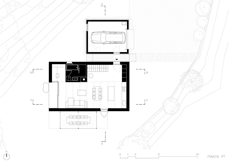
▼一层平面,ground floor plan

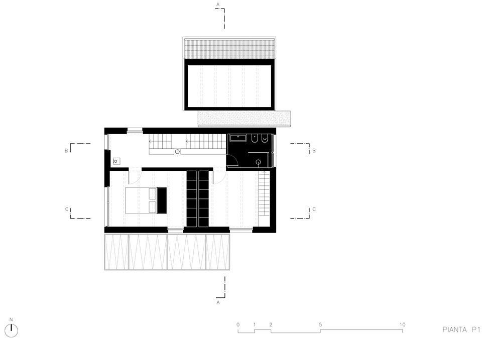
▼二层平面,first floor plan

▼立面,elevation




▼剖面,section



Project Name: Casa LL
Location: Roncastaldo, Loiano (Bologna, Italy)
Architecture: LADO architetti
Project Team: Arch. Luca Ladinetti, Arch. Anna Branzanti, Arch. Alejandra Osorio Restrepo, Arch. Riccardo Bozzini
Client: Private
Photographies: Marcello Mariana
Design Phase: January 2020 – March 2021
Construction Phase: June 2021 – June 2023
Project Area: 3,730 sqm
Built Area: 150 sqm
Structural Design: Ing. Emanuele Fornalè
Systems Design: Per. Ind. Lorenzo Vecchi
Demolition and Foundations: F.lli Lorenzini s.r.l. (Monghidoro)
Construction and Systems: Prosapio Patrick Service s.r.l. (San Lazzaro di Savena, Bologna)
Windows: Nuova Zamagna (Rimini)
Doors: Qualis Design
Custom Furniture: Rabatto s.r.l. (Verona)
Finishes: Delisari Materia Design s.r.l.s. (Bologna)
Structure: X-LAM, laminated beams, and plasterboard
Insulation: Wood fiber
Flooring: Oak wood parquet, ceramic, and compacted stone
Windows: Aluminum
Roof Cladding: Concrete tiles














