壹心空间自习室,南京 / 多么工作室
南京市新街口的写字楼高空中,悬浮着一座与城市对话的精神容器。当推开玻璃门的瞬间,城市轰鸣即刻被抽离,眼前展开的是一片由桦木、织物与光编织的有机系统。多么工作室以建筑学视角重构当代都市人的学习空间,在百米高空演绎空间叙事与身体感知的协奏曲.
Suspended high above in an office tower in Nanjing’s Xinjiekou district, a spiritual vessel engages in quiet dialogue with the city. The moment you push open the glass door, the city’s roar is instantly stripped away, revealing an organic system woven from birch wood, fabric, and light. Atelier d’More reconstructs the learning space of the contemporary urbanite through an architectural lens, composing a symphony of spatial narrative and bodily perception in the sky, over a hundred meters above ground.
▼由高分贝区看向前台,View from the High-Decibel Zone toward the Reception Desk

▼前台,Reception

▼前台内部视角,Internal Perspective of the Reception

光的现象学装置Phenomenological Installation of Light
一盏悬浮的灯笼意向装置仿佛空间的精神图腾,安静的盘旋在空中。桦木多层板经数字化设计,构建出精细的榫卯细部,其木质骨骼隐于布料之后,若隐若现,当光线穿透时有了呼吸的节奏。白天,日光温柔地穿过布料与木骨架的间隙,在书桌上投射出层次丰富的光影,灵动而诗意。夜晚,温暖的灯光透过半透纱幔,在顶部晕染出一片柔和的微光,仿佛漂浮的梦境。这个悬浮的发光装置不仅是功能性的照明系统,更是空间的精神象征,其投影随着太阳角度在12小时内完成从实到虚的形态渐变。
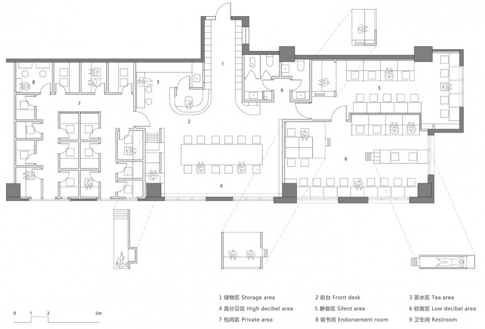
▼平面图,Floor Plan

A floating lantern-like installation serves as a spiritual totem of the space, hovering quietly overhead. Digitally designed and crafted from birch plywood, it features finely detailed mortise and tenon joints. Its wooden framework is hidden behind fabric, faintly visible, breathing with rhythm as light passes through. During the day, sunlight gently filters through the gaps in the wood and fabric, casting richly layered shadows across the desks—agile and poetic. At night, warm light seeps through semi-transparent curtains, tinting the ceiling with a soft glow, like a floating dream. This suspended lighting fixture is not just a functional illumination system but a spiritual symbol of the space. Its shadow projection transforms gradually from solid to ethereal over a 12-hour solar cycle.
▼高分贝区概览,High-Decibel Zone Overview

▼悬浮的精神图腾,Floating Spiritual Totem

▼高分贝区书桌的悬挑细部,Cantilever Detail of the Desk in the High-Decibel Zone

▼空间里的对称关系,Symmetrical Relationships in Space

▼光影与虚实,Light and shadow, void and solid

▼茶水区,Tea Station

▼窗前半透明的书架,The semi-transparent bookshelf by the window

▼灯笼般的空间体量,A pavilion woven with light, reminiscent of lanterns

垂直维度的精神路径Vertical Spiritual Pathway
在竖向设计上,我们设计了具有趣味性的攀爬路径,选择空间里顶部障碍物较少的区域置入叠加功能区,在自习区里穿插了多个立体盒子,增大了使用面积的同时,也增添了有趣的空间体验。沿着爬梯向上,便抵达精神性空间 —— 冥想小屋。这个舱体空间兼具躺卧与静坐功能,尽端的透明消隐式桌子,让使用者在百米高空俯瞰城市脉络,在此体验一览众山小的意境。
▼动态轴测图,Axonometric GIF

Vertically, we designed an engaging climbing path, placing stacked functional zones in areas with minimal overhead obstructions. Multiple three-dimensional boxes are interspersed within the study zone, increasing usable space while enriching the spatial experience. Climbing the ladder leads one to a spiritual realm—the meditation pod. This capsule-like space accommodates both lying and sitting, and features a transparent retractable desk at the far end, allowing users to gaze over the city’s veins from high above, experiencing a profound sense of detachment and perspective.
▼轻音区概览,Whisper Zone Overview

▼轻音区立体座位,Tiered Seating in the Whisper Zone

▼静音区立体座位,Tiered Seating in the Quiet Zone

从节省成本和保证层高的角度出发,我们仅在空调及新风管道区域设置了局部吊顶,并将大多数隐蔽工程集中整合于这些吊顶内部,从而确保其余顶面干净利落的裸露效果。这些木饰面吊顶体块通过空间构图上精心的推敲,与室内各要素建立起新的视觉关系。其与原始顶棚的巧妙脱开处理,更在视觉上营造出轻盈的悬浮感。
To minimize cost and preserve ceiling height, we installed partial drop ceilings only in areas with HVAC and ventilation ducts, integrating most of the hidden infrastructure into these sections. This ensured a clean, exposed look for the remaining ceiling surfaces. Carefully composed wooden ceiling modules establish new visual relationships with interior elements. Their deliberate separation from the original ceiling enhances the sense of levitating lightness.
▼不同高度的视线景观,Multi-Level Sightlines

▼由立体座位看向冥想小屋,View from the Tiered Seating toward the Meditation Pod

▼冥想小屋内部,Inside the Meditation Pod

▼冥想小屋内鸟瞰城市,Meditation Pod Overlooking the City

形式嫁接功能Function Interwoven with Form
条件的限制,往往能催生最动人的设计。为弱化空中水平消防喷淋管的存在感,我们为其量身设计了一款木质灯具,这些灯具以阵列形式寄生在水管之上,将原本突兀的管道转化为串联木质灯具的结构杆件,让功能本身成为美学的一部分。考虑到高分贝区的12人长桌需要桌面照明,我们在桌子中心设计了一根方形立柱,这根立柱既满足地面走线需求,又为悬臂灯槽创造出受力条件。悬臂上我们设计了可拆卸的屏风机关,每一侧的悬臂中心都设计了一道缝隙,用于悬挂屏风,与对面的座位实现了视线的开合切换可能性。
Constraints often spark the most evocative designs. To diminish the visual impact of the horizontal fire sprinkler pipes, we custom-designed wooden light fixtures that attach directly to the pipes. Arranged in arrays, these fixtures transform the intrusive piping into structural rods that link the lights—turning functionality into an aesthetic statement. For the 12-seat table in the high-decibel zone, we designed a square central column that handles wiring needs while also supporting cantilevered lighting troughs. Each cantilever features a detachable screen mechanism; a slit runs through each side’s center to hang screens, offering the possibility to open or close visual lines between opposite seats.
▼书桌格挡装置动图,Animated GIF of Desk Partition Device

▼轻音区景观座位,Landscape Seating in the Whisper Zone

▼静音区一角,A Corner of the Quiet Zone

▼静音区概览,Quiet Zone Overview

▼静音区的VIP座位,VIP Seating in the Quiet Zone

非标建造的温度The Warmth of Non-Standard Construction
空间不仅是功能的容器,更是情感的放大器。项目最动人的部分在于其建造过程,布料与木框架的固定方式最终由业主一家人亲手完成。这种”参与式建造”让非标准节点超越了机械化的冰冷,成为承载记忆的载体。随着时间推移,织物逐渐沾染使用者的痕迹,空间从被设计的对象蜕变为有生命的物体。
The space is more than a functional container—it is an emotional amplifier. The most touching part of the project lies in its construction: the fixing of fabric to the wooden frames was completed by the owner’s family themselves. This “participatory construction” endows the non-standard details with warmth, transcending cold mechanization and becoming vessels of memory. Over time, the fabric gradually absorbs traces of its users, and the space evolves from a designed object into a living entity.
▼入口储物区,Entrance Storage Area

▼茶水区框景洞口,Framed View at the Tea Station

▼光影与书架,Light, Shadow, and Bookshelves

▼书架细部,Bookshelf Details

▼木构架轴测图,Wooden Frame Axonometric Drawing

▼家具轴测图,Furniture Axonometric Drawing

Project name: Yixin Space Study Room
Project type:Study Room,Commercial
Design:Atelier d’More
Website: http://www.d-more.cn/
Contact e-mail: dmore@foxmail.com
Design year:2024.08-10
Completion Year:2025.01
Leader designer & Team:Le Sheng,Wei Wang,Yixuan Zuo
Project location:Nanjing, China
Gross built area:208㎡
Photo credit:SongImage-Langxing Zhou
Clients:Yixin Space
CD collaborator:Xuanji Design
Materials:Latex Paint,Wood, Fabric














