WACKER大楼,慕尼黑 / C.F. Møller Architects
本项目位于慕尼黑Werksviertel-Mitte核心区,紧邻市中心,WACKER大楼打造了一个充满活力且灵活多元的统一建筑空间,融合了办公、文化、娱乐与商业功能。
In the heart of Werksviertel-Mitte, Munich, close to the city center, the WACKER House creates a vibrant and flexible workplace in a unified building, capable of offering an exciting blend of offices, culture, entertainment, and shops.
▼项目概览,overall of the project

▼街景,street view


▼细部,details


这座透明的建筑展现出强烈的内外连通性,旨在与周边社区建立开放、充满活力且富有互动性的关系。其建筑形式是一种统一的网格结构,线条灵动曲折,灵感源自Werksviertel旧址上的铁路轨迹,并朝向片区内的步行公共空间敞开。
▼分析图,analysis diagrams



Expressed through a transparent building with a strong connection between the in- and outside, the WACKER House connects with the surrounding community, in a permeable, lively, and engaging fashion. The architecture manifests itself as a large unifying grid structure, with a distinct curvy signature, inspired by the former rail tracks of the Werksviertel, that opens towards a common pedestrian zone in the area.
▼透明的建筑展现出强烈的内外连通性,the transparent building demonstrates a strong internal and external connectivity

▼建筑与景观,architecture and landscape


▼入口,entrance

▼建筑界面,architectural interface

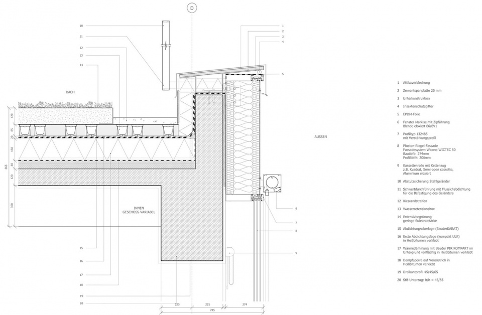
▼屋顶花园,roof garden

充满能量的城市空间Energetic city space
为融合周边街区,建筑底层设有大量零售空间、灵活办公区及共享办公设施,统一安置在一个双层挑高空间内,中央设有公共开放的拱廊。四面通透的入口进一步加强了建筑与城市之间的连接能力,使其成为城市中的一个新地标。
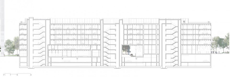
▼剖面分析图,sectional analysis diagram

To integrate the surrounding neighborhood, the ground level is abundant with retail opportunities, flexible office spaces, and co-working facilities, all placed in a double-height space with a public and open arcade in the centre of the building. Transparent and visible entrances to all sides amplify the building’s ability to create a connection between its varied content and the surrounding city space, helping the building to become a new destination in the city.
▼入口通高大厅,entrance hall


▼底层零售空间,ground floor retail space

▼楼梯座位,staircase with seating area


▼由楼梯看大厅,viewing the lobby from the staircase

▼底层餐饮空间,ground floor restaurant / cafe

▼通高空间,double-height space

建筑上部由四层办公楼组成,围绕Z字形动线展开,灵活开放的办公空间环绕着若干位于不同高度的外部绿色庭院。建筑内部设有三个核心筒,将各楼层及底部空间高效连接。多个庭院不仅将自然光引入宽阔的楼层空间,还优化了整栋建筑的微气候环境,有效降低热岛效应。
▼平面分析图,analysis plan

The upper part of the building consists of four office floors around a zig-zag configuration, were open and a flexible office landscape inner loops around a series of external green courtyards in various heights. Internally, three cores create connectivity between the office floors and towards the base of the building. The courtyards contribute both in bringing the daylight into the large floor areas of the building and maximizes microclimatic qualities throughout the entire massing of the building while contributing positively to drastically reducing the heat island effect.
▼走廊上的交流空间,communicate space on the hallway


▼露台,terrace


▼上部楼层,upper floor space

▼旋转楼梯,spiral staircase

▼办公楼层,office floor

▼休闲空间,leisure space

▼餐厅/会议室,dining area / meeting area

▼细部,details

▼咖啡厅,cafe

▼窗边座位,seating along the facade

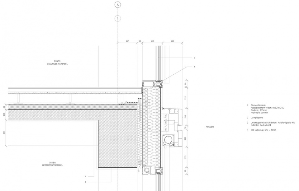
建筑的整体网格结构采用预制构件,包括内部与外立面,以缩短施工周期、降低成本,同时通过浮雕式立面结构为大面积窗户提供被动遮阳。建筑还选用了可持续材料,如再生混凝土和铝材,体现了对生态环境的积极回应。
The overall building grid is made by prefabricated elements internally and in facades, both to reduce building time and construction cost, and add passive shading through a relief like façade structure to the large window sections. Sustainable materials, like recycled concrete and aluminum, are implemented in the building.
▼夜景,night view

▼底层平面图,ground floor plan

▼屋顶平面图,roof floor plan

▼立面图,elevations



▼剖面图,section



▼细部详图,construction details







Client: PATRIZIA Deutschland GmbH
Size: 15.700 m²
Address: Munich, Germany
Year: 2020-2024
Architect: C.F. Møller Architects
Landscape: Jühling & Partner
Landschaftsarchitekten bdla mbB
Engineer: WB-I Wolf+Bogatic PartG mbB
IBF Ingenieurgesellschaft mbH
Contractor: Köster GmbH
Collaborators: Nordland Arkitekter, Outline proposal
CL MAP GmbH, Planning proposal














