森永芝浦大楼,日本 / TAKENAKA CORPORATION
本项目是为一家糖果与食品公司设计的办公空间。客户的愿景是通过为顾客、员工以及社会提供身心与环境的健康福祉,推动实现一个可持续的世界。作为实现这一理念的基地,我们将新办公室设计为“城市森林”,一个多物种共存的空间,并命名为“KAKUHAN-no-Mori”(意为“混合之森”)。我们理想中的场所,是一个多样的自然与公司内外的人们能够彼此影响、共同拓展视野的空间,就像调配原料制作甜点并共享的过程一样。
This project was designed for the office of a confectionery and food company. The client’s vision is to contribute to the realisation of a sustainable world by providing wellness of mind, body and environment to their customers, employees and the society. As a base for realizing their perspective, we designed their new office as the city’s forest, where many species coexist, and named it “KAKUHAN-no-Mori,” which means “the forest of mixing”. Our ideal place was one where diverse nature and people inside and outside the company could mutually influence each other and expand their world, like mixing ingredients to make sweets and enjoying together.
▼项目外观,Exterior view

▼街道侧视角,Street view

营造城市之森 Creating the forest of the city
我们借鉴森林的概念,打造一个“环境共创型”办公空间,因为森林象征着共生与包容。首先,我们决定将景观设计为一片森林。东京虽为大城市,天然绿地稀少,但这有限的自然仍是候鸟的重要栖息地。我们分析了场地的植被状况和候鸟生态,选用了候鸟偏好的树种,分别种植于地面与屋顶,藉此扩展城市的绿色范围。
▼项目区位及概念图,concept diagram and site plan

We referenced a forest to create an environmental co-creation type office, because a forest is the symbol of coexistence and inclusion. First, we decided to design the landscape as a forest. Tokyo is a big city and has less nature, but the limited nature is still a very important base for migratory birds. We analyzed the vegetation condition of the site and the ecology of migratory birds, and planted trees favored by migratory birds on the ground and on the roof to expand the green scope of the city.
▼建筑立面近景,Facade close view

▼入口处,Entrance


其次,在室内、结构与外立面中大量采用木材。我们将本项目与创始人故乡的森林循环体系相连接,以传承其精神并推动健康林业的发展。室内外所用的木材由客户员工与设计师亲自参与、通过日本传统宗教神道仪式砍伐完成。在建筑竣工后,我们也种下新苗以延续未来的林业发展。另一方面,为使大跨度木结构兼顾抗震性能,我们开发了一种新的吊梁系统,称为“三角刚架”,以实现更高等级的抗震隔震能力。
▼项目概念,concept picture

Secondly, we decided to use a lot of wood for interiors, structures, and exteriors. We decided to link this project to the forest cycle of the founder’s birthplace to pass on his spirit and healthy forestry to future generations. The wood for the interior and exterior was felled by the client’s staff and designers through a ritual of Shinto, which is the traditional religion of Japan. After completion, we planted new seedlings for future forestry. On the other hand, to make the large span wooden structure compatible and to obtain horizontal force to introduce high-grade earthquake-resistance with seismic isolation system, we developed new hanging beam system called ‘triangle rigid frame.’
▼前台接待处,Reception

▼咖啡空间,Cafe


室内设计灵感来源于森林的景观。特别是一层与二层被构想为森林的“地表”,用于连接并吸引社区居民、企业与支持生物多样性的种植系统。主要办公区被比作树冠,呈现出不同尺寸、明暗变化与高低起伏;而顶层空间则受启发于林梢与漫射阳光的氛围,充满光感与开放性。
The interiors were inspired by the scenery of the forest. Especially, the 1st and 2nd floors were designed as the foot of forest to connect and engage with local people, the company, and plantings for biodiversity. The main workspaces were designed from the tree crowns where contains different sizes, shades, and unevenness, and the bright top floor was inspired from the top of the trees and diffuse reflection of the sunlight.
▼开放办公空间,Open office area


▼不同规格的办公空间,Different sizes of office spaces



融入城市街景 Blending into the townscape
我们希望通过引入自然的“波动感”来改善身心健康。建筑的外立面设计能够反射周围的绿色与天空景色。镜面立面亦具备捕风功能,有助于实现自然通风以加强传染病防控,并可调节阳光照射,使阳光得以引入室内,同时降低热负荷。凭借这种特性的外立面,该建筑获得了“ZEB-ready”认证——该认证授予能源消耗较基准值减少50%以上的建筑。
We tried to work on the health of mind and body by installing the fluctuations of nature into the spaces. The outer skin of the building was designed to reflect the green and sky of the landscape. The mirrored facade also functions as a wind catcher to provide natural ventilation for infectious disease control, and a sunlight controller to bring the brightness of sunlight into the space while reducing heat load. With this characteristic facade, we achieved the certification of ZEB-ready, which is awarded to the building that reduce primary energy consumption by 50% or more in Japan.
▼会议室,Meeting room

▼阅览区,Reading area

▼休闲空间,Leisure space


▼室外露台,Terrace

此外,建筑外部照明的色温会根据实际气温柔和变化;部分室内灯光则会根据外部风速传感器而摇曳闪动,使植物在室内投下动态的光影。建筑亦设有多个露台,可感受自然风,亦可作为办公场所使用。自然风、阳光与灯光共同营造出如森林般斑驳变化的光影,让员工在任何时间、任何地点都能感受自然。
The color temperature of the exterior lighting is interlocked by the actual temperature and changes softly, and some interior lightings are shaken and flickered by interlocking to the external wind speed sensor and make the shadows of the interior plants sway. Furthermore, there are some terraces to feel real winds where also could be workspaces. Natural winds, sunlight and lighting create uneven shades of light and shadow like a forest to the workspaces. The workers can feel nature anytime and anywhere.
▼植物引入室内,Introducing plants into the interior


▼楼梯,Stairs

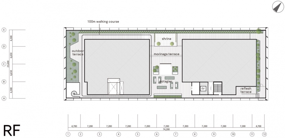
另外,第七层及屋顶楼层被规划为“健康福祉区”。在此设有丰富的设施,用于在阳光与微风中促进身心健康,例如香草果园、轻度拉伸运动区、小神社以及100米的步行道。
Additionally, the 7th floor and the rooftop floor were designed as the “wellness” area. The contraptions to enjoy health promotion with the bright sunlight and wind were installed, such as the herb and fruit garden, the fitness for easy stretching, the shrine, and the 100 meters walking course.
▼屋顶花园,Roof garden


▼夜览,Night view

自然的波动与木构空间叠加,每个人都能在其中找到最适合自己的环境与空间。
Fluctuation of nature is overlapped to wooden space, and everyone could find their own favorite environments and spaces.
▼1F平面图,1F plan

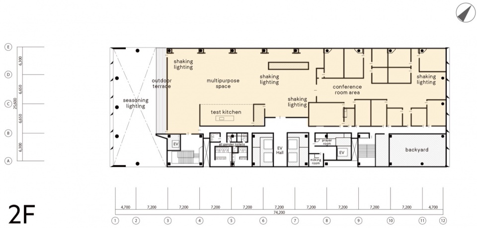
▼2F平面图,2F plan

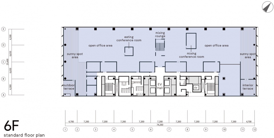
▼6F平面图,6F plan

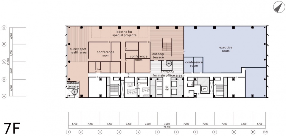
▼7F平面图,7F plan

▼屋顶平面图,RF plan

▼北立面图,elevation north

▼西立面图,elevation west

▼剖面图,section

Location : Tokyo, Japan
Main use : Head Office
Site area : 3,328.78 m2
Building area : 2,046.67 m2
Total floor area : 15,611.21 m2
Structure : Steel and Woods, Reinforced Concrete, Seismic Isolation System
Number of stories : 7 floors above ground, 1 floor underground
Date built : 2024.01.31
Architects; Shinichi KAKU, Chiaki ISHII, Nanako KOBAYASHI, TAKENAKA CORPORATION
Director; Shigenori SUZUKI, TAKENAKA CORPORATION
Contractor; Ko TAKAHASHI, TAKENAKA CORPORATION
Company’s web site; https://www.takenaka.co.jp/takenaka_e/
Client; Morinaga&Co., Ltd.
Client’s web site; https://www.morinaga.co.jp/company/english/
Photographer; SS Co., Ltd. Nozomu SHIMAO














