莫干山多元文化圈模组B,湖州 / 或间建筑
莫干山多元文化圈模组B位于莫干山镇黄郛东路与庾信北街交叉口东南侧地块内部,是莫干·庾街文旅项目中M20公社的商业办公楼。这块场地原先是镇上的两座工厂,东侧与居民区相接,南侧临阜溪。莫干山多元文化圈模组B位于整个地块中部,由六栋16.8×12.6m的二层半单体组成,分为两组:西北侧的4栋以连廊串接,和沿街的商业建筑以及公共大台阶形成内广场,面向场地上保留改造后的美术馆;东南侧的2栋则和另一栋保留改造为Live-House的厂房相接。一南一北的两栋改造厂房定义了这个地块的原始边界,总计约4200㎡的莫干山多元文化圈模组B填充其间。
Located within the block formed by Huangfu East Road and Yuxin North Street in Moganshan Town, the Moganshan Multicultural Circle Module B Complex is a group of commercial office buildings for the M20 Commune developed by the Moganshan-Yu Street Project. The site was originally occupied by two factories, bordered with residential buildings to the east and Fuxi Creek to the south. The Moganshan Multicultural Circle Module B Complex consists of six two-and-a-half-storey buildings in the scale of 16.8×12.6m. It is divided into two groups: the four blocks on the north-western side are connected by a corridor, forming an inner plaza with the commercial buildings along the street and the public terrace, and facing the art gallery renovated from a factory building preserved on the site; and the two blocks on the south-eastern side are connected to the other factory building converted to be a Live-House. With the two converted factory buildings to the south and the north defining the original boundaries of the site, the Moganshan Multicultural Circle Module B Complex fills a total of about 4,200 square metres in between.
▼街区鸟瞰,aerial view of the block

以上描述既是结果,亦是开端。换言之,这是我们当初介入项目时,面临的现状条件:城市设计策略已定。外部交通进出口与流线、相邻建筑功能、公共空间位置均已明确;所需设计的建筑体量、轮廓线业已框定;同时,地下车库8.4m的钢筋混凝土柱网决定了地面建筑的结构形式。因此,建筑设计的城市(Städtebau)层面需要考虑的内容主要在于建筑开口方向及其形成的街区流线体验,以及建筑立面形式与材料对街区形象的塑造。这是一个更接近建筑改造(Umbau)的新建项目(Neubau)。
The above description is both a result and a beginning. It is the existing situation we faced when we first intervened in the project: the urban design strategy has already been decided. The entrances and exits of the whole block, the traffic flows, and the functions of the neighbouring buildings as well as the location of public spaces were clearly clarified. Moreover, the volumes, the contours and even the structural form of the buildings to do has been determined by the 8.4-meter-spacing reinforced concrete column network in the underground garage. The urban aspect of the architectural design is therefore primarily concerned with the orientation of the openings and the experience of the neighbourhood, as well as the way in which the building façades and materials shape the image of the neighbourhood. Facing so many restrictions, it is a renovation rather than a new construction project.
▼街区鸟瞰,aerial view of the block

但在单体建筑层面,这个项目有着明确又暧昧的设计要求,它有个极为复杂的命名:莫干山多元文化圈模组B。这个名字可以拆成三个组分。莫干山是一个地点。作为一百多年来长盛不衰的避暑度假地,这个名词也暗含了场地气质及其背后的度假客群和消费环境,甚至是略显刻板的山村度假场景。多元文化圈是一种正在浮现的社会关系和经济模式,假定不同但又相关的服务类商业业态比邻而创的状态,每种业态的空间需求较小,但又要求一定程度的灵活可变和增长可能性。店主往往是一群志同道合的伙伴,他们的店既是商业活动的发生地,更是兴趣、社交、生活方式的集合地。模组B说明它只是一群模组中的一个,属于建筑生产(production)类型,是工业建造体系(比如,固定的钢筋混凝土框架柱网)和某个阶段商业业态的复合体。总起来说,这个复杂名词描述了当下莫干山潜在的社会经济诉求,同时也在寻求建筑化的过程。
As for the complex itself, the design requirements are both clear and ambiguous. Initially, the complex has an extremely complicated name: Moganshan Multicultural Circle Module B. It can be split into three components, which accounts for its complexity. Moganshan is a location. As a summer resort that has flourished for more than 100 years, the name implies the atmosphere of the site, full of fancy consuming environment as well as a more or less stereotypical mountainous village holiday scene. The Multicultural Circle is an emerging model of social and economic relations that assumes a small group of people creating different but related service businesses. The shop owners are often a group of like-minded partners whose shops are places where business, activities, and interests are gathered. In this case, they require not much space but a degree of flexibility and growth possibilities. Module B suggests that it is just one of a group of modules that fall into the category of building production. It is a composite out of commercial conducts adept to an industrial construction system. The overall term describes the underlying socio-economic aspirations of Moganshan at the moment, while also seeking to materialize the process.
▼街区环境,block environment

这是一个条件明确的解题型建筑设计。然而现代建筑出现至今的经验告诉我们,把任何一种社会或经济关系转化为一对一的空间都是极度危险的行为。空间具有相当程度的冗余,能够适应不同的使用需求,而人的行为不可预测,也不(应)受建筑师的主观约束。但不可否认的是,在使用空间的过程中,仍旧存在一些集体遵从的秩序。它们往往是经营布局、建造方式、设备接口等多重目的的复合结果,表达为边界、分隔、开口等秩序结构。原本这是使用过程中积累下来的残存物,难点在于现在要从无到有。无论如何,设计尝试由此展开。
It is a solution-oriented architectural design. Yet the experience since the emergence of modern architecture so far has taught us that translating any kind of social or economic relationship into a one-to-one space is extremely risky. Space has its redundancy adapting to different uses, while human behaviour is unpredictable and should not be subject to the arbitrariness of the architect. However, there is something to follow in the use of space. They are often the negotiated results out of operational layout, construction methods, equipment interfaces, etc., expressed in the form of boundaries, separations, openings, and so on. More often, these are the remnants accumulated during the process of use. But the difficulty lies in the fact that this emerging social and economic model calls for a creation from nothing. In any case, this is the beginning of the design attempt.
▼街区氛围,block atmosphere

项目开始的2021年秋,咖啡市梧桐区的街道上,已经出现了大量联合开店的尝试。有些是在同一层空间中,以“夹带”的方式出售旨趣相似的物品,比如服饰店的墙壁上陈列的陶瓷产品。另一些则把沿街需求较低的商业放在二层或三层,比如咖啡店楼上的理发店。这种社群内部拼合的商业模式在互惠互利的同时降低成本。另一方面,疫情加速了游牧办公的合理性,将工作任务和工作地点切开,这一流动特征鼓励了身份上多元的可能,越来越多的年轻人开始身兼数职,成为斜杠一族。
In the autumn of 2021, when the project began, there were already a number of attempts on co-operating shops on the streets of Shanghai. Some ‘sandwiches’ items of similar interest on the same floor, such as ceramics displayed on the walls of a clothing shop. Others places businesses asking lower-demand along the street on the second or third floor, such as putting a barber shop above a coffee shop. This kind of business model within the community reduces costs while providing mutual benefits. On the other hand, the epidemic has accelerated the rationalisation of the nomadic office. It slices and dices work tasks with workplaces, from which a mobility is gained for encouraging the possibility of identity pluralism. More and more young people begin to become slashers.
▼外部平台串联建筑,outdoor terrace connects buildings


对商业模式和人的工作角色的观察让我们对未来的使用者和空间模式作出了假定。所谓多元文化圈的使用者可以与某个(些)组织共同工作/联合经商,也可以自我雇佣/独立开店。这些组织中配备了诸如茶水、卫生间、打印等基础设施,也保留了相应的介入空间:从一张桌子到分时段使用的可闭合隔间,再到一间完全独立的符合特殊功能的房间。无论这些使用者是各自租下店面,保留接纳另一个使用者的扩展可能性,还是合租下一整栋,再进行内部划分,基础设施叠加三种介入空间的方式都将成为共享的结构,与8.4m的柱网一起限定建筑空间的组织。
Observations on business model and people allow us to make assumptions about future users and spatial patterns. Users of the so-called multicultural circle can work or make business together with an organisation(s) or be self-employed. These organisations are not only equipped with infrastructures such as tea room, toilets, printing services, etc., but also retain available space for possible intervention: from a table, a closable cubicle for time-shift use to a completely separate room with a special function. The cooperation mode is various. It could be an individually rented store, reserving the possibility of expansion to accommodate another user. It could also be sharing and dividing a whole building internally within a community. In either case, the infrastructure superimposed on the three intervening spaces will be a shared structure. It will delimit the organisation of the architectural space together with the structural network of 8.4-meter-spacing columns.
▼外部平台与外立面支撑关系,external platforms in relation to façade support

单栋建筑长边为2跨,短边为1.5跨,将0.5×1跨作为最小模数,在首层和二层穿插设置35㎡(考察上海里弄住宅转变为商业空间的实际案例可知,3-5m的开间和8-12m的进深为单间商铺较为合理的最小规模)和70㎡,对应小型店铺与中型店铺(可以有办公、展示等其它功能,这里划分的大小仅就商业行为合理的开间和规模而言)。三层的150㎡不再细分,用于公共消费、休闲餐厅、酒吧、会所等功能。
▼店铺模块设计分析图,store module analysis

The single building of the Moganshan Multicultural Circle Module B Complex spans 2 bays and extends 1 bay. 0.5×1 bay is took as the minimum modulus, which is 4.2m x 8.4m and accounts for approximately 35㎡. It is an abstraction from transforming Shanghai Lilong residence into commercial space, in which the opening of 3-5m and the depth of 8-12m are the reasonable minimum scale of single shop. 35㎡ and its double size, 70㎡, are defined to be the small and medium-sized shops, which can have other functions such as office, exhibition, etc. They are arranged on the ground and first floor. On the second floor, there lies the single box with 150㎡, which is used for public consumption, casual restaurants, bars, clubs and other functions.
▼栏杆与水刷石外立面形成的光影,
Light and shadow created by the balustrade and the water brushed stone facade

排除商铺内部消化的可能性,介入空间既可以在水平方向上扩展为小隔间或是合并比邻的商铺,也可以在垂直方向上连通上方或下方的商铺。后者通过调转首层和二层商铺方向,避开主梁,在楼板上较为明确的位置预留楼梯井实现。那么看似更容易实现,但设置位置不明确的水平拓展呢?查询商业建筑消防规范可知,没有条件独立到达室外,或是面积超过50㎡、但只有一个开口朝向室外的商铺需要保留1.4m宽的消防通道通向疏散楼梯。在通常固定划分商铺的做法中,这条通道会被留在无法满足条件的商铺外部,成为室内的消极空间。我们设想取消绝对的商铺划分,将原先铺面划分边界向内1.4m,既作为预留消防通道,也可以成为最小扩展单元,使得实际租赁时能够发生三种情况:(1)缩减5-10㎡更小的铺面,牺牲内部1.4m作为消防通道或相邻店铺扩展空间;(2)正常铺面;(3)增加5-10㎡更大的铺面,获得外部1.4m作为扩展空间。
The intervention could happen either horizontally to form cubicles or merge neighbouring shops, or vertically to connect the shops above or below. The latter is achieved by reversing the orientation of the shops on the ground and the first floor so as to reserve the stairwell in a clearly-defined position on the floor slab. As for the more flexible horizontal expansion, the solution starts from understanding fire regulations. For commercial building, a 1.4-meter-wide fire escape route directly to the evacuation staircase is needed if there is no independent opening to the outdoor area or the floor area exceeds more than 50㎡ with only one outdoor opening. In the usual practice of fixed shop divisions, this access is left outside the shops and becomes a negative space for the interior. We envisage cancelling the absolute shop division and moving the original shop division boundary inwards by 1.4m, both as a reserved fire escape and as a minimum extension unit. It enables three scenarios to occur in actual leasing:(1) sacrificing the internal 1.4m as a fire escape or extension space for the neighbouring shop; (2) normal shop rental(as in the case of fixed shop divisions); (3) gaining the floor area brought by the external 1.4m route from the neighbouring shop.
▼吊挂板在室内形成的空间划分,hanging slab divides the space

▼吊挂板在一家户外店中的应用,the use of hanging slab in an outdoor shop

▼吊挂板为咖啡水台提供了支撑和管线,
the hanging slab provided support and pipework for coffee water table

▼吊挂板、玻璃、灯光和树影相互映衬,Hanging panels, glass, light and shade against each other

商铺隔墙在有了三种可能性的同时必须在初始阶段消失,需要以另外的空间操作暗示三种划分。另一方面,由于介入者和原先的机构需要共享水暖电等基础设施,水电管网的走线使得将共享的“空”转换为边界成为可能。我们在楼板下方引入吊挂板体系,它是原先铺面划分的天花投影,从楼板上以吊柱的方式悬挂,两边各挑出1.4m的混凝土板,板下中线位置凸起构件引导入驻商户根据需要分隔墙面。上下水、冷媒等需要分配给各铺位的管道尽量被整理在天花混凝土吊挂板上方,并通过建筑短边的综合管井收束于两侧,包含强弱电井、给排水井、冷媒井、新风井、雨水井及消防上水井。吊挂板上方与建筑结构统一,涂刷为黑色,从室内看,退到背景中,留下下方较为完整的商业界面。这一策略也被应用于建筑外部。主体建筑为灰色水刷石,是对莫干山民国青砖的转译,外露设备(比如电梯井、屋顶设备间等)的消隐黑色和屋顶的反光银色都旨在于密集的建筑环境中消解体量。我们在规则的柱网中塞进了一个能够暗示社交属性和经济模式的“伺服骨架”,亟待它在许多年后成为时代的废墟。
The division walls must disappear at the initial stage so as to allow the three possibilities. Meanwhile, spatial operation is needed to imply three kinds of divisions. Since the intervener and the original organisations need to share the infrastructure of plumbing, heating and electricity, the alignment of the infrastructure network makes it possible to convert the shared ‘empty’ into a materialized boundary. A suspended slab system is introduced below the ceiling, which is a projection of the shop division. It is a concrete slab hanging from the ceiling with short columns, cantilevering 1.4-meter on each side. A protruding line at the centre below the slabs is mean to guide the tenants in separating the walls according to their needs. Infrastructure such as water, air conditioning that needs to be allocated is organized above the hanging slabs and is collected through the integrated pipe wells on both short sides of the building. The upper part of the hanging slab is unified with the architectural structure by painted black, receding into the background so as to permit a clear commercial interface for the interior. This strategy is also applied to the exterior of the building. The grey brushed stone of the building is a interpretation of Moganshan architectural legacy during the 1930s. Equipment such as lift shafts, is painted black to the strong contrast of the reflective silver roofs. It is intended to dissipate the volume in a dense built environment. Thus, a ‘serving-skeleton’ of social attribute and economic pattern is inserted into the regular network of architectural columns, waiting for it to become a ruin of its time many years from now.
▼建筑中呈现的远山水影,Shadows of distant mountains and water in the building

▼间筑中呈现的人-屋-山的关系,
the relationship between people, building and mountain

这仍旧是一个纸上谈兵的方案,虽然言之凿凿,却很难说有多少科学性,甚至在两年多的实施过程中都充满了自我怀疑。而当建造终于进入尾声,图纸上的内容站在面前时,物体的真实性给了我们些许信心。吊挂板的强介入赋予了使用者某种依傍,空间不再是空无一物,而是可想象、可创造、可改变的介质。在二层,连廊把分开的单体串接起来,吊挂板在天花中标定出的方向让空间得以飞行,游荡在社区,也滑向远山和溪岸。后疫情时代,我们确实认识到,当初对于使用者的假想出现了一定的偏差,虽然空间的冗余同样能胜任这种变化。如今更适应莫干山多元文化圈模组B的是称为“生活方式店”的商业业态,它通过紧紧抓住客群的消费偏向开拓出不同的销售品类,为它们提供了骨架。无论如何,这是一片试验场,而试验才刚刚开始。
It is still a programme on paper, which, despite its rhetoric, could hardly be said to be much of reasonability. Self-doubt occurred during the two years of the construction. When the project finally came into being, the materiality of the buildings shed some lights on confirmation. The strong intervention of the hanging slabs gives the user something to cling to, for the space is no longer empty, but a medium that can be imagined, created and changed. On the first floor, where the gallery connects the separated buildings, the directions marked out by the hanging slabs allow the space to wander through the neighbourhood and to glide towards the distant mountains and the bank of the stream. In the post-epidemic era, we do recognise that the original assumptions are somewhat shifted, despite the capability of the space. Today, the Moganshan Multicultural Circle Module B Complex is well suited to the so-called ‘life-style’ business model. It provides the backbone for a variety of sales categories that closely follow the consumer preferences of the clientele. In any case, this is a testing ground, and the experiment is just beginning.
▼施工过程中从吊挂板看窗外,from hanging slab to the exterior

▼施工过程,construction progress

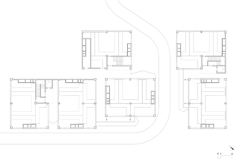
▼场地平面,site plan

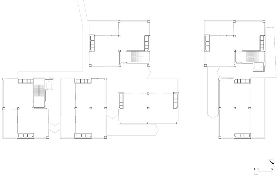
▼一层平面,ground floor plan

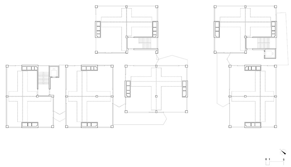
▼二层平面,first floor plan

▼三层平面,third floor plan

▼四连栋东立面,East elevation

▼四连栋南立面,South elevation

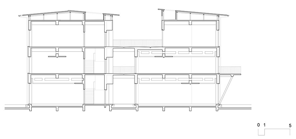
▼四连栋横剖面, cross section

▼四连栋纵剖面,longitudinal section

Project name:Moganshan Multicultural Circle Module B Complex
Project type:Office
Design: Aruma_Architects
Website: https://www.arumaarchitects.com/
Contact e-mail: or_archi@163.com
Design year:2021.08-2022.02
Completion Year:2022.08-2024.05
Leader designer & Team:CHENG Haochung, ZHANG Jie, SHI Shengyu, SONG Yi
Project location:Moganshan, Deqing County, Zhe Jiang Province
Gross built area: 4200㎡
Photo credit:ZHOU Pinglang, Aruma_Architects, Mogan Yu Street Operation Team
Partner:Urbaneer(Programming & Urban Planning),XV Architects(Urban Design),ConCom Architects(Consultants)
Clients:De Qing Cultural and Tourist Development Group Co., Ltd.
Materials:Brushed stone/black aluminium veneer/silver aluminium-magnesium-manganese roofing system














