贵州传媒职业技术学院图书馆及信息中心 / 西线工作室
位于贵州省省会贵阳西部的新兴城区清镇,图书与信息中心坐落于贵州传媒职业技术学院校园的核心位置。该校园占地20公顷,计划于2026年建成。清镇自20世纪初便拥有深厚的教育传统,彼时,教会学校在此兴起,极大拓宽了教育的可及性。为了致敬这一独特的历史遗产,建筑师在设计中巧妙运用空间层高与自然光线,通过彩色玻璃与标志性的天窗引入光影,营造出一种既沉静又庄严、几近宗教般的氛围,呼应了那些承载地区教育记忆的教堂建筑。
Located in Qingzhen, an up and coming district west of Guiyang, the capital city of Guizhou province, the Library and Information Center is placed at the heart of the Guizhou Media Vocational and Technical School, a 20 hectares campus to be completed in 2026. The district of Qingzhen has an important educational legacy, dating back to the early 1900, when the area witnessed the flourishing of church-run schools, which helped broadening the access to education. To honor this unique legacy, the architects played with heights and natural light, filtered through colored glasses and iconic skylights, to recreate a meditative but grand atmosphere, almost spiritual, a reference to those churches which constitute such a meaningful chapter of regional history.
▼项目鸟瞰,aerial view of the project


该建筑共五层,总建筑面积约为18,876平方米,沿地势自南向北布置,由两个主要体量组成。南侧为学生图书馆,作为校园开放空间与建筑体之间的视觉门槛,标志着空间的过渡;北侧体量顺应地形而建,围合出多个庭院空间,并容纳办公室与工作室。从南至北的空间演进,从开放走向内聚,这两个体量共同构成了校园的核心,既是精神中心,也承载着学术功能。
The five-story building covers a total floor area of approximately 18,876 square meters, is designed on a south-north axes, following the site’s natural slope, and is composed of two primary volumes. The student library at the southern end acts as a proper visual threshold, marking the transition from the open campus, while the northernmost volume follows the terrain, enclosing a series of courtyards and housing offices and studios. Progressing from south to north, from openness to enclosure, the two volumes constitute the core of the campus, its ceremonial and intellectual heart.
▼项目鸟瞰,aerial view of the project

图书馆及整个校园外立面主要采用一种混合红砂的合成涂层材料,该材料取自本地,成本较低,同时赋予建筑强烈的地域感。这种红色调直接呼应了当地山丘中常见的红色风化岩石,这些富含铁质的岩石在时间、雨雾与阳光的雕琢下形成了独特的地貌。建筑仿佛自山体生长而出,强调了与土地之间的强烈联系。东西立面呼应了场地的地质特征,坡度的起伏暗示着周边地形的高差与起伏。
The main material selected for the facade of the library, and the whole campus, is a synthetic coating mixed with red sand, a locally sourced and cost-effective option which confers the building a strong sense of place. The red tone is a clear reference to the exposed red weathered rocks commonly found on the region hills, rich in iron and shaped by time, mist, rain and sunlight. The building mass is grounded and wants to rise from the mountain, bringing a strong connection with the land. The eastern and western facades draw from the site’s geological feature; the sloping movement evokes the contours and elevation changes of the surrounding terrain.
▼外立面主要采用一种混合红砂的合成涂层材料,the main material for the facade is a synthetic coating mixed with red sand


与厚重外观形成鲜明对比的是通透明亮、宛如大教堂般的室内空间,其设计逻辑基于矩阵式网格系统。建筑内部穿插着一系列庭院空间,这是对区域传统“院中院”空间类型的当代表达,亦唤起了古代书院的空间意象。这些对原始体量的“减法”操作有助于引入自然采光与通风。建筑师在设计过程中,细致观察本地传统建筑,以全新视角重新演绎,意识到特定空间格局所承载的诗意,能够激发学习氛围并延续文化传承。
▼庭院天窗剖面及细部,skylight section & detail

In contrast with the hearty exterior, the bright cathedral-like interiors are characterized by a matrix grid system. The building is perforated by a series of courtyards, a contemporary interpretation of the traditional ‘courtyard within a courtyard’ typology found in mountain settlements across the region, which also evokes the layout of classical Chinese academies. These subtractions to the original compact volume help ensuring natural lighting and ventilation throughout the building. Architects pay particular attention to local vernacular structures in order to reimagine them in their work, aware of the poetic power certain traditional layouts can have in cultivating learning and cultural continuity.
▼通透明亮、宛如大教堂般的室内空间,the bright cathedral-like interiors



▼引入自然采光与通风,introduce natural lighting and ventilation



室内空间还通过层层叠叠的拱形开口进行节奏化表达,或平行布置,或围合出内向空间,构建出一个丰富的视线交织系统与不断变化的空间感知。重复的拱形元素既带来通透开放的体验,也营造出群体共享与静谧沉思共存的氛围。
The interior space is also strongly punctuated by layered arched openings, sometimes running parallel, other enclosing inner spaces, which create a rich spatial network of overlapping sightlines and shifting perspectives. These repetitive openings create a sense of openness and collectivity, while encouraging moments of quiet reflection.
Suspended from above, clusters of light wells descend at varying heights.
▼通过层层叠叠的拱形开口进行节奏化表达,the interior space is also strongly punctuated by layered arched openings


▼带有雕塑感的天窗将柔和的彩色光线引入室内,these sculptural skylights diffuse a gentle, colored light


▼重复的拱形元素带来通透开放的体验,these repetitive openings create a sense of openness and collectivity



一簇簇天井状的光井自屋顶垂落于不同高度,带有雕塑感的天窗将柔和的彩色光线引入室内,照亮阅读与学习空间。中国文化中,颜色具有特殊的象征意义,建筑师选用红、黄、蓝三色,直接引用了道家五行哲学的元素观:红色代表“火”,象征生命力;蓝色代表“木”,象征智慧;黄色代表“土”,象征神圣。此外,天窗通过不同角度洒下的光线,也赋予空间戏剧性的氛围,仿佛舞台灯光,隐喻该校作为区域广播影视传媒教育中心的核心角色。
▼天窗系统,skylight system

These sculptural skylights diffuse a gentle, colored light that enhances reading and study areas. Chinese culture attaches specific values to colors, and the architects’ use of red, yellow and blue is a direct reference to the five elements in Taoist philosophy. One way the elements can be expressed in space is through the use of color, where red (fire) symbolizes vitality, blue (wood) wisdom and yellow (earth) the sacred. Furthermore, by spreading the light at different angles, the skylights bring a theatrical quality to the space, reminiscent of stage lighting, a subtle reminder to the campus’ role as the main center for broadcasting film and media education in the region.
▼彩色天窗系统,colorful skylights system



▼庭院带来自然通风与采光,courtyard introduces natural lights and ventilation

▼赋予空间戏剧性的氛围,the skylights bring a theatrical quality to the space


▼场地平面,master plan

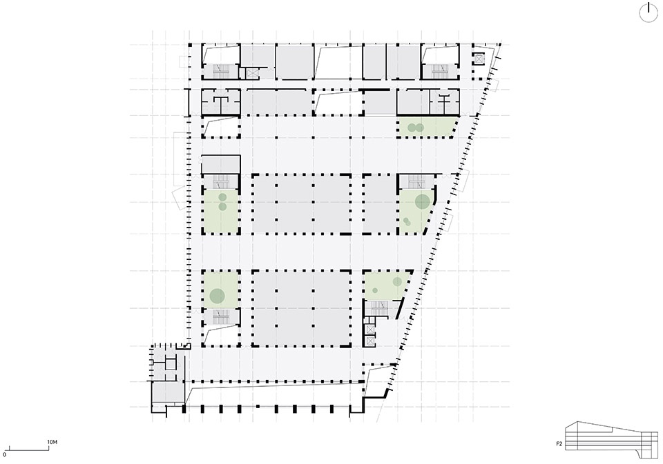
▼二层平面,second floor plan

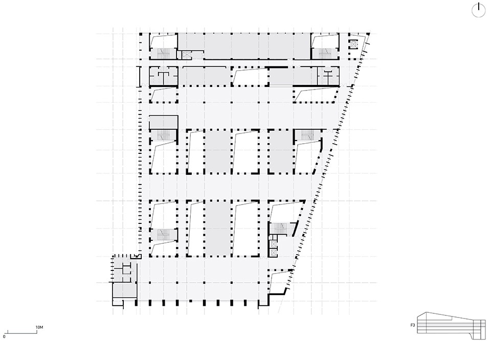
▼三层平面,third floor plan

▼四层平面,fourth floor plan

▼屋顶平面,roof floor plan

▼南立面,South elevation

▼东立面,East elevation

▼剖面图,Section

Architects: West-line Studio
Year: 2025
Location: Qingzhen, Guizhou Province, China
Total Area: 18,876 sqm
Floor n.: 5
Team
Lead Architects: Haobo Wei, Jingsong Xie
Interior Design: Yudan Luo
Structural Engineers: Yuanping Li, Dingping Fu
Site Supervision: Dingping Fu, Minghua Ou
Photographers: Yong Tan, Yuanping Li, Chengyon Liu, Minghua Ou
Credits: West-line Studio














