浙江海盐职教中心 / 同济大学建筑设计研究院(集团)有限公司
概况Overview
为整合职教资源,优化教育布局、提升城市能级,浙江海盐于酱园港畔征地513.5亩,建设中职园区(融合原有海盐商贸学校、理工学校,容纳6000人)、高职园区(嘉兴职业技术学院海盐学院,容纳3000人)、体育中心(“两馆一场”:即一个3500固定座位外加1500活动座位的体育馆、1个游泳馆、一个7000固定座位体育场)一体化的职教中心。
Zhejiang Haiyan has acquired 513.5 acres of land by the Jiangyuan Port to build a vocational education center in order to integrate vocational education resources, optimize education layout, and enhance urban level. This center includes: Secondary Vocational Campus (integrating the former Haiyan Commerce and Trade School and Polytechnic School, accommodating 6,000 students),Higher Vocational Campus (Jiaxing Vocational and Technical College Haiyan Campus, accommodating 3,000 students),sports center (featuring “two halls and one stadium”: a gymnasium with 3,500 fixed seats and 1,500 movable seats, a swimming pool, and a stadium with 7,000 fixed seats).
▼一体化的学习聚落——核心区鸟瞰,Integrated Learning Cluster – Aerial View of Core Area

难点Challenges
• 职教中心由中职园区、高职园区、体育中心三部分组成,如何打造共享的一体化校园?
• 如何延续海盐“千年古县、江南水乡、滨海新城”的城市胜景?结合周边环境打造怎样的校园核心空间?
• 如何创造共享交流、集约高效的建筑空间?
• 如何在低成本的条件下创造地域风格的校园建筑?
• 体育中心如何兼顾校园使用与社会共享?
How to create a shared, integrated campus combining the secondary vocational, higher vocational, and sports center?
How to preserve Haiyan’s heritage as a “millennium-old county, Jiangnan water town, and coastal new city” while shaping a core campus space that harmonizes with its surroundings?
How to design efficient, shared, and interactive architectural spaces?
How to create a regionally distinctive campus architecture under tight budget constraints?
How can the sports center serve both the campus and the community?
▼用地,Site

▼项目用地,Project Site

▼规划设计,Planning and Design

理念Idea
设计从以人为本切入,遵循生态本底的原则,通过人文景观的物化落位,紧扣教育理念的创新趋势。提出“引水拥园、古韵新貌、校城联动、未来校园”的概念,力求创造一个以人为本、自然共生、面向未来、产教融合的校园新典范。
The design adopts a people-oriented approach, adhering to ecological principles and embodying innovative educational concepts through cultural and landscape integration. The concept of “Water-Garden Synergy ,Heritage Reimagined,Campus-City Integration ,Future-Ready Learning” aims to create a new model for campuses that prioritizes human needs, coexists with nature, embraces the future, and integrates industry and education.
▼江南园林的现代演绎——核心区总体,A Modern Interpretation of Jiangnan Garden – Core Area Overview

策略Strategy
一、中高一体 职教聚落|Integrated vocational education hub
资源共享的一体化校园:中、高职共处一个校园,校园规划以湖为核、以水为脉、以园为实,共享公共实训中心及体育中心及核心景观,形成一体化的职业教育中心。共享实训资源区设置于中、高职园中央,涵盖公共实训中心及预留教学实训、配套设施。
▼教学楼设计,Teaching Building Design

A unified campus where secondary and higher vocational schools coexist, centered around a lake, interconnected by waterways, and enriched with gardens. Shared resources include a public training center, sports facilities, and core landscapes, forming a cohesive vocational education hub. The shared training zone is located between the secondary and higher vocational campuses, featuring a public training center and reserved spaces for future expansion.
▼产教融合的公共实训中心,Public Training Center for Industry-Education Integration

二、水乡古韵 拥园入校|Water town charm, gardens embracing the campus
引水入园、景观渗透:面向酱园港,形成六条视线通廊,校园景观与水景相互渗透,空间疏密有致,实现水景价值的最大化利用和一河两岸的城市最佳形象。
Water integration & Landscape blending: Facing Jiangyuan Port, six visual corridors are formed, allowing the campus landscape and water scenery to interpenetrate, creating a balanced spatial rhythm that maximizes waterfront value and enhances the city’s riverside image.
▼引水拥园——校园核心水景,Bringing Water into the Garden – Core Campus Waterscape

园林演绎:借鉴园林设计中对景、借景等造景手法,以“明理湖”景观核为中心,通过礼仪纵轴与景观横轴构建空间骨架,形成“曲水流觞、拥园入校”的校园格局。景观湖借鉴南北湖“湖中有岛、岛中有塔”的造景手法,以海盐人文为导向,融合礼仪广场、滨水岸线等现代特色开放空间,打造古今交融、时尚活力的滨水人文景观带。
Garden-inspired design: Drawing from classical Chinese garden techniques like “borrowed scenery”,the campus is structured around Mingli Lake, with a ceremonial axis and a landscape axis forming the spatial framework, achieving a “winding stream and garden-embraced campus” layout. The lake mimics South-North Lake’s “island within a lake, tower within an island” design, incorporating Haiyan’s cultural elements. Modern open spaces like ceremonial plazas and waterfront promenades blend tradition with contemporary vitality.
▼资源共享的校园,A Resource-Sharing Campus

三、集约共享 内外皆趣|Efficient sharing, engaging indoors and outdoors
理实一体、共享交流:根据职业教育的特点,强调理实一体的教学空间,打造室内外学习交流空间,通过屋面、退台、开放内院、中庭等方式,连接景观与教学交流空间形成景观共生、充满活力的内外学习空间。
Integrated Theory-Practice Spaces: Emphasizing hands-on learning, the design fosters indoor-outdoor interaction through rooftops, terraces, courtyards, and atriums, connecting teaching and social spaces with nature.
▼有机生长的学习聚落——中职教学楼,Organically Growing Learning Cluster – Secondary Vocational Teaching Building

书山意向:图书馆以“书山云台”为意,形体如同错动堆叠的书本,形成一系列交错的室外景观平台。建筑立面被行云流水般的竖向格栅环绕,展现“科技之云”的立意。
“Mountain of Books” Library: Inspired by stacked books, the library features staggered outdoor platforms and vertical lattice facades symbolizing “clouds of technology.”
▼书山云台——高职图书馆,Library as Book Mountain and Cloud Terrace – Vocational College Library

科技之窗:功能楼以“科技之窗”为设计理念,以螺旋咬合的形体构成富有张力的建筑形象,正对中职教学区主轴线自然形成“窗口”的意象。利用形体的进退形成错落有致的虚实关系,营造出丰富的平台空间体验。
“Window of technology” Academic building: A dynamic spiral design forms a symbolic window facing the secondary vocational campus axis, creating layered platforms through its stepped structure.
▼科技之窗——中职功能楼,Window of Technology – Secondary Vocational Complex

▼富有张力的中职功能楼,Dynamic and Expressive Secondary Vocational Complex

通达共享的活动平台:教学楼通过阶梯教室、屋面、连廊、室外楼梯等形体的灵活组合,形成通达共享的活动平台,营造交流融合的开放活动场所。
Connected activity platforms: Teaching buildings incorporate staircases, rooftops, and corridors to form shared activity zones, encouraging open interaction.
▼开放的活动平台——中职教学楼,Open Activity Platform – Secondary Vocational Teaching Building

自由灵动的下部空间+高效集约的上部空间:教学楼1层布置合班教室、交流空间等公共性较强的空间, 2-5层集中布置教室,高效集约,利用建筑形体的化整为零和灵活转动,营造有机生长的“学习聚落”。
Flexible lower spaces + Efficient upper spaces: Ground floor: Large classrooms and social areas, Floors 2-5: Standard classrooms in a compact layout, forming an organic “learning community.”
▼理实一体的中职实训楼,Integrated Practice and Theory – Secondary Vocational Training Building

▼建筑细部,Architectural Details

园林化的院落空间:高低错落的建筑体块与风雨连廊共同围合出尺度宜人、富有趣味的庭院空间,让师生仿佛置身江南园林之中。
Courtyard gardens: Buildings and covered walkways enclose Jiangnan-style courtyards, offering intimate, playful outdoor spaces.
▼园林化的教学楼庭院,Garden-Inspired Courtyard in the Teaching Building

开放交流的室内公共空间:利用门厅、休息区、讨论区等营造开放的非正式交流空间。
Open indoor commons: Lobbies, lounges, and discussion areas encourage informal exchanges.
▼开放共享的中职功能楼门厅,Open and Shared Lobby – Secondary Vocational Complex

▼自主开放的高职阅览室, Independent and Open Reading Room – Vocational College

四、活力复合 校城共享|Vibrant & Shared, Campus-City Synergy
体育中心面向校园与城市,实现校城融合。体育中心双模式设计,教学时段满足校内课程+实训的需求,非教学时段兼顾商业赛事承办、市民健身中心、大型活动场地的使用。
▼体育中心功能流线分析,Functional Circulation Analysis – Sports Center

The sports center serves both the campus and the city:School hours: Supports academic and training needs.Non-school hours: Hosts commercial events, public fitness activities, and large-scale gatherings.
▼校城共享的体育中心,City-Campus Shared Sports Center

▼海盐之钻——体育馆,Salt Crystal of Haiyan – Gymnasium

▼富有韵律的体育馆立面,Rhythmic Façade of the Gymnasium

▼多功能使用的体育馆,Multi-Functional Use of the Gymnasium

体育馆与体育场以”海盐之钻”为共同语言,通过棱角分明的折面造型形成视觉对话。通过屋顶平台实现人流互通,共享配套空间,组织成为一个有机的整体。
The gymnasium and stadium share a “Haiyan Diamond”design language, with angular facades creating a visual dialogue. Rooftop platforms connect the facilities, enabling shared circulation and amenities.
▼结构形式的呈现——体育场,Structural Expression – Stadium

▼室外体育场,Outdoor Stadium

▼体育场回望,Looking Back at the Stadium

五、严控成本 江南校园|Cost control, Jiangnan aesthetics
地域校园:采用现代建筑建构手法,墙面浅灰与深灰搭配,呼应江南水乡粉墙黛瓦的传统建筑意象。利用阶梯教室的抬升,自然形成曲折灵动的天际线,恰似逐水而居的江南民居,恣意悠然。
Regional identity: Modern architecture with light and dark gray walls echoes Jiangnan’s traditional white-and-black palette. Tiered classrooms create a zigzagging skyline, resembling waterside villages.
▼开放自由的校园环境,An Open and Free Campus Environment

形体控制 低技降本:本项目造价异常紧张,设计以“适用经济”为原则,控制建筑体型系数、窗墙比等,采用仿石和仿金属涂料替代常规幕墙,局部采用木色格栅,降低装饰成本,最终建筑造价约3500元/平方米。
Cost-effective techniques: With a tight budget (3,500 RMB/sqm), the design minimizes structural complexity, uses stone- and metal-effect coatings instead of curtain walls, and adds wooden lattices for affordable detailing.
▼总平面图,Site Plan

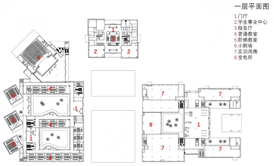
▼中职教学实训一层平面图,1F Plan – Secondary Vocational Teaching & Training Building

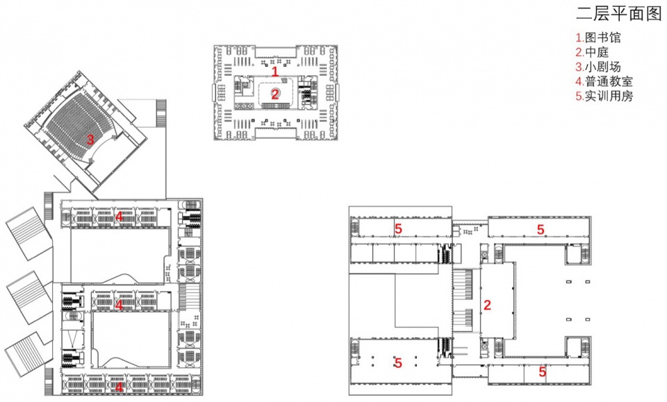
▼中职教学实训二层平面图,2F Plan – Secondary Vocational Teaching & Training Building

▼体育中心一层平面图,1F Plan – Sports Center

▼体育中心二层平面图,2F Plan – Sports Center

▼体育中心剖面图,Section – Sports Center

▼体育中心剖面图2,Section 2 – Sports Center

Project Name: Zhejiang Haiyan Vocational Education Center
Project Type: Educational Architecture
Designer: Tongji University Architectural Design and Research Institute (Group) Co., Ltd
Design Director: Wang Wensheng, Zhou Jun
Architectural Design: Li Zengjun, Wang Chao, Ye Wen, Guo Zhibin, Lu Xi, Liu Shan, Qiu Jinhong, ChengduYi, Zhuang Kaiming, Chen Yi, Li Juan, Xu Ge, Chen Fan
Structural Design: Ruan Linwang, Zhang Tao, Gao Lei, Kong Qingyu, Zhao Yujie, Liao Ping, Wu Yao, Yulu, Li Lu
Water supply and drainage design: Huang Beirong, Li Yide, Jiang Yifeng, Yang Fan, Dong Yawen, Chen Ming
HVAC Design: Zeng Gang, Xu Ye, Li Haoxiang, Nian Yuanming, Tao Tao
Electrical Design: Cheng Qing, Sun Lian, Shen Guoqing, Li Jianhua, Lu Yang
Landscape Design: Cong Fengqing, Xu Guoping
Project Address: Haiyan, Jiaxing, Zhejiang
Building area: approximately 270000 square meters
Photography copyright: Ma Yuan














