Teruel之家,马德里 / Jorge Borondo + Ana Petra Moriyón
马德里特图安(Tetuán)街区保留着一种独特的社会与建筑多样性,这是典型的“转型中街区”的特征。这一区域既靠近市中心又处于边缘地带,正是在这种变化的语境下,空置空间比比皆是,许多空间拥有开阔的面积和醒目的钢筋混凝土结构。Teruel之家便是其中的代表——它曾是一间建筑事务所,如今被重新构想为一处住宅。
Tetuán neighbourhood in Madrid maintains a unique blend of social and architectural diversity, typical of a district undergoing transformation, shaped by its position as a central yet peripheral area. In this changing context, it’s common to find vacant spaces, many of which feature large, open areas and striking reinforced concrete structures. A prime example of this evolution is Casa Teruel, a former architecture studio now reimagined as a home.
▼室内概览,overview of the interior space


这次改造的核心理念是:暴露结构,以突出空间品质,并在街道与内院之间建立通透联系,同时引入更多自然光。整个设计旨在保留原始空间的本质,延续其混凝土结构的力量感,并通过具有肌理感、对比性和功能性的材料加以融合。
▼轴测图,axonometric


The transformation of this space starts with a fundamental idea: exposing the structure to enhance its spatial qualities and create a seamless connection between the two facades, linking the street to the inner courtyard while increasing natural light. The goal of the intervention is to preserve the essence of the original space, maintaining the strength of its concrete structure and blending it with materials that add texture, contrast, and functionality.
▼延续其混凝土结构的力量感,continuing the strength of its concrete structure

▼延续其混凝土结构的力量感,continuing the strength of its concrete structure


▼混凝土结构细部,concrete structure detail


裸露的砖墙与刮磨过的混凝土结构,保留了空间的原始气质;家具中使用的桦木,则为细节增添温润与精准感。原有地面材料被回收并重新铺设,进一步强化了空间的整体性。浴室内坚实的石灰石材,以及厨房与栏杆中使用的不锈钢元素,形成了材质的丰富对比。而整屋采用的自流平水泥地坪则统一了空间语言,形成中性的底色,强化流动性与光感。玻璃砖窗台上的镜面倒角设计,则进一步放大了光线的反射与通透感。
The exposed brick walls and scraped concrete structure preserve the space’s character, while birch wood in the furniture brings warmth and precision to the details. The existing flooring, salvaged and reinstalled, reinforces the overall character of the space, complemented by the solidity of limestone in the bathroom and the sleek stainless steel in the kitchen and railing. The seamless self-levelling mortar floor unifies the space, creating a neutral base that enhances both flow and light, further accentuated by mirrors in the jambs of the glass block windows.
▼保留了空间的原始气质,preserve the space’s character


▼桦木为细节增添温润与精准感,
birch wood in the furniture brings warmth and precision to the details



▼自流平水泥地坪,seamless self-levelling mortar floor

▼形成中性的底色,creating a neutral base

▼浴室,bathroom



▼浴室细部,bathroom detail

设计强调开放性与清晰度,让这个家可以成为工作、休闲、自我时间以及全新生活方式的灵活舞台。空间中一个重要的亮点是可贯通的浴室,拥有双向出入口,将主卧与一个灵活空间相连。这一空间可根据需要灵活调整——既可以作为家庭办公室,也可变身为客卧,甚至融入起居区,成为更大的社交和活动区域。
The design focuses on openness and clarity, allowing the home to function as a dynamic backdrop for various activities: work, leisure, personal time, and new possibilities. A key feature is the pass-through bathroom with dual access, connecting the master bedroom and a flexible space that can serve different purposes. This space can transform from a home office to an extra bedroom, or even be incorporated into the living area to create a larger zone for gatherings and activities.
▼开放通透的空间,open and airy space

▼玻璃砖的使用,the use of glass brick



Teruel 之家不仅是一处居所,更是一个可适应日常生活、随时间演进的多功能空间。它既适合日常起居,也能灵活应对聚会、活动等多样场景,满足居住者不断变化的生活需求。
Casa Teruel is not just a home; it’s a versatile space that adapts to everyday life and evolves over time to meet the changing needs of its inhabitants, making it ideal for both daily living and hosting events.
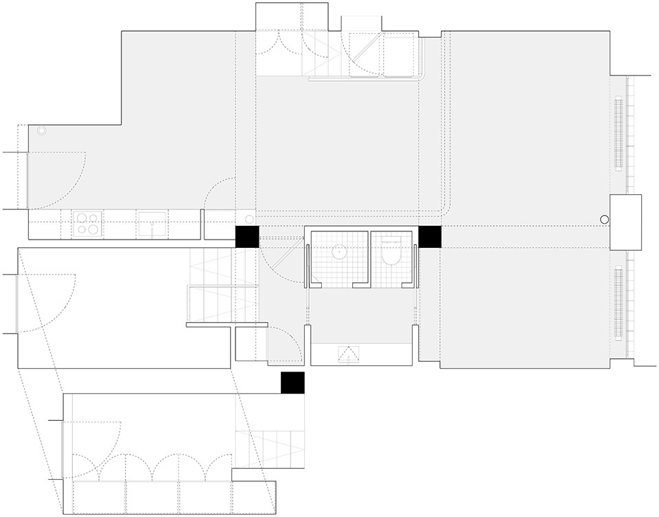
▼平面图,plan

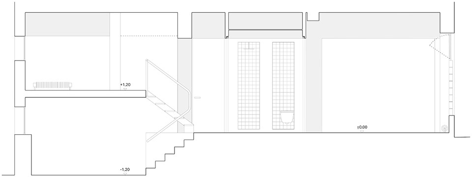
▼剖面图,section

Author: Jorge Borondo + Ana Petra Moriyón
Contact E-mail: info@jorgeborondo.com
Website: http://www.jorgeborondo.com
Social media: http://www.instagram.com/jorgeborondo_
Studio address: Joge Borondo, Plaza de la Cebada 10 – 1º Exterior Izquierda, 28005 Madrid, Spain
Project location: Madrid
Project country: Spain
Project year: 2023
Completion year: 2024
Usable floor area: 81 m²
Photographer: Knu Kim, http://www.knukimphoto.com, knukimphoto@gmail.com
Collaborators and suppliers Contractor: Fast & Furious Office, http://www.fastandfuriousoffice.com














